Oosterkampen 1 7722 VZ Dalfsen
- Nieuw
Prijs op aanvraag
Omschrijving
Op mooie zichtlocatie gelegen kleinschalig en luxe paardenobject.
Gelegen tegen een rijk bosgebied aan en nabij de prachtige natuur in het "Vechtdal" tussen Dalfsen en Ommen.
Het geheel bestaat uit een sfeervol en riet gedekt Landhuis met eveneens riet gedekt stalgebouw waarin 11 mooie boxen, waarvan 8 met buitenluik. Verder een zadelkamer en een fraaie rijhal waarvan de rijbaan afm. 20 x 40 m met een goede bodem en een gezellige foyer, keuken en toilet groep. Tevens is er een stapmolen aanwezig, paddocks en een grote buiten rijbaan met eb- en vloed bodem.
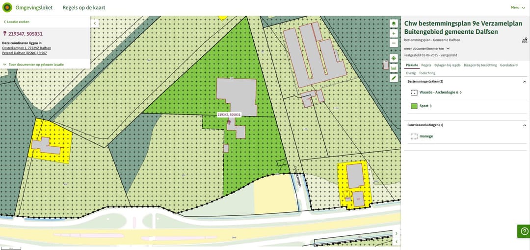
Het geheel is uitermate geschikt voor de particuliere paardenliefhebber of professioneel gebruik. Bestemming is "sport". Totale perceel oppervlakte circa 3.17 hectare.
Woongedeelte in 2021-2022 volledig onder architectuur gerenoveerd en verduurzaamd.
Indeling woonhuis:
Riante entree, toilet, trapopgang naar boven.
Master bedroom met design badkamer voorzien van dubbele douche, vrijstaand bad, toilet en badkamermeubel.
Groot kantoor met inbouwkasten en deur naar de tuin.
Grote woonkamer met doorkijkhaard (gas) verbonden met luxe uitgevoerde keuken met alle inbouwapparatuur. Via de keuken komt u in de bijkeuken met ingebouwde vriezer en koelkast en een natte ruimte voor wasmachine en droger.
De complete benedenverdieping voorzien van vloerverwarming en airconditioning (plafondunits).
1e verdieping:
Twee mooie slaapkamers, luxe badkamer met douche, toilet en vloerverwarming.
Daarnaast zijn er nog 5 mooie slaapkamers aanwezig welke uitstekend geschikt zijn als verblijfsruimte, een relaxruimte met infraroodsauna en grote opbergruimte. Deze vertrekken bevinden zich boven de stalruimte en zijn ook via de stallen bereikbaar. Zeer geschikt voor bijv. medewerkers of logies.
De woning is volledig geautomatiseerd via een app, waarmee u in elk vertrek de temperatuur en verlichting kunt regelen. In de fraai aangelegde tuin vindt u een poolhouse met doucheruimte, toilet en een technische ruimte. In de tuin is bovendien een zwembad/jacuzzi.
De locatie is ook bijzonder, daar de bereikbaarheid met Twente, Noord Nederland en op een 15 min. afstand van A28, zeer goed is. In de regio zijn wekelijkse zeer veel spring- en dressuur start mogelijkheden.
Wilt u zelf alle faciliteiten bekijken en de sfeer van dit landhuis proeven?
Bel dan snel voor meer informatie en een afspraak.
Gelegen tegen een rijk bosgebied aan en nabij de prachtige natuur in het "Vechtdal" tussen Dalfsen en Ommen.
Het geheel bestaat uit een sfeervol en riet gedekt Landhuis met eveneens riet gedekt stalgebouw waarin 11 mooie boxen, waarvan 8 met buitenluik. Verder een zadelkamer en een fraaie rijhal waarvan de rijbaan afm. 20 x 40 m met een goede bodem en een gezellige foyer, keuken en toilet groep. Tevens is er een stapmolen aanwezig, paddocks en een grote buiten rijbaan met eb- en vloed bodem.
Het geheel is uitermate geschikt voor de particuliere paardenliefhebber of professioneel gebruik. Bestemming is "sport". Totale perceel oppervlakte circa 3.17 hectare.
Woongedeelte in 2021-2022 volledig onder architectuur gerenoveerd en verduurzaamd.
Indeling woonhuis:
Riante entree, toilet, trapopgang naar boven.
Master bedroom met design badkamer voorzien van dubbele douche, vrijstaand bad, toilet en badkamermeubel.
Groot kantoor met inbouwkasten en deur naar de tuin.
Grote woonkamer met doorkijkhaard (gas) verbonden met luxe uitgevoerde keuken met alle inbouwapparatuur. Via de keuken komt u in de bijkeuken met ingebouwde vriezer en koelkast en een natte ruimte voor wasmachine en droger.
De complete benedenverdieping voorzien van vloerverwarming en airconditioning (plafondunits).
1e verdieping:
Twee mooie slaapkamers, luxe badkamer met douche, toilet en vloerverwarming.
Daarnaast zijn er nog 5 mooie slaapkamers aanwezig welke uitstekend geschikt zijn als verblijfsruimte, een relaxruimte met infraroodsauna en grote opbergruimte. Deze vertrekken bevinden zich boven de stalruimte en zijn ook via de stallen bereikbaar. Zeer geschikt voor bijv. medewerkers of logies.
De woning is volledig geautomatiseerd via een app, waarmee u in elk vertrek de temperatuur en verlichting kunt regelen. In de fraai aangelegde tuin vindt u een poolhouse met doucheruimte, toilet en een technische ruimte. In de tuin is bovendien een zwembad/jacuzzi.
De locatie is ook bijzonder, daar de bereikbaarheid met Twente, Noord Nederland en op een 15 min. afstand van A28, zeer goed is. In de regio zijn wekelijkse zeer veel spring- en dressuur start mogelijkheden.
Wilt u zelf alle faciliteiten bekijken en de sfeer van dit landhuis proeven?
Bel dan snel voor meer informatie en een afspraak.
Kenmerken
Overdracht
- Vraagprijs
- Prijs op aanvraag
- Aangeboden sinds
-
- Status
- Beschikbaar
- Aanvaarding
- In overleg
Bouw
- Hoofdfunctie
- Manege
- Soort bouw
- Bestaande bouw
- Paardenboxen
- 11
- Rijhallen
-
800 m² (met kantine)
Woonruimte
- Bedrijfswoningen
- 1
-
Hoofdwoning
- Inhoud
- 9.284 m³
- Bouwjaar
- 1970
- Energielabel
- C 1,0
Kadastrale gegevens
-
DALFSEN R 907
- Kadastrale kaart
- Eigendomssituatie
- 1 ha 65 a 85 ca (geheel perceel)
-
DALFSEN R 722
- Eigendomssituatie
- 0 ha 96 a 30 ca (geheel perceel)
-
DALFSEN R 368
- Eigendomssituatie
- 0 ha 55 a 0 ca (geheel perceel)
Foto's
Plattegrond
Begane Grond
1e Verdieping
Plattegrond