Omschrijving
Dit voormalige rundveebedrijf bestaat uit o.a. een vrijstaand woonhuis met inpandige garage en paardenstal met 5 paardenboxen, een voormalige rundveestal, een veldschuur met gedeeltelijk een open front, een oude voormalige rundveestal en weiland. Het geheel is gesitueerd op een unieke, vrij gelegen locatie in het buitengebied van Heusden. Er zijn volop mogelijkheden op deze locatie, bijvoorbeeld voor het realiseren van een paardenhouderij.
INDELING WOONHUIS
BEGANE GROND
De hal biedt toegang tot de keuken, bijkeuken, badkamer en toiletruimte. Een vaste trap biedt toegang tot de zolderruimte. De ruime leefkeuken is voorzien van een PVC-vloer, deels betegelde wanden en een stucwerk plafond. De eenvoudige keukeninrichting is in een wandopstelling geplaatst. Een grote raampartij zorgt voor veel natuurlijke lichtinval. Vanuit de keuken is er toegang tot de woonkamer, slaapkamer, kelder en de vaste trap naar de 1e verdieping. De woonkamer is uitgerust met vloerbedekking, granol wanden en een stucwerk plafond. Ook deze ruimte geniet veel natuurlijke lichtinval. De slaapkamer is eveneens afgewerkt met vloerbedekking, behangen wanden en een stucwerk plafond welke is voorzien van sierlijsten. De kelder met houten trap is afgewerkt met bezette wanden en een betonnen vloer. Tevens is er een koekoek, vaste schappen en een pekelbak gesitueerd. De badkamer is geheel betegeld en verder uitgerust met een ligbad, douche en een wastafel. Het plafond is afgewerkt met houten schrootjes. De toiletruimte is eveneens geheel betegeld en voorzien van een toilet. Een raampartij zorgt voor natuurlijke ventilatie. De praktische bijkeuken is voorzien van een tegelvloer, geheel betegelde wanden en een houten schrootjes plafond. De aansluitingen voor de wasapparatuur en de boiler zijn hier gesitueerd. Tevens is er een gootsteen met keukenkastjes aanwezig. Vanuit de bijkeuken is er toegang tot de garage en de stal. De garage is uitgerust met een betonnen vloer, een houten verdiepingsvloer en bezette wanden. Een handbedienbare roldeur zorgt voor toegang.
1E VERDIEPING
De overloop, voorzien van een vinyl vloer, biedt toegang tot 4 slaapkamers. Slaapkamer II en III zijn afgewerkt met vloerbedekking, stucwerk wanden en een panelen plafond. Praktische inbouwkasten zorgen voor opbergruimte. Slaapkamer IV is verdeeld in 2 gedeeltes. De ruimtes zijn voorzien van een vinyl vloer en behangen wanden. Een dakkapel zorgt voor natuurlijke lichtinval en ventilatie. Ook hier zorgt een praktische inbouwkast voor opbergruimte. Slaapkamer V is uitgerust met een vinyl vloer en behangen wanden. Ook hier is een praktische inbouwkast aanwezig.
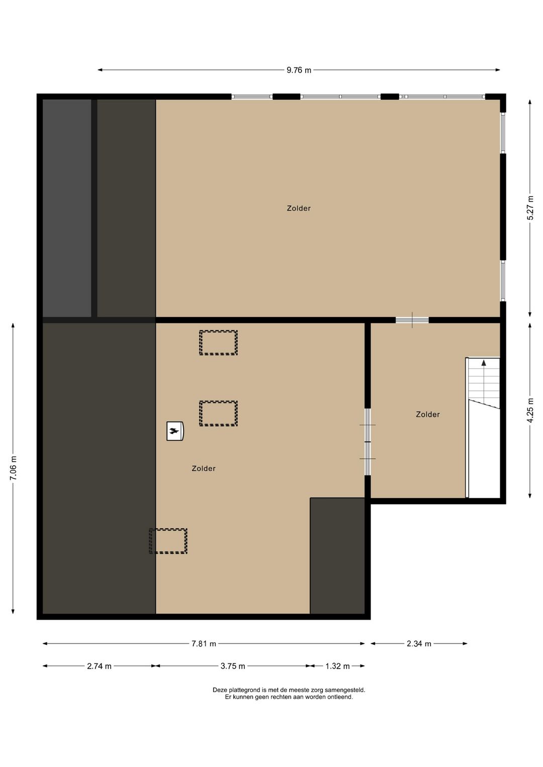
De zolder is afgewerkt met een betonnen vloer en houten spanten. De opstelling voor de CV-ketel (ATAG) is hier gesitueerd. De hooizolder is eveneens afgewerkt met een betonnen vloer en houten spanten. Het dak is geïsoleerd en er is een hooiluik aanwezig.
BIJGEBOUWEN
INPANDIGE PAARDENSTAL
De paardenstal is afgewerkt met een betonnen vloer en bezette wanden. Een roldeur in de achtergevel en een loopdeur zorgen voor toegang tot het erf. De stal is uitgerust met 5 paardenboxen en 1 buitenstal.
VOORMALIGE RUNDVEESTAL I
De stal is opgetrokken met metselwerk gevels en stalen spanten, een betonnen vloer met roosters en een golfplaten dak (asbesthoudend). De inrichting is verwijderd. De gierputten zijn nog aanwezig.
VELDSCHUUR
De veldschuur is opgetrokken uit deels damwand / deels metselwerk gevels met stalen spanten en een golfplaten dak (asbesthoudend). De schuur is opgedeeld in 2 delen. Deel I heeft een open front en een beklinkerde vloer. Deel II is nu in gebruik als opslag/stalling. Er is een beregeningspomp gesitueerd en 2 roldeuren zorgen voor toegang.
WERKPLAATS
De vrijstaande werkplaats heeft een betonnen vloer, metselwerk wanden en een geïsoleerd golfplaten (asbestvrij). De ruimte is nu o.a. in gebruik als werkplaats en opslagruimte. Een roldeur zorgt voor toegang.
VOORMALIGE RUNDVEESTAL II
De stal is gebouwd in 2005 en opgetrokken uit betonelementen met metselwerk profiel, metselwerk wanden en een betonnen vloer. Een deel van de gevels is voorzien van windbreekgaas. Het dak is voorzien van golfplaten. De inrichting is verwijderd. Een elektrische bedienbare roldeur in zowel de voor- als de achtergevel zorgt voor toegang tot het erf. Een separaat deel waar voorheen de kalfjes zaten beschikt over een gierput. Een schuifdeur zorgt voor toegang vanuit de stal. De gierput is geschikt voor 2.000 m³ mestopslag. De voormalige hygiënesluis is uitgerust met een wastafel en een douche. Naast de hygiënesluis is een separate toiletruimte gesitueerd. Er zijn tevens een berging en een voormalig tanklokaal aanwezig. Deze ruimte is afgewerkt met een gecoate vloer en bezette wanden. Openslaande deuren zorgen voor toegang vanaf het erf. Een stalen trap biedt toegang tot een hoger gelegen kantoorruimte . Deze ruimte biedt een goed zicht op de stal en is afgewerkt met een betonnen vloer. In de naastgelegen technische ruimte is o.a. de opstelling voor de CV-ketel gesitueerd. Er is tevens een internetkabel en telefoonaansluiting aanwezig in de stal.
ERF & WEILAND
Het erf is verhard met betonklinkers. Het weiland is omheind met houten palen en lint. Op het erf zijn nog 2 sleufsilo’s/kuilplaten gesitueerd.
BIJZONDERHEDEN
- Het object is aangesloten op gas, water, elektra, riolering en glasvezel.
- Het dak van de boerderij is geïsoleerd met stro.
- De stal is gebouwd in 2005.
- De voormalige (nieuwe) rundveestal beschikt over een eigen aansluiting voor het gas, water, elektra en riolering.
- In deze stal is ook een internetkabel en telefoonaansluiting aanwezig.
- Op het geheel rust de bestemming "Agrarisch - Agrarisch bedrijf".
- Er zijn voor 50 paarden stikstofrechten aanwezig.
- Er is een beregeningsvergunning aanwezig.
- Er is een asbestinventarisatie rapport aanwezig.
- Centraal gelegen ten opzichte van Manege Heijligers in Asten, Peelbergen Equestrian Centre in Sevenum en Green Valley Estate in Deurne.
- Goede bereikbaarheid nabij provinciale weg en snelweg A67 richting Eindhoven - Venlo.
- Voor meer informatie over de mogelijkheden op deze locatie is een beleidscheck beschikbaar. Deze is verkrijgbaar via ons kantoor.
INDELING WOONHUIS
BEGANE GROND
De hal biedt toegang tot de keuken, bijkeuken, badkamer en toiletruimte. Een vaste trap biedt toegang tot de zolderruimte. De ruime leefkeuken is voorzien van een PVC-vloer, deels betegelde wanden en een stucwerk plafond. De eenvoudige keukeninrichting is in een wandopstelling geplaatst. Een grote raampartij zorgt voor veel natuurlijke lichtinval. Vanuit de keuken is er toegang tot de woonkamer, slaapkamer, kelder en de vaste trap naar de 1e verdieping. De woonkamer is uitgerust met vloerbedekking, granol wanden en een stucwerk plafond. Ook deze ruimte geniet veel natuurlijke lichtinval. De slaapkamer is eveneens afgewerkt met vloerbedekking, behangen wanden en een stucwerk plafond welke is voorzien van sierlijsten. De kelder met houten trap is afgewerkt met bezette wanden en een betonnen vloer. Tevens is er een koekoek, vaste schappen en een pekelbak gesitueerd. De badkamer is geheel betegeld en verder uitgerust met een ligbad, douche en een wastafel. Het plafond is afgewerkt met houten schrootjes. De toiletruimte is eveneens geheel betegeld en voorzien van een toilet. Een raampartij zorgt voor natuurlijke ventilatie. De praktische bijkeuken is voorzien van een tegelvloer, geheel betegelde wanden en een houten schrootjes plafond. De aansluitingen voor de wasapparatuur en de boiler zijn hier gesitueerd. Tevens is er een gootsteen met keukenkastjes aanwezig. Vanuit de bijkeuken is er toegang tot de garage en de stal. De garage is uitgerust met een betonnen vloer, een houten verdiepingsvloer en bezette wanden. Een handbedienbare roldeur zorgt voor toegang.
1E VERDIEPING
De overloop, voorzien van een vinyl vloer, biedt toegang tot 4 slaapkamers. Slaapkamer II en III zijn afgewerkt met vloerbedekking, stucwerk wanden en een panelen plafond. Praktische inbouwkasten zorgen voor opbergruimte. Slaapkamer IV is verdeeld in 2 gedeeltes. De ruimtes zijn voorzien van een vinyl vloer en behangen wanden. Een dakkapel zorgt voor natuurlijke lichtinval en ventilatie. Ook hier zorgt een praktische inbouwkast voor opbergruimte. Slaapkamer V is uitgerust met een vinyl vloer en behangen wanden. Ook hier is een praktische inbouwkast aanwezig.
De zolder is afgewerkt met een betonnen vloer en houten spanten. De opstelling voor de CV-ketel (ATAG) is hier gesitueerd. De hooizolder is eveneens afgewerkt met een betonnen vloer en houten spanten. Het dak is geïsoleerd en er is een hooiluik aanwezig.
BIJGEBOUWEN
INPANDIGE PAARDENSTAL
De paardenstal is afgewerkt met een betonnen vloer en bezette wanden. Een roldeur in de achtergevel en een loopdeur zorgen voor toegang tot het erf. De stal is uitgerust met 5 paardenboxen en 1 buitenstal.
VOORMALIGE RUNDVEESTAL I
De stal is opgetrokken met metselwerk gevels en stalen spanten, een betonnen vloer met roosters en een golfplaten dak (asbesthoudend). De inrichting is verwijderd. De gierputten zijn nog aanwezig.
VELDSCHUUR
De veldschuur is opgetrokken uit deels damwand / deels metselwerk gevels met stalen spanten en een golfplaten dak (asbesthoudend). De schuur is opgedeeld in 2 delen. Deel I heeft een open front en een beklinkerde vloer. Deel II is nu in gebruik als opslag/stalling. Er is een beregeningspomp gesitueerd en 2 roldeuren zorgen voor toegang.
WERKPLAATS
De vrijstaande werkplaats heeft een betonnen vloer, metselwerk wanden en een geïsoleerd golfplaten (asbestvrij). De ruimte is nu o.a. in gebruik als werkplaats en opslagruimte. Een roldeur zorgt voor toegang.
VOORMALIGE RUNDVEESTAL II
De stal is gebouwd in 2005 en opgetrokken uit betonelementen met metselwerk profiel, metselwerk wanden en een betonnen vloer. Een deel van de gevels is voorzien van windbreekgaas. Het dak is voorzien van golfplaten. De inrichting is verwijderd. Een elektrische bedienbare roldeur in zowel de voor- als de achtergevel zorgt voor toegang tot het erf. Een separaat deel waar voorheen de kalfjes zaten beschikt over een gierput. Een schuifdeur zorgt voor toegang vanuit de stal. De gierput is geschikt voor 2.000 m³ mestopslag. De voormalige hygiënesluis is uitgerust met een wastafel en een douche. Naast de hygiënesluis is een separate toiletruimte gesitueerd. Er zijn tevens een berging en een voormalig tanklokaal aanwezig. Deze ruimte is afgewerkt met een gecoate vloer en bezette wanden. Openslaande deuren zorgen voor toegang vanaf het erf. Een stalen trap biedt toegang tot een hoger gelegen kantoorruimte . Deze ruimte biedt een goed zicht op de stal en is afgewerkt met een betonnen vloer. In de naastgelegen technische ruimte is o.a. de opstelling voor de CV-ketel gesitueerd. Er is tevens een internetkabel en telefoonaansluiting aanwezig in de stal.
ERF & WEILAND
Het erf is verhard met betonklinkers. Het weiland is omheind met houten palen en lint. Op het erf zijn nog 2 sleufsilo’s/kuilplaten gesitueerd.
BIJZONDERHEDEN
- Het object is aangesloten op gas, water, elektra, riolering en glasvezel.
- Het dak van de boerderij is geïsoleerd met stro.
- De stal is gebouwd in 2005.
- De voormalige (nieuwe) rundveestal beschikt over een eigen aansluiting voor het gas, water, elektra en riolering.
- In deze stal is ook een internetkabel en telefoonaansluiting aanwezig.
- Op het geheel rust de bestemming "Agrarisch - Agrarisch bedrijf".
- Er zijn voor 50 paarden stikstofrechten aanwezig.
- Er is een beregeningsvergunning aanwezig.
- Er is een asbestinventarisatie rapport aanwezig.
- Centraal gelegen ten opzichte van Manege Heijligers in Asten, Peelbergen Equestrian Centre in Sevenum en Green Valley Estate in Deurne.
- Goede bereikbaarheid nabij provinciale weg en snelweg A67 richting Eindhoven - Venlo.
- Voor meer informatie over de mogelijkheden op deze locatie is een beleidscheck beschikbaar. Deze is verkrijgbaar via ons kantoor.
Kaart
Kaart laden...
Kadastrale grens
Bebouwing
Reistijd
Krijg inzicht in de bereikbaarheid van dit object vanuit bijvoorbeeld een openbaar vervoer station of vanuit een adres.