Weistraat 4 4196 JE Tricht
- Verkocht onder voorbehoud
€ 279.000 k.k.
Omschrijving
Exclusief agrarisch perceel te koop!
Ontdek Weistraat 4 in Tricht: een uniek perceel met bestemming 'Agrarisch met waarden – Landschapswaarden'.
De kavel biedt ruime mogelijkheden voor agrarisch gebruik (ook hobbymatig) en is perfect geschikt voor liefhebbers van het buitenleven: bijvoorbeeld het houden van (klein)vee of paarden, fruitteelt, het aanleggen van een voedselbos of pluktuin, het creëren van een recreatief landje, of het realiseren van een B&B of vakantiehuisje.
Kortom: alle potentie voor een heel fijn plekje om te onthaasten in het buitengebied!
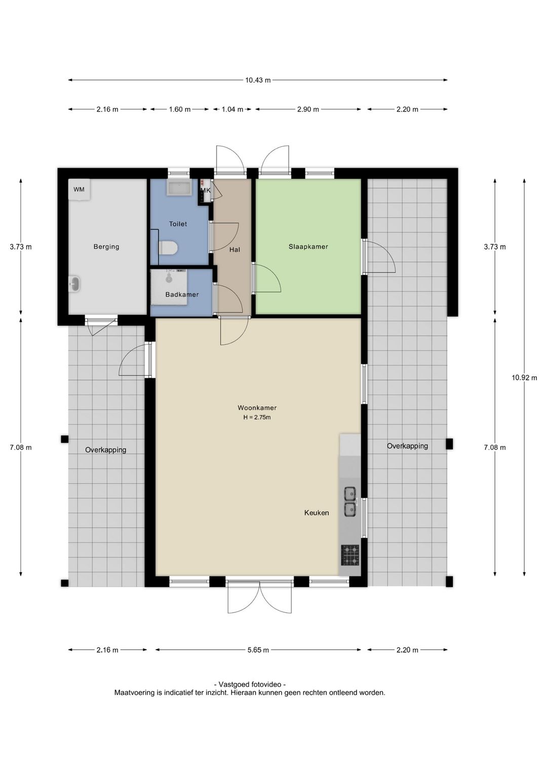
Er staat een klein gebouw van ruim 60 m2 waar elektra-, water- en gasaansluiting aanwezig is, alsmede riolering.
Thans is het ingericht als leefruimte, echter is het volgens het bestemmingsplan NIET toegestaan om hier te wonen.
Ontdek Weistraat 4 in Tricht: een uniek perceel met bestemming 'Agrarisch met waarden – Landschapswaarden'.
De kavel biedt ruime mogelijkheden voor agrarisch gebruik (ook hobbymatig) en is perfect geschikt voor liefhebbers van het buitenleven: bijvoorbeeld het houden van (klein)vee of paarden, fruitteelt, het aanleggen van een voedselbos of pluktuin, het creëren van een recreatief landje, of het realiseren van een B&B of vakantiehuisje.
Kortom: alle potentie voor een heel fijn plekje om te onthaasten in het buitengebied!
Er staat een klein gebouw van ruim 60 m2 waar elektra-, water- en gasaansluiting aanwezig is, alsmede riolering.
Thans is het ingericht als leefruimte, echter is het volgens het bestemmingsplan NIET toegestaan om hier te wonen.
Kenmerken
Overdracht
- Vraagprijs
- € 279.000 k.k.
- Aangeboden sinds
-
- Status
- Verkocht onder voorbehoud
- Aanvaarding
- In overleg
Bouw
- Hoofdfunctie
- Losse grond
Oppervlakten
- Type land
- Grasland
Kadastrale gegevens
-
GELDERMALSEN I 602
- Kadastrale kaart
- Eigendomssituatie
- 1 ha 4 a 78 ca (geheel perceel)
Foto's
Plattegrond
Chalet
Tuin