Driehuizen 5464 RA Veghel
Verkoop bij inschrijving
Omschrijving
VERKOOP PER INSCHRIJVING
Bij deze bieden wij u een perceel cultuurgrond gelegen aan Driehuizen ong. te Veghel aan met een grootte van 4,98.35 ha.
De cultuurgrond is te koop per inschrijving.
Het inschrijfformulier kunt u tot en met 16 april 2026 vóór 13:00 inleveren bij: Van Thiel & Van Rooij Notarissen, Brandstraat 11, 5741 GH te Beek en Donk.
U kunt het inschrijfformulier opvragen bij ons kantoor via: 0492-661884
LIGGING EN BEREIKBAARHEID
Het perceel is gelegen in het buitengebied van Veghel aan de Driehuizen, tegenover Driehuizen 20.
Het perceel is goed bereikbaar middels een verharde weg, waarbij het perceel te betreden is vanaf de kruising Driehuizen/Het Wuiten.
KADASTER
Het perceel is kadastraal bekend als Gemeente Veghel
Sectie, L, nummer 4163, met een grootte van 4,98.35 ha.
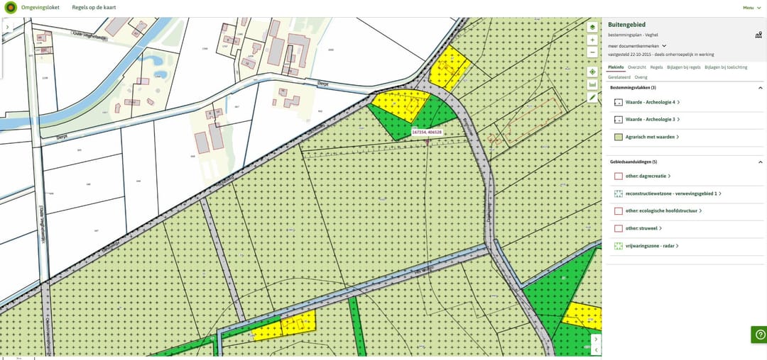
BESTEMMINGSPLAN
Bestemmingsplan:
Het object is gelegen in het bestemmingsplan "Buitengebied" en is vastgesteld door de Raad van Veghel op 22 oktober 2015. Identificatie: NL.IMRO.0860.BU01aa000000BP2013-VG02
Vigerende bestemming:
Het object heeft de bestemming: Agrarisch met waarden
Met aanduiding:
- Waarde - archeologie 3 & 4
- Gebiedsaanduiding: other: dagrecreatie
- Gebiedsaanduiding: other: struweel
- Gebiedsaanduiding: other: ecologische hoofdstructuur
- Gebiedsaanduiding: other: oude akkers
- Gebiedsaanduiding: vrijwaringszone - radar
- Gebiedsaanduiding: reconstructiewetzone - verwevingsgebied 1
Het object is gelegen in het bestemmingsplan "paraplubestemmingsplan archeologie" en is vastgesteld door de Raad van gemeente Meierijstad op 10 april 2025. Identificatie: NL.IMRO.1948.PAR000BP0032022M-VG01
Met aanduiding:
- Waarde - archeologie 7
Per 1 januari 2024 is de Omgevingswet in werking getreden. Bij de inwerkingtreding van de Omgevingswet heeft elke gemeente (voortaan) 1 omgevingsplan van rechtswege voor haar grondgebied. Dit omgevingsplan, met een tijdelijk deel, zet de gemeente stapsgewijs om tot een volledig omgevingsplan. In het tijdelijk omgevingsplan zijn de ruimtelijke regels uit bestaande instrumenten van de wet op ruimtelijk ordening (Wro) opgenomen. Voor zover de gemeente nog geen volledig wijzigingsplan heeft vastgesteld gelden op de gemeentelijk niveau de regels van het geldende bestemmingsplan.
De gemeente waarin het perceel is gelegen heeft geen volledig wijzigingsplan, zodat voor de regels met betrekking tot het gebruik van de grond wordt uitgegaan van het/de laatst vigerende bestemmingsplan(nen).
Disclaimer: er bestaat een kans dat de omzetting en het doorlinken van documenten en regels van vóór 1 januari 2024 naar het Omgevingsloket omissie(s) vertoont/vertonen. De makelaar heeft hierop géén controle uitgeoefend.
BIJZONDERHEDEN
- Het perceel kan worden beregend via een geregistreerde beregeningsput, aangesloten op een automatische pomp met ondergrondse leiding en veertien afzonderlijke hydranten, elk voorzien van een automatische klep en Fersil UV koppelingen. Deze leiding loopt in de linker lengterichting over het perceel.
De eigenaar en de huidige gebruiker zullen meewerken aan de overdracht van de registratie van de beregeningsput. Daarnaast is er een eigen elektriciteitsaansluiting aanwezig ten behoeve van de beregening.
De koper zal samen met de eigenaar/gebruiker van het aansluitend buurtperceel (Veghel, sectie L, nummer 4163), zullen na gunning in overleg treden inzake het gedeelde gebruik van de ondergrondse leiding.
- Het perceel is gedeeltelijk peil gestuurd gedraineerd.
- De mestplaatsingsruimte 2026 komt ten goede van koper.
- Het jachtrecht is verhuurd.
- Bouwplan:
2022: aardbeiplanten
2023: aardbeiplanten
2024: grasland
2025: aardbeiplanten
2026: braak
- Koper wordt geacht zichzelf op de hoogte te hebben gesteld betreffende het 7e en eventueel aankomende 8e actieprogramma nitraatrichtlijn.
- Koper zal het gekochte perceel, feitelijk kunnen aanvaarden op datum juridische levering, zijnde 8 mei 2026.
- Alle hierbij vermelde gegevens zijn naar beste kennis en wetenschap en te goeder trouw door ons weergegeven. Mocht nadien blijken dat er afwijkingen zijn, dan kan men zich hierop niet beroepen. Aan de inhoud van deze documentatie kunnen derhalve geen rechten worden ontleend.
BIJZONDERE INSCHRIJVINGSVOORWAARDEN
Voor de bijzondere inschrijvingsvoorwaarden verwijs ik u graag door naar de brochure.
Bij deze bieden wij u een perceel cultuurgrond gelegen aan Driehuizen ong. te Veghel aan met een grootte van 4,98.35 ha.
De cultuurgrond is te koop per inschrijving.
Het inschrijfformulier kunt u tot en met 16 april 2026 vóór 13:00 inleveren bij: Van Thiel & Van Rooij Notarissen, Brandstraat 11, 5741 GH te Beek en Donk.
U kunt het inschrijfformulier opvragen bij ons kantoor via: 0492-661884
LIGGING EN BEREIKBAARHEID
Het perceel is gelegen in het buitengebied van Veghel aan de Driehuizen, tegenover Driehuizen 20.
Het perceel is goed bereikbaar middels een verharde weg, waarbij het perceel te betreden is vanaf de kruising Driehuizen/Het Wuiten.
KADASTER
Het perceel is kadastraal bekend als Gemeente Veghel
Sectie, L, nummer 4163, met een grootte van 4,98.35 ha.
BESTEMMINGSPLAN
Bestemmingsplan:
Het object is gelegen in het bestemmingsplan "Buitengebied" en is vastgesteld door de Raad van Veghel op 22 oktober 2015. Identificatie: NL.IMRO.0860.BU01aa000000BP2013-VG02
Vigerende bestemming:
Het object heeft de bestemming: Agrarisch met waarden
Met aanduiding:
- Waarde - archeologie 3 & 4
- Gebiedsaanduiding: other: dagrecreatie
- Gebiedsaanduiding: other: struweel
- Gebiedsaanduiding: other: ecologische hoofdstructuur
- Gebiedsaanduiding: other: oude akkers
- Gebiedsaanduiding: vrijwaringszone - radar
- Gebiedsaanduiding: reconstructiewetzone - verwevingsgebied 1
Het object is gelegen in het bestemmingsplan "paraplubestemmingsplan archeologie" en is vastgesteld door de Raad van gemeente Meierijstad op 10 april 2025. Identificatie: NL.IMRO.1948.PAR000BP0032022M-VG01
Met aanduiding:
- Waarde - archeologie 7
Per 1 januari 2024 is de Omgevingswet in werking getreden. Bij de inwerkingtreding van de Omgevingswet heeft elke gemeente (voortaan) 1 omgevingsplan van rechtswege voor haar grondgebied. Dit omgevingsplan, met een tijdelijk deel, zet de gemeente stapsgewijs om tot een volledig omgevingsplan. In het tijdelijk omgevingsplan zijn de ruimtelijke regels uit bestaande instrumenten van de wet op ruimtelijk ordening (Wro) opgenomen. Voor zover de gemeente nog geen volledig wijzigingsplan heeft vastgesteld gelden op de gemeentelijk niveau de regels van het geldende bestemmingsplan.
De gemeente waarin het perceel is gelegen heeft geen volledig wijzigingsplan, zodat voor de regels met betrekking tot het gebruik van de grond wordt uitgegaan van het/de laatst vigerende bestemmingsplan(nen).
Disclaimer: er bestaat een kans dat de omzetting en het doorlinken van documenten en regels van vóór 1 januari 2024 naar het Omgevingsloket omissie(s) vertoont/vertonen. De makelaar heeft hierop géén controle uitgeoefend.
BIJZONDERHEDEN
- Het perceel kan worden beregend via een geregistreerde beregeningsput, aangesloten op een automatische pomp met ondergrondse leiding en veertien afzonderlijke hydranten, elk voorzien van een automatische klep en Fersil UV koppelingen. Deze leiding loopt in de linker lengterichting over het perceel.
De eigenaar en de huidige gebruiker zullen meewerken aan de overdracht van de registratie van de beregeningsput. Daarnaast is er een eigen elektriciteitsaansluiting aanwezig ten behoeve van de beregening.
De koper zal samen met de eigenaar/gebruiker van het aansluitend buurtperceel (Veghel, sectie L, nummer 4163), zullen na gunning in overleg treden inzake het gedeelde gebruik van de ondergrondse leiding.
- Het perceel is gedeeltelijk peil gestuurd gedraineerd.
- De mestplaatsingsruimte 2026 komt ten goede van koper.
- Het jachtrecht is verhuurd.
- Bouwplan:
2022: aardbeiplanten
2023: aardbeiplanten
2024: grasland
2025: aardbeiplanten
2026: braak
- Koper wordt geacht zichzelf op de hoogte te hebben gesteld betreffende het 7e en eventueel aankomende 8e actieprogramma nitraatrichtlijn.
- Koper zal het gekochte perceel, feitelijk kunnen aanvaarden op datum juridische levering, zijnde 8 mei 2026.
- Alle hierbij vermelde gegevens zijn naar beste kennis en wetenschap en te goeder trouw door ons weergegeven. Mocht nadien blijken dat er afwijkingen zijn, dan kan men zich hierop niet beroepen. Aan de inhoud van deze documentatie kunnen derhalve geen rechten worden ontleend.
BIJZONDERE INSCHRIJVINGSVOORWAARDEN
Voor de bijzondere inschrijvingsvoorwaarden verwijs ik u graag door naar de brochure.
Kenmerken
Overdracht
- Vraagprijs
- Verkoop bij inschrijving
- Aangeboden sinds
-
- Status
- Beschikbaar
- Aanvaarding
- In overleg
Bouw
- Hoofdfunctie
- Losse grond
Oppervlakten
- Type land
- Bouwland
Kadastrale gegevens
-
VEGHEL L 4163
- Kadastrale kaart
- Eigendomssituatie
- 4 ha 98 a 35 ca (geheel perceel)
Foto's