Omschrijving
Op een uitstekend bereikbare locatie op bedrijventerrein Nieuwland te Alblasserdam wordt dit zeer duurzame en hoogwaardig afgewerkte bedrijfsgebouw te huur aangeboden. Het pand combineert efficiëntie, representativiteit en toekomstbestendigheid op topniveau.
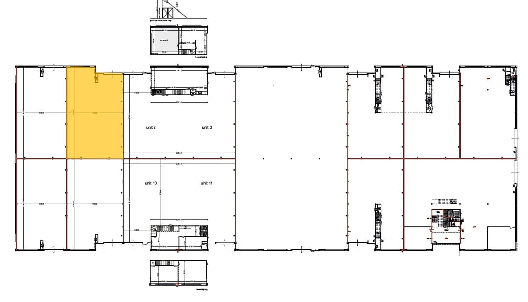
De bedrijfsruimte beschikt over een vrije hoogte van circa 7 meter onder staal en is voorzien van elektrisch bedienbare overheaddeur en separate loopdeur. De bedrijfsruimte heeft een vloerbelasting van 4.000 kg/m². De ruimte is deels uitgerust met professionele stellingen en verkeert in uitstekende onderhoudsstaat. Aan de voorzijde bevinden zich 4 parkeerplaatsen op eigen terrein. Het terrein is omheind door middel van hekwerk en voorzien van elektrisch bedienbare schuifpoort.
Dankzij de uitstekende onderhoudsstaat en energiezuinige voorzieningen (18 zonnepanelen) is dit object volledig toekomstbestendig en direct instapklaar. Een ideaal pand voor ondernemers die duurzaamheid, representativiteit en functionaliteit willen combineren!
LOCATIE
Het bedrijfspand is gelegen op het hoogwaardige bedrijventerrein Nieuwland. Dit bedrijventerrein bevindt zich op de grens tussen Alblasserdam en Papendrecht, heeft een moderne en eigentijdse uitstraling en beschikt over een goede infrastructuur. Het Container Transferium Rotterdam-West bevindt zich in de directe nabijheid. Door de ligging op korte afstand van de op- en afritten van de rijksweg A15 (Rotterdam – Gorinchem – Nijmegen) heeft het bedrijfspand een uitstekende bereikbaarheid. Tevens bevinden zich op circa 5 minuten loopafstand bushalten met verbindingen naar Rotterdam en Dordrecht.
AFMETINGEN
ca. 216 m2.
PARKEERPLAATSEN
4 stuks.
BOUWJAAR
2017 (BAG-viewer).
BESTEMMING
In Herstelplan Alblasserdam (onherroepelijk, vastgesteld d.d. 31 maart 2015) heeft de kantoorunit de bestemming ‘Bedrijventerrein-1’ met nadere functieaanduiding ‘bedrijf tot en met categorie 4.1’.
BOUWAARD
- onderheide fundering;
- betonnen begane grond en verdiepingsvloeren;
- gevels kantoor: metselwerk gevels;
- gevels bedrijfsruimte: geïsoleerde semitransparante beplating;
- unit-scheidende wanden uitgevoerd in kalkzandsteen;
- geïsoleerde staaldak met bitumineuze dakbedekking;
- meterkast met aansluiting gas, water en elektra;
- brandblusmiddelen;
- zonnepanelen: 18 stuks;
- meterkast met aansluiting gas, water en elektra (3 x 25A).
VOORZIENINGEN
Bedrijfsruimte:
- betonnen vloer met een vloerbelasting van 4.000 kg/m²;
- vrije hoogte onder staalconstructie ca. 7,00 meter;
- elektrisch bedienbare overheaddeur van ca. 4,00 x 4,20 meter;
- separate loopdeur;
- daglichttoetreding door ramen in voorgevel en door lichtdoorlatende gevelelementen;
- stellingen (ter overname).
RECLAME
Uitsluitend in overleg met en na goedkeuring van eigenaar/verhuurder.
HUURPRIJS
€ 2.750,- per maand exclusief servicekosten exclusief BTW.
SERVICEKOSTEN
Een voorschot van € 100,- exclusief BTW ten behoeve van onderstaande leveringen en diensten:
- periodiek onderhoud van de aanwezige technische installaties;
- periodiek onderhoud en keuring overheaddeuren;
- periodiek onderhoud en keuring brandblusmiddelen;
- periodieke dakinspectie;
- periodieke glasbewassing;
- periodiek onderhoud van buitenterrein;
- periodiek onderhoud van toegangspoort;
- 5% administratiekosten.
Een nader te bepalen voorschot ten behoeve van vastrecht en de levering van gas, water en elektra.
HUURPERIODE
5 + 5 jaar.
HUURBETALING
Per maand vooruit.
HUURVERHOGING
Jaarlijks, voor het eerst 1 jaar na huuringangsdatum, conform de wijziging van het maandprijsindexcijfer volgens de Consumentenprijsindex (CPI), reeks CPI-alle huishoudens (2015 = 100), gepubliceerd door het Centraal Bureau voor de Statistiek (CBS).
RECLAMEVOERING
Reclamevoering uitsluitend in overleg met en na goedkeuring van verhuurder.
HUUROVEREENKOMST
De te sluiten huurovereenkomst zal worden opgemaakt op basis van ROZ-model (Raad van Onroerende Zaken) kantoorruimte en andere bedrijfsruimte in de zin van artikel 7:230a BW, vastgesteld 05-03-2025 met bijbehorende Algemene Bepalingen gedeponeerd bij de griffie van de Rechtbank te Den Haag en op 03-06-2025 aldaar ingeschreven onder nummer 11/2025 en tevens gepubliceerd op de website
ZEKERHEIDSSTELLING
Bankgarantie/waarborgsom ter grootte van een kwartaalverplichting huur inclusief BTW.
OMZETBELASTING
De huurprijs wordt belast met de geldende omzetbelasting. Huurder en verhuurder opteren voor een BTW-belaste verhuur. Huurder verklaart door ondertekening van de huurovereenkomst dat hij het gehuurde blijvend gebruikt of blijvend laat gebruiken voor doeleinden waarvoor een volledig of nagenoeg volledig recht op aftrek van omzetbelasting op de voet van artikel 15 van de Wet op de omzetbelasting 1968 bestaat. Indien huurder niet meer voldoet aan dit criterium en/of er geen met omzetbelasting belaste verhuur wordt overeengekomen is huurder naast de huurprijs een door verhuurder nader vast te stellen afzonderlijke vergoeding aan verhuurder verschuldigd, ter compensatie van het nadeel dat verhuurder lijdt dan wel zal lijden, omdat de omzetbelasting op de investeringen en exploitatiekosten van verhuurder niet (meer) aftrekbaar is.
OPLEVERING
In overleg.
INTERESSE?
DKZ Bedrijfshuisvesting B.V.
Ohmweg 57f
2952 BD Alblasserdam
tel. : 085-4839869
e-mail :
Deze informatie is zorgvuldig samengesteld, echter alle genoemde oppervlakte zijn indicatief en aan de hierbij verstrekte gegevens kunnen geen rechten worden ontleend.
Deze informatie mag niet als een aanbieding of offerte worden beschouwd.
De bedrijfsruimte beschikt over een vrije hoogte van circa 7 meter onder staal en is voorzien van elektrisch bedienbare overheaddeur en separate loopdeur. De bedrijfsruimte heeft een vloerbelasting van 4.000 kg/m². De ruimte is deels uitgerust met professionele stellingen en verkeert in uitstekende onderhoudsstaat. Aan de voorzijde bevinden zich 4 parkeerplaatsen op eigen terrein. Het terrein is omheind door middel van hekwerk en voorzien van elektrisch bedienbare schuifpoort.
Dankzij de uitstekende onderhoudsstaat en energiezuinige voorzieningen (18 zonnepanelen) is dit object volledig toekomstbestendig en direct instapklaar. Een ideaal pand voor ondernemers die duurzaamheid, representativiteit en functionaliteit willen combineren!
LOCATIE
Het bedrijfspand is gelegen op het hoogwaardige bedrijventerrein Nieuwland. Dit bedrijventerrein bevindt zich op de grens tussen Alblasserdam en Papendrecht, heeft een moderne en eigentijdse uitstraling en beschikt over een goede infrastructuur. Het Container Transferium Rotterdam-West bevindt zich in de directe nabijheid. Door de ligging op korte afstand van de op- en afritten van de rijksweg A15 (Rotterdam – Gorinchem – Nijmegen) heeft het bedrijfspand een uitstekende bereikbaarheid. Tevens bevinden zich op circa 5 minuten loopafstand bushalten met verbindingen naar Rotterdam en Dordrecht.
AFMETINGEN
ca. 216 m2.
PARKEERPLAATSEN
4 stuks.
BOUWJAAR
2017 (BAG-viewer).
BESTEMMING
In Herstelplan Alblasserdam (onherroepelijk, vastgesteld d.d. 31 maart 2015) heeft de kantoorunit de bestemming ‘Bedrijventerrein-1’ met nadere functieaanduiding ‘bedrijf tot en met categorie 4.1’.
BOUWAARD
- onderheide fundering;
- betonnen begane grond en verdiepingsvloeren;
- gevels kantoor: metselwerk gevels;
- gevels bedrijfsruimte: geïsoleerde semitransparante beplating;
- unit-scheidende wanden uitgevoerd in kalkzandsteen;
- geïsoleerde staaldak met bitumineuze dakbedekking;
- meterkast met aansluiting gas, water en elektra;
- brandblusmiddelen;
- zonnepanelen: 18 stuks;
- meterkast met aansluiting gas, water en elektra (3 x 25A).
VOORZIENINGEN
Bedrijfsruimte:
- betonnen vloer met een vloerbelasting van 4.000 kg/m²;
- vrije hoogte onder staalconstructie ca. 7,00 meter;
- elektrisch bedienbare overheaddeur van ca. 4,00 x 4,20 meter;
- separate loopdeur;
- daglichttoetreding door ramen in voorgevel en door lichtdoorlatende gevelelementen;
- stellingen (ter overname).
RECLAME
Uitsluitend in overleg met en na goedkeuring van eigenaar/verhuurder.
HUURPRIJS
€ 2.750,- per maand exclusief servicekosten exclusief BTW.
SERVICEKOSTEN
Een voorschot van € 100,- exclusief BTW ten behoeve van onderstaande leveringen en diensten:
- periodiek onderhoud van de aanwezige technische installaties;
- periodiek onderhoud en keuring overheaddeuren;
- periodiek onderhoud en keuring brandblusmiddelen;
- periodieke dakinspectie;
- periodieke glasbewassing;
- periodiek onderhoud van buitenterrein;
- periodiek onderhoud van toegangspoort;
- 5% administratiekosten.
Een nader te bepalen voorschot ten behoeve van vastrecht en de levering van gas, water en elektra.
HUURPERIODE
5 + 5 jaar.
HUURBETALING
Per maand vooruit.
HUURVERHOGING
Jaarlijks, voor het eerst 1 jaar na huuringangsdatum, conform de wijziging van het maandprijsindexcijfer volgens de Consumentenprijsindex (CPI), reeks CPI-alle huishoudens (2015 = 100), gepubliceerd door het Centraal Bureau voor de Statistiek (CBS).
RECLAMEVOERING
Reclamevoering uitsluitend in overleg met en na goedkeuring van verhuurder.
HUUROVEREENKOMST
De te sluiten huurovereenkomst zal worden opgemaakt op basis van ROZ-model (Raad van Onroerende Zaken) kantoorruimte en andere bedrijfsruimte in de zin van artikel 7:230a BW, vastgesteld 05-03-2025 met bijbehorende Algemene Bepalingen gedeponeerd bij de griffie van de Rechtbank te Den Haag en op 03-06-2025 aldaar ingeschreven onder nummer 11/2025 en tevens gepubliceerd op de website
ZEKERHEIDSSTELLING
Bankgarantie/waarborgsom ter grootte van een kwartaalverplichting huur inclusief BTW.
OMZETBELASTING
De huurprijs wordt belast met de geldende omzetbelasting. Huurder en verhuurder opteren voor een BTW-belaste verhuur. Huurder verklaart door ondertekening van de huurovereenkomst dat hij het gehuurde blijvend gebruikt of blijvend laat gebruiken voor doeleinden waarvoor een volledig of nagenoeg volledig recht op aftrek van omzetbelasting op de voet van artikel 15 van de Wet op de omzetbelasting 1968 bestaat. Indien huurder niet meer voldoet aan dit criterium en/of er geen met omzetbelasting belaste verhuur wordt overeengekomen is huurder naast de huurprijs een door verhuurder nader vast te stellen afzonderlijke vergoeding aan verhuurder verschuldigd, ter compensatie van het nadeel dat verhuurder lijdt dan wel zal lijden, omdat de omzetbelasting op de investeringen en exploitatiekosten van verhuurder niet (meer) aftrekbaar is.
OPLEVERING
In overleg.
INTERESSE?
DKZ Bedrijfshuisvesting B.V.
Ohmweg 57f
2952 BD Alblasserdam
tel. : 085-4839869
e-mail :
Deze informatie is zorgvuldig samengesteld, echter alle genoemde oppervlakte zijn indicatief en aan de hierbij verstrekte gegevens kunnen geen rechten worden ontleend.
Deze informatie mag niet als een aanbieding of offerte worden beschouwd.
Kaart
Kaart laden...
Kadastrale grens
Bebouwing
Reistijd
Krijg inzicht in de bereikbaarheid van dit object vanuit bijvoorbeeld een openbaar vervoer station of vanuit een adres.