Donauweg 11-A 1043 AJ Amsterdam
- Nieuw
€ 575.000 v.o.n.
Omschrijving
Layers XL – Ruimte voor groei in The Capital, Amsterdam Sloterdijk
225 hoogwaardige bedrijfsunits in Amsterdam Sloterdijk
In Amsterdam Sloterdijk verrijst The Capital: een uniek en grootschalig bedrijfsverzamelgebouw met 225 bedrijfsunits verdeeld over vier niveaus. Hier komen ondernemers, beleggers en groeiende bedrijven samen in een inspirerende omgeving die werk, ontspanning en ontmoeting combineert.
Of je nu zoekt naar een representatieve bedrijfsruimte, een flexibele werkunit of een interessant beleggingsobject: bij The Capital vind je altijd een unit die past bij jouw ambities.
Layers XL – Ruimte voor groei
Royale bedrijfsunits met uitstraling en bereikbaarheid
De Layers XL-units liggen op de begane grond van The Capital en onderscheiden zich door hun royale maatvoering, hoge vrije hoogte en representatieve uitstraling. Perfect voor ondernemingen in logistiek, lichte productie, creatieve industrie of ambachtelijke sectoren.
Kenmerken
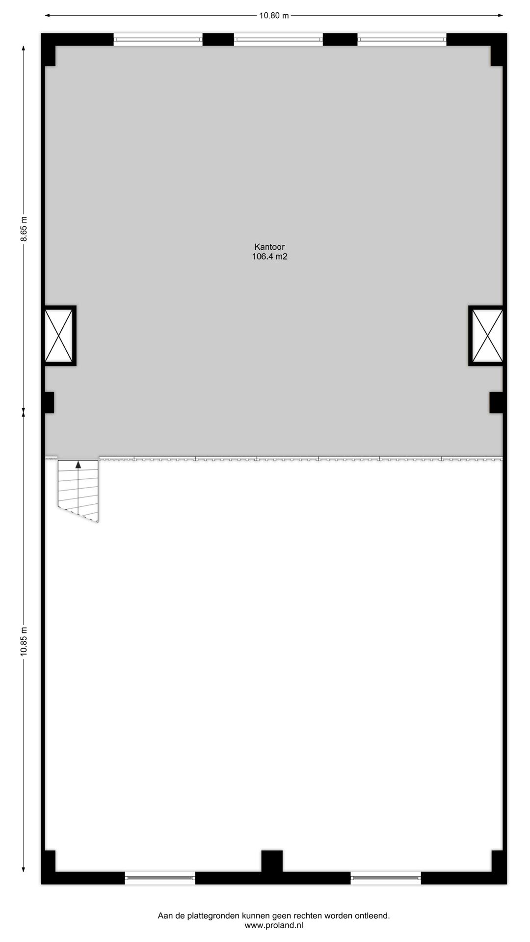
• Vanaf ca. 257 m² (begane grond + halve verdiepingsvloer)
• Vrije hoogte: 7 meter
• Brede elektrische overheaddeur: 4 x 4,2 meter
• 3x80A elektra-aansluiting
• Casco oplevering – flexibel in te delen
• Vanaf € 575.000 v.o.n. excl. btw
Faciliteiten
• Beveiligde toegang met speedgate en camerabewaking
• Personen- en goederenliften
• Eigen parkeerplaatsen voor de deur
• Daktuin en padelbaan, exclusief voor eigenaren
Locatie voordelen
• Direct aan A5 en A10
• 5 minuten lopen van Station Sloterdijk
• 10 minuten rijden naar het centrum van Amsterdam
Notariële afhandeling & betaling
De notariële afhandeling verloopt via Van Benthem & Keulen te Utrecht. Betaling vindt plaats in termijnen: grond, fundering, constructie en oplevering.
Overige informatie
De units worden casco opgeleverd. Vergunningen voor gebruik dienen door koper zelf te worden aangevraagd. Het gebouw wordt gesplitst in appartementsrechten; kopers worden automatisch lid van de VvE.
Layers XL: representatieve ruimte voor ondernemingen met ambitie.
Disclaimer:
Hoewel aan de samenstelling en inhoud van deze omschrijving de grootst mogelijke zorg is besteed, kan de uitgever niet aansprakelijk worden gesteld voor onverhoopte fouten en gebreken, noch kunnen aan de inhoud rechten worden ontleend. De gebruikte afbeeldingen betreffen artist impressions. De uiteindelijke feitelijke situatie kan afwijken ten opzichte van deze artist impressions.
Deze Funda advertentie kan niet worden gezien als een aanbod dat juridisch bindend kan worden geaccepteerd door een geïnteresseerde.
225 hoogwaardige bedrijfsunits in Amsterdam Sloterdijk
In Amsterdam Sloterdijk verrijst The Capital: een uniek en grootschalig bedrijfsverzamelgebouw met 225 bedrijfsunits verdeeld over vier niveaus. Hier komen ondernemers, beleggers en groeiende bedrijven samen in een inspirerende omgeving die werk, ontspanning en ontmoeting combineert.
Of je nu zoekt naar een representatieve bedrijfsruimte, een flexibele werkunit of een interessant beleggingsobject: bij The Capital vind je altijd een unit die past bij jouw ambities.
Layers XL – Ruimte voor groei
Royale bedrijfsunits met uitstraling en bereikbaarheid
De Layers XL-units liggen op de begane grond van The Capital en onderscheiden zich door hun royale maatvoering, hoge vrije hoogte en representatieve uitstraling. Perfect voor ondernemingen in logistiek, lichte productie, creatieve industrie of ambachtelijke sectoren.
Kenmerken
• Vanaf ca. 257 m² (begane grond + halve verdiepingsvloer)
• Vrije hoogte: 7 meter
• Brede elektrische overheaddeur: 4 x 4,2 meter
• 3x80A elektra-aansluiting
• Casco oplevering – flexibel in te delen
• Vanaf € 575.000 v.o.n. excl. btw
Faciliteiten
• Beveiligde toegang met speedgate en camerabewaking
• Personen- en goederenliften
• Eigen parkeerplaatsen voor de deur
• Daktuin en padelbaan, exclusief voor eigenaren
Locatie voordelen
• Direct aan A5 en A10
• 5 minuten lopen van Station Sloterdijk
• 10 minuten rijden naar het centrum van Amsterdam
Notariële afhandeling & betaling
De notariële afhandeling verloopt via Van Benthem & Keulen te Utrecht. Betaling vindt plaats in termijnen: grond, fundering, constructie en oplevering.
Overige informatie
De units worden casco opgeleverd. Vergunningen voor gebruik dienen door koper zelf te worden aangevraagd. Het gebouw wordt gesplitst in appartementsrechten; kopers worden automatisch lid van de VvE.
Layers XL: representatieve ruimte voor ondernemingen met ambitie.
Disclaimer:
Hoewel aan de samenstelling en inhoud van deze omschrijving de grootst mogelijke zorg is besteed, kan de uitgever niet aansprakelijk worden gesteld voor onverhoopte fouten en gebreken, noch kunnen aan de inhoud rechten worden ontleend. De gebruikte afbeeldingen betreffen artist impressions. De uiteindelijke feitelijke situatie kan afwijken ten opzichte van deze artist impressions.
Deze Funda advertentie kan niet worden gezien als een aanbod dat juridisch bindend kan worden geaccepteerd door een geïnteresseerde.
Kenmerken
Overdracht
- Vraagprijs
- € 575.000 vrij op naam
- Aangeboden sinds
-
- Status
- Beschikbaar
- Aanvaarding
- In overleg
Bouw
- Hoofdfunctie
- Bedrijfshal
- Soort bouw
- Bestaande bouw
- Bouwjaar
- 2026
Oppervlakten
- Oppervlakte
- 257 m²
- Bedrijfshal oppervlak
- 257 m²
- Vrije hoogte
- 7 m
Indeling
- Voorzieningen
- Overheaddeuren en betonvloer
Energie
- Energielabel
- Niet verplicht
Omgeving
- Ligging
- Bedrijventerrein en kantorenpark
- Bereikbaarheid
- Bushalte op 500 m tot 1000 m, metrohalte op 500 m tot 1000 m, NS Intercitystation op 500 m tot 1000 m, snelwegafrit op 500 m tot 1000 m en Tramhalte op 500 m tot 1000 m
Foto's