Elementenstraat 14-D 1014 AR Amsterdam
€ 2.250 /mnd
Omschrijving
The Element
Elementenstraat 14 D
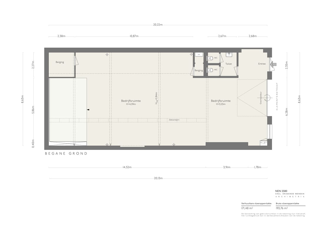
The Element is een zeer nette en representatieve bedrijfsruimte van circa 171 m² VVO gelegen op Bedrijventerrein Sloterdijk. De ruimte op de begane grond is voorzien van een elektrische overheaddeur, waardoor goederen eenvoudig kunnen worden ontvangen en verzonden.
Kenmerkend voor deze moderne bedrijfsruimte is de sheddak met grote ramen waardoor de ruimte, over de gehele diepte, van voldoende daglichttoetreding is voorzien. Het opleveringsniveau omvat een betonvloer en basisverlichting. De omgeving biedt een dynamische werksfeer met goede bereikbaarheid en voldoende parkeergelegenheid. The Element leent zich uitstekend als werk- en productieruimte voor een creatieve ondernemer dan wel voor opslag.
Gebouw
De bedrijfsruimte maakt onderdeel uit van de bestaande bedrijfshallen (uit 1980) die door Minerva Development zijn gesplitst en gerenoveerd. Het is een voormalig onderdeel van de koekjesfabriek van Lotus Bakeries.
Buurt + hotspots
The Element is gelegen op bedrijventerrein Sloterdijk. Sloterdijk I is een terrein met bedrijven in Amsterdam West. Het ligt rond de Transformatorweg en binnen de ring van Amsterdam. Op de grens van Sloterdijk I en het Westelijk Havengebied ligt metrostation Isolatorweg. Dit terrein verandert de komende jaren stap voor stap in een dynamische en duurzame wijk met bedrijven, woningen, horeca en voorzieningen om te ontspannen. In de directe omgeving zijn AMAZE Amsterdam gevestigd, Hotel ibis Amsterdam City West, The Padellers Amsterdam-West en Beest Boulder Het Lab Amsterdam.
Bereikbaarheid
De bedrijfsruimte is uitstekend bereikbaar met zowel eigen vervoer als met openbaar vervoer. Dit vanwege de ligging nabij de ringweg A-10. Via de Transformatorweg (S-102) is binnen twee minuten afrit 2 Amsterdam-Sloterdijk bereikbaar. Op loopafstand in metrostation Isolatorweg gelegen waardoor een directe verbinding met Amsterdam Centraal Station mogelijk is. Op acht minuten fietsafstand in Station Amsterdam Sloterdijk gelegen waar diverse bus, metro en trein verbindingen mogelijk zijn.
Parkeergelegenheid
Parkeren is mogelijk op de openbare weg middels betaling of een vergunningensysteem. Informatie over voorwaarden en mogelijkheden voor verkrijging van een (bedrijfs-) vergunning en eventuele wachttijd is op te vragen via de gemeente Amsterdam.
Huurtermijn
Vijf jaar met aansluitende verlengingsperioden van vijf jaar.
Bijzonderheden
• moderne bedrijfsruimte
• overheaddeur
• sheddak met grote ramen
• westelijk Havengebied
• goede bereikbaarheid
Elementenstraat 14 D
The Element is een zeer nette en representatieve bedrijfsruimte van circa 171 m² VVO gelegen op Bedrijventerrein Sloterdijk. De ruimte op de begane grond is voorzien van een elektrische overheaddeur, waardoor goederen eenvoudig kunnen worden ontvangen en verzonden.
Kenmerkend voor deze moderne bedrijfsruimte is de sheddak met grote ramen waardoor de ruimte, over de gehele diepte, van voldoende daglichttoetreding is voorzien. Het opleveringsniveau omvat een betonvloer en basisverlichting. De omgeving biedt een dynamische werksfeer met goede bereikbaarheid en voldoende parkeergelegenheid. The Element leent zich uitstekend als werk- en productieruimte voor een creatieve ondernemer dan wel voor opslag.
Gebouw
De bedrijfsruimte maakt onderdeel uit van de bestaande bedrijfshallen (uit 1980) die door Minerva Development zijn gesplitst en gerenoveerd. Het is een voormalig onderdeel van de koekjesfabriek van Lotus Bakeries.
Buurt + hotspots
The Element is gelegen op bedrijventerrein Sloterdijk. Sloterdijk I is een terrein met bedrijven in Amsterdam West. Het ligt rond de Transformatorweg en binnen de ring van Amsterdam. Op de grens van Sloterdijk I en het Westelijk Havengebied ligt metrostation Isolatorweg. Dit terrein verandert de komende jaren stap voor stap in een dynamische en duurzame wijk met bedrijven, woningen, horeca en voorzieningen om te ontspannen. In de directe omgeving zijn AMAZE Amsterdam gevestigd, Hotel ibis Amsterdam City West, The Padellers Amsterdam-West en Beest Boulder Het Lab Amsterdam.
Bereikbaarheid
De bedrijfsruimte is uitstekend bereikbaar met zowel eigen vervoer als met openbaar vervoer. Dit vanwege de ligging nabij de ringweg A-10. Via de Transformatorweg (S-102) is binnen twee minuten afrit 2 Amsterdam-Sloterdijk bereikbaar. Op loopafstand in metrostation Isolatorweg gelegen waardoor een directe verbinding met Amsterdam Centraal Station mogelijk is. Op acht minuten fietsafstand in Station Amsterdam Sloterdijk gelegen waar diverse bus, metro en trein verbindingen mogelijk zijn.
Parkeergelegenheid
Parkeren is mogelijk op de openbare weg middels betaling of een vergunningensysteem. Informatie over voorwaarden en mogelijkheden voor verkrijging van een (bedrijfs-) vergunning en eventuele wachttijd is op te vragen via de gemeente Amsterdam.
Huurtermijn
Vijf jaar met aansluitende verlengingsperioden van vijf jaar.
Bijzonderheden
• moderne bedrijfsruimte
• overheaddeur
• sheddak met grote ramen
• westelijk Havengebied
• goede bereikbaarheid
Kenmerken
Overdracht
- Huurprijs
- € 2.250 per maand
- Aangeboden sinds
-
- Status
- Beschikbaar
- Aanvaarding
- Per direct beschikbaar
Bouw
- Hoofdfunctie
- Bedrijfshal
- Soort bouw
- Bestaande bouw
- Bouwjaar
- 1980
Oppervlakten
- Oppervlakte
- 171 m²
- Bedrijfshal oppervlak
- 171 m²
Indeling
- Voorzieningen
- Overheaddeuren, betonvloer, toilet en pantry
Energie
- Energielabel
- Niet beschikbaar
Omgeving
- Ligging
- Bedrijventerrein, kantorenpark en stationslocatie
NVM makelaar
Foto's