Nieuwendammerdijk 536-B 1023 BX Amsterdam
€ 2.500.000 k.k.
Omschrijving
Nieuwendammerdijk 536 B - F
De Waterglasfabriek
Aan de Nieuwendammerdijk in Amsterdam Noord wordt de voormalige opslagloods voor waterglasfabriek Gembo met buitenterrein te koop aangeboden. Het bedrijfsgebouw is totaal 1.499 m² BVO. Circa 505 m² bedrijfsruimte op de eerste verdieping is leeg en vrij van huur en dus ideaal voor een eigenaar gebruiker. Bijzonder aan deze ruimte is de aanwezigheid van een goederenlift, de vrije hoogte tot 6,3 meter en de dakconstructie met ramen aan de bovenzijde. Genoeg licht en ruimte om te kunnen ondernemen met uitzicht op het IJ.
Het bedrijfsgebouw is gelegen aan open vaarwater met directe verbinding naar het IJ. Het afsluitbare buitenterrein van circa 265 m² voorziet ruim in de behoefte voor parkeren of opslag. Thans is de voormalige fabrieksruimte aan drie bedrijven verhuurd en bevat een gedeelte leegstand, zoals beschreven, die opnieuw verhuurd zou kunnen worden of zelf gebruikt zou kunnen worden. Het bedrijfsgebouw is gelegen op een kavel van 1.045 m² op erfpachtgrond, is omstreeks 1954 gebouwd en voor het laatst in 2002 grootschalig gerenoveerd.
Bijzonder aan dit industriële en robuuste gebouw is de indeling. Op de begane grond zijn twee (verhuurde) bedrijfsruimtes met overheaddeuren gelegen en via deze ruimtes is er toegang tot de kade van bijna 19 meter aan open vaarwater. Direct hierboven is de leegstaande bedrijfsruimte. In de naastgelegen voormalige toren van de fabriek zijn vier verdiepingsvloeren ingebouwd waar (deels verhuurde) kantoorruimte is gecreëerd. De kantoortoren biedt een prachtig uitzicht op het IJ en Amsterdam Noord.
Naast gebruik in huidige functie, beschikt het object over ontwikkelingspotentie. In de toekomst is er op dit bedrijventerrein eventueel mogelijkheid voor de transformatie naar een gemengd woon-werkgebied. Het Gembo-terrein, waarvan de Nieuwendammerdijk 536 B - F in Amsterdam deel van uit maakt, heeft door de gunstige ligging aan het IJ de potentie om een fantastische locatie te worden voor wonen, werken en recreëren.
Nieuwendammerdijk 536 A
Het naastgelegen bedrijfsgebouw op nummer 536 A wordt eveneens te koop aangeboden. Samen omvatten deze gebouwen circa 2.700 m² BVO bedrijfsruimte gelegen op een totale kavel oppervlakte van 1.765 m².
Historie
Het bedrijfsgebouw is gebouwd in 1954 als voormalige opslagloods voor de waterglasfabriek Gembo. In de loods was een kraanbaan gesitueerd met ondersteuningen in de langsgevels en in het midden van de hal. De opslagloods werd gebruikt voor de opslag van zand en soda. De aanvoer van het zand en soda ging per vrachtschip en werd via de achterkant door de kraan het pand ingebracht. In de jaren ’80 sloot de Gembo fabriek. De huidige eigenaar heeft in 2002 de voormalige fabriek grootschalig verbouwd waarbij een verdiepingsvloer is ingebouwd in de loods en waarbij in de voormalige toren van de opslagloods vier verdiepingsvloeren zijn ingebouwd. De laatste jaren heeft de voormalige fabrieksruimte dienst gedaan als autogarage, opslagruimte en kantoor-/showroomruimte.
Indeling
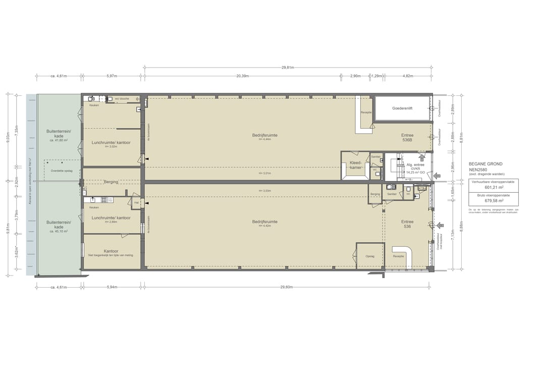
Het uit rode bakstenen opgetrokken fabrieksgebouw in verdeeld in diverse bedrijfsruimten. Op de begane grond (links) is Garagebedrijf Oost gevestigd en aan de rechterzijde is op de begane grond The Big Lab Sportcentrum gevestigd (achter de middelste overhead deur). Helemaal aan de rechterkant is achter de overheaddeur een goederenlift gelegen welke verbonden is met de grote bedrijfsruimte op de eerste verdieping (deze ruimte is leeg en vrij van huur of gebruik). Deze ruimte is bijzonder door de vrije hoogte van maar liefst 6,3 meter, de dakconstructie met ramen aan de bovenzijde en de scheidingswanden van staal en glas aan de achterzijde van de ruimte. De hoge kantoortoren is toegankelijk via een eigen entree. Het trappenhuis leidt tot de kantoorruimten (deels verhuurd) die zijn gelegen in de hoge kantorentoren waar vandaan een prachtig uitzicht is op het IJ en Amsterdam Noord.
Buitenterrein
Het (afgesloten) buitenterrein is toegankelijk via een poort aan de zijde van de Nieuwendammerdijk. Het terrein is circa 265 m² groot. Via twee overheaddeuren is er toegang mogelijk tot het bedrijfsgebouw zelf. Daarnaast is vanaf het buitenterrein de goederenlift bereikbaar. Het terrein is geschikt om te laden en lossen of om meerdere auto’s te parkeren. Aan de achterzijde van het bedrijfsgebouw ligt een buitenterrein van circa 85 m² groot met kade van bijna 19 meter en is gelegen aan open vaarwater met directe verbinding met het IJ.
Herontwikkelingsmogelijkheid
Het Gembo-terrein, waarvan de Nieuwendammerdijk 536 B - F in Amsterdam deel van uit maakt, is één van de zes bedrijventerreinen in Amsterdam-Noord waar een (mogelijke) transformatie naar een gemengd woon-werkgebied speelt. Het Gembo-terrein en de naastgelegen Oranjewerf hebben door de gunstige ligging aan het IJ als gebied de potentie als locatie voor wonen, werken en recreëren. Op dit moment is de Oranjewerf samen met een aantal percelen op het Gembo-terrein eigendom van één erfpachter. Deze partij heeft de gemeente benaderd voor toekomstige ontwikkeling van het gebied. Echter de gemeente heeft voorlopig nog geen besluitvorming genomen om de eerste stap van de verkenning van gebiedsontwikkeling af te ronden omdat de gemeente prioriteiten moet stellen.
Buurt + hotspots
Het bedrijfsgebouw ligt aan de kop van het (voormalige) Gembo-terrein (ook wel bekend als industrieterrein Noord 9). Op het terrein bevinden zich diverse kleinschalige bedrijven. Aan de overzijde van het insteekkanaal is de Oranjewerf. De Oranjewerf zal in de toekomst worden ontwikkeld tot woon/werkgebied met veel openbare voorzieningen. Het groengebied tussen het Gembo-terrein en de Nieuwendammerdijk biedt een mooi en rustig uitzicht op de fraaie oude dijkhuizen. Het historisch centrum van Nieuwendam ligt bij de sluis. Vanaf het terras van café ’t Sluisje vaart in de zomer de IJ-buurtveer naar het Centraal Station.
De Nieuwendammerdijk zelf is een van de meest pittoreske en historische straten in de stad. Het is een lange dijk die zich slingert door het dorpse Nieuwendam, een wijk met een rustige, bijna dorpachtige sfeer, ondanks de nabijheid van de drukte van Amsterdam. De omgeving kenmerkt zich door een nautische sfeer, mede door de nabijheid van het water en de geschiedenis als scheepsbouwlocatie.
Bereikbaarheid
Het bedrijfsgebouw is uitstekend bereikbaar met eigen vervoer. Vanaf de ringweg A-10 (afslag S115) is via de Zuiderzeeweg binnen enkele minuten de bedrijfsruimte te bereiken. Aan de doorgaande IJdoornlaan is tevens de bushalte voor de lijnen 37 (van Amstelstation naar Noord) en 245. De pont van het Centraal Station naar het IJplein/Meeuwenlaan maakt de toegankelijkheid per fiets ook eenvoudig.
Parkeergelegenheid
Bij het verkochte hoort een afsluitbaar buitenterrein van circa 265 m² waar voldoende ruimte is voor het parkeren van auto’s.
Het parkeren van auto's is tevens mogelijk op de openbare weg middels betaling of een vergunningensysteem. Informatie over voorwaarden en mogelijkheden voor verkrijging van een (bedrijfs-) vergunning en eventuele wachttijd is op te vragen via de gemeente Amsterdam.
Bijzonderheden
• rauw en industrieel fabrieksgebouw
• direct gelegen aan vaarwater inclusief kade van bijna 19 meter
• afgesloten buitenterrein met voldoende parkeermogelijkheid
• ontwikkelingspotentie
• circa 505 m² bedrijfsruimte beschikbaar voor eigen gebruik
• gedeeltelijk verhuurd, actuele huuropbrengst € 66.480,- per jaar
De Waterglasfabriek
Aan de Nieuwendammerdijk in Amsterdam Noord wordt de voormalige opslagloods voor waterglasfabriek Gembo met buitenterrein te koop aangeboden. Het bedrijfsgebouw is totaal 1.499 m² BVO. Circa 505 m² bedrijfsruimte op de eerste verdieping is leeg en vrij van huur en dus ideaal voor een eigenaar gebruiker. Bijzonder aan deze ruimte is de aanwezigheid van een goederenlift, de vrije hoogte tot 6,3 meter en de dakconstructie met ramen aan de bovenzijde. Genoeg licht en ruimte om te kunnen ondernemen met uitzicht op het IJ.
Het bedrijfsgebouw is gelegen aan open vaarwater met directe verbinding naar het IJ. Het afsluitbare buitenterrein van circa 265 m² voorziet ruim in de behoefte voor parkeren of opslag. Thans is de voormalige fabrieksruimte aan drie bedrijven verhuurd en bevat een gedeelte leegstand, zoals beschreven, die opnieuw verhuurd zou kunnen worden of zelf gebruikt zou kunnen worden. Het bedrijfsgebouw is gelegen op een kavel van 1.045 m² op erfpachtgrond, is omstreeks 1954 gebouwd en voor het laatst in 2002 grootschalig gerenoveerd.
Bijzonder aan dit industriële en robuuste gebouw is de indeling. Op de begane grond zijn twee (verhuurde) bedrijfsruimtes met overheaddeuren gelegen en via deze ruimtes is er toegang tot de kade van bijna 19 meter aan open vaarwater. Direct hierboven is de leegstaande bedrijfsruimte. In de naastgelegen voormalige toren van de fabriek zijn vier verdiepingsvloeren ingebouwd waar (deels verhuurde) kantoorruimte is gecreëerd. De kantoortoren biedt een prachtig uitzicht op het IJ en Amsterdam Noord.
Naast gebruik in huidige functie, beschikt het object over ontwikkelingspotentie. In de toekomst is er op dit bedrijventerrein eventueel mogelijkheid voor de transformatie naar een gemengd woon-werkgebied. Het Gembo-terrein, waarvan de Nieuwendammerdijk 536 B - F in Amsterdam deel van uit maakt, heeft door de gunstige ligging aan het IJ de potentie om een fantastische locatie te worden voor wonen, werken en recreëren.
Nieuwendammerdijk 536 A
Het naastgelegen bedrijfsgebouw op nummer 536 A wordt eveneens te koop aangeboden. Samen omvatten deze gebouwen circa 2.700 m² BVO bedrijfsruimte gelegen op een totale kavel oppervlakte van 1.765 m².
Historie
Het bedrijfsgebouw is gebouwd in 1954 als voormalige opslagloods voor de waterglasfabriek Gembo. In de loods was een kraanbaan gesitueerd met ondersteuningen in de langsgevels en in het midden van de hal. De opslagloods werd gebruikt voor de opslag van zand en soda. De aanvoer van het zand en soda ging per vrachtschip en werd via de achterkant door de kraan het pand ingebracht. In de jaren ’80 sloot de Gembo fabriek. De huidige eigenaar heeft in 2002 de voormalige fabriek grootschalig verbouwd waarbij een verdiepingsvloer is ingebouwd in de loods en waarbij in de voormalige toren van de opslagloods vier verdiepingsvloeren zijn ingebouwd. De laatste jaren heeft de voormalige fabrieksruimte dienst gedaan als autogarage, opslagruimte en kantoor-/showroomruimte.
Indeling
Het uit rode bakstenen opgetrokken fabrieksgebouw in verdeeld in diverse bedrijfsruimten. Op de begane grond (links) is Garagebedrijf Oost gevestigd en aan de rechterzijde is op de begane grond The Big Lab Sportcentrum gevestigd (achter de middelste overhead deur). Helemaal aan de rechterkant is achter de overheaddeur een goederenlift gelegen welke verbonden is met de grote bedrijfsruimte op de eerste verdieping (deze ruimte is leeg en vrij van huur of gebruik). Deze ruimte is bijzonder door de vrije hoogte van maar liefst 6,3 meter, de dakconstructie met ramen aan de bovenzijde en de scheidingswanden van staal en glas aan de achterzijde van de ruimte. De hoge kantoortoren is toegankelijk via een eigen entree. Het trappenhuis leidt tot de kantoorruimten (deels verhuurd) die zijn gelegen in de hoge kantorentoren waar vandaan een prachtig uitzicht is op het IJ en Amsterdam Noord.
Buitenterrein
Het (afgesloten) buitenterrein is toegankelijk via een poort aan de zijde van de Nieuwendammerdijk. Het terrein is circa 265 m² groot. Via twee overheaddeuren is er toegang mogelijk tot het bedrijfsgebouw zelf. Daarnaast is vanaf het buitenterrein de goederenlift bereikbaar. Het terrein is geschikt om te laden en lossen of om meerdere auto’s te parkeren. Aan de achterzijde van het bedrijfsgebouw ligt een buitenterrein van circa 85 m² groot met kade van bijna 19 meter en is gelegen aan open vaarwater met directe verbinding met het IJ.
Herontwikkelingsmogelijkheid
Het Gembo-terrein, waarvan de Nieuwendammerdijk 536 B - F in Amsterdam deel van uit maakt, is één van de zes bedrijventerreinen in Amsterdam-Noord waar een (mogelijke) transformatie naar een gemengd woon-werkgebied speelt. Het Gembo-terrein en de naastgelegen Oranjewerf hebben door de gunstige ligging aan het IJ als gebied de potentie als locatie voor wonen, werken en recreëren. Op dit moment is de Oranjewerf samen met een aantal percelen op het Gembo-terrein eigendom van één erfpachter. Deze partij heeft de gemeente benaderd voor toekomstige ontwikkeling van het gebied. Echter de gemeente heeft voorlopig nog geen besluitvorming genomen om de eerste stap van de verkenning van gebiedsontwikkeling af te ronden omdat de gemeente prioriteiten moet stellen.
Buurt + hotspots
Het bedrijfsgebouw ligt aan de kop van het (voormalige) Gembo-terrein (ook wel bekend als industrieterrein Noord 9). Op het terrein bevinden zich diverse kleinschalige bedrijven. Aan de overzijde van het insteekkanaal is de Oranjewerf. De Oranjewerf zal in de toekomst worden ontwikkeld tot woon/werkgebied met veel openbare voorzieningen. Het groengebied tussen het Gembo-terrein en de Nieuwendammerdijk biedt een mooi en rustig uitzicht op de fraaie oude dijkhuizen. Het historisch centrum van Nieuwendam ligt bij de sluis. Vanaf het terras van café ’t Sluisje vaart in de zomer de IJ-buurtveer naar het Centraal Station.
De Nieuwendammerdijk zelf is een van de meest pittoreske en historische straten in de stad. Het is een lange dijk die zich slingert door het dorpse Nieuwendam, een wijk met een rustige, bijna dorpachtige sfeer, ondanks de nabijheid van de drukte van Amsterdam. De omgeving kenmerkt zich door een nautische sfeer, mede door de nabijheid van het water en de geschiedenis als scheepsbouwlocatie.
Bereikbaarheid
Het bedrijfsgebouw is uitstekend bereikbaar met eigen vervoer. Vanaf de ringweg A-10 (afslag S115) is via de Zuiderzeeweg binnen enkele minuten de bedrijfsruimte te bereiken. Aan de doorgaande IJdoornlaan is tevens de bushalte voor de lijnen 37 (van Amstelstation naar Noord) en 245. De pont van het Centraal Station naar het IJplein/Meeuwenlaan maakt de toegankelijkheid per fiets ook eenvoudig.
Parkeergelegenheid
Bij het verkochte hoort een afsluitbaar buitenterrein van circa 265 m² waar voldoende ruimte is voor het parkeren van auto’s.
Het parkeren van auto's is tevens mogelijk op de openbare weg middels betaling of een vergunningensysteem. Informatie over voorwaarden en mogelijkheden voor verkrijging van een (bedrijfs-) vergunning en eventuele wachttijd is op te vragen via de gemeente Amsterdam.
Bijzonderheden
• rauw en industrieel fabrieksgebouw
• direct gelegen aan vaarwater inclusief kade van bijna 19 meter
• afgesloten buitenterrein met voldoende parkeermogelijkheid
• ontwikkelingspotentie
• circa 505 m² bedrijfsruimte beschikbaar voor eigen gebruik
• gedeeltelijk verhuurd, actuele huuropbrengst € 66.480,- per jaar
Kenmerken
Overdracht
- Vraagprijs
- € 2.500.000 kosten koper
- Oorspronkelijke vraagprijs
- € 2.750.000 kosten koper
- Aangeboden sinds
-
- Status
- Beschikbaar
- Aanvaarding
- In overleg
Bouw
- Hoofdfunctie
- Bedrijfshal
- Mogelijke functie(s)
- Belegging
- Soort bouw
- Bestaande bouw
- Bouwperiode
- 1945-1959
Oppervlakten
- Oppervlakte
- 1.499 m²
- Bedrijfshal oppervlak
- 1.499 m²
- Terrein oppervlak
- 350 m²
- Vrije hoogte
- 6,3 m
- Perceel
- 1.499 m²
Indeling
- Voorzieningen
- Overheaddeuren, betonvloer, heater, toilet en pantry
Energie
- Energielabel
- A+
Omgeving
- Ligging
- Bedrijventerrein, havengebied en aan vaarwater
Beleggingsobject
- Bruto huuropbrengst
- € 66.480 per jaar (21% BTW van toepassing)
- Huurders
- 3 huurders
- Verhuurd
- 1.302 m²
NVM makelaar
Foto's