
- Donderdag 16 oktober van 16:00 tot 18:00
Omschrijving
-------------- INFORMATIEMIDDAG DONDERDAG 16 OKTOBER VAN 16:00 - 18:00 UUR -------------------
Niet voor niets spreken ze in Baarn over ‘Vorstelijk Baarn’. Een uitstekende plek dus om je als ondernemer te vestigen!
De units van Baarn 01 zijn te koop vanaf € 185.000,- v.o.n. ex. BTW. Wees er dus snel bij!
Units 3 t/m 9 € 249.500,- v.o.n. exclusief BTW
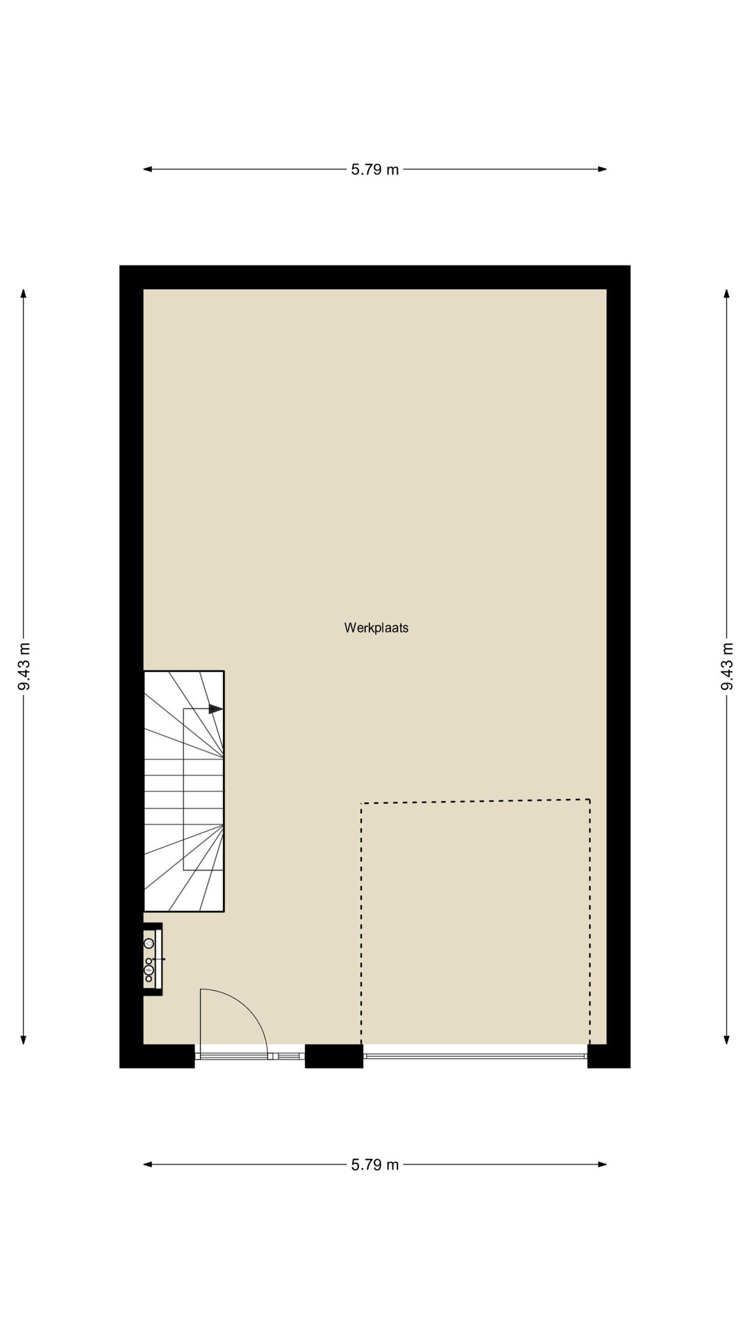
Deze units kennen een vloeroppervlakte ter grootte van circa 120 m² verdeeld over begane grond en één verdieping alsmede 2 parkeerplaatsen.
Zoals in alle Unity Units bouwen ze ook hier alleen met hoogwaardige materialen conform de nieuwste bouwbesluitnormen. Zo zorgen ze ervoor dat de units zowel aan de binnen- als buitenzijde onderhoudsvriendelijk en energiezuinig zijn.
Natuurlijk ben je helemaal vrij om -binnen de kaders van het vigerende bestemmingsplan- je unit naar eigen wens in te delen en af te werken.
Alle beschikbare opties in het project;
Unit 1 € 335.000,- v.o.n. exclusief BTW
Deze kopunit kent een vloeroppervlakte van 195 m² verdeeld over begane grond en twee verdiepingen alsmede 4 parkeerplaatsen.
Units 2 € 325.000,- en 31 € 310.000,- v.o.n. exclusief BTW
Deze kopunits kennen een vloeroppervlakte ter grootte van circa 183 m² verdeeld over begane grond en twee verdiepingen alsmede 3 parkeerplaatsen.
Units 3 t/m 9 en 32 t/m 38 € 249.500,- v.o.n. exclusief BTW
Deze units kennen een vloeroppervlakte ter grootte van circa 120 m² verdeeld over begane grond en verdieping alsmede 2 parkeerplaatsen.
Unit 10 € 249.500,- v.o.n. exclusief BTW
Deze hoekunit kent een vloeroppervlakte van 128 m² verdeeld over begane grond en verdieping alsmede 2 parkeerplaatsen.
Unit 11 € 285.000,- v.o.n. exclusief BTW
Deze kopunit kent een vloeroppervlakte van 146 m² verdeeld over begane grond en twee verdiepingen alsmede 3 parkeerplaatsen.
Unit 12 € 257.500,- en 22 € 250.000,- v.o.n. exclusief BTW
Deze kopunits kennen een vloeroppervlakte ter grootte van circa 137 m² verdeeld over begane grond en twee verdiepingen alsmede 1 parkeerplaats.
Units 13 t/m 19 en 23 t/m 29 € 199.500,- v.o.n. exclusief BTW
Deze units kennen een vloeroppervlakte ter grootte van circa 90 m² verdeeld over begane grond en verdieping alsmede 1 parkeerplaats.
Unit 20 € 212.500,- v.o.n. exclusief BTW
Deze hoekunit kent een vloeroppervlakte van 96 m² verdeeld over begane grond en verdieping alsmede 2 parkeerplaatsen.
Unit 21 € 285.000,- v.o.n. exclusief BTW
Deze kopunit kent een vloeroppervlakte van 146 m² verdeeld over begane grond en twee verdiepingen alsmede 3 parkeerplaatsen.
Unit 30 € 330.000,- v.o.n. exclusief BTW
Deze kopunit kent een vloeroppervlakte van 195 m² verdeeld over begane grond en twee verdiepingen alsmede 3 parkeerplaatsen.
Unit 39 en 40 € 185.000,- v.o.n. exclusief BTW
Deze hoekunit kent een vloeroppervlakte van 88 m² verdeeld over begane grond en verdieping alsmede 2 parkeerplaatsen.
Ben je op zoek naar veel ruimte? Weet
dan dat de bedrijfsruimtes eventueel ook nog te koppelen zijn (na oplevering en voor eigen risico).
Alle units hebben standaard een overheaddeur van 3m hoog.
De units zijn uitstekend bereikbaar: de Noordschil ligt direct naast de A1, bij afrit 10 (Baarn-Noord) met aansluiting op de A27. Vanaf hier zijn Amsterdam, Amersfoort, Utrecht en Hilversum uitstekend bereikbaar.
De N221 (Amsterdamsestraatweg) die langs het bedrijventerrein loopt, is een belangrijke regionale weg die directe toegang biedt tot Baarn en omliggende gemeenten.
Op slecht 2 km afstand ligt station Baarn met rechtstreekse verbindingen naar Amersfoort, Utrecht en Amsterdam. In het nabij gelegen, gezellige centrum vind je een ruim aanbod aan voorzieningen zoals restaurants, café's, winkels en supermarkten.
Opleverniveau:
Elke unit is voorzien van:
• Aansluitingen tot de meterkast voor elektra en water (de aansluitkosten hiervoor bedragen € 3.500,00)
• Houten, onafgewerkte trap met leuning en balustrade;
• Ventilatieroosters in de raamkozijnen;
• Een voordeur voorzien van een 3-puntsluiting;
• Een brievenbus;
• Mogelijkheid voor reclame-uitingen;
• Overheaddeur van circa 3 meter hoog;
• Voorbereiding riool;
• Nieuw bestraat terrein;
• Eigen parkeerplaats(en).
De bedrijfsunits van Unity zijn courant en uitstekend te verhuren. Dat maakt ze een solide, waardevaste investering met een uitstekend rendement. Interesse?
Neem gerust contact op met onze verkooppartner Castanea Bedrijfsmakelaars via of 035 646 00 50.
We horen graag van je!
Niet voor niets spreken ze in Baarn over ‘Vorstelijk Baarn’. Een uitstekende plek dus om je als ondernemer te vestigen!
De units van Baarn 01 zijn te koop vanaf € 185.000,- v.o.n. ex. BTW. Wees er dus snel bij!
Units 3 t/m 9 € 249.500,- v.o.n. exclusief BTW
Deze units kennen een vloeroppervlakte ter grootte van circa 120 m² verdeeld over begane grond en één verdieping alsmede 2 parkeerplaatsen.
Zoals in alle Unity Units bouwen ze ook hier alleen met hoogwaardige materialen conform de nieuwste bouwbesluitnormen. Zo zorgen ze ervoor dat de units zowel aan de binnen- als buitenzijde onderhoudsvriendelijk en energiezuinig zijn.
Natuurlijk ben je helemaal vrij om -binnen de kaders van het vigerende bestemmingsplan- je unit naar eigen wens in te delen en af te werken.
Alle beschikbare opties in het project;
Unit 1 € 335.000,- v.o.n. exclusief BTW
Deze kopunit kent een vloeroppervlakte van 195 m² verdeeld over begane grond en twee verdiepingen alsmede 4 parkeerplaatsen.
Units 2 € 325.000,- en 31 € 310.000,- v.o.n. exclusief BTW
Deze kopunits kennen een vloeroppervlakte ter grootte van circa 183 m² verdeeld over begane grond en twee verdiepingen alsmede 3 parkeerplaatsen.
Units 3 t/m 9 en 32 t/m 38 € 249.500,- v.o.n. exclusief BTW
Deze units kennen een vloeroppervlakte ter grootte van circa 120 m² verdeeld over begane grond en verdieping alsmede 2 parkeerplaatsen.
Unit 10 € 249.500,- v.o.n. exclusief BTW
Deze hoekunit kent een vloeroppervlakte van 128 m² verdeeld over begane grond en verdieping alsmede 2 parkeerplaatsen.
Unit 11 € 285.000,- v.o.n. exclusief BTW
Deze kopunit kent een vloeroppervlakte van 146 m² verdeeld over begane grond en twee verdiepingen alsmede 3 parkeerplaatsen.
Unit 12 € 257.500,- en 22 € 250.000,- v.o.n. exclusief BTW
Deze kopunits kennen een vloeroppervlakte ter grootte van circa 137 m² verdeeld over begane grond en twee verdiepingen alsmede 1 parkeerplaats.
Units 13 t/m 19 en 23 t/m 29 € 199.500,- v.o.n. exclusief BTW
Deze units kennen een vloeroppervlakte ter grootte van circa 90 m² verdeeld over begane grond en verdieping alsmede 1 parkeerplaats.
Unit 20 € 212.500,- v.o.n. exclusief BTW
Deze hoekunit kent een vloeroppervlakte van 96 m² verdeeld over begane grond en verdieping alsmede 2 parkeerplaatsen.
Unit 21 € 285.000,- v.o.n. exclusief BTW
Deze kopunit kent een vloeroppervlakte van 146 m² verdeeld over begane grond en twee verdiepingen alsmede 3 parkeerplaatsen.
Unit 30 € 330.000,- v.o.n. exclusief BTW
Deze kopunit kent een vloeroppervlakte van 195 m² verdeeld over begane grond en twee verdiepingen alsmede 3 parkeerplaatsen.
Unit 39 en 40 € 185.000,- v.o.n. exclusief BTW
Deze hoekunit kent een vloeroppervlakte van 88 m² verdeeld over begane grond en verdieping alsmede 2 parkeerplaatsen.
Ben je op zoek naar veel ruimte? Weet
dan dat de bedrijfsruimtes eventueel ook nog te koppelen zijn (na oplevering en voor eigen risico).
Alle units hebben standaard een overheaddeur van 3m hoog.
De units zijn uitstekend bereikbaar: de Noordschil ligt direct naast de A1, bij afrit 10 (Baarn-Noord) met aansluiting op de A27. Vanaf hier zijn Amsterdam, Amersfoort, Utrecht en Hilversum uitstekend bereikbaar.
De N221 (Amsterdamsestraatweg) die langs het bedrijventerrein loopt, is een belangrijke regionale weg die directe toegang biedt tot Baarn en omliggende gemeenten.
Op slecht 2 km afstand ligt station Baarn met rechtstreekse verbindingen naar Amersfoort, Utrecht en Amsterdam. In het nabij gelegen, gezellige centrum vind je een ruim aanbod aan voorzieningen zoals restaurants, café's, winkels en supermarkten.
Opleverniveau:
Elke unit is voorzien van:
• Aansluitingen tot de meterkast voor elektra en water (de aansluitkosten hiervoor bedragen € 3.500,00)
• Houten, onafgewerkte trap met leuning en balustrade;
• Ventilatieroosters in de raamkozijnen;
• Een voordeur voorzien van een 3-puntsluiting;
• Een brievenbus;
• Mogelijkheid voor reclame-uitingen;
• Overheaddeur van circa 3 meter hoog;
• Voorbereiding riool;
• Nieuw bestraat terrein;
• Eigen parkeerplaats(en).
De bedrijfsunits van Unity zijn courant en uitstekend te verhuren. Dat maakt ze een solide, waardevaste investering met een uitstekend rendement. Interesse?
Neem gerust contact op met onze verkooppartner Castanea Bedrijfsmakelaars via of 035 646 00 50.
We horen graag van je!
Kenmerken
Overdracht
- Vraagprijs
- € 249.500 vrij op naam
- Aangeboden sinds
-
- Status
- Beschikbaar
- Aanvaarding
- In overleg
Bouw
- Hoofdfunctie
- Bedrijfshal
- Soort bouw
- Nieuwbouw
- Bouwjaar
- 2025
Oppervlakten
- Oppervlakte
- 120 m²
- Bedrijfshal oppervlak
- 120 m²
Indeling
- Voorzieningen
- Overheaddeuren en betonvloer
Energie
- Energielabel
- Niet verplicht
Omgeving
- Ligging
- Bedrijventerrein
- Bereikbaarheid
- Bushalte op 500 m tot 1000 m en snelwegafrit op 500 m tot 1000 m
Parkeergelegenheid
- Parkeerplaatsen
- 2 niet-overdekte parkeerplaatsen
Foto's





Plattegrond
Begane grond

Eerste verdieping
