Berkelse Poort 131 2651 JX Berkel en Rodenrijs
€ 1.895 /mnd
Omschrijving
Te Huur:
Dit moderne multifunctionele bedrijfspand van 140m2 VVO (167m2 BVO) is uitermate geschikt als kantoor- en/of lichte bedrijfsruimte. Het pand beschikt over 2 bouwlagen, een handbediende overheaddeur met aparte toegangsdeur, 2 parkeerplaatsen en kan op korte termijn in gebruik worden genomen. Het pand is gelegen op bedrijventerrein Berkelse Poort, een locatie met goede bereikbaarheid en volop mogelijkheden voor een industriefunctie.
- In overleg kan er een pantry en afgewerkte vloer gerealiseerd worden!
Indeling:
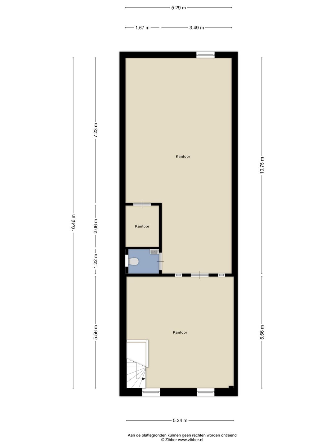
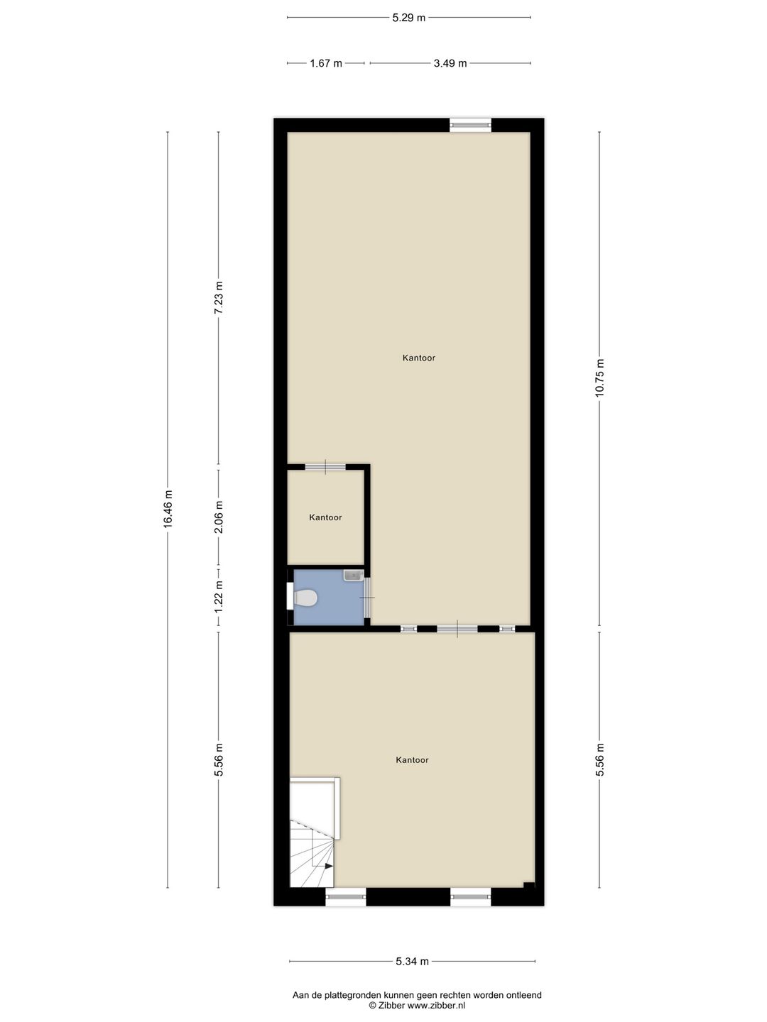
BG: Bij binnenkomst via de toegangsdeur of overheaddeur komt u in de bedrijfsruimte van 56m2 VVO. De ruimte biedt een praktische indeling voor productie, opslag of lichte industriële werkzaamheden.
1e: Via de trap komt u naar de eerste verdieping. De eerste ruimte is in te richten als kantoor- of kantineruimte. In overleg met verhuurder kan hier een pantry worden geplaatst. Hierna loopt u door naar een ruime kantoorruimte, die is voorzien van een luxe toilet met fontein en een aparte bergruimte. Het totale vloeroppervlak van de verdieping bedraagt ongeveer 87m2 VVO. De verdieping kan in overleg met verhuurder worden voorzien van airco ten behoeve van koeling en verwarming.
Kenmerken:
Omzetbelasting: wel van toepassing
Oplevering: in overleg, kan op korte termijn
Huurovereenkomst: ROZ/IPD bedrijfsruimten
BVO: 167m2
VVO: 140m2
Vloerbelasting BG (beton): 1.500 kg/m2
Vloerbelasting 1e (hout): 500 kg/m2
Overheaddeur (handbediend): 3,53 x 2,98 (b x h)
Vrije hoogte BG: 3,53 m1
Netto maat hal: 56m2
Perceel: 164m2
Parkeerplaatsen: 2
Bouwjaar: 2005
Isolatie: gevel, dak, glas, vloer.
Verwarming: optioneel te plaatsen airco
Koeling: optioneel te plaatsen
Krachtstroom: ja
Energielabel: A+
Brandblusser: ja (BG-haspel en 1e verdieping poederblusser)
Led-verlichting: ja
Systeemplafond: ja (verdieping / deels)
Borgsom: 3 maandhuren, vrij van btw.
Omgeving: centraal gelegen op gunstige plek op bedrijventerrein Berkelse Poort.
Toewijzing:
Voorbehouden aan verhuurder. Over toewijzingsbeleid worden geen uitspraken gedaan.
Bijzonderheden:
het pand kent diverse indelings- en gebruiksmogelijkheden en in overleg met de verhuurder zijn toekomstige uitbreidingsmogelijkheden bespreekbaar. De verhuurder kan in overleg een pantry en/of afgewerkte vloer realiseren.
Berkel en Rodenrijs:
Berkel en Rodenrijs is zeer centraal gelegen en biedt goede verbindingen met Rotterdam, Delft, Den Haag en Zoetermeer. Middels de provinciale weg N470 en N471 heeft snel aansluiting met de A4, A12, A13 en de ring Rotterdam. Diverse busverbindingen en de Randstadrail zorgen voor goede openbaar vervoer voorzieningen.
Wij adviseren u om bij het bevoegd gezag te verifiëren of het beoogde gebruik past binnen de bestemmingsplanvoorschriften.
Deze tekst is door ons kantoor met de meeste zorg samengesteld aan de hand van de door de verkoper aan ons ter hand gestelde gegevens en tekeningen. Derhalve kunnen wij geen garanties verstrekken, noch kunnen wij op enigerlei wijze eventuele aansprakelijkheid voor deze gegevens aanvaarden.
Dit moderne multifunctionele bedrijfspand van 140m2 VVO (167m2 BVO) is uitermate geschikt als kantoor- en/of lichte bedrijfsruimte. Het pand beschikt over 2 bouwlagen, een handbediende overheaddeur met aparte toegangsdeur, 2 parkeerplaatsen en kan op korte termijn in gebruik worden genomen. Het pand is gelegen op bedrijventerrein Berkelse Poort, een locatie met goede bereikbaarheid en volop mogelijkheden voor een industriefunctie.
- In overleg kan er een pantry en afgewerkte vloer gerealiseerd worden!
Indeling:
BG: Bij binnenkomst via de toegangsdeur of overheaddeur komt u in de bedrijfsruimte van 56m2 VVO. De ruimte biedt een praktische indeling voor productie, opslag of lichte industriële werkzaamheden.
1e: Via de trap komt u naar de eerste verdieping. De eerste ruimte is in te richten als kantoor- of kantineruimte. In overleg met verhuurder kan hier een pantry worden geplaatst. Hierna loopt u door naar een ruime kantoorruimte, die is voorzien van een luxe toilet met fontein en een aparte bergruimte. Het totale vloeroppervlak van de verdieping bedraagt ongeveer 87m2 VVO. De verdieping kan in overleg met verhuurder worden voorzien van airco ten behoeve van koeling en verwarming.
Kenmerken:
Omzetbelasting: wel van toepassing
Oplevering: in overleg, kan op korte termijn
Huurovereenkomst: ROZ/IPD bedrijfsruimten
BVO: 167m2
VVO: 140m2
Vloerbelasting BG (beton): 1.500 kg/m2
Vloerbelasting 1e (hout): 500 kg/m2
Overheaddeur (handbediend): 3,53 x 2,98 (b x h)
Vrije hoogte BG: 3,53 m1
Netto maat hal: 56m2
Perceel: 164m2
Parkeerplaatsen: 2
Bouwjaar: 2005
Isolatie: gevel, dak, glas, vloer.
Verwarming: optioneel te plaatsen airco
Koeling: optioneel te plaatsen
Krachtstroom: ja
Energielabel: A+
Brandblusser: ja (BG-haspel en 1e verdieping poederblusser)
Led-verlichting: ja
Systeemplafond: ja (verdieping / deels)
Borgsom: 3 maandhuren, vrij van btw.
Omgeving: centraal gelegen op gunstige plek op bedrijventerrein Berkelse Poort.
Toewijzing:
Voorbehouden aan verhuurder. Over toewijzingsbeleid worden geen uitspraken gedaan.
Bijzonderheden:
het pand kent diverse indelings- en gebruiksmogelijkheden en in overleg met de verhuurder zijn toekomstige uitbreidingsmogelijkheden bespreekbaar. De verhuurder kan in overleg een pantry en/of afgewerkte vloer realiseren.
Berkel en Rodenrijs:
Berkel en Rodenrijs is zeer centraal gelegen en biedt goede verbindingen met Rotterdam, Delft, Den Haag en Zoetermeer. Middels de provinciale weg N470 en N471 heeft snel aansluiting met de A4, A12, A13 en de ring Rotterdam. Diverse busverbindingen en de Randstadrail zorgen voor goede openbaar vervoer voorzieningen.
Wij adviseren u om bij het bevoegd gezag te verifiëren of het beoogde gebruik past binnen de bestemmingsplanvoorschriften.
Deze tekst is door ons kantoor met de meeste zorg samengesteld aan de hand van de door de verkoper aan ons ter hand gestelde gegevens en tekeningen. Derhalve kunnen wij geen garanties verstrekken, noch kunnen wij op enigerlei wijze eventuele aansprakelijkheid voor deze gegevens aanvaarden.
Kenmerken
Overdracht
- Huurprijs
- € 1.895 per maand
- Aangeboden sinds
-
- Status
- Beschikbaar
- Aanvaarding
- Per direct beschikbaar
Bouw
- Hoofdfunctie
- Bedrijfshal
- Soort bouw
- Bestaande bouw
- Bouwjaar
- 2005
Oppervlakten
- Oppervlakte
- 140 m²
- Bedrijfshal oppervlak
- 140 m²
Indeling
- Voorzieningen
- Overheaddeuren, betonvloer en toilet
Energie
- Energielabel
- A+
Omgeving
- Ligging
- Bedrijventerrein
Parkeergelegenheid
- Parkeerplaatsen
- 2 niet-overdekte parkeerplaatsen
NVM makelaar
Foto's
Plattegrond
Begane Grond
Eerste Verdieping