P.C. Staalweg 40 3721 TJ Bilthoven
- Onder bod
€ 1.750 /mnd
Omschrijving
Omschrijving:
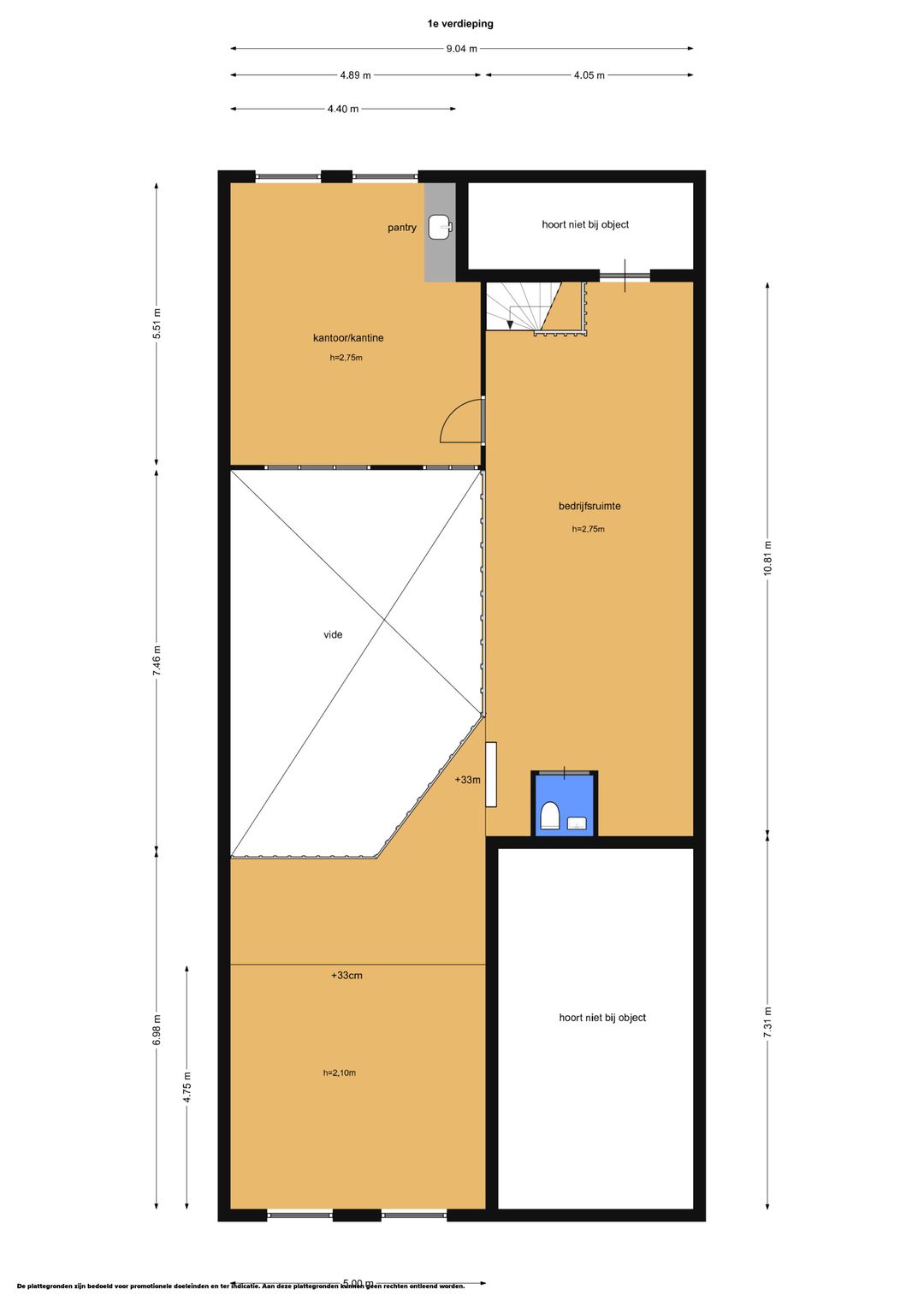
Het betreft hier bedrijfsruimte gelegen op de begane grond voorzien van een entresol. Het object beschikt over een elektrisch bedienbare overheaddeur met een loopdeur. Het object is gelegen op het bedrijvenpark “Larenstein” te Bilthoven.
Ligging:
Het bedrijvenpark kent een omvang van ca. 18 ha en bevindt zich aan de uiterste westrand van de kern Bilthoven. Bedrijvenpark Larenstein is met haar ligging in het midden van het land, haar goede bereikbaarheid en haar representatieve uitstraling uitermate geschikt voor kleinschalige en middelgrote lokale bedrijven en voldoet hiermee ruimschoots aan de eisen die men aan een dergelijk bedrijvenpark mag stellen.
Locatie en bereikbaarheid:
Bedrijvenpark "Larenstein" is gelegen op de grens van Bilthoven, De Bilt en Groenekan en wordt extern ontsloten via de Groenekanseweg en de Biltse Rading. Beide wegen zijn onderdeel van de hoofdverkeersstructuur van Bilthoven. De Biltse Rading is, vanaf Larenstein de meest directe verbinding met de A27.
Vloeroppervlakte:
Totaal ca. 276 m² verhuurbaar vloeroppervlak, als volgt verdeeld:
- Ca. 156 m² bedrijfsruimte op de begane grond;
- Ca. 120 m² entresol/berg- en kantineruimte.
Voor de berekening van de oppervlakten is gebruik gemaakt van de meetnorm conform het normblad NEN 2580. Het meetrapport is op aanvraag beschikbaar.
Opleveringsniveau:
Het object wordt opgeleverd in de huidige gebruikte staat, onder andere voorzien van:
- Elektrisch bedienbare overheaddeur;
- Loopdeur;
- Betonvloer
- Entresolvloer;
- Tl-verlichting;
- Daglichttoetreding;
- Krachtstroom;
- Brandhaspel;
- Ontruimingsinstallatie;
- Toilet op de 1e verdieping;
- Pantry;
- Te openen ramen;
- Systeemplafond;
- Een parking voorzijde;
- Vloerbelasting begane grond ca. 2.500 kg/m².
Huurprijs:
€ 1.750,= per maand te vermeerderen met de wettelijk verschuldigde omzetbelasting.
Servicekosten
€ 250,- per maand excl. btw o.a. ten behoeve van voorschot verbruik gas/water/elektra
Huurbetaling (c.q. betaling servicekosten):
Per maand, vooruit te voldoen.
Huurtermijnen:
Drie (3) jaar, kortere periode in nader overleg.
Huuraanpassing:
Jaarlijks, voor het eerst één jaar na de ingangsdatum van de huurovereenkomst, worden aangepast op basis van het maandprijsindexcijfer volgens de consumentenprijsindex (CPI) reeks Alle Huishoudens (2000=100), dan wel de meest recente tijdbasis, gepubliceerd door het CBS.
Bankgarantie:
Ter grootte van een bruto betalingsverplichting van drie (3) maanden huur en servicekosten inclusief BTW.
Parkeergelegenheid:
Twee eigen parkeerplaatsen, daarnaast voldoende parkeermogelijkheid op algemene parkeerplaatsen.
Huurovereenkomst:
De huurovereenkomst zal worden opgemaakt conform het model Raad Onroerende Zaken (ROZ).
Bestemming:
De bestemming luidt "Bedrijfsdoeleinden". Huurder zal te allen tijde zelf zijn voorgenomen gebruik bij de Gemeente moeten toetsen c.q. daarvoor zijn goedkeuring aangaande het voorgenomen verbruik verkrijgen. Aanvaarding
Aanvaarding:
In overleg.
Het betreft hier bedrijfsruimte gelegen op de begane grond voorzien van een entresol. Het object beschikt over een elektrisch bedienbare overheaddeur met een loopdeur. Het object is gelegen op het bedrijvenpark “Larenstein” te Bilthoven.
Ligging:
Het bedrijvenpark kent een omvang van ca. 18 ha en bevindt zich aan de uiterste westrand van de kern Bilthoven. Bedrijvenpark Larenstein is met haar ligging in het midden van het land, haar goede bereikbaarheid en haar representatieve uitstraling uitermate geschikt voor kleinschalige en middelgrote lokale bedrijven en voldoet hiermee ruimschoots aan de eisen die men aan een dergelijk bedrijvenpark mag stellen.
Locatie en bereikbaarheid:
Bedrijvenpark "Larenstein" is gelegen op de grens van Bilthoven, De Bilt en Groenekan en wordt extern ontsloten via de Groenekanseweg en de Biltse Rading. Beide wegen zijn onderdeel van de hoofdverkeersstructuur van Bilthoven. De Biltse Rading is, vanaf Larenstein de meest directe verbinding met de A27.
Vloeroppervlakte:
Totaal ca. 276 m² verhuurbaar vloeroppervlak, als volgt verdeeld:
- Ca. 156 m² bedrijfsruimte op de begane grond;
- Ca. 120 m² entresol/berg- en kantineruimte.
Voor de berekening van de oppervlakten is gebruik gemaakt van de meetnorm conform het normblad NEN 2580. Het meetrapport is op aanvraag beschikbaar.
Opleveringsniveau:
Het object wordt opgeleverd in de huidige gebruikte staat, onder andere voorzien van:
- Elektrisch bedienbare overheaddeur;
- Loopdeur;
- Betonvloer
- Entresolvloer;
- Tl-verlichting;
- Daglichttoetreding;
- Krachtstroom;
- Brandhaspel;
- Ontruimingsinstallatie;
- Toilet op de 1e verdieping;
- Pantry;
- Te openen ramen;
- Systeemplafond;
- Een parking voorzijde;
- Vloerbelasting begane grond ca. 2.500 kg/m².
Huurprijs:
€ 1.750,= per maand te vermeerderen met de wettelijk verschuldigde omzetbelasting.
Servicekosten
€ 250,- per maand excl. btw o.a. ten behoeve van voorschot verbruik gas/water/elektra
Huurbetaling (c.q. betaling servicekosten):
Per maand, vooruit te voldoen.
Huurtermijnen:
Drie (3) jaar, kortere periode in nader overleg.
Huuraanpassing:
Jaarlijks, voor het eerst één jaar na de ingangsdatum van de huurovereenkomst, worden aangepast op basis van het maandprijsindexcijfer volgens de consumentenprijsindex (CPI) reeks Alle Huishoudens (2000=100), dan wel de meest recente tijdbasis, gepubliceerd door het CBS.
Bankgarantie:
Ter grootte van een bruto betalingsverplichting van drie (3) maanden huur en servicekosten inclusief BTW.
Parkeergelegenheid:
Twee eigen parkeerplaatsen, daarnaast voldoende parkeermogelijkheid op algemene parkeerplaatsen.
Huurovereenkomst:
De huurovereenkomst zal worden opgemaakt conform het model Raad Onroerende Zaken (ROZ).
Bestemming:
De bestemming luidt "Bedrijfsdoeleinden". Huurder zal te allen tijde zelf zijn voorgenomen gebruik bij de Gemeente moeten toetsen c.q. daarvoor zijn goedkeuring aangaande het voorgenomen verbruik verkrijgen. Aanvaarding
Aanvaarding:
In overleg.
Kenmerken
Overdracht
- Huurprijs
- € 1.750 per maand
- Servicekosten
- € 250 per maand (21% BTW van toepassing)
- Aangeboden sinds
-
- Status
- Onder bod
- Aanvaarding
- In overleg
Bouw
- Hoofdfunctie
- Bedrijfshal
- Mogelijke functie(s)
- Kantoorruimte
- Soort bouw
- Bestaande bouw
- Bouwjaar
- 2011
Oppervlakten
- Oppervlakte
- 156 m²
- Bedrijfshal oppervlak
- 156 m²
Energie
- Energielabel
- Niet beschikbaar
Omgeving
- Ligging
- Bedrijventerrein
Parkeergelegenheid
- Parkeerplaatsen
- 1 niet-overdekte parkeerplaats
Foto's