Charles Petitweg 13 4827 HJ Breda
€ 925.000 k.k.

Omschrijving
Te koop – vrijstaande woning met bedrijfshal
Een ideale combinatie van wonen en werken gelegen op een kleinschalig en rustig bedrijventerrein. Het betreft een luxe afgewerkt woonhuis wat instapklaar is. Grenzend aan de woning is een fraaie tuin gelegen met veel privacy.
De bedrijfshal is middels een inrit op eenvoudige manier te bereiken en is ook hoogwaardig afgewerkt.
Gezien de belendende bebouwing is sprake van een rustige ligging met nagenoeg geen geluids- en/of stankoverlast van de buren. Een ideale locatie om wonen en werken te combineren.
LOCATIE
Omgevingsfactoren
Het pand is gelegen op het bedrijventerrein Charles Petitweg. Dit bedrijventerrein kenmerkt zich door een mix van bedrijvigheid met name in het MKB-gebied. Doordat er kleinschalige bedrijfsruimtes en kantoren zijn gelegen is de overlast tot een minimum beperkt. Aan de naastgelegen Arduinstraat vinden op dit moment een aantal nieuwbouwontwikkelingen plaats met hoogwaardige bedrijfspaviljoens. Deze locatie leent zicht uitstekend voor groothandelsdoeleinden en/of lichte productiefaciliteiten.
De wijk Hoge Vucht, die grenst aan de locatie heeft voldoende voorzieningen, waaronder een grootschalig winkelcentrum, medische voorzieningen en scholen etc.
Daarnaast is het bedrijventerrein gunstig gelegen nabij het natuurgebied Waterdonken.
Bereikbaarheid
Via de Noordelijke Rondweg zijn zowel de A16 (Rotterdam-Antwerpen) en A27 (Utrecht-Eindhoven) zeer goed bereikbaar. Daarnaast is in de directe omgeving een bushalte gelegen.
Parkeren
Op eigen terrein zijn enkele parkeerplaatsen gelegen. Tevens is het mogelijk in de directe omgeving vrij te parkeren.
OBJECTGEGEVENS
Indeling
Woonhuis
Begane grond
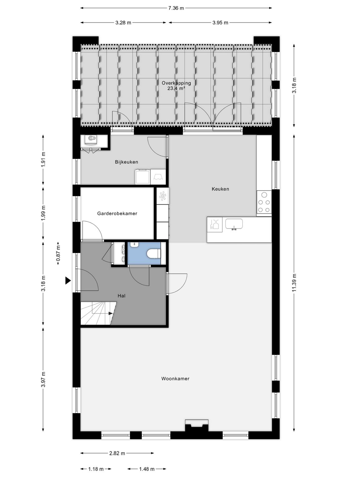
Entree met meterkast en trap naar de verdieping, toiletruimte met fonteintje; (kantoor/garderobe)kamer (ca. 7 m²); woonkamer in L-vorm met een fraaie open keuken. Deze ruimte heeft een oppervlakte van ca. 60 m². Bijkeuken met cv-opstelling en opstelruimte voor wasmachine en wasdroger. Aan de achterzijde van de woning is een glazen overkapping ten behoeve van een terras.
Eerste verdieping
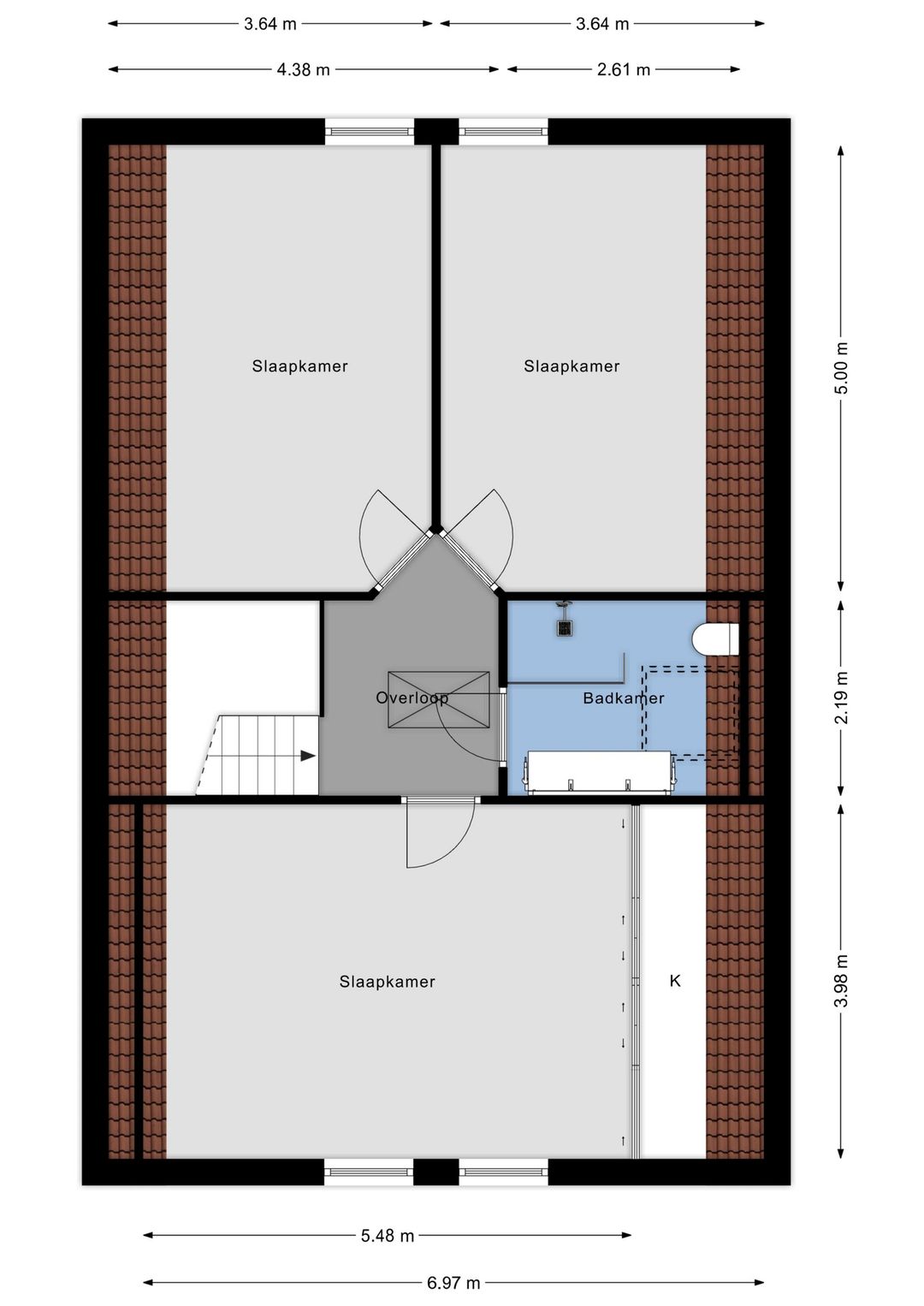
Fraaie open overloop met een vlizotrap voor de tweede verdieping; 3 slaapkamers van respectievelijk ca. 24 m², ca. 15 m² en ca. 15 m². Fraai afgewerkte badkamer (ca. 5 m²) met douche, toilet en wastafelmeubel.
Tweede verdieping
Bergzolder (ca. 11.5 * 4,5 meter) bereikbaar middels een vlizotrap.
Tuin
Fraai aangelegde tuin met veel privacy, diverse zonnige terrassen en een overkapping. Vanuit de tuin kan middels een poort toegang worden verkregen tot het terrein met de bedrijfshal.
Bedrijfshal
Toegang middels een loopdeur en een elektrische overheaddeur. In de bedrijfshal is een toilet gesitueerd met daarnaast een stalen wasbak. In de bedrijfshal is een separate opslagruimte gecreëerd.
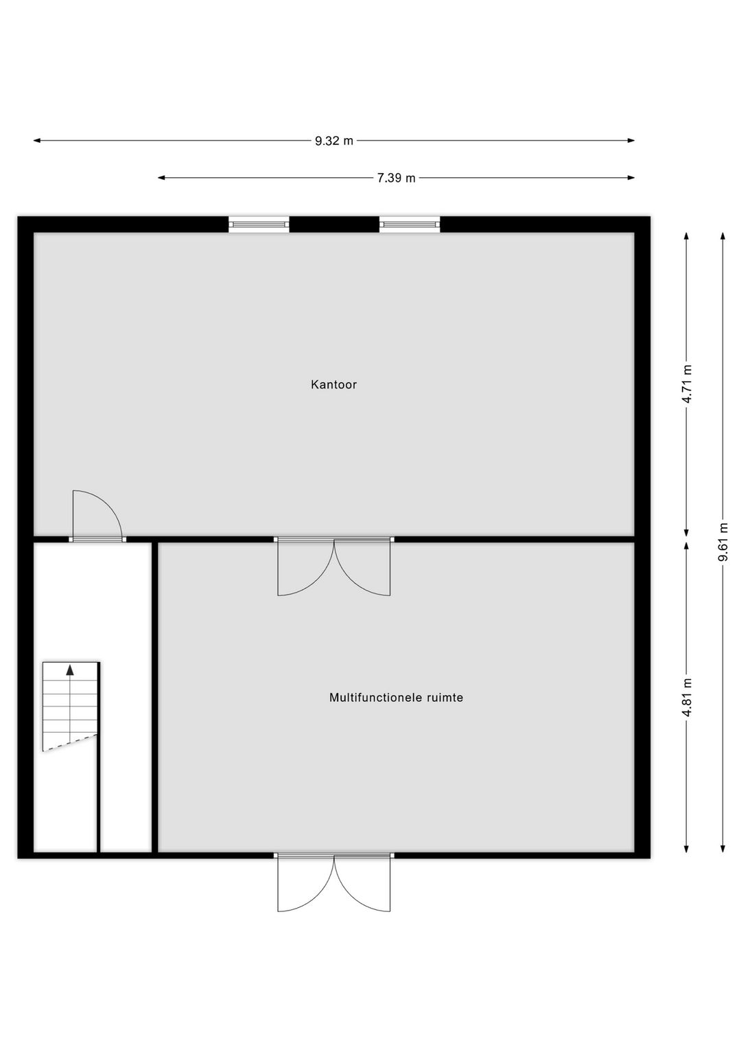
Middels een trap is de eerste verdieping bereikbaar. Deze verdieping is ingedeeld in een tweetal ruimtes. Tevens is een kleine entresol aanwezig.
Oppervlakte
Woning
Begane grond: ca. 84 m²
Eerste verdieping: ca. 69 m²
Tweede verdieping: ca. 23 m²
De totale oppervlakte bedraagt ca. 176 m²
Gebouwgebonden buitenruimte: ca. 23 m²
Bedrijfshal
Begane grond: ca. 193 m²
Verdieping: ca. 90 m²
Opleveringsniveau
Woonhuis
De woning is gebouwd in 1995 en traditioneel uitgevoerd, met volledig in metselwerk opgetrokken gevels (spouwmuurconstructie) en betonnen vloeren. Het zadeldak ik voorzien van geïsoleerde dakplaten en met pannen gedekt. De kozijnen zijn uitgevoerd in hout met dubbel glas. De woning is optimaal geïsoleerd middels spouwmuren en vloerisolatie.
De begane grond is voorzien van een fraaie tegelvloer met vloerverwarming, stucwerk wand- en plafondafwerking. De woonkamer is voorzien van een fraaie gashaard.
De open keuken is voorzien van luxe inbouwapparatuur, waaronder een hete luchtoven, stoomoven, combimagnetron, vaatwasser, koelkast, vriezer, 5 pits gasfornuis, RVS afzuigkap en een Quooker. Het keukenblad is van graniet en deels van glas.
De bijkeuken is voorzien van diverse aansluitpunten en een opstelling met een cv-combiketel (merk Nefit, bouwjaar 2013).
De badkamer is voorzien van vloerverwarming, inloopdouche, toilet en wastafelmeubel.
In de ouderslaapkamer zijn inbouwkasten gerealiseerd met een airco-unit.
Bedrijfsruimte
De bedrijfsruimte is opgetrokken in staalconstructie en voorzien van geïsoleerde golf(dak)platen. De toegang is middels een sectionaaldeur (4*4 meter) en een loopdeur; Gecoate betonvloer; krachtstroomaansluitingen; gasheater; op de entresolvloer zijn een tweetal kantoren gerealiseerd voorzien van airco-units, verlichting en laminaatvloeren.
Bestemmingsplan
Het pand heeft de bestemming “Bedrijventerrein”. De bedrijfshal kan gebruikt worden ten behoeve van de bedrijven in de categorieën 1 t/m 3. De woning kan uitsluitend worden gebruikt als bedrijfswoning.
Kadastrale gegevens
Het pand heeft de navolgende kadastrale gegevens:
Gemeente: Teteringen
Sectie: F
Nummers: 1204 en 1205
Respectievelijk groot: 555 m² en 493 m²
Energielabel
De woning beschikt over energielabel B.
KOOPGEGEVENS
Koopprijs
De koopprijs bedraagt € 925.000,00 kosten koper.
De verdeling van de koopsom (bedrijfshal en woning wordt in goed onderling overleg vastgesteld).
Aanvaarding
In overleg.
Overige bepalingen
De kosten voor de notaris en de overdrachtsbelasting komen voor rekening van de koper.
Voor de vastlegging van een koopovereenkomst maken wij gebruik van het model van de NVM. In dit model is standaard de verplichting voor een koper opgenomen om een zekerheid te stellen (bankgarantie/waarborgsom) ter grootte van 10% van de koopsom.
Mocht u interesse hebben in de aankoop van dit object zijn wij op basis van de WWFT verplicht om een onderzoek naar uw c.q. de identiteit van de koper in te stellen. Daarnaast dienen wij u te vragen naar de herkomst van de voor de aankoop benodigde gelden.
Deze informatieverstrekking is geheel vrijblijvend. Hieraan kunnen geen rechten worden ontleend. De informatie wordt verstrekt zonder enige verantwoordelijkheid voor eventuele onvolledigheden en/of onjuistheden.
Een ideale combinatie van wonen en werken gelegen op een kleinschalig en rustig bedrijventerrein. Het betreft een luxe afgewerkt woonhuis wat instapklaar is. Grenzend aan de woning is een fraaie tuin gelegen met veel privacy.
De bedrijfshal is middels een inrit op eenvoudige manier te bereiken en is ook hoogwaardig afgewerkt.
Gezien de belendende bebouwing is sprake van een rustige ligging met nagenoeg geen geluids- en/of stankoverlast van de buren. Een ideale locatie om wonen en werken te combineren.
LOCATIE
Omgevingsfactoren
Het pand is gelegen op het bedrijventerrein Charles Petitweg. Dit bedrijventerrein kenmerkt zich door een mix van bedrijvigheid met name in het MKB-gebied. Doordat er kleinschalige bedrijfsruimtes en kantoren zijn gelegen is de overlast tot een minimum beperkt. Aan de naastgelegen Arduinstraat vinden op dit moment een aantal nieuwbouwontwikkelingen plaats met hoogwaardige bedrijfspaviljoens. Deze locatie leent zicht uitstekend voor groothandelsdoeleinden en/of lichte productiefaciliteiten.
De wijk Hoge Vucht, die grenst aan de locatie heeft voldoende voorzieningen, waaronder een grootschalig winkelcentrum, medische voorzieningen en scholen etc.
Daarnaast is het bedrijventerrein gunstig gelegen nabij het natuurgebied Waterdonken.
Bereikbaarheid
Via de Noordelijke Rondweg zijn zowel de A16 (Rotterdam-Antwerpen) en A27 (Utrecht-Eindhoven) zeer goed bereikbaar. Daarnaast is in de directe omgeving een bushalte gelegen.
Parkeren
Op eigen terrein zijn enkele parkeerplaatsen gelegen. Tevens is het mogelijk in de directe omgeving vrij te parkeren.
OBJECTGEGEVENS
Indeling
Woonhuis
Begane grond
Entree met meterkast en trap naar de verdieping, toiletruimte met fonteintje; (kantoor/garderobe)kamer (ca. 7 m²); woonkamer in L-vorm met een fraaie open keuken. Deze ruimte heeft een oppervlakte van ca. 60 m². Bijkeuken met cv-opstelling en opstelruimte voor wasmachine en wasdroger. Aan de achterzijde van de woning is een glazen overkapping ten behoeve van een terras.
Eerste verdieping
Fraaie open overloop met een vlizotrap voor de tweede verdieping; 3 slaapkamers van respectievelijk ca. 24 m², ca. 15 m² en ca. 15 m². Fraai afgewerkte badkamer (ca. 5 m²) met douche, toilet en wastafelmeubel.
Tweede verdieping
Bergzolder (ca. 11.5 * 4,5 meter) bereikbaar middels een vlizotrap.
Tuin
Fraai aangelegde tuin met veel privacy, diverse zonnige terrassen en een overkapping. Vanuit de tuin kan middels een poort toegang worden verkregen tot het terrein met de bedrijfshal.
Bedrijfshal
Toegang middels een loopdeur en een elektrische overheaddeur. In de bedrijfshal is een toilet gesitueerd met daarnaast een stalen wasbak. In de bedrijfshal is een separate opslagruimte gecreëerd.
Middels een trap is de eerste verdieping bereikbaar. Deze verdieping is ingedeeld in een tweetal ruimtes. Tevens is een kleine entresol aanwezig.
Oppervlakte
Woning
Begane grond: ca. 84 m²
Eerste verdieping: ca. 69 m²
Tweede verdieping: ca. 23 m²
De totale oppervlakte bedraagt ca. 176 m²
Gebouwgebonden buitenruimte: ca. 23 m²
Bedrijfshal
Begane grond: ca. 193 m²
Verdieping: ca. 90 m²
Opleveringsniveau
Woonhuis
De woning is gebouwd in 1995 en traditioneel uitgevoerd, met volledig in metselwerk opgetrokken gevels (spouwmuurconstructie) en betonnen vloeren. Het zadeldak ik voorzien van geïsoleerde dakplaten en met pannen gedekt. De kozijnen zijn uitgevoerd in hout met dubbel glas. De woning is optimaal geïsoleerd middels spouwmuren en vloerisolatie.
De begane grond is voorzien van een fraaie tegelvloer met vloerverwarming, stucwerk wand- en plafondafwerking. De woonkamer is voorzien van een fraaie gashaard.
De open keuken is voorzien van luxe inbouwapparatuur, waaronder een hete luchtoven, stoomoven, combimagnetron, vaatwasser, koelkast, vriezer, 5 pits gasfornuis, RVS afzuigkap en een Quooker. Het keukenblad is van graniet en deels van glas.
De bijkeuken is voorzien van diverse aansluitpunten en een opstelling met een cv-combiketel (merk Nefit, bouwjaar 2013).
De badkamer is voorzien van vloerverwarming, inloopdouche, toilet en wastafelmeubel.
In de ouderslaapkamer zijn inbouwkasten gerealiseerd met een airco-unit.
Bedrijfsruimte
De bedrijfsruimte is opgetrokken in staalconstructie en voorzien van geïsoleerde golf(dak)platen. De toegang is middels een sectionaaldeur (4*4 meter) en een loopdeur; Gecoate betonvloer; krachtstroomaansluitingen; gasheater; op de entresolvloer zijn een tweetal kantoren gerealiseerd voorzien van airco-units, verlichting en laminaatvloeren.
Bestemmingsplan
Het pand heeft de bestemming “Bedrijventerrein”. De bedrijfshal kan gebruikt worden ten behoeve van de bedrijven in de categorieën 1 t/m 3. De woning kan uitsluitend worden gebruikt als bedrijfswoning.
Kadastrale gegevens
Het pand heeft de navolgende kadastrale gegevens:
Gemeente: Teteringen
Sectie: F
Nummers: 1204 en 1205
Respectievelijk groot: 555 m² en 493 m²
Energielabel
De woning beschikt over energielabel B.
KOOPGEGEVENS
Koopprijs
De koopprijs bedraagt € 925.000,00 kosten koper.
De verdeling van de koopsom (bedrijfshal en woning wordt in goed onderling overleg vastgesteld).
Aanvaarding
In overleg.
Overige bepalingen
De kosten voor de notaris en de overdrachtsbelasting komen voor rekening van de koper.
Voor de vastlegging van een koopovereenkomst maken wij gebruik van het model van de NVM. In dit model is standaard de verplichting voor een koper opgenomen om een zekerheid te stellen (bankgarantie/waarborgsom) ter grootte van 10% van de koopsom.
Mocht u interesse hebben in de aankoop van dit object zijn wij op basis van de WWFT verplicht om een onderzoek naar uw c.q. de identiteit van de koper in te stellen. Daarnaast dienen wij u te vragen naar de herkomst van de voor de aankoop benodigde gelden.
Deze informatieverstrekking is geheel vrijblijvend. Hieraan kunnen geen rechten worden ontleend. De informatie wordt verstrekt zonder enige verantwoordelijkheid voor eventuele onvolledigheden en/of onjuistheden.
Kenmerken
Overdracht
- Vraagprijs
- € 925.000 kosten koper
- Aangeboden sinds
-
- Status
- Beschikbaar
- Aanvaarding
- In overleg
Bouw
- Hoofdfunctie
- Bedrijfshal
- Soort bouw
- Bestaande bouw
- Bouwjaar
- 1995
Oppervlakten
- Oppervlakte
- 283 m²
- Bedrijfshal oppervlak
- 193 m²
- Kantoor oppervlak
- 90 m²
- Perceel
- 1.048 m²
Indeling
- Aantal bouwlagen
- 1 bouwlaag
- Voorzieningen
- Overheaddeuren, krachtstroom, toilet en airconditioning
Energie
- Energielabel
- B
Omgeving
- Ligging
- Bedrijventerrein
Foto's






























































































