Breeuwhamer 14 1648 HG De Goorn
€ 9.250 /mnd
Omschrijving
Op een kleinschalig bedrijventerrein, nabij diverse uitvalswegen, is dit royale functionele bedrijfsgebouw gelegen op een perceel grond van circa 2.745m², met voldoende parkeergelegenheid op eigen terrein. Het bedrijfsgebouw heeft een verhuurbaar vloeroppervlak van circa 1.952 m² en beschikt over energielabel A+++. De praktische indeling van het bedrijfsgebouw maakt het object geschikt voor uiteenlopende bedrijfsactiviteiten, waaronder productie, opslag, logistiek en kantoorfuncties.
Het bedrijfsgebouw is gelegen op een goede ligging en uitstekend bereikbaar. Via de nabijgelegen uitvalsweg, de N194, ben je binnen enkele minuten op de Rijksweg A7, met snelle verbindingen richting Hoorn, Purmerend, Amsterdam en de Afsluitdijk o.a. richting Leeuwarden.
Kenmerken:
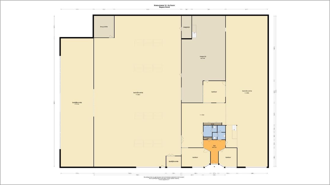
Begane grond:
- Hal/Kantoorruimte ca. 87 m2
- Facilitaire ruimte ca. 15 m2
- Bedrijfsruimte ca. 1.478 m2
Eerste verdieping:
- Opslagruimte ca. 338 m2
- Facilitaire ruimte / kantine ca. 34 m2
Huurcondities
- Huurprijs € 9.250,-- exclusief BTW per maand
- Huuringangsdatum: In overleg
- Huurbetaling: Per maand vooruit
- Huurtermijn: Uitgangspunt 5 jaar
- Zekerheidsstelling: Een bankgarantie/waarborgsom gelijk aan 3 maanden, te vermeerderen met BTW.
- Huurovereenkomst: Huurovereenkomst kantoorruimte en andere bedrijfsruimte in de zin van artikel 7:230a BW conform ROZ model, aangevuld met clausules door verhuurder
- Voorbehoud: Goedkeuring van de eigenaar/opdrachtgever.
BTW: Huurder verklaart het gehuurde voor tenminste 90% te zullen gebruiken voor prestaties die recht geven op aftrek van omzetbelasting. Indien huurder op enig moment niet meer aan het criterium voldoet, zal er van rechtswege sprake zijn van omzetbelasting vrijgestelde verhuur. Alsdan wordt overeengekomen kale huurprijs, exclusief omzetbelasting, zodanig verhoogd dat het voor verhuurder ontstane financiële nadeel wordt gecompenseerd.
Bestemmingsplan: Bij de gemeente Koggenland valt het perceel binnen het bestemmingsplan “Bedrijventerreinen”. Dit houdt in dat het perceel de enkelbestemming Bedrijventerrein heeft met de functieaanduiding bedrijf tot en met categorie 3.2. Bij twijfel over het toestaan van Uw bedrijfsvoering adviseren wij zelf contact op te nemen met de gemeente Koggenland.
Enthousiast? Bel ons voor het maken van een afspraak!
Het bedrijfsgebouw is gelegen op een goede ligging en uitstekend bereikbaar. Via de nabijgelegen uitvalsweg, de N194, ben je binnen enkele minuten op de Rijksweg A7, met snelle verbindingen richting Hoorn, Purmerend, Amsterdam en de Afsluitdijk o.a. richting Leeuwarden.
Kenmerken:
Begane grond:
- Hal/Kantoorruimte ca. 87 m2
- Facilitaire ruimte ca. 15 m2
- Bedrijfsruimte ca. 1.478 m2
Eerste verdieping:
- Opslagruimte ca. 338 m2
- Facilitaire ruimte / kantine ca. 34 m2
Huurcondities
- Huurprijs € 9.250,-- exclusief BTW per maand
- Huuringangsdatum: In overleg
- Huurbetaling: Per maand vooruit
- Huurtermijn: Uitgangspunt 5 jaar
- Zekerheidsstelling: Een bankgarantie/waarborgsom gelijk aan 3 maanden, te vermeerderen met BTW.
- Huurovereenkomst: Huurovereenkomst kantoorruimte en andere bedrijfsruimte in de zin van artikel 7:230a BW conform ROZ model, aangevuld met clausules door verhuurder
- Voorbehoud: Goedkeuring van de eigenaar/opdrachtgever.
BTW: Huurder verklaart het gehuurde voor tenminste 90% te zullen gebruiken voor prestaties die recht geven op aftrek van omzetbelasting. Indien huurder op enig moment niet meer aan het criterium voldoet, zal er van rechtswege sprake zijn van omzetbelasting vrijgestelde verhuur. Alsdan wordt overeengekomen kale huurprijs, exclusief omzetbelasting, zodanig verhoogd dat het voor verhuurder ontstane financiële nadeel wordt gecompenseerd.
Bestemmingsplan: Bij de gemeente Koggenland valt het perceel binnen het bestemmingsplan “Bedrijventerreinen”. Dit houdt in dat het perceel de enkelbestemming Bedrijventerrein heeft met de functieaanduiding bedrijf tot en met categorie 3.2. Bij twijfel over het toestaan van Uw bedrijfsvoering adviseren wij zelf contact op te nemen met de gemeente Koggenland.
Enthousiast? Bel ons voor het maken van een afspraak!
Kenmerken
Overdracht
- Huurprijs
- € 9.250 per maand
- Aangeboden sinds
-
- Status
- Beschikbaar
- Aanvaarding
- In overleg
Bouw
- Hoofdfunctie
- Bedrijfshal
- Soort bouw
- Bestaande bouw
- Bouwjaar
- 1990
Oppervlakten
- Oppervlakte
- 2.022 m²
- Bedrijfshal oppervlak
- 1.952 m²
- Kantoor oppervlak
- 70 m²
Indeling
- Aantal bouwlagen
- 1 bouwlaag
- Voorzieningen
- Lichtstraten, overheaddeuren, krachtstroom, betonvloer, heater, toilet, pantry, mechanische ventilatie, inbouwarmaturen en te openen ramen
Energie
- Energielabel
- A+++
Omgeving
- Ligging
- Bedrijventerrein
- Bereikbaarheid
- Bushalte op 500 m tot 1000 m en snelwegafrit op 3000 m tot 4000 m
Parkeergelegenheid
- Parkeerplaatsen
- 15 niet-overdekte parkeerplaatsen
Foto's