Kasteleinenkampweg 11-B 5222 AX Den Bosch
Huurprijs op aanvraag

Omschrijving
Kasteleinenkampweg 11B ’s-Hertogenbosch
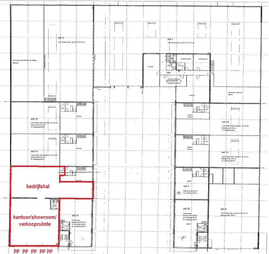
Deze bedrijfsruimte bestaande uit circa 225 m² kantoor/showroom/verkoopruimte, een bedrijfshal van circa 200 m² met circa 80 m² vide en heeft 5 privé parkeerplaatsen is gelegen aan de Kasteleinenkampweg, op het bedrijventerrein De Rietvelden in ‘s-Hertogenbosch. De Kasteleinenkampweg is een zijstraat van de Rietveldenweg nabij de afrit A59.
Het kantoor/showroom/verkoopruimte is voorzien van een elektrische dubbele schuifdeur (entree), pantry, dubbele toiletgroep, centrale verwarming, systeemplafond met verlichting, meterkast (tussenmeters) en de huidige ruimte indeling.
De bedrijfshal met vide heeft een grote lichtstraat en de ruimte is voorzien van elektrische overheaddeur, betonvloer, verlichting, toilet, heater.
Bestemming
Het bedrijfsgebouw is volgens opgave van de gemeente ‘s-Hertogenbosch gelegen binnen het thans vigerende bestemmingsplan (vastgesteld bij Raadsbesluit d.d. 3 juni 2013) Bedrijventerrein De Rietvelden, De Vutter en Het Ertveld. De voor Bedrijventerrein aangewezen gronden zijn bestemd voor ondernemingen in de categorieën 1 tot en met 4.1 van de bij het bestemmingsplan behorende staat van bedrijfsactiviteiten.
Bedrijfsruimte:
- kantoor/showroom/verkoopruimte: circa 225 m²
- bedrijfshal: circa 200 m² met een vide van circa 80 m²
- 5 parkeerplaatsen
Huurprijs :
- op aanvraag, te vermeerderen met BTW.
Servicekosten (voorschot):
- Gas, Water en Elektra: € 5.000,- per jaar (eea afhankelijk van het beoogde gebruik), te vermeerderen met BTW.
- Afvalcontainer: € 60 per maand, te vermeerderen met BTW.
BTW:
- Er wordt geopteerd voor een met btw belaste verhuur.
Betaling:
- Per maand vooruit.
Huurtermijn:
- Vijf jaren + telkens vijf optiejaren.
Opzegtermijn:
- Twaalf (12) maanden voorafgaande aan de expiratiedatum.
Indexering:
- Jaarlijks, voor het eerst één jaar na huuringangsdatum, op basis van de wijziging van het maandprijsindexcijfer volgens de consumentenprijsindex (CPI), reeks CPI voor alle huishoudens (2015=100), gepubliceerd door het Centraal Bureau voor de Statistiek (CBS).
Bankgarantie:
- Ter grootte van drie maanden huur te vermeerderen met servicekosten en BTW.
Huurovereenkomst
- Op basis van het ROZ-model.
Aanvaarding
- In overleg.
Deze bedrijfsruimte bestaande uit circa 225 m² kantoor/showroom/verkoopruimte, een bedrijfshal van circa 200 m² met circa 80 m² vide en heeft 5 privé parkeerplaatsen is gelegen aan de Kasteleinenkampweg, op het bedrijventerrein De Rietvelden in ‘s-Hertogenbosch. De Kasteleinenkampweg is een zijstraat van de Rietveldenweg nabij de afrit A59.
Het kantoor/showroom/verkoopruimte is voorzien van een elektrische dubbele schuifdeur (entree), pantry, dubbele toiletgroep, centrale verwarming, systeemplafond met verlichting, meterkast (tussenmeters) en de huidige ruimte indeling.
De bedrijfshal met vide heeft een grote lichtstraat en de ruimte is voorzien van elektrische overheaddeur, betonvloer, verlichting, toilet, heater.
Bestemming
Het bedrijfsgebouw is volgens opgave van de gemeente ‘s-Hertogenbosch gelegen binnen het thans vigerende bestemmingsplan (vastgesteld bij Raadsbesluit d.d. 3 juni 2013) Bedrijventerrein De Rietvelden, De Vutter en Het Ertveld. De voor Bedrijventerrein aangewezen gronden zijn bestemd voor ondernemingen in de categorieën 1 tot en met 4.1 van de bij het bestemmingsplan behorende staat van bedrijfsactiviteiten.
Bedrijfsruimte:
- kantoor/showroom/verkoopruimte: circa 225 m²
- bedrijfshal: circa 200 m² met een vide van circa 80 m²
- 5 parkeerplaatsen
Huurprijs :
- op aanvraag, te vermeerderen met BTW.
Servicekosten (voorschot):
- Gas, Water en Elektra: € 5.000,- per jaar (eea afhankelijk van het beoogde gebruik), te vermeerderen met BTW.
- Afvalcontainer: € 60 per maand, te vermeerderen met BTW.
BTW:
- Er wordt geopteerd voor een met btw belaste verhuur.
Betaling:
- Per maand vooruit.
Huurtermijn:
- Vijf jaren + telkens vijf optiejaren.
Opzegtermijn:
- Twaalf (12) maanden voorafgaande aan de expiratiedatum.
Indexering:
- Jaarlijks, voor het eerst één jaar na huuringangsdatum, op basis van de wijziging van het maandprijsindexcijfer volgens de consumentenprijsindex (CPI), reeks CPI voor alle huishoudens (2015=100), gepubliceerd door het Centraal Bureau voor de Statistiek (CBS).
Bankgarantie:
- Ter grootte van drie maanden huur te vermeerderen met servicekosten en BTW.
Huurovereenkomst
- Op basis van het ROZ-model.
Aanvaarding
- In overleg.
Kenmerken
Overdracht
- Huurprijs
- Huurprijs op aanvraag
- Servicekosten
- € 5.000 per jaar (21% BTW van toepassing)
- Aangeboden sinds
-
- Status
- Beschikbaar
- Aanvaarding
- In overleg
Bouw
- Hoofdfunctie
- Bedrijfshal
- Soort bouw
- Bestaande bouw
- Bouwperiode
- 1960-1970
Oppervlakten
- Oppervlakte
- 505 m²
- Bedrijfshal oppervlak
- 280 m²
- Kantoor oppervlak
- 225 m²
- Vrije hoogte
- 6 m
Indeling
- Aantal bouwlagen
- 1 bouwlaag
- Voorzieningen
- Lichtstraten, overheaddeuren, krachtstroom, betonvloer, heater en toilet
Energie
- Energielabel
- Niet beschikbaar
Foto's
























