Havenstraat 7 8304 AG Emmeloord
€ 498.000 k.k.
Omschrijving
Multifunctioneel bedrijfspand aan vaarwater met voldoende parkeerruimte.
Het pand grenst aan het water "1e Haven" met toegang tot de Urkervaart.
Op het bedrijventerrein Nagelerweg in Emmeloord aan de Havenstraat 7 staat dit vrijstaande bedrijfspand op een kavel van 2.361 m2 groot. Wij bieden dit complete bedrijfspand aan bestaande uit bedrijfshal met kantoor van in totaal ca.840 m2 met een verdieping van ca. 125 M2. Gerenommeerde bedrijven als Bouw Totaal, AES, van Staveren, NAK, Zeilmakerij Lampe, etc., zijn eveneens gevestigd op dit bedrijventerrein.
Bereikbaarheid
Echte bereikbaarheid is niet overal even gemakkelijk, maar Noordoostpolder behoort tot de uitzonderingen. Centrale ligging van de vestigingsplaats is voor vele bedrijven een 'must'. Van en naar steden in de Randstad, zoals Amsterdam en Utrecht, is het via de A6 om en nabij een uur rijden. Arnhem, Groningen, Leeuwarden dito. Zwolle ligt op een half uur rijden afstand over de N50. Files zijn er alleen bij hoge uitzondering en de doorstroming van A6 en N50 naar de bedrijventerreinen is optimaal. Dichtbij alles en alles dichtbij zonder files, het maakt Noordoostpolder tot een vestigingsplaats voor ondernemingen die het overwegen meer dan waard is. De locatie is uitstekend te bereiken, op korte afstand van de autosnelweg A6.
Oppervlakte
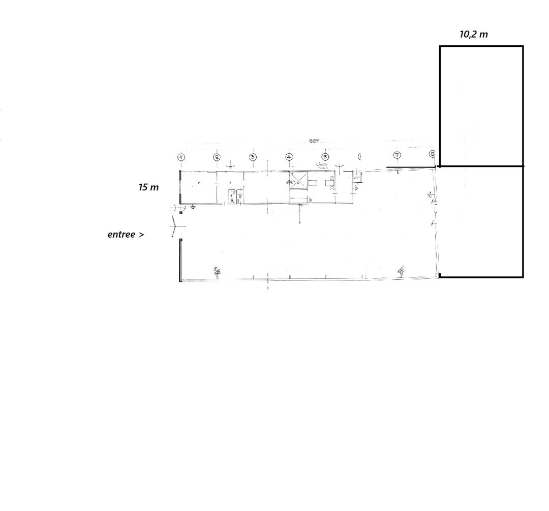
In totaal ca. 840 m2 bebouwd waarvan het grootste gedeelte bedrijfshal en een klein deel kantoor
Indeling; Bedrijfshal met entree/hal naar toiletten, kantoren, keuken, kantine, etc;
- Overige bedrijfsruimte; Loodsruimte v.v. gedeeltelijke zolderberging.
De ruimtes zijn gemakkelijk voor andere doeleinden te gebruiken en opnieuw in te delen.
Bovendien is er nog voldoende ruimte voor uitbreiding.
Parkeren
Op het bijbehorend terrein zijn ruim voldoende parkeerplaatsen beschikbaar.
Perceel
Dit pand wordt aangeboden op een kavel van ca. 2.361 m2 eigen grond.
Ontsluitingen
2x overheaddeur, loopdeuren aan de achterzijde en zijkant van het pand.
Bouwaard
Staalconstructie opgetrokken; wanden van kalkzandsteen en gevelbeplating; het dak is vernieuwd; tegelvloer, houten kozijnen; diverse vernieuwde lichtstraten. Zijwand hoogte van ca. 3.04 meter.
Bouwjaar
Het geheel is gebouwd in ca. 1970 en de uitbreiding 1979.
Indeling
Entree/ hal, kantoor, meterkast, toiletten/ kleedruimtes, kantoor, spreekkamer, keuken, kantine, bedrijfshal, opslag, kantoren.
Nog voldoende uitbreidingsmogelijkheden
Het pand grenst aan het water "1e Haven" met toegang tot de Urkervaart.
Op het bedrijventerrein Nagelerweg in Emmeloord aan de Havenstraat 7 staat dit vrijstaande bedrijfspand op een kavel van 2.361 m2 groot. Wij bieden dit complete bedrijfspand aan bestaande uit bedrijfshal met kantoor van in totaal ca.840 m2 met een verdieping van ca. 125 M2. Gerenommeerde bedrijven als Bouw Totaal, AES, van Staveren, NAK, Zeilmakerij Lampe, etc., zijn eveneens gevestigd op dit bedrijventerrein.
Bereikbaarheid
Echte bereikbaarheid is niet overal even gemakkelijk, maar Noordoostpolder behoort tot de uitzonderingen. Centrale ligging van de vestigingsplaats is voor vele bedrijven een 'must'. Van en naar steden in de Randstad, zoals Amsterdam en Utrecht, is het via de A6 om en nabij een uur rijden. Arnhem, Groningen, Leeuwarden dito. Zwolle ligt op een half uur rijden afstand over de N50. Files zijn er alleen bij hoge uitzondering en de doorstroming van A6 en N50 naar de bedrijventerreinen is optimaal. Dichtbij alles en alles dichtbij zonder files, het maakt Noordoostpolder tot een vestigingsplaats voor ondernemingen die het overwegen meer dan waard is. De locatie is uitstekend te bereiken, op korte afstand van de autosnelweg A6.
Oppervlakte
In totaal ca. 840 m2 bebouwd waarvan het grootste gedeelte bedrijfshal en een klein deel kantoor
Indeling; Bedrijfshal met entree/hal naar toiletten, kantoren, keuken, kantine, etc;
- Overige bedrijfsruimte; Loodsruimte v.v. gedeeltelijke zolderberging.
De ruimtes zijn gemakkelijk voor andere doeleinden te gebruiken en opnieuw in te delen.
Bovendien is er nog voldoende ruimte voor uitbreiding.
Parkeren
Op het bijbehorend terrein zijn ruim voldoende parkeerplaatsen beschikbaar.
Perceel
Dit pand wordt aangeboden op een kavel van ca. 2.361 m2 eigen grond.
Ontsluitingen
2x overheaddeur, loopdeuren aan de achterzijde en zijkant van het pand.
Bouwaard
Staalconstructie opgetrokken; wanden van kalkzandsteen en gevelbeplating; het dak is vernieuwd; tegelvloer, houten kozijnen; diverse vernieuwde lichtstraten. Zijwand hoogte van ca. 3.04 meter.
Bouwjaar
Het geheel is gebouwd in ca. 1970 en de uitbreiding 1979.
Indeling
Entree/ hal, kantoor, meterkast, toiletten/ kleedruimtes, kantoor, spreekkamer, keuken, kantine, bedrijfshal, opslag, kantoren.
Nog voldoende uitbreidingsmogelijkheden
Kenmerken
Overdracht
- Vraagprijs
- € 498.000 kosten koper
- Aangeboden sinds
-
- Status
- Beschikbaar
- Aanvaarding
- In overleg
Bouw
- Hoofdfunctie
- Bedrijfshal
- Soort bouw
- Bestaande bouw
- Bouwperiode
- 1971-1980
Oppervlakten
- Oppervlakte
- 840 m²
- Bedrijfshal oppervlak
- 840 m²
- Terrein oppervlak
- 750 m²
- Vrije hoogte
- 5 m
- Vrije overspanning
- 15 m
- Perceel
- 2.361 m²
- Uitbreidingsmogelijkheden
- 350 m²
Indeling
- Voorzieningen
- Lichtstraten, overheaddeuren, krachtstroom, heater, toilet en pantry
Energie
- Energielabel
- Niet beschikbaar
Omgeving
- Ligging
- Bedrijventerrein en aan vaarwater
- Bereikbaarheid
- Bushalte op 500 m tot 1000 m, busknooppunt op 1500 m tot 2000 m en snelwegafrit op 3000 m tot 4000 m
Foto's