Vasco da Gamastraat 6 7825 VJ Emmen
€ 72 /m²/jaar

Omschrijving
TE HUUR
Aan de Vasco da Gamastraat 6 te Emmen wordt dit vrijstaande bedrijfsgebouw aangeboden, gelegen op bedrijventerrein Bargermeer. Het pand is oorspronkelijk gebouwd in 1981 en in 2017 grondig gerenoveerd, waarbij installaties, afwerkingen en voorzieningen zijn gemoderniseerd. Het object beschikt over een totale oppervlakte van circa 1.100 m² op de begane grond en een verdieping van circa 150 m² in het loods gedeelte aan de achterzijde.
Het voorste deel omvat een representatieve kantoorruimte en bedrijfsruimte geschikt voor productie- of food gerelateerde activiteiten. Het achterste gedeelte betreft een moderne loods met een vrije hoogte van circa 5 meter, voorzien van overheaddeuren, krachtstroom, lichtstraten en een solide betonvloer.
Het geheel verkeert in goede bouwkundige staat en is direct gebruiksklaar voor uiteenlopende bedrijfsactiviteiten.
Een belangrijk pluspunt is dat veel binnenmuren niet dragend zijn, waardoor de indeling en afwerking flexibel aanpasbaar zijn aan de wensen van een huurder. De verhuurder denkt graag mee over een passende inrichting of aanpassing, zodat het object optimaal aansluit bij de bedrijfsvoering van de gebruiker.
Een extra voordeel van dit object is de uitstekende elektrische capaciteit. Het pand beschikt over krachtstroom en een aansluitvermogen van (op dit moment) 3 x 125 A, waarmee het geheel geschikt is voor zwaardere productieprocessen, machines of installaties en waarbij er tevens meer stroomcapaciteit aangevraagd kan worden.
Dankzij de logische indeling, eigen toegangen en de mogelijkheid tot gescheiden nutsvoorzieningen zijn beide delen uitstekend zelfstandig te gebruiken. (De bedrijfsruimte en de loods) Dit maakt het object aantrekkelijk voor zowel één totaal gebruiker als twee separate huurders.
De verhuurder staat open voor maatwerkafspraken en denkt graag mee over een indeling of opleveringsniveau dat aansluit bij de wensen van de huurder(s).
LOCATIE
Het object is gelegen op bedrijventerrein Bargermeer in Emmen, een veelzijdig en goed bereikbaar bedrijventerrein met een mix van productie-, handels- en dienstverlenende bedrijven.
De bereikbaarheid is uitstekend: via de N862 en A37 zijn omliggende plaatsen en steden eenvoudig te bereiken. Het centrum van Emmen bevindt zich op korte afstand, en openbaar vervoer (bushalte) is op loopafstand aanwezig.
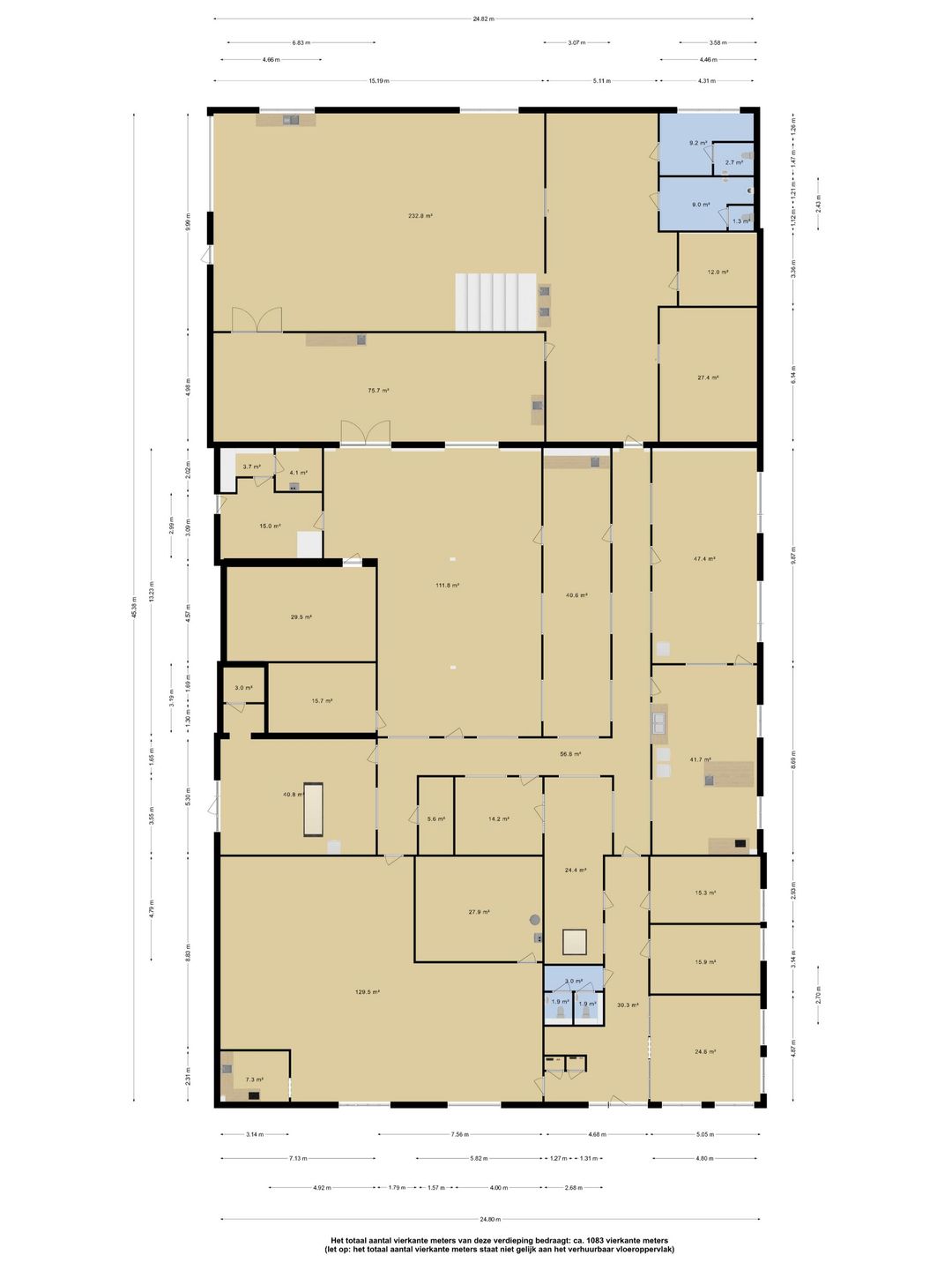
OPPERVLAKTE BVO / VVO en INDELING
Totale oppervlakte ca. 1.100 m² begane grond + ca. 150 m² verdieping op een perceel van 2.100 m².
Verdeling:
• Ca. 725 m² Bedrijfsruimte/kantoor (voorgebouw)
• Ca. 375 m² bedrijfsruimte + 150 m² verdieping (achterste loods)
Vrije hoogte loods: circa 5 meter
Vloer: betonvloer, geschikt voor zwaar gebruik
Buitenterrein: bestraat, parkeergelegenheid op eigen terrein aanwezig en er kan om het geheel heengereden worden met een bestelauto.
BESTEMMING
Op de locatie is het bestemmingsplan “Bargermeer” van toepassing met de bestemming “Bedrijventerrein” tot en met milieucategorie 3.2 (bga). Daarnaast bestaan er afwijkingsmogelijkheden voor aanverwante functies zoals lichte foodproductie of ondersteunende kantooractiviteiten, mits passend binnen de milieubelasting van de omgeving.
Gedetailleerde informatie over de bestemming is verkrijgbaar bij de Gemeente Emmen.
UITRUSTINGSNIVEAU
Voorzien van:
- Installaties
- Overheaddeuren
- Krachtstroom
- Lichtstraten
- Vloerverwarming
- Airco’s
- Over te nemen inventaris
Energielabel zal indien nodig aangevraagd worden.
OPLEVERINGSNIVEAU
In overleg met inventaris, anders casco.
HUURVOORWAARDEN
- ROZ model overige bedrijfsruimte met eventueel aanvullende voorwaarden
- Huurperiode 5 + 5 jaar
- Verlenging met telkens 5 jaar
- Opzegtermijn 6 maanden
- Indexering jaarlijks volgens CPI index Alle huishoudens
- Zekerheidsstelling 3 maanden huur + BTW
Evt: Afwijkende voorwaarden bespreekbaar en in overleg.
AANVAARDING
Kan per direct.
VERDELING HUUR:
Gehele object: jaarhuur € 80.000 excl. BTW
Voorgelegen bedrijfsruimte: € 60.000 excl. BTW
Loods achterzijde: € 30.000 excl. BTW
Contactpersoon: Swen Wichertjes
Deze informatie is met zorg samengesteld op basis van de beschikbare gegevens. Aan deze informatie kunnen echter geen rechten worden ontleend.
Aan de Vasco da Gamastraat 6 te Emmen wordt dit vrijstaande bedrijfsgebouw aangeboden, gelegen op bedrijventerrein Bargermeer. Het pand is oorspronkelijk gebouwd in 1981 en in 2017 grondig gerenoveerd, waarbij installaties, afwerkingen en voorzieningen zijn gemoderniseerd. Het object beschikt over een totale oppervlakte van circa 1.100 m² op de begane grond en een verdieping van circa 150 m² in het loods gedeelte aan de achterzijde.
Het voorste deel omvat een representatieve kantoorruimte en bedrijfsruimte geschikt voor productie- of food gerelateerde activiteiten. Het achterste gedeelte betreft een moderne loods met een vrije hoogte van circa 5 meter, voorzien van overheaddeuren, krachtstroom, lichtstraten en een solide betonvloer.
Het geheel verkeert in goede bouwkundige staat en is direct gebruiksklaar voor uiteenlopende bedrijfsactiviteiten.
Een belangrijk pluspunt is dat veel binnenmuren niet dragend zijn, waardoor de indeling en afwerking flexibel aanpasbaar zijn aan de wensen van een huurder. De verhuurder denkt graag mee over een passende inrichting of aanpassing, zodat het object optimaal aansluit bij de bedrijfsvoering van de gebruiker.
Een extra voordeel van dit object is de uitstekende elektrische capaciteit. Het pand beschikt over krachtstroom en een aansluitvermogen van (op dit moment) 3 x 125 A, waarmee het geheel geschikt is voor zwaardere productieprocessen, machines of installaties en waarbij er tevens meer stroomcapaciteit aangevraagd kan worden.
Dankzij de logische indeling, eigen toegangen en de mogelijkheid tot gescheiden nutsvoorzieningen zijn beide delen uitstekend zelfstandig te gebruiken. (De bedrijfsruimte en de loods) Dit maakt het object aantrekkelijk voor zowel één totaal gebruiker als twee separate huurders.
De verhuurder staat open voor maatwerkafspraken en denkt graag mee over een indeling of opleveringsniveau dat aansluit bij de wensen van de huurder(s).
LOCATIE
Het object is gelegen op bedrijventerrein Bargermeer in Emmen, een veelzijdig en goed bereikbaar bedrijventerrein met een mix van productie-, handels- en dienstverlenende bedrijven.
De bereikbaarheid is uitstekend: via de N862 en A37 zijn omliggende plaatsen en steden eenvoudig te bereiken. Het centrum van Emmen bevindt zich op korte afstand, en openbaar vervoer (bushalte) is op loopafstand aanwezig.
OPPERVLAKTE BVO / VVO en INDELING
Totale oppervlakte ca. 1.100 m² begane grond + ca. 150 m² verdieping op een perceel van 2.100 m².
Verdeling:
• Ca. 725 m² Bedrijfsruimte/kantoor (voorgebouw)
• Ca. 375 m² bedrijfsruimte + 150 m² verdieping (achterste loods)
Vrije hoogte loods: circa 5 meter
Vloer: betonvloer, geschikt voor zwaar gebruik
Buitenterrein: bestraat, parkeergelegenheid op eigen terrein aanwezig en er kan om het geheel heengereden worden met een bestelauto.
BESTEMMING
Op de locatie is het bestemmingsplan “Bargermeer” van toepassing met de bestemming “Bedrijventerrein” tot en met milieucategorie 3.2 (bga). Daarnaast bestaan er afwijkingsmogelijkheden voor aanverwante functies zoals lichte foodproductie of ondersteunende kantooractiviteiten, mits passend binnen de milieubelasting van de omgeving.
Gedetailleerde informatie over de bestemming is verkrijgbaar bij de Gemeente Emmen.
UITRUSTINGSNIVEAU
Voorzien van:
- Installaties
- Overheaddeuren
- Krachtstroom
- Lichtstraten
- Vloerverwarming
- Airco’s
- Over te nemen inventaris
Energielabel zal indien nodig aangevraagd worden.
OPLEVERINGSNIVEAU
In overleg met inventaris, anders casco.
HUURVOORWAARDEN
- ROZ model overige bedrijfsruimte met eventueel aanvullende voorwaarden
- Huurperiode 5 + 5 jaar
- Verlenging met telkens 5 jaar
- Opzegtermijn 6 maanden
- Indexering jaarlijks volgens CPI index Alle huishoudens
- Zekerheidsstelling 3 maanden huur + BTW
Evt: Afwijkende voorwaarden bespreekbaar en in overleg.
AANVAARDING
Kan per direct.
VERDELING HUUR:
Gehele object: jaarhuur € 80.000 excl. BTW
Voorgelegen bedrijfsruimte: € 60.000 excl. BTW
Loods achterzijde: € 30.000 excl. BTW
Contactpersoon: Swen Wichertjes
Deze informatie is met zorg samengesteld op basis van de beschikbare gegevens. Aan deze informatie kunnen echter geen rechten worden ontleend.
Kenmerken
Overdracht
- Huurprijs
- € 72 per vierkante meter per jaar
- Aangeboden sinds
-
- Status
- Beschikbaar
- Aanvaarding
- Per direct beschikbaar
Bouw
- Hoofdfunctie
- Bedrijfshal
- Soort bouw
- Bestaande bouw
- Bouwjaar
- 2017
Oppervlakten
- Oppervlakte
- 1.400 m² (in units vanaf 375 m²)
- Bedrijfshal oppervlak
- 1.100 m²
- Kantoor oppervlak
- 300 m²
- Vrije hoogte
- 5 m
- Perceel
- 2.100 m²
Indeling
- Aantal bouwlagen
- 1 bouwlaag
- Voorzieningen
- Airconditioning, lichtstraten, overheaddeuren, krachtstroom, betonvloer, toilet, pantry, inbouwarmaturen en te openen ramen
Energie
- Energielabel
- Niet verplicht
Omgeving
- Ligging
- Bedrijventerrein
Foto's













































