Rijksweg 58 7011 EA Gaanderen
Prijs op aanvraag

Omschrijving
Voor VERKOOP beschikbaar een autogaragebedrijf met showroom, kantoor, werkplaats en buitenterrein. Gelegen op een goede zichtlocatie aan de Rijksweg te Gaanderen en op korte afstand van de op-/afrit van de snelweg A18. Het betreft een vrijstaand bedrijfsgebouw op een hoeklocatie met eigen parkeermogelijkheden.
Het object wordt opgeleverd in de huidige staat, waardoor het direct in gebruik te nemen is als onderhoudsgarage en verkoop ten behoeve van auto's.
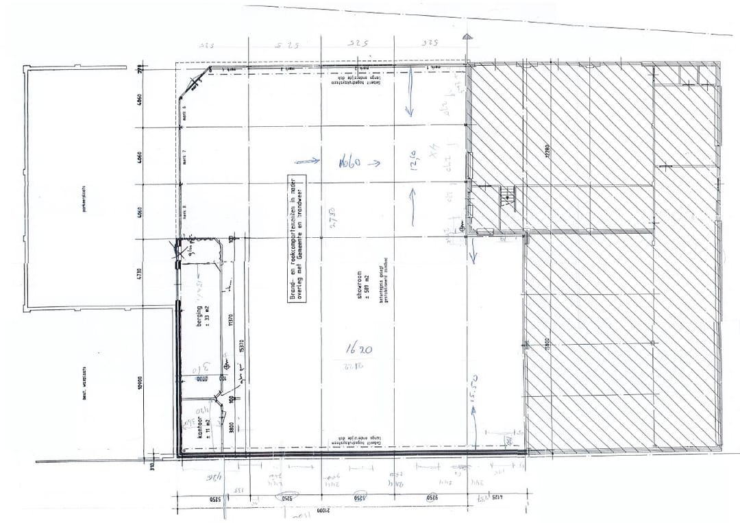
INDELING
Op de begane grond bevinden zich een entree met een receptie met een koffiehoek, een showroom met veel lichtinval alsmede de bedrijfshal met bruggen, magazijn en milieuruimte.
Op de verdieping een verblijfsruimte en ruimte ten behoeve van opslag/archief.
AFMETING
Showroom: ca. 855 m²
Werkplaats: ca. 155 m²
Receptie, kantoor: ca. 50 m²
Verdieping: ca. 40 m²
De totale perceeloppervlakte bedraagt 1.661 m².
VOORZIENINGEN
- Meerdere overheaddeuren
- Autobruggen (ter overname)
- Krachtstroom
- Toiletgroep
- Pantry
- Verwarming middels indirect gestookte heaters in de bedrijfsruimte
BEREIKBAARHEID
Het object is goed te bereiken op bedrijventerrein van Gaanderen nabij de op-/afrit van de snelweg A18, die aansluit op de A12 richting Arnhem of de N18 (Twenteroute) richting Enschede. Het centrum van Doetinchem is ook op 15 autominuten gelegen. Tevens is er een bushalte op enkele minuten loopafstand en een treinstation.
Er zijn voldoende parkeermogelijkheden op eigen terrein.
BESTEMMING
Van toepassing is het bestemmingsplan ''Stedelijk Gebied - 2021" met enkelbestemming Bedrijventerrein.
De functieaanduiding is bedrijf tot en met categorie 3.2.
OPLEVERINGSNIVEAU
Het uitgangspunt is een oplevering in de huidige staat en aansluitingen voor gas, water en elektra.
Inventaris en auto equipment ter overname
VRAAGPRIJS
Op aanvraag.
AANVAARDING
In overleg.
DISCLAIMER
Deze informatie is door ons met de nodige zorgvuldigheid samengesteld. Onzerzijds wordt echter geen enkele aansprakelijkheid aanvaard voor enige onvolledigheid, onjuistheid of anderszins, dan wel de gevolgen daarvan. Alle opgegeven maten en oppervlakten zijn indicatief. De vermelde informatie is van algemene aard en is niet meer dan een uitnodiging om in onderhandeling te treden.
Het object wordt opgeleverd in de huidige staat, waardoor het direct in gebruik te nemen is als onderhoudsgarage en verkoop ten behoeve van auto's.
INDELING
Op de begane grond bevinden zich een entree met een receptie met een koffiehoek, een showroom met veel lichtinval alsmede de bedrijfshal met bruggen, magazijn en milieuruimte.
Op de verdieping een verblijfsruimte en ruimte ten behoeve van opslag/archief.
AFMETING
Showroom: ca. 855 m²
Werkplaats: ca. 155 m²
Receptie, kantoor: ca. 50 m²
Verdieping: ca. 40 m²
De totale perceeloppervlakte bedraagt 1.661 m².
VOORZIENINGEN
- Meerdere overheaddeuren
- Autobruggen (ter overname)
- Krachtstroom
- Toiletgroep
- Pantry
- Verwarming middels indirect gestookte heaters in de bedrijfsruimte
BEREIKBAARHEID
Het object is goed te bereiken op bedrijventerrein van Gaanderen nabij de op-/afrit van de snelweg A18, die aansluit op de A12 richting Arnhem of de N18 (Twenteroute) richting Enschede. Het centrum van Doetinchem is ook op 15 autominuten gelegen. Tevens is er een bushalte op enkele minuten loopafstand en een treinstation.
Er zijn voldoende parkeermogelijkheden op eigen terrein.
BESTEMMING
Van toepassing is het bestemmingsplan ''Stedelijk Gebied - 2021" met enkelbestemming Bedrijventerrein.
De functieaanduiding is bedrijf tot en met categorie 3.2.
OPLEVERINGSNIVEAU
Het uitgangspunt is een oplevering in de huidige staat en aansluitingen voor gas, water en elektra.
Inventaris en auto equipment ter overname
VRAAGPRIJS
Op aanvraag.
AANVAARDING
In overleg.
DISCLAIMER
Deze informatie is door ons met de nodige zorgvuldigheid samengesteld. Onzerzijds wordt echter geen enkele aansprakelijkheid aanvaard voor enige onvolledigheid, onjuistheid of anderszins, dan wel de gevolgen daarvan. Alle opgegeven maten en oppervlakten zijn indicatief. De vermelde informatie is van algemene aard en is niet meer dan een uitnodiging om in onderhandeling te treden.
Kenmerken
Overdracht
- Vraagprijs
- Prijs op aanvraag
- Aangeboden sinds
-
- Status
- Beschikbaar
- Aanvaarding
- In overleg
Bouw
- Hoofdfunctie
- Bedrijfshal
- Soort bouw
- Bestaande bouw
- Bouwjaar
- 1991
Oppervlakten
- Oppervlakte
- 1.100 m² (in units vanaf 1.050 m²)
- Bedrijfshal oppervlak
- 1.050 m²
- Kantoor oppervlak
- 50 m²
- Vrije hoogte
- 3,9 m
- Perceel
- 3.242 m²
Indeling
- Aantal bouwlagen
- 1 bouwlaag
- Voorzieningen
- Overheaddeuren, krachtstroom, betonvloer, heater, toilet, pantry, mechanische ventilatie, inbouwarmaturen en te openen ramen
Energie
- Energielabel
- Niet beschikbaar
Omgeving
- Ligging
- Bedrijventerrein
- Bereikbaarheid
- Bushalte op 500 m tot 1000 m, NS Intercitystation op 1000 m tot 1500 m en snelwegafrit op 3000 m tot 4000 m
Foto's

















