Tallinnweg 9 9723 TJ Groningen
€ 60.000 /jr

Omschrijving
Op een gunstige hoeklocatie op bedrijventerrein ‘Euvelgunne’ in Groningen komt een deel van dit bedrijfspand beschikbaar voor de verhuur. Het object wordt geheel nieuw gebouwd en voorzien van hoge isolatiewaarden en aluminium kozijnen met triple glas.
Object
Tallinnweg 9 (9723 TJ) Groningen
Soort
Bedrijfsruimte met kantoor
Locatie
Gelegen op bedrijventerrein Euvelgunne, nabij het object bevinden zich o.a. Bastion Hotel, Actief Werkt, Mastermate en Sligro.
Oppervlakte
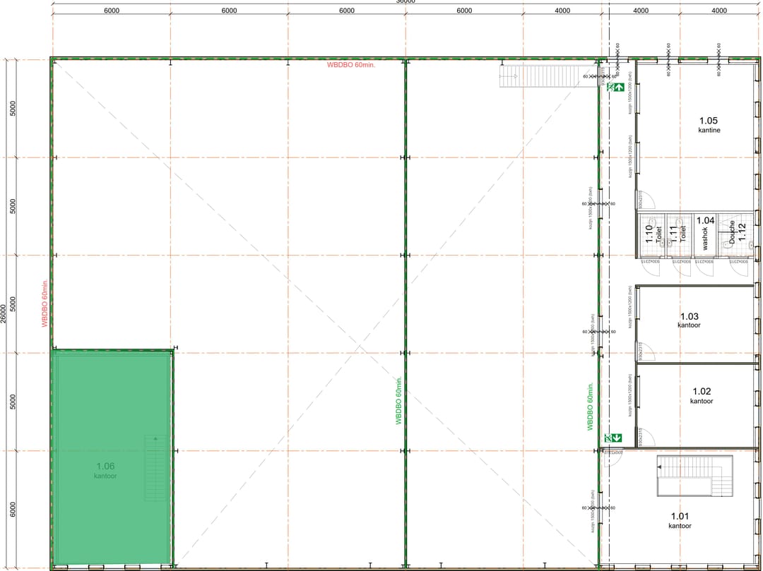
De totaal beschikbare ruimte is groot circa 534 m² en is als volgt verdeeld:
Verdieping Oppervlakte (vvo)
Bedrijfsruimte begane grond: ca. 402 m²
Kantoorruimte begane grond: ca. 66 m²
Kantoorruimte eerste verdieping: ca. 66 m²
Totaal: ca. 534 m²
Parkeren
Op eigen terrein bevinden zich 5 parkeerplaatsen.
Bereikbaarheid
Gelegen op bedrijventerrein Euvelgunne aan de oostkant van de stad, biedt deze locatie een uitstekende bereikbaarheid voor zowel personenvervoer als logistiek. Dankzij de directe aansluiting op de N7 (Ring Groningen) zijn er snelle verbindingen met de A7 richting Drachten en Heerenveen en de A28 richting Assen en Zwolle.
Energielabel
Volgt na realisatie bouw.
Aanvaarding
In overleg.
Opleveringsniveau
Het object wordt opgeleverd met de navolgende voorzieningen:
Algemeen:
- Zeer hoge isolatiewaarden
- Aluminium kozijnen met triple glas
- Gebruik van hoogwaardige kwaliteit materialen
- Geluidsisolatie tussen bedrijfsruimte en kantoren
- Eigen nuts aansluiting 3x 80A
- Zonnepanelen
- Warmtepomp
- Airconditioning
Bedrijfsruimte
- Vloerbelasting ca. 2.000 kg/m²
- Eén overheaddeur
- Betonnen vloer
- Vrije hoogte (ca. 8.80 meter)
Kantoorruimte
- Ruime kantoren
- Goede geluidsisolatie
- Hoge plafonds
- Veel lichtinval door raampartijen
- Luxe afwerking
- Pantry
- Toilet
Huurvoorwaarden
Huurovereenkomst: ROZ model 2015
Huurperiode: 5 jaar
Verlenging: met telkens 5 jaar
Opzegtermijn: 12 maanden
Huurbetaling: per maand/kwartaal bij vooruitbetaling
Huurprijsindexering: jaarlijks, voor het eerst 1 jaar na huuringangsdatum (op basis van het CPI alle huishoudens (2015=100)
Zekerheidsstelling: waarborgsom van 3 maanden huur en btw
Huurprijs
€ 60.000,- per jaar, te vermeerderen met btw
Bestemmingsplan
Het object valt in het bestemmingsplan Bedrijventerrein Zuidoost. De bestemming van het object is ‘Bedrijventerrein’. Raadpleeg voor meer informatie omgevingswet.overheid.nl of de te downloaden brochure.
Disclaimer
Deze informatie alsmede de inhoud van eventuele bijlagen is zorgvuldig samengesteld. Desondanks wordt onzerzijds geen aansprakelijkheid aanvaard ten aanzien van onvolledigheid en/of onjuistheid, dan wel de gevolgen daarvan. De vermelde informatie is een uitnodiging om in onderhandeling te treden en mag niet als grondslag voor een overeenkomst worden beschouwd. De kennisgeving van deze informatie alsmede een eventuele huurovereenkomst is onder voorbehoud definitieve goedkeuring opdrachtgever. Opdrachtgever heeft het recht de verhuurprocedure naar eigen goeddunken, zonder kennisgeving, te veranderen en heeft tevens het recht om te allen tijde met één of meer gegadigden te onderhandelen en/of zonder opgaaf van reden zich terug te trekken, welke niet zal leiden tot enige aanspraak en/of vergoeding. Overname, plaatsing op internetsites, verveelvoudiging op welke andere wijze dan ook van deze inhoud is niet toegestaan. Alle maten en oppervlakten zijn indicatief.
Object
Tallinnweg 9 (9723 TJ) Groningen
Soort
Bedrijfsruimte met kantoor
Locatie
Gelegen op bedrijventerrein Euvelgunne, nabij het object bevinden zich o.a. Bastion Hotel, Actief Werkt, Mastermate en Sligro.
Oppervlakte
De totaal beschikbare ruimte is groot circa 534 m² en is als volgt verdeeld:
Verdieping Oppervlakte (vvo)
Bedrijfsruimte begane grond: ca. 402 m²
Kantoorruimte begane grond: ca. 66 m²
Kantoorruimte eerste verdieping: ca. 66 m²
Totaal: ca. 534 m²
Parkeren
Op eigen terrein bevinden zich 5 parkeerplaatsen.
Bereikbaarheid
Gelegen op bedrijventerrein Euvelgunne aan de oostkant van de stad, biedt deze locatie een uitstekende bereikbaarheid voor zowel personenvervoer als logistiek. Dankzij de directe aansluiting op de N7 (Ring Groningen) zijn er snelle verbindingen met de A7 richting Drachten en Heerenveen en de A28 richting Assen en Zwolle.
Energielabel
Volgt na realisatie bouw.
Aanvaarding
In overleg.
Opleveringsniveau
Het object wordt opgeleverd met de navolgende voorzieningen:
Algemeen:
- Zeer hoge isolatiewaarden
- Aluminium kozijnen met triple glas
- Gebruik van hoogwaardige kwaliteit materialen
- Geluidsisolatie tussen bedrijfsruimte en kantoren
- Eigen nuts aansluiting 3x 80A
- Zonnepanelen
- Warmtepomp
- Airconditioning
Bedrijfsruimte
- Vloerbelasting ca. 2.000 kg/m²
- Eén overheaddeur
- Betonnen vloer
- Vrije hoogte (ca. 8.80 meter)
Kantoorruimte
- Ruime kantoren
- Goede geluidsisolatie
- Hoge plafonds
- Veel lichtinval door raampartijen
- Luxe afwerking
- Pantry
- Toilet
Huurvoorwaarden
Huurovereenkomst: ROZ model 2015
Huurperiode: 5 jaar
Verlenging: met telkens 5 jaar
Opzegtermijn: 12 maanden
Huurbetaling: per maand/kwartaal bij vooruitbetaling
Huurprijsindexering: jaarlijks, voor het eerst 1 jaar na huuringangsdatum (op basis van het CPI alle huishoudens (2015=100)
Zekerheidsstelling: waarborgsom van 3 maanden huur en btw
Huurprijs
€ 60.000,- per jaar, te vermeerderen met btw
Bestemmingsplan
Het object valt in het bestemmingsplan Bedrijventerrein Zuidoost. De bestemming van het object is ‘Bedrijventerrein’. Raadpleeg voor meer informatie omgevingswet.overheid.nl of de te downloaden brochure.
Disclaimer
Deze informatie alsmede de inhoud van eventuele bijlagen is zorgvuldig samengesteld. Desondanks wordt onzerzijds geen aansprakelijkheid aanvaard ten aanzien van onvolledigheid en/of onjuistheid, dan wel de gevolgen daarvan. De vermelde informatie is een uitnodiging om in onderhandeling te treden en mag niet als grondslag voor een overeenkomst worden beschouwd. De kennisgeving van deze informatie alsmede een eventuele huurovereenkomst is onder voorbehoud definitieve goedkeuring opdrachtgever. Opdrachtgever heeft het recht de verhuurprocedure naar eigen goeddunken, zonder kennisgeving, te veranderen en heeft tevens het recht om te allen tijde met één of meer gegadigden te onderhandelen en/of zonder opgaaf van reden zich terug te trekken, welke niet zal leiden tot enige aanspraak en/of vergoeding. Overname, plaatsing op internetsites, verveelvoudiging op welke andere wijze dan ook van deze inhoud is niet toegestaan. Alle maten en oppervlakten zijn indicatief.
Kenmerken
Overdracht
- Huurprijs
- € 60.000 per jaar
- Aangeboden sinds
-
- Status
- Beschikbaar
- Aanvaarding
- In overleg
Bouw
- Hoofdfunctie
- Bedrijfshal
- Soort bouw
- Bestaande bouw
- Bouwjaar
- Momenteel in aanbouw
Oppervlakten
- Oppervlakte
- 534 m²
- Bedrijfshal oppervlak
- 402 m²
- Kantoor oppervlak
- 132 m²
- Vrije hoogte
- 8,8 m
- Draagvermogen
- 2.000 kg/m²
Indeling
- Aantal bouwlagen
- 2 bouwlagen
- Voorzieningen
- Overheaddeuren, betonvloer, toilet, pantry, inbouwarmaturen en te openen ramen
Energie
- Energielabel
- Niet verplicht
Omgeving
- Ligging
- Bedrijventerrein
- Bereikbaarheid
- Bushalte op minder dan 500 m, metrohalte op 5000 m of meer, NS Intercitystation op 1500 m tot 2000 m, snelwegafrit op 500 m tot 1000 m en Tramhalte op 5000 m of meer
Parkeergelegenheid
- Parkeerplaatsen
- 5 niet-overdekte parkeerplaatsen
Foto's







Plattegrond
Begane grond

Eerste verdieping
