Lorentzstraat 11-05 3846 AV Harderwijk
€ 16.200 /jr

Omschrijving
TE HUUR
Bedrijfsunit met kantoorruimte – Lorentzstraat 11-05, Harderwijk
Werkplaats 11 – Unieke split-level bedrijfsruimte op toplocatie
Een representatieve en multifunctionele bedrijfsunit in het bedrijfsverzamelgebouw Werkplaats 11, gelegen aan de hoofdweg van het bedrijventerrein Lorentz. De unit beschikt over een moderne uitstraling, goede bereikbaarheid en is geschikt voor diverse bedrijfsactiviteiten.
LOCATIE
Gelegen aan de Lorentzstraat, hoofdverkeersader van bedrijventerrein Lorentz.
BEREIKBAARHEID
- Nabij snelweg A28 (Amersfoort – Zwolle).
- Nabij provinciale weg N302 (Harderwijk – Lelystad).
- Goed bereikbaar met het openbaar vervoer (bus).
BESTEMMINGSPLAN
Enkelbestemming: Bedrijf.
Extra: Unieke detailhandelsfunctie – functieaanduiding "Specifieke vorm van detailhandel - 2". (Meer info op aanvraag.)
OPPERVLAKTE
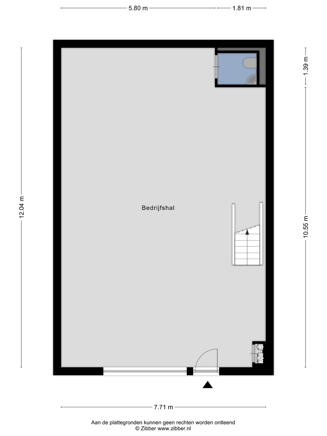
Totaal: ca. 165 m² verdeeld over:
- Begane grond: ca. 90 m² bedrijfsruimte.
- 1e verdieping: ca. 37,5 m² kantoor-/bedrijfsruimte.
- 2e verdieping: ca. 37,5 m² kantoor-/bedrijfsruimte.
VOORZIENINGEN
- een meterkast met aansluitingen op de nutsvoorzieningen;
- betonnen vloer begane grond;
- vloerverwarming;
- elektrische overheaddeur;
- loopdeur;
- pantry;
- toilet met fontein op de begane grond.
INRIJHOOGTE
ca. 3,50 m.
PARKEREN
Parkeervoorziening 30 plekken rondom het pand (gezamenlijk gebruik) en 3 eigen parkeerplekken.
PROJECTWEBSITE
lorentstraat11-05.nl
HUURPRIJS
€ 16.500 per jaar te vermeerderen met btw.
AANVRAARDING
Per direct beschikbaar.
HUURTERMIJN
5 jaar.
VERLENGINGSTERMIJN
Telkens 5 jaar.
OPZEGTERMIJN
12 volle kalendermaanden.
INDEXERING
Jaarlijks volgens CPI (Alle Huishoudens, 2015=100).
WAARBORGSOM
Ter grootte van een kwartaalhuur te vermeerderen met omzetbelasting..
OMZETBELASTING
Er wordt geopteerd voor belaste verhuur, c.q. de huurprijs wordt verhoogd met omzetbelasting. Indien er niet wordt geopteerd voor belaste verhuur, wordt de huurprijs verhoogd met een nader door de accountant van verhuurder vast te stellen percentage.
PRIVACY
Brandt Bedrijfsmakelaars respecteert uw recht op privacy en garandeert dat uw persoons- en bedrijfsgegevens op een vertrouwelijke en verantwoordelijke wijze zullen worden behandeld, overeenkomstig de richtlijnen uit de Algemene Verordening Gegevensbescherming (AVG).
DISCLAIMER
Nadrukkelijk is vermeld dat deze informatieverstrekking niet als een aanbieding of offerte mag worden beschouwd. Aan deze gegevens kunnen geen rechten worden ontleend.
Bedrijfsunit met kantoorruimte – Lorentzstraat 11-05, Harderwijk
Werkplaats 11 – Unieke split-level bedrijfsruimte op toplocatie
Een representatieve en multifunctionele bedrijfsunit in het bedrijfsverzamelgebouw Werkplaats 11, gelegen aan de hoofdweg van het bedrijventerrein Lorentz. De unit beschikt over een moderne uitstraling, goede bereikbaarheid en is geschikt voor diverse bedrijfsactiviteiten.
LOCATIE
Gelegen aan de Lorentzstraat, hoofdverkeersader van bedrijventerrein Lorentz.
BEREIKBAARHEID
- Nabij snelweg A28 (Amersfoort – Zwolle).
- Nabij provinciale weg N302 (Harderwijk – Lelystad).
- Goed bereikbaar met het openbaar vervoer (bus).
BESTEMMINGSPLAN
Enkelbestemming: Bedrijf.
Extra: Unieke detailhandelsfunctie – functieaanduiding "Specifieke vorm van detailhandel - 2". (Meer info op aanvraag.)
OPPERVLAKTE
Totaal: ca. 165 m² verdeeld over:
- Begane grond: ca. 90 m² bedrijfsruimte.
- 1e verdieping: ca. 37,5 m² kantoor-/bedrijfsruimte.
- 2e verdieping: ca. 37,5 m² kantoor-/bedrijfsruimte.
VOORZIENINGEN
- een meterkast met aansluitingen op de nutsvoorzieningen;
- betonnen vloer begane grond;
- vloerverwarming;
- elektrische overheaddeur;
- loopdeur;
- pantry;
- toilet met fontein op de begane grond.
INRIJHOOGTE
ca. 3,50 m.
PARKEREN
Parkeervoorziening 30 plekken rondom het pand (gezamenlijk gebruik) en 3 eigen parkeerplekken.
PROJECTWEBSITE
lorentstraat11-05.nl
HUURPRIJS
€ 16.500 per jaar te vermeerderen met btw.
AANVRAARDING
Per direct beschikbaar.
HUURTERMIJN
5 jaar.
VERLENGINGSTERMIJN
Telkens 5 jaar.
OPZEGTERMIJN
12 volle kalendermaanden.
INDEXERING
Jaarlijks volgens CPI (Alle Huishoudens, 2015=100).
WAARBORGSOM
Ter grootte van een kwartaalhuur te vermeerderen met omzetbelasting..
OMZETBELASTING
Er wordt geopteerd voor belaste verhuur, c.q. de huurprijs wordt verhoogd met omzetbelasting. Indien er niet wordt geopteerd voor belaste verhuur, wordt de huurprijs verhoogd met een nader door de accountant van verhuurder vast te stellen percentage.
PRIVACY
Brandt Bedrijfsmakelaars respecteert uw recht op privacy en garandeert dat uw persoons- en bedrijfsgegevens op een vertrouwelijke en verantwoordelijke wijze zullen worden behandeld, overeenkomstig de richtlijnen uit de Algemene Verordening Gegevensbescherming (AVG).
DISCLAIMER
Nadrukkelijk is vermeld dat deze informatieverstrekking niet als een aanbieding of offerte mag worden beschouwd. Aan deze gegevens kunnen geen rechten worden ontleend.
Kenmerken
Overdracht
- Huurprijs
- € 16.200 per jaar
- Aangeboden sinds
-
- Status
- Beschikbaar
- Aanvaarding
- In overleg
Bouw
- Hoofdfunctie
- Bedrijfshal
- Soort bouw
- Bestaande bouw
- Bouwjaar
- 2022
Oppervlakten
- Oppervlakte
- 165 m²
- Bedrijfshal oppervlak
- 90 m²
- Kantoor oppervlak
- 75 m²
- Vrije hoogte
- 35 m
- Perceel
- 2.000 m²
Indeling
- Aantal bouwlagen
- 2 bouwlagen
- Voorzieningen
- Mechanische ventilatie, lichtstraten, overheaddeuren, betonvloer, toilet, pantry, inbouwarmaturen en te openen ramen
Energie
- Energielabel
- Niet verplicht
Omgeving
- Ligging
- Bedrijventerrein
- Bereikbaarheid
- Bushalte op minder dan 500 m, NS Intercitystation op 4000 m tot 5000 m en snelwegafrit op 500 m tot 1000 m
NVM makelaar
Foto's



















Plattegrond
Begane Grond

Eerste Verdieping
