Smederij 4 3371 MC Hardinxveld-Giessendam
- Nieuw
€ 10.000 /mnd

Omschrijving
Op bedrijventerrein Nieuweweg te Hardinxveld-Giessendam wordt dit ruime en functionele bedrijfspand te huur/te koop aangeboden. De bedrijfsruimte is verdeeld in 2 compartimenten en omvat in totaal ca. 1.430 m² bedrijfsruimte. De kantoorruimte is verdeeld over 2 bouwlagen en omvat ca. 141 m². Het pand is uitstekend geschikt voor diverse bedrijfsactiviteiten zoals productie, opslag of logistieke doeleinden.
De bedrijfsruimte bestaat uit twee compartimenten, deels gebouwd in 2005 en deels gebouwd in 2015. Dankzij de lichtstraten en gevelkozijnen is er veel natuurlijke lichtinval, wat zorgt voor een prettige werkomgeving.
De hal beschikt over drie elektrisch bedienbare overheaddeuren, waardoor het pand zeer goed toegankelijk is. Tevens zijn beide compartimenten voorzien van stellingen. Het oorspronkelijke deel (bouwjaar 2005) heeft een goothoogte van ca. 5,90 meter en een nokhoogte van ca. 9,5 meter. De uitbreiding uit 2015 omvat een moderne bedrijfshal met een vrije hoogte van 8 meter onder staalconstructie en is voor een deel voorzien van een entresolvloer verdeeld over twee lagen.
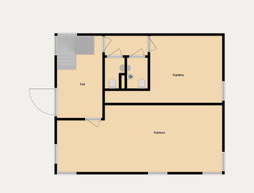
De kantoorruimte bestaat uit 2 verdiepingen. Op de begane grond bevinden zich kantoorruimte, kantine voorzien van pantry met koelkast en vaatwasser en toiletruimten. Via de trap toegang tot de 1e verdieping met 2 spreek-/werkkamers. De kantoorruimtes zijn voorzien van tapijt, vloerverwarming en airconditioning, kabelgoten met WCD en datapunten. Via de kantine is er toegang tot het magazijn.
LOCATIE
De bedrijfsruimte is gelegen op het bedrijventerrein Nieuweweg in Hardinxveld-Giessendam. Op korte afstand bevinden zich de op- en afritten van de rijksweg A15 (Rotterdam – Nijmegen).
AFMETINGEN
Kantoorruimte : ca. 141 m2
Bedrijfsruimte I : ca. 530 m2
Bedrijfsruimte II : ca. 900 m2
Entresolvloer I : ca. 165 m²
Entresolvloer II : ca. 270 m²
PARKEERPLAATSEN
7 parkeerplaatsen op eigen terrein.
In de omgeving ruime openbare parkeergelegenheid.
BOUWJAAR
2005 (BAG-vieuwer)
ENERGIELABEL
A (geldig tot 11 december 2033).
BESTEMMING
In bestemmingsplan Gemeente Hardinxveld-Giessendam, bebouwd gebied (onherroepelijk, d.d. 30 maart 2017) heeft het bedrijfspand de bestemming Bedrijventerrein met functieaanduiding ‘bedrijf tot en met categorie 2’.
Bron:
- onderheide fundering;
- opbouw: staalconstructie;
- gevels kantoor geïsoleerde metselwerk;
- gevels bedrijfsruimte: metselwerk plint met daarboven geïsoleerde sandwichpanelen;
- betonnen vloer begane grond;
- betonnen verdiepingsvloer kantoor;
- houten kozijnen voorzien van dubbele beglazing;
- dak: deels voorzien van geïsoleerde sandwichpanelen en deels voorzien van geïsoleerd staaldak.
VOORZIENINGEN
Kantoor:
- indeling:
Begane grond: entree/hal, kantoorruimte, 2 toiletruimten en kantine;
Verdieping: overloop, 2 kantoor-/werkkamers, opslagruimte.
- verwarming door middel van CV-ketel met vloerverwarming;
- airconditioning (in alle ruimtes);
- systeemplafond met LED-verlichting;
- deels tegelvloer en deels voorzien van vloerbedekking;
- keuken in kantine voorzien van inbouwapparatuur;
- toiletruimtes;
- mechanische ventilatie;
- kabelgoten met WCD en datapunten;
- screens aan buitenzijde;
- alarminstallatie.
Bedrijfsruimte:
Algemeen:
- verdeeld in 2 compartimenten;
- elektra-aansluiting 3 x 40A;
- blusmiddelen;
Compartiment 1 (bouwjaar 2005):
- goothoogte ca. 5,90 meter;
- nokhoogte ca. 9,50 meter;
- betonnen vloer met een maximale vloerbelasting van ca. 3.500 kg/m²;
- elektrisch bedienbare overheaddeur (4,50 meter breed x 4,10 meter hoog);
- geheel voorzien van stellingen, welke ter overname worden aangeboden;
- lijnverlichting;
- brandblusmiddelen;
- gevelkozijnen in voorgevel;
- toegangsdeur naar kantine;
Compartiment 2 (bouwjaar 2015):
- vrije hoogte onder staalconstructie 8 meter;
- betonvloer met een maximale vloerbelasting van ca. 3.000 kg/m²;
- LED-verlichting;
- verwarming door middel van vloerverwarming;
- grotendeels voorzien van stellingen, welke ter overname worden aangeboden;
- werkplaatskantoor;
- toiletruimte;
- 2 x elektrisch bedienbare overheaddeur (ca. 4,00 meter breed en ca. 4,50 meter hoog);
- systeemvloer verdeeld over 2 lagen met een maximale vloerbelasting van ca. 250 kg/m2;
- daglichttoetreding door middel van kozijnen in gevel en lichtstraten.
HUURPRIJS
€ 10.000,- per maand exclusief servicekosten exclusief BTW.
SERVICEKOSTEN
Een nader te bepalen voorschot ten behoeve van o.a. de volgende leveringen en
diensten:
- periodiek onderhoud en keuring technische installaties;
- periodiek onderhoud en keuring brandblusmiddelen;
- periodiek onderhoud en keuring overheaddeuren;
- periodiek dakonderhoud;
- 5% administratiekosten.
VRAAGPRIJS
€ 1.650.000,- k.k.
HUURPERIODE
In overleg.
HUURBETALING
Per maand vooruit.
HUURVERHOGING
Jaarlijks, voor het eerst 1 jaar na huuringangsdatum, conform de wijziging van het maandprijsindexcijfer volgens de Consumentenprijsindex (CPI), reeks CPI-alle huishoudens (2015 = 100), gepubliceerd door het Centraal Bureau voor de Statistiek (CBS).
RECLAMEVOERING
Reclamevoering uitsluitend in overleg met en na goedkeuring van verhuurder.
HUUROVEREENKOMST
De te sluiten huurovereenkomst zal worden opgemaakt op basis van ROZ-model (Raad van Onroerende Zaken) kantoorruimte en andere bedrijfsruimte in de zin van artikel 7:230a BW, vastgesteld 05-03-2025 met bijbehorende Algemene Bepalingen gedeponeerd bij de griffie van de Rechtbank te Den Haag en op 03-06-2025 aldaar ingeschreven onder nummer 11/2025 en tevens gepubliceerd op de website
ZEKERHEIDSSTELLING
Bankgarantie/waarborgsom ter grootte van een kwartaalverplichting huur inclusief BTW.
OMZETBELASTING
De huurprijs wordt belast met de geldende omzetbelasting. Huurder en verhuurder opteren voor een BTW-belaste verhuur. Huurder verklaart door ondertekening van de huurovereenkomst dat hij het gehuurde blijvend gebruikt of blijvend laat gebruiken voor doeleinden waarvoor een volledig of nagenoeg volledig recht op aftrek van omzetbelasting op de voet van artikel 15 van de Wet op de omzetbelasting 1968 bestaat. Indien huurder niet meer voldoet aan dit criterium en/of er geen met omzetbelasting belaste verhuur wordt overeengekomen is huurder naast de huurprijs een door verhuurder nader vast te stellen afzonderlijke vergoeding aan verhuurder verschuldigd, ter compensatie van het nadeel dat verhuurder lijdt dan wel zal lijden, omdat de omzetbelasting op de investeringen en exploitatiekosten van verhuurder niet (meer) aftrekbaar is.
OPLEVERING
In overleg.
INTERESSE?
DKZ Bedrijfshuisvesting B.V.
Ohmweg 57f
2952 BD Alblasserdam
tel. : 085-4839869
e-mail :
Deze informatie is zorgvuldig samengesteld, echter alle genoemde oppervlakte zijn indicatief en aan de hierbij verstrekte gegevens kunnen geen rechten worden ontleend. Aan de in de brochure opgenomen artist impressies kunnen géén rechten worden ontleend.
Deze informatie mag niet als een aanbieding of offerte worden beschouwd.
De bedrijfsruimte bestaat uit twee compartimenten, deels gebouwd in 2005 en deels gebouwd in 2015. Dankzij de lichtstraten en gevelkozijnen is er veel natuurlijke lichtinval, wat zorgt voor een prettige werkomgeving.
De hal beschikt over drie elektrisch bedienbare overheaddeuren, waardoor het pand zeer goed toegankelijk is. Tevens zijn beide compartimenten voorzien van stellingen. Het oorspronkelijke deel (bouwjaar 2005) heeft een goothoogte van ca. 5,90 meter en een nokhoogte van ca. 9,5 meter. De uitbreiding uit 2015 omvat een moderne bedrijfshal met een vrije hoogte van 8 meter onder staalconstructie en is voor een deel voorzien van een entresolvloer verdeeld over twee lagen.
De kantoorruimte bestaat uit 2 verdiepingen. Op de begane grond bevinden zich kantoorruimte, kantine voorzien van pantry met koelkast en vaatwasser en toiletruimten. Via de trap toegang tot de 1e verdieping met 2 spreek-/werkkamers. De kantoorruimtes zijn voorzien van tapijt, vloerverwarming en airconditioning, kabelgoten met WCD en datapunten. Via de kantine is er toegang tot het magazijn.
LOCATIE
De bedrijfsruimte is gelegen op het bedrijventerrein Nieuweweg in Hardinxveld-Giessendam. Op korte afstand bevinden zich de op- en afritten van de rijksweg A15 (Rotterdam – Nijmegen).
AFMETINGEN
Kantoorruimte : ca. 141 m2
Bedrijfsruimte I : ca. 530 m2
Bedrijfsruimte II : ca. 900 m2
Entresolvloer I : ca. 165 m²
Entresolvloer II : ca. 270 m²
PARKEERPLAATSEN
7 parkeerplaatsen op eigen terrein.
In de omgeving ruime openbare parkeergelegenheid.
BOUWJAAR
2005 (BAG-vieuwer)
ENERGIELABEL
A (geldig tot 11 december 2033).
BESTEMMING
In bestemmingsplan Gemeente Hardinxveld-Giessendam, bebouwd gebied (onherroepelijk, d.d. 30 maart 2017) heeft het bedrijfspand de bestemming Bedrijventerrein met functieaanduiding ‘bedrijf tot en met categorie 2’.
Bron:
- onderheide fundering;
- opbouw: staalconstructie;
- gevels kantoor geïsoleerde metselwerk;
- gevels bedrijfsruimte: metselwerk plint met daarboven geïsoleerde sandwichpanelen;
- betonnen vloer begane grond;
- betonnen verdiepingsvloer kantoor;
- houten kozijnen voorzien van dubbele beglazing;
- dak: deels voorzien van geïsoleerde sandwichpanelen en deels voorzien van geïsoleerd staaldak.
VOORZIENINGEN
Kantoor:
- indeling:
Begane grond: entree/hal, kantoorruimte, 2 toiletruimten en kantine;
Verdieping: overloop, 2 kantoor-/werkkamers, opslagruimte.
- verwarming door middel van CV-ketel met vloerverwarming;
- airconditioning (in alle ruimtes);
- systeemplafond met LED-verlichting;
- deels tegelvloer en deels voorzien van vloerbedekking;
- keuken in kantine voorzien van inbouwapparatuur;
- toiletruimtes;
- mechanische ventilatie;
- kabelgoten met WCD en datapunten;
- screens aan buitenzijde;
- alarminstallatie.
Bedrijfsruimte:
Algemeen:
- verdeeld in 2 compartimenten;
- elektra-aansluiting 3 x 40A;
- blusmiddelen;
Compartiment 1 (bouwjaar 2005):
- goothoogte ca. 5,90 meter;
- nokhoogte ca. 9,50 meter;
- betonnen vloer met een maximale vloerbelasting van ca. 3.500 kg/m²;
- elektrisch bedienbare overheaddeur (4,50 meter breed x 4,10 meter hoog);
- geheel voorzien van stellingen, welke ter overname worden aangeboden;
- lijnverlichting;
- brandblusmiddelen;
- gevelkozijnen in voorgevel;
- toegangsdeur naar kantine;
Compartiment 2 (bouwjaar 2015):
- vrije hoogte onder staalconstructie 8 meter;
- betonvloer met een maximale vloerbelasting van ca. 3.000 kg/m²;
- LED-verlichting;
- verwarming door middel van vloerverwarming;
- grotendeels voorzien van stellingen, welke ter overname worden aangeboden;
- werkplaatskantoor;
- toiletruimte;
- 2 x elektrisch bedienbare overheaddeur (ca. 4,00 meter breed en ca. 4,50 meter hoog);
- systeemvloer verdeeld over 2 lagen met een maximale vloerbelasting van ca. 250 kg/m2;
- daglichttoetreding door middel van kozijnen in gevel en lichtstraten.
HUURPRIJS
€ 10.000,- per maand exclusief servicekosten exclusief BTW.
SERVICEKOSTEN
Een nader te bepalen voorschot ten behoeve van o.a. de volgende leveringen en
diensten:
- periodiek onderhoud en keuring technische installaties;
- periodiek onderhoud en keuring brandblusmiddelen;
- periodiek onderhoud en keuring overheaddeuren;
- periodiek dakonderhoud;
- 5% administratiekosten.
VRAAGPRIJS
€ 1.650.000,- k.k.
HUURPERIODE
In overleg.
HUURBETALING
Per maand vooruit.
HUURVERHOGING
Jaarlijks, voor het eerst 1 jaar na huuringangsdatum, conform de wijziging van het maandprijsindexcijfer volgens de Consumentenprijsindex (CPI), reeks CPI-alle huishoudens (2015 = 100), gepubliceerd door het Centraal Bureau voor de Statistiek (CBS).
RECLAMEVOERING
Reclamevoering uitsluitend in overleg met en na goedkeuring van verhuurder.
HUUROVEREENKOMST
De te sluiten huurovereenkomst zal worden opgemaakt op basis van ROZ-model (Raad van Onroerende Zaken) kantoorruimte en andere bedrijfsruimte in de zin van artikel 7:230a BW, vastgesteld 05-03-2025 met bijbehorende Algemene Bepalingen gedeponeerd bij de griffie van de Rechtbank te Den Haag en op 03-06-2025 aldaar ingeschreven onder nummer 11/2025 en tevens gepubliceerd op de website
ZEKERHEIDSSTELLING
Bankgarantie/waarborgsom ter grootte van een kwartaalverplichting huur inclusief BTW.
OMZETBELASTING
De huurprijs wordt belast met de geldende omzetbelasting. Huurder en verhuurder opteren voor een BTW-belaste verhuur. Huurder verklaart door ondertekening van de huurovereenkomst dat hij het gehuurde blijvend gebruikt of blijvend laat gebruiken voor doeleinden waarvoor een volledig of nagenoeg volledig recht op aftrek van omzetbelasting op de voet van artikel 15 van de Wet op de omzetbelasting 1968 bestaat. Indien huurder niet meer voldoet aan dit criterium en/of er geen met omzetbelasting belaste verhuur wordt overeengekomen is huurder naast de huurprijs een door verhuurder nader vast te stellen afzonderlijke vergoeding aan verhuurder verschuldigd, ter compensatie van het nadeel dat verhuurder lijdt dan wel zal lijden, omdat de omzetbelasting op de investeringen en exploitatiekosten van verhuurder niet (meer) aftrekbaar is.
OPLEVERING
In overleg.
INTERESSE?
DKZ Bedrijfshuisvesting B.V.
Ohmweg 57f
2952 BD Alblasserdam
tel. : 085-4839869
e-mail :
Deze informatie is zorgvuldig samengesteld, echter alle genoemde oppervlakte zijn indicatief en aan de hierbij verstrekte gegevens kunnen geen rechten worden ontleend. Aan de in de brochure opgenomen artist impressies kunnen géén rechten worden ontleend.
Deze informatie mag niet als een aanbieding of offerte worden beschouwd.
Kenmerken
Overdracht
- Huurprijs
- € 10.000 per maand
- Aangeboden sinds
-
- Status
- Beschikbaar
- Aanvaarding
- In overleg
Bouw
- Hoofdfunctie
- Bedrijfshal
- Soort bouw
- Bestaande bouw
- Bouwjaar
- 2005
Oppervlakten
- Oppervlakte
- 1.571 m²
- Bedrijfshal oppervlak
- 1.430 m²
- Kantoor oppervlak
- 141 m²
- Vrije hoogte
- 8 m
- Draagvermogen
- 3.000 kg/m²
Indeling
- Aantal bouwlagen
- 2 bouwlagen
- Voorzieningen
- Lichtstraten, overheaddeuren, betonvloer, toilet, airconditioning en mechanische ventilatie
Energie
- Energielabel
- A
Omgeving
- Ligging
- Bedrijventerrein
Parkeergelegenheid
- Parkeerplaatsen
- 7 niet-overdekte parkeerplaatsen
NVM makelaar
Foto's


















