Droogdokstraat 1 7553 GW Hengelo (OV)
€ 99.000 /jr
Omschrijving
Objectomschrijving:
Te huur: Grootschalige bedrijfsruimte met kantoorruimte – Droogdokstraat 1 / Loodsstraat 24, Hengelo
Algemeen:
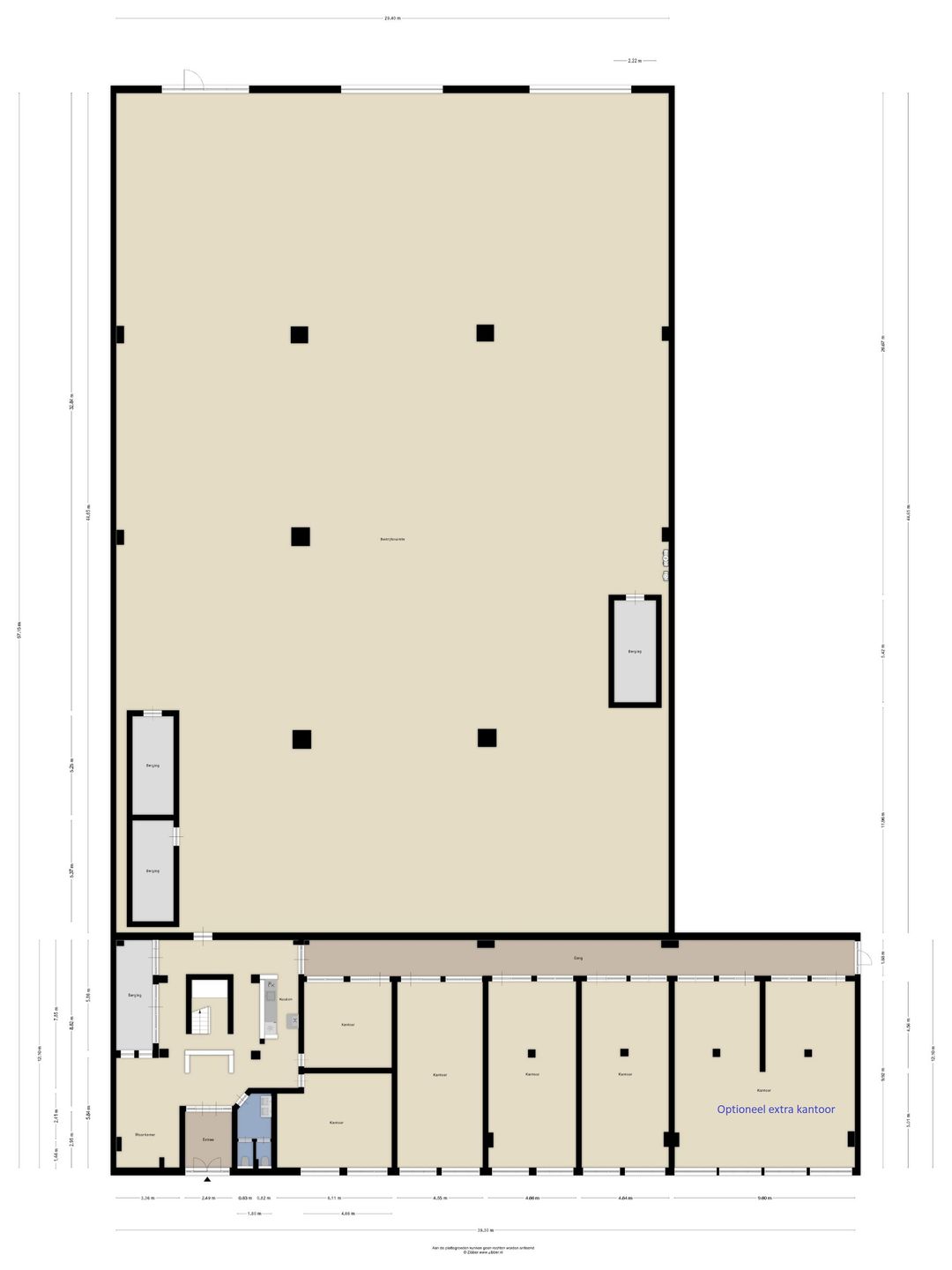
Op een uitstekende locatie op bedrijventerrein Twentekanaal-Noord in Hengelo bieden wij deze representatieve bedrijfsruimte met kantoor aan. De totale oppervlakte bedraagt circa 1.850 m². Indien gewenst is er aanvullende kantoorruimte op de verdieping beschikbaar.
Het gebouw is centraal gelegen in Twente, op korte afstand van de A1 en A35. Aan de voorzijde bevinden zich ruime parkeervoorzieningen voor zowel medewerkers als bezoekers.
Bedrijfsruimte:
- Ca. 1.335 m²
- Breedte: ca. 30 m
- Lengte: ca. 45 m
- Vrije hoogte: ca. 6,4 meter
- Voorzien van 2 overheaddeuren (ca. 4,7 m breed x 4,1 m hoog)
- Voorzien van verlichting, verwarming, krachtstroom en wandcontactdozen
- Gecontracteerd vermogen elektra: 156 kW en aansluitcapaciteit: 173 kVA
- Zeer geschikt voor productiewerkzaamheden
Kantoorruimte:
- Begane grond: ca. 350 m²
- Verdieping: ca. 135 m²
- Totaal kantoorruimte: ca. 515 m²
- Optioneel: uitbreiding kantoorruimte op de verdieping
- Voorzien van eigen entree met balie, wachtruimte en toiletgroepen
- Uitgerust met glasvezelinternet, systeemplafonds, daglichttoetreding, vloerbedekking en verwarming
- Modernisering op wens van huurder mogelijk in overleg met verhuurder (bij de foto's zijn 3 impressies toegevoegd en deze dienen als voorbeeld)
Locatie en bereikbaarheid:
Het object is uitstekend bereikbaar via de Haaksbergerstraat met directe aansluiting op de A35 en A1 richting Amsterdam en Berlijn. Het centrum van Hengelo is goed bereikbaar en op loopafstand is een bushalte gelegen, wat zorgt voor een goede bereikbaarheid met het openbaar vervoer.
Parkeren:
Ruime parkeergelegenheid op eigen terrein aan de voorzijde van het pand.
Bestemmingsplan:
Het object valt onder het bestemmingsplan "Bedrijventerrein", met milieucategorie 3.2.
Adresgegevens:
Kantoorentree: Droogdokstraat 1, 7553 GW Hengelo
Bedrijfsruimte-entree: Loodsstraat 24, 7553 ED Hengelo
Huurprijs:
€ 99.000,– per jaar excl. BTW
Servicekosten (voorschot):
In overleg, afhankelijk van het gebruik. Onder meer omvat dit:
- Gas, water, elektra (incl. vastrecht)
- Onderhoud en keuring van technische installaties
- Schoonmaak algemene ruimtes
- Onderhoud terrein en groenvoorziening
- Glas- en gevelbewassing
- Ongediertebestrijding
- Glasverzekering (buitenglas)
- Klein onderhoud
- Administratiekosten (5%)
Huurcondities:
Ingangsdatum: In overleg
Huurtermijn: In overleg
Verlenging en opzegtermijn: In overleg
Indexering: Jaarlijks op basis van CPI (alle huishoudens)
Zekerheidstelling: Bankgarantie of waarborgsom ter hoogte van drie maanden huur + BTW
Interesse?
Neem contact met ons op voor een bezichtiging of nadere toelichting. Dit object biedt een uitstekende combinatie van bedrijfs- en kantoorruimte op een strategische locatie in Twente.
Te huur: Grootschalige bedrijfsruimte met kantoorruimte – Droogdokstraat 1 / Loodsstraat 24, Hengelo
Algemeen:
Op een uitstekende locatie op bedrijventerrein Twentekanaal-Noord in Hengelo bieden wij deze representatieve bedrijfsruimte met kantoor aan. De totale oppervlakte bedraagt circa 1.850 m². Indien gewenst is er aanvullende kantoorruimte op de verdieping beschikbaar.
Het gebouw is centraal gelegen in Twente, op korte afstand van de A1 en A35. Aan de voorzijde bevinden zich ruime parkeervoorzieningen voor zowel medewerkers als bezoekers.
Bedrijfsruimte:
- Ca. 1.335 m²
- Breedte: ca. 30 m
- Lengte: ca. 45 m
- Vrije hoogte: ca. 6,4 meter
- Voorzien van 2 overheaddeuren (ca. 4,7 m breed x 4,1 m hoog)
- Voorzien van verlichting, verwarming, krachtstroom en wandcontactdozen
- Gecontracteerd vermogen elektra: 156 kW en aansluitcapaciteit: 173 kVA
- Zeer geschikt voor productiewerkzaamheden
Kantoorruimte:
- Begane grond: ca. 350 m²
- Verdieping: ca. 135 m²
- Totaal kantoorruimte: ca. 515 m²
- Optioneel: uitbreiding kantoorruimte op de verdieping
- Voorzien van eigen entree met balie, wachtruimte en toiletgroepen
- Uitgerust met glasvezelinternet, systeemplafonds, daglichttoetreding, vloerbedekking en verwarming
- Modernisering op wens van huurder mogelijk in overleg met verhuurder (bij de foto's zijn 3 impressies toegevoegd en deze dienen als voorbeeld)
Locatie en bereikbaarheid:
Het object is uitstekend bereikbaar via de Haaksbergerstraat met directe aansluiting op de A35 en A1 richting Amsterdam en Berlijn. Het centrum van Hengelo is goed bereikbaar en op loopafstand is een bushalte gelegen, wat zorgt voor een goede bereikbaarheid met het openbaar vervoer.
Parkeren:
Ruime parkeergelegenheid op eigen terrein aan de voorzijde van het pand.
Bestemmingsplan:
Het object valt onder het bestemmingsplan "Bedrijventerrein", met milieucategorie 3.2.
Adresgegevens:
Kantoorentree: Droogdokstraat 1, 7553 GW Hengelo
Bedrijfsruimte-entree: Loodsstraat 24, 7553 ED Hengelo
Huurprijs:
€ 99.000,– per jaar excl. BTW
Servicekosten (voorschot):
In overleg, afhankelijk van het gebruik. Onder meer omvat dit:
- Gas, water, elektra (incl. vastrecht)
- Onderhoud en keuring van technische installaties
- Schoonmaak algemene ruimtes
- Onderhoud terrein en groenvoorziening
- Glas- en gevelbewassing
- Ongediertebestrijding
- Glasverzekering (buitenglas)
- Klein onderhoud
- Administratiekosten (5%)
Huurcondities:
Ingangsdatum: In overleg
Huurtermijn: In overleg
Verlenging en opzegtermijn: In overleg
Indexering: Jaarlijks op basis van CPI (alle huishoudens)
Zekerheidstelling: Bankgarantie of waarborgsom ter hoogte van drie maanden huur + BTW
Interesse?
Neem contact met ons op voor een bezichtiging of nadere toelichting. Dit object biedt een uitstekende combinatie van bedrijfs- en kantoorruimte op een strategische locatie in Twente.
Kenmerken
Overdracht
- Huurprijs
- € 99.000 per jaar
- Aangeboden sinds
-
- Status
- Beschikbaar
- Aanvaarding
- Per direct beschikbaar
Bouw
- Hoofdfunctie
- Bedrijfshal
- Soort bouw
- Bestaande bouw
- Bouwjaar
- 2008
Oppervlakten
- Oppervlakte
- 1.850 m²
- Bedrijfshal oppervlak
- 1.335 m²
- Kantoor oppervlak
- 515 m²
- Vrije hoogte
- 6,4 m
- Vrije overspanning
- 30 m
Indeling
- Aantal bouwlagen
- 2 bouwlagen
- Voorzieningen
- Overheaddeuren, krachtstroom, betonvloer, heater, toilet, pantry, inbouwarmaturen en te openen ramen
Energie
- Energielabel
- Niet beschikbaar
Omgeving
- Ligging
- Bedrijventerrein
Parkeergelegenheid
- Parkeerplaatsen
- 30 niet-overdekte parkeerplaatsen
Foto's
Plattegrond
Begane Grond
Eerste Verdieping