Jadelaan 97 2132 XZ Hoofddorp
- Nieuw
€ 280.000 k.k.
Omschrijving
Op een centrale gelegen locatie in Hoofddorp, dichtbij uitvalswegen zoals de A4 en N201, bieden we deze mooie MULTIFUNCTIONELE bedrijfsruimte/kantoorunit ter grootte van ca. 134 m2 TE KOOP aan
Algemeen:
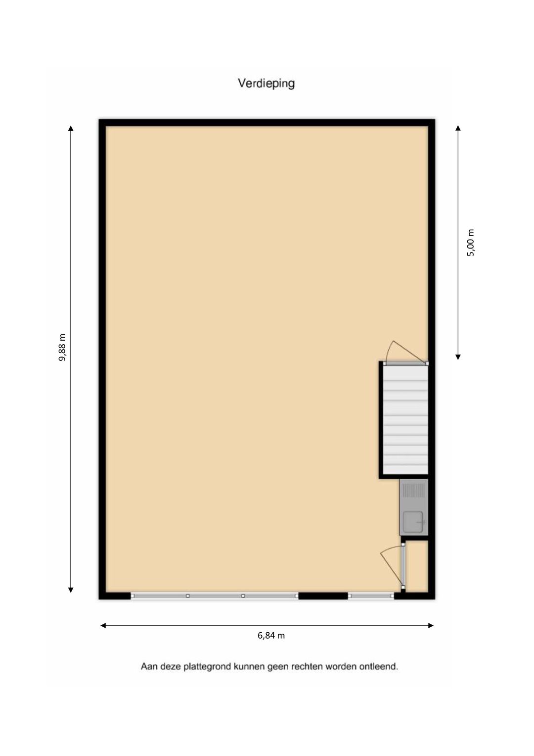
De bedrijfsruimte/kantoorunit is gebouw in 1999 en ligt aan de zijkant van het bedrijventerrein met 2 eigen parkeerplaatsen en gelegen naast een ruime groenvoorziening en water. Er zijn daarnaast voldoende parkeermogelijkheden voor gasten. De bedrijfsruimte van ca. 134 m2 is gelijkmatig verdeeld over de bedrijfsruimte op de begane grond evenals de kantoorruimte op de 1e etage. De bedrijfsruimte heeft een ruime (handmatige) overheaddeur van ca. 2,4 meter hoog en ca. 3,5 meter breed.
Voorzieningen/ installaties:
Het object is voorzien van het bestaande inbouwpakket met o.a.:
- Overheaddeur (handmatig);
- Toilet met fontein;
- Gas gestookte heater (beneden verdieping);
- CV installatie (verouderd) met radiatoren;
- Airconditioning;
- Te openen ramen;
- Vloerbekleding (tapijt);
- Systeemplafond met ledverlichting;
- Pantry (2x).
Bestemming:
Conform het vigerende bestemmingsplan “Hoofddorp Graan Voor Visch Zuid” d.d. 09-07-2014 kent het object de enkelbestemming ‘Bedrijventerrein’ met functieaanduidingen ‘sport’ en ‘bedrijf t/m cat. 2.0’ en zijn onder meer bedrijfsactiviteiten in de categorie 1 en 2 en sportfaciliteiten toegestaan.
Voor exacte voorwaarden en overige invullingen of een uitgebreide bestemmingsomschrijving verwijzen wij u naar de gemeente Amstelveen, afdeling Ruimtelijke Ordening.
Bereikbaarheid:
Komt u met de auto?
De provinciale weg N201 en de rijksweg A4 maken Uithoorn, Amstelveen, Schiphol, Amsterdam en Utrecht allen binnen 10 tot 20 autominuten bereikbaar.
Komt u met de fiets?
Op de fiets is het NS Station Hoofddorp binnen 6 minuten te bereiken en het centrum van Hoofddorp in 10 minuten te fietsen.
Komt u met het ov?
Het NS Station Hoofddorp is binnen 1,5km gelegen, met een perfecte bereikbaarheid in verband met de aanwezigheid van meerdere treinen en bussen.
Parkeergelegenheid:
Er zijn twee gereserveerde parkeerplaatsen voor de bedrijfsruimte beschikbaar.
Bouwjaar:
1999.
Energielabel gebouw:
Het gehuurde beschikt over een EPA-certificaat labelklasse: A+
EP1: 97,39 kWh (energiebehoefte – schil object)
EP2: 146,53 kWh (primair fossiel energiegebruik)
EP3: 0,0 % (hernieuwbare energie)
Geldig t/m 16-06-2035.
Kadastrale gegevens:
Bedrijfsruimte plaatselijk bekend gemeente Hoofddorp, sectie AL, nummer 1318 A9 uitmakende het 166/3.984e onverdeeld aandeel in de gemeenschap.
Bankgarantie/waarborgsom:
Waarborgsom/bankgarantie: 10% van de koopsom, door koper te voldoen uiterlijk 2 weken na ondertekenen koopakte.
BTW:
Niet van toepassing.
Oplevering:
Oplevering en aanvaarding in overleg, kan spoedig.
Huursituatie:
Het pand wordt leeg opgeleverd waardoor er ruimte ontstaat voor een eigenaar/gebruiker dan wel een nieuwe huurder.
Zakelijke lasten 2025
BIZ bijdrage: € 250,00 per jaar
Onroerend zaakbelasting: € 511,22 per jaar (eigenaar) en € 446,84 per jaar (gebruiker)
Rioolrecht: € 177,93 per jaar
Waterschap: € 39,50 per jaar
Bijdrage VvE: € 183,50 per kwartaal (excl. BTW)
Procedure verkoop:
Bezichtigingen
Blauwman Bedrijfsmakelaars zal het informatie-, biedings-, koop- en leveringsproces begeleiden en gegadigden, op afspraak, in de gelegenheid stellen het object te bezichtigen.
Biedingen
Graag ontvangen wij biedingen met de eventueel daaraan verbonden voorwaarden schriftelijk, waarna beoordeling en een beslissing vanuit verkoper zal plaatsvinden.
Bijzonderheden:
Definitieve gunning eigenaar voorbehouden.
Het koopcontract wordt gemaakt door de notaris, gevestigd in Amsterdam, Amstelveen, Diemen, Uithoorn, Badhoevedorp, Mijdrecht, Abcoude of Aalsmeer. Het koopcontract dat gebruikt wordt is het model Ring Amsterdam. De keuze van het notariskantoor is aan de koper, tenzij anders aangegeven in deze brochure.
Koper dient binnen twee werkdagen na het bereiken van de mondelinge overeenstemming inzake de koopsom en de voorwaarden een notaris aan te wijzen. Indien koper binnen deze periode geen notaris heeft aangewezen heeft verkoper het recht deze aan te wijzen.
Deze informatie is door ons met de nodige zorgvuldigheid samengesteld. Onzerzijds wordt echter geen enkele aansprakelijkheid aanvaard voor enige onvolledigheid, onjuistheid of anderszins, dan wel de gevolgen daarvan.
Alle vermelde omschrijvingen, afmetingen, beschrijvingen van de toestand, vergunningen die eventueel voor gebruik of uitvoering benodigd zijn, en de overige informatie en specificaties zijn te goeder trouw vermeld. Een (aanstaande) koper kan en mag echter niet op de juistheid en volledigheid van die informatie vertrouwen en dient door eigen onderzoek zichzelf ervan te vergewissen dat die vermelde informatie juist en volledig is.
De oppervlakte is met grootst mogelijke zorgvuldigheid gemeten, maar biedt geen garantie en er kunnen geen rechten aan worden ontleend.
Clausules:
Bij verkoop zullen o.a. de navolgende extra bepalingen in de koopakte worden opgenomen.
As-is-where-is
Levering en aanvaarding vindt plaats op basis van ‘as-is-where-is’.
De koper aanvaardt het registergoed in alle opzichten op basis van het ‘as-is-where-is’ principe, waaronder onder meer bedoeld de bouwkundige, juridische, milieukundige, technische en feitelijke toestand waarin het registergoed zich bevindt en de koper heeft terzake van deze staat van het registergoed geen enkele aanspraak, hoe ook genaamd, jegens verkoper. In aanvulling op het vorenstaande geeft verkoper geen garantie en aanvaarden geen aansprakelijkheid omtrent datgene wat zij terzake juistheid en van het registergoed mededelen, of waarvan mededeling achterwege blijft.
Voor meer informatie kunt u contact opnemen met Blauwman Bedrijfsmakelaars, tel.: 020-215 8800.
Algemeen:
De bedrijfsruimte/kantoorunit is gebouw in 1999 en ligt aan de zijkant van het bedrijventerrein met 2 eigen parkeerplaatsen en gelegen naast een ruime groenvoorziening en water. Er zijn daarnaast voldoende parkeermogelijkheden voor gasten. De bedrijfsruimte van ca. 134 m2 is gelijkmatig verdeeld over de bedrijfsruimte op de begane grond evenals de kantoorruimte op de 1e etage. De bedrijfsruimte heeft een ruime (handmatige) overheaddeur van ca. 2,4 meter hoog en ca. 3,5 meter breed.
Voorzieningen/ installaties:
Het object is voorzien van het bestaande inbouwpakket met o.a.:
- Overheaddeur (handmatig);
- Toilet met fontein;
- Gas gestookte heater (beneden verdieping);
- CV installatie (verouderd) met radiatoren;
- Airconditioning;
- Te openen ramen;
- Vloerbekleding (tapijt);
- Systeemplafond met ledverlichting;
- Pantry (2x).
Bestemming:
Conform het vigerende bestemmingsplan “Hoofddorp Graan Voor Visch Zuid” d.d. 09-07-2014 kent het object de enkelbestemming ‘Bedrijventerrein’ met functieaanduidingen ‘sport’ en ‘bedrijf t/m cat. 2.0’ en zijn onder meer bedrijfsactiviteiten in de categorie 1 en 2 en sportfaciliteiten toegestaan.
Voor exacte voorwaarden en overige invullingen of een uitgebreide bestemmingsomschrijving verwijzen wij u naar de gemeente Amstelveen, afdeling Ruimtelijke Ordening.
Bereikbaarheid:
Komt u met de auto?
De provinciale weg N201 en de rijksweg A4 maken Uithoorn, Amstelveen, Schiphol, Amsterdam en Utrecht allen binnen 10 tot 20 autominuten bereikbaar.
Komt u met de fiets?
Op de fiets is het NS Station Hoofddorp binnen 6 minuten te bereiken en het centrum van Hoofddorp in 10 minuten te fietsen.
Komt u met het ov?
Het NS Station Hoofddorp is binnen 1,5km gelegen, met een perfecte bereikbaarheid in verband met de aanwezigheid van meerdere treinen en bussen.
Parkeergelegenheid:
Er zijn twee gereserveerde parkeerplaatsen voor de bedrijfsruimte beschikbaar.
Bouwjaar:
1999.
Energielabel gebouw:
Het gehuurde beschikt over een EPA-certificaat labelklasse: A+
EP1: 97,39 kWh (energiebehoefte – schil object)
EP2: 146,53 kWh (primair fossiel energiegebruik)
EP3: 0,0 % (hernieuwbare energie)
Geldig t/m 16-06-2035.
Kadastrale gegevens:
Bedrijfsruimte plaatselijk bekend gemeente Hoofddorp, sectie AL, nummer 1318 A9 uitmakende het 166/3.984e onverdeeld aandeel in de gemeenschap.
Bankgarantie/waarborgsom:
Waarborgsom/bankgarantie: 10% van de koopsom, door koper te voldoen uiterlijk 2 weken na ondertekenen koopakte.
BTW:
Niet van toepassing.
Oplevering:
Oplevering en aanvaarding in overleg, kan spoedig.
Huursituatie:
Het pand wordt leeg opgeleverd waardoor er ruimte ontstaat voor een eigenaar/gebruiker dan wel een nieuwe huurder.
Zakelijke lasten 2025
BIZ bijdrage: € 250,00 per jaar
Onroerend zaakbelasting: € 511,22 per jaar (eigenaar) en € 446,84 per jaar (gebruiker)
Rioolrecht: € 177,93 per jaar
Waterschap: € 39,50 per jaar
Bijdrage VvE: € 183,50 per kwartaal (excl. BTW)
Procedure verkoop:
Bezichtigingen
Blauwman Bedrijfsmakelaars zal het informatie-, biedings-, koop- en leveringsproces begeleiden en gegadigden, op afspraak, in de gelegenheid stellen het object te bezichtigen.
Biedingen
Graag ontvangen wij biedingen met de eventueel daaraan verbonden voorwaarden schriftelijk, waarna beoordeling en een beslissing vanuit verkoper zal plaatsvinden.
Bijzonderheden:
Definitieve gunning eigenaar voorbehouden.
Het koopcontract wordt gemaakt door de notaris, gevestigd in Amsterdam, Amstelveen, Diemen, Uithoorn, Badhoevedorp, Mijdrecht, Abcoude of Aalsmeer. Het koopcontract dat gebruikt wordt is het model Ring Amsterdam. De keuze van het notariskantoor is aan de koper, tenzij anders aangegeven in deze brochure.
Koper dient binnen twee werkdagen na het bereiken van de mondelinge overeenstemming inzake de koopsom en de voorwaarden een notaris aan te wijzen. Indien koper binnen deze periode geen notaris heeft aangewezen heeft verkoper het recht deze aan te wijzen.
Deze informatie is door ons met de nodige zorgvuldigheid samengesteld. Onzerzijds wordt echter geen enkele aansprakelijkheid aanvaard voor enige onvolledigheid, onjuistheid of anderszins, dan wel de gevolgen daarvan.
Alle vermelde omschrijvingen, afmetingen, beschrijvingen van de toestand, vergunningen die eventueel voor gebruik of uitvoering benodigd zijn, en de overige informatie en specificaties zijn te goeder trouw vermeld. Een (aanstaande) koper kan en mag echter niet op de juistheid en volledigheid van die informatie vertrouwen en dient door eigen onderzoek zichzelf ervan te vergewissen dat die vermelde informatie juist en volledig is.
De oppervlakte is met grootst mogelijke zorgvuldigheid gemeten, maar biedt geen garantie en er kunnen geen rechten aan worden ontleend.
Clausules:
Bij verkoop zullen o.a. de navolgende extra bepalingen in de koopakte worden opgenomen.
As-is-where-is
Levering en aanvaarding vindt plaats op basis van ‘as-is-where-is’.
De koper aanvaardt het registergoed in alle opzichten op basis van het ‘as-is-where-is’ principe, waaronder onder meer bedoeld de bouwkundige, juridische, milieukundige, technische en feitelijke toestand waarin het registergoed zich bevindt en de koper heeft terzake van deze staat van het registergoed geen enkele aanspraak, hoe ook genaamd, jegens verkoper. In aanvulling op het vorenstaande geeft verkoper geen garantie en aanvaarden geen aansprakelijkheid omtrent datgene wat zij terzake juistheid en van het registergoed mededelen, of waarvan mededeling achterwege blijft.
Voor meer informatie kunt u contact opnemen met Blauwman Bedrijfsmakelaars, tel.: 020-215 8800.
Kenmerken
Overdracht
- Vraagprijs
- € 280.000 kosten koper
- Aangeboden sinds
-
- Status
- Beschikbaar
- Aanvaarding
- In overleg
Bouw
- Hoofdfunctie
- Bedrijfshal
- Soort bouw
- Bestaande bouw
- Bouwjaar
- 1999
Oppervlakten
- Oppervlakte
- 134 m²
- Bedrijfshal oppervlak
- 134 m²
Indeling
- Voorzieningen
- Airconditioning, overheaddeuren, heater, toilet en pantry
Energie
- Energielabel
- A+
Omgeving
- Ligging
- Bedrijventerrein
- Bereikbaarheid
- Bushalte op 500 m tot 1000 m, NS Intercitystation op 1500 m tot 2000 m en snelwegafrit op 3000 m tot 4000 m
Parkeergelegenheid
- Parkeerplaatsen
- 2 niet-overdekte parkeerplaatsen
Foto's