Voltweg 4631 SR Hoogerheide
€ 169.900 v.o.n.
Omschrijving
16 moderne flexibele bedrijfsunits - flexibel, duurzaam en centraal gelegen!
Grijp nu uw kans om uw bedrijf te vestigen of uit te breiden op het dynamische bedrijventerrein "De Kooi". Aan de Voltweg 3 wordt dit moderne en hoogwaardig bedrijvencentrum gerealiseerd, bestaande uit 16 multifunctionele en koppelbare units.
Deze units bieden een unieke combinatie van kwaliteit, veelzijdigheid en een uitstekende bereikbaarheid.
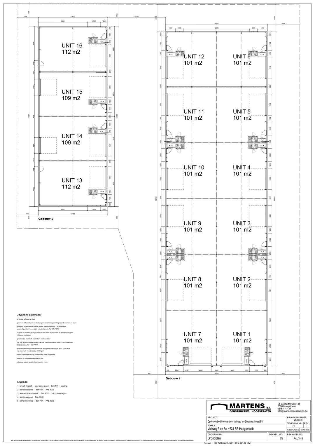
UNIT Bruto vloeropp. begane grond
1 101 m²
2 101 m²
3 101 m²
4 101 m²
5 101 m²
6 101 m²
7 101 m²
8 101 m²
9 101 m²
10 101 m²
11 101 m²
12 101 m²
13 112 m²
14 109 m²
15 109 m²
16 112 m²
4 unit's bieden een eigen, afgesloten buitenterrein:
Unit 13: 123 m² (gelegen aan de zij- en achterkant)
Unit 14: 34 m² (gelegen aan de achterkant)
Unit 15: 34 m² (gelegen aan de achterkant)
Unit 16: 123 m² (gelegen aan de zij- en achterkant)
KOOPSOM
Vanaf € 169.900,- V.O.N. exclusief BTW.
VVE kosten worden later bepaald.
Een Strategische Toplocatie
De bedrijfsunits zijn strategisch gelegen op het levendige bedrijventerrein "De Kooi", op korte afstand van de snelweg A4/A58. Hierdoor zijn steden als Antwerpen, Rotterdam en Breda binnen handbereik. Het terrein kent een mix van nationaal en internationaal opererende bedrijven en biedt, mede door de nabijheid van Vliegbasis Woensdrecht, extra zakelijke kansen.
Flexibiliteit en Maatwerk
De 16 units zijn ontworpen met flexibiliteit als uitgangspunt. Met oppervlaktes variërend van 101 m² tot 112 m², kunt u de unit kiezen die perfect aansluit bij uw bedrijfsbehoeften. Bovendien zijn de units koppelbaar, waardoor u uw bedrijfsruimte
kunt uitbreiden tot 600 m² of zelfs meer. De units kunnen optioneel worden voorzien van een verdiepingsvloer, die u naar eigen wens kunt indelen.
Locatie & Flexibiliteit
Op een absolute toplocatie, uitstekend bereikbaar via de A4 en A58. Steden als Bergen op Zoom, Rotterdam en Antwerpen zijn binnen korte tijd te bereiken. Elke unit beschikt over een eigen voorterrein met parkeerplaatsen direct voor de deur.
De units zijn flexibel in te delen en te combineren tot oppervlakten van ca. 100 m² tot 600 m² of meer. De verdiepingsvloer kan volledig naar wens worden ingericht, zodat de ruimte perfect aansluit op de bedrijfsbehoefte.
Hoogwaardige Specificaties
Gebouwd met kwaliteit en duurzaamheid als uitgangspunt. De robuuste staalconstructie en zwaar belastbare betonvloer (1.500 kg/m²) maken de units geschikt voor uiteenlopende bedrijfsactiviteiten.
Met een vrije hoogte van 6,5 meter en hoge isolatiewaarden is er volop ruimte, comfort en energiezuinigheid. Brede raampartijen en lichtvensters in de overheaddeur zorgen voor een prettige werkomgeving. Het dak is voorbereid op zonnepanelen. Geschikt voor bedrijven tot milieucategorie 3.2.
Complete Voorzieningen
Elke unit is voorzien van een elektrische overheaddeur, krachtstroom (3x25A), water- en internetaansluiting, en aansluitingen voor toilet en pantry. Buitenverlichting met schemerschakelaar draagt bij aan een veilige omgeving.
Financieel & Oplevering
De units worden aangeboden vrij op naam (V.O.N.) – u betaalt geen overdrachtsbelasting.
Dankzij de centrale ligging, hoogwaardige afwerking en flexibele indelingsmogelijkheden zijn de units aantrekkelijk als belegging of voor eigen gebruik.
Oplevering gepland eind 2026 (onder voorbehoud).
Grijp nu uw kans om uw bedrijf te vestigen of uit te breiden op het dynamische bedrijventerrein "De Kooi". Aan de Voltweg 3 wordt dit moderne en hoogwaardig bedrijvencentrum gerealiseerd, bestaande uit 16 multifunctionele en koppelbare units.
Deze units bieden een unieke combinatie van kwaliteit, veelzijdigheid en een uitstekende bereikbaarheid.
UNIT Bruto vloeropp. begane grond
1 101 m²
2 101 m²
3 101 m²
4 101 m²
5 101 m²
6 101 m²
7 101 m²
8 101 m²
9 101 m²
10 101 m²
11 101 m²
12 101 m²
13 112 m²
14 109 m²
15 109 m²
16 112 m²
4 unit's bieden een eigen, afgesloten buitenterrein:
Unit 13: 123 m² (gelegen aan de zij- en achterkant)
Unit 14: 34 m² (gelegen aan de achterkant)
Unit 15: 34 m² (gelegen aan de achterkant)
Unit 16: 123 m² (gelegen aan de zij- en achterkant)
KOOPSOM
Vanaf € 169.900,- V.O.N. exclusief BTW.
VVE kosten worden later bepaald.
Een Strategische Toplocatie
De bedrijfsunits zijn strategisch gelegen op het levendige bedrijventerrein "De Kooi", op korte afstand van de snelweg A4/A58. Hierdoor zijn steden als Antwerpen, Rotterdam en Breda binnen handbereik. Het terrein kent een mix van nationaal en internationaal opererende bedrijven en biedt, mede door de nabijheid van Vliegbasis Woensdrecht, extra zakelijke kansen.
Flexibiliteit en Maatwerk
De 16 units zijn ontworpen met flexibiliteit als uitgangspunt. Met oppervlaktes variërend van 101 m² tot 112 m², kunt u de unit kiezen die perfect aansluit bij uw bedrijfsbehoeften. Bovendien zijn de units koppelbaar, waardoor u uw bedrijfsruimte
kunt uitbreiden tot 600 m² of zelfs meer. De units kunnen optioneel worden voorzien van een verdiepingsvloer, die u naar eigen wens kunt indelen.
Locatie & Flexibiliteit
Op een absolute toplocatie, uitstekend bereikbaar via de A4 en A58. Steden als Bergen op Zoom, Rotterdam en Antwerpen zijn binnen korte tijd te bereiken. Elke unit beschikt over een eigen voorterrein met parkeerplaatsen direct voor de deur.
De units zijn flexibel in te delen en te combineren tot oppervlakten van ca. 100 m² tot 600 m² of meer. De verdiepingsvloer kan volledig naar wens worden ingericht, zodat de ruimte perfect aansluit op de bedrijfsbehoefte.
Hoogwaardige Specificaties
Gebouwd met kwaliteit en duurzaamheid als uitgangspunt. De robuuste staalconstructie en zwaar belastbare betonvloer (1.500 kg/m²) maken de units geschikt voor uiteenlopende bedrijfsactiviteiten.
Met een vrije hoogte van 6,5 meter en hoge isolatiewaarden is er volop ruimte, comfort en energiezuinigheid. Brede raampartijen en lichtvensters in de overheaddeur zorgen voor een prettige werkomgeving. Het dak is voorbereid op zonnepanelen. Geschikt voor bedrijven tot milieucategorie 3.2.
Complete Voorzieningen
Elke unit is voorzien van een elektrische overheaddeur, krachtstroom (3x25A), water- en internetaansluiting, en aansluitingen voor toilet en pantry. Buitenverlichting met schemerschakelaar draagt bij aan een veilige omgeving.
Financieel & Oplevering
De units worden aangeboden vrij op naam (V.O.N.) – u betaalt geen overdrachtsbelasting.
Dankzij de centrale ligging, hoogwaardige afwerking en flexibele indelingsmogelijkheden zijn de units aantrekkelijk als belegging of voor eigen gebruik.
Oplevering gepland eind 2026 (onder voorbehoud).
Kenmerken
Overdracht
- Vraagprijs
- € 169.900 vrij op naam
- Aangeboden sinds
-
- Status
- Beschikbaar
- Aanvaarding
- Beschikbaar per 31-12-2026
Bouw
- Hoofdfunctie
- Bedrijfshal
- Soort bouw
- Nieuwbouw
- Bouwjaar
- Momenteel in aanbouw
Oppervlakten
- Oppervlakte
- 101 m²
- Bedrijfshal oppervlak
- 101 m²
- Vrije hoogte
- 6,5 m
- Draagvermogen
- 1.500 kg/m²
- Perceel
- 3.263 m²
Indeling
- Voorzieningen
- Overheaddeuren, krachtstroom en betonvloer
Energie
- Energielabel
- Niet verplicht
Omgeving
- Ligging
- Bedrijventerrein
- Bereikbaarheid
- Snelwegafrit op 3000 m tot 4000 m
Foto's