Tokyostraat 17-S 1175 RB Lijnden
€ 32.400 /jr
Omschrijving
Kerngegevens:
Bedrijfsunit op absolute zichtlocatie langs de Amsterdamse Baan
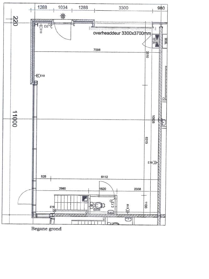
totaal ca 162 m², als volgt verdeeld:
- 81 m² bedrijfs-/showroomruimte begane grond en
- 81 m² showroom/kantoor op de eerste verdieping.
5 (!) eigen parkeerplaatsen.
Uitstekend bereikbaar via A9 afslag 7/S106.
Object:
Perfect afgewerkte bedrijfsunit met kantoor-/showroomruimte op de verdieping aan de Tokyostraat 17-S te Lijnden nabij Amsterdam-Osdorp. De bedrijfsunit maakt onderdeel uit van bedrijfsverzamelgebouw "de Lynden". Het object is gelegen op een drukke zichtlocatie met 5 eigen parkeerplaatsen te midden van diverse modebedrijven.
Bereikbaarheid:
De bereikbaarheid met de auto is uitstekend, door de ligging nabij de A9 (afslag 7 Lijnden/Amsterdam-Osdorp) aan de rand van Amsterdam. Per auto is het enige minuten rijden naar Schiphol en ook Amsterdam is op korte afstand gelegen. Een bushalte is dichtbij, buslijn 194 rijdt naar Schiphol Airport en Amsterdam.
Opleveringsniveau:
Begane grond:
- betonvloer met een vloerbelasting van 1.000 kg/m² afgewerkt met een gietvloer
- elektrische overheaddeur van 3,30 x 3,70m en twee loopdeuren
- toilet op de begane grond
- trapopgang
- LED verlichting
- brandslanghaspel
- verwarming middels radiatoren
- beveiligingsinstallatie
- inbouwkasten
- tussenwand (wij hebben voor de duidelijkheid ook een foto toegevoegd van de oorspronkelijke staat van de begane grond,
zonder tussenwand)
Verdieping:
- vloerbelasting van 500 kg/m²
- afgewerkt wanden
- laminaat vloer
- industriële lampen
- toilet
- pantry voorzien van koelkast en vriezer
- verwarming middels radiatoren
- brandblusser
- HR CV-ketel.
Aanvangshuurprijs:
€ 32.400,- per jaar ( € 2.700,- per maand) te vermeerderen met BTW en servicekosten.
Servicekosten:
Nader overeen te komen.
Huurder zal de contracten/meters voor gas, water en elektra op haar naam laten overschrijven.
Huurprijsindexatie:
Jaarlijks op basis van de consumentenprijsindex, reeks alle huishoudens (2015 = 100) zoals gepubliceerd door het Centraal Bureau voor de Statistiek.
Huurtermijn:
5 jaar met een verlenging van nog eens 5 jaar, doch kortere termijnen bespreekbaar, opzegtermijn 12 maanden.
Huurbetaling:
Per maand vooruit.
Bankgarantie/ Borg:
Ter grootte van minimaal 3 maanden huur, te vermeerderen met servicekosten en de wettelijke verschuldigde BTW.
Huurcontract:
Gebaseerd op het standaardmodel ROZ.
Aanvaarding:
Per direct.
De vermelde informatie is van algemene aard.
Aan deze informatie kunnen geen rechten worden ontleend.
Bedrijfsunit op absolute zichtlocatie langs de Amsterdamse Baan
totaal ca 162 m², als volgt verdeeld:
- 81 m² bedrijfs-/showroomruimte begane grond en
- 81 m² showroom/kantoor op de eerste verdieping.
5 (!) eigen parkeerplaatsen.
Uitstekend bereikbaar via A9 afslag 7/S106.
Object:
Perfect afgewerkte bedrijfsunit met kantoor-/showroomruimte op de verdieping aan de Tokyostraat 17-S te Lijnden nabij Amsterdam-Osdorp. De bedrijfsunit maakt onderdeel uit van bedrijfsverzamelgebouw "de Lynden". Het object is gelegen op een drukke zichtlocatie met 5 eigen parkeerplaatsen te midden van diverse modebedrijven.
Bereikbaarheid:
De bereikbaarheid met de auto is uitstekend, door de ligging nabij de A9 (afslag 7 Lijnden/Amsterdam-Osdorp) aan de rand van Amsterdam. Per auto is het enige minuten rijden naar Schiphol en ook Amsterdam is op korte afstand gelegen. Een bushalte is dichtbij, buslijn 194 rijdt naar Schiphol Airport en Amsterdam.
Opleveringsniveau:
Begane grond:
- betonvloer met een vloerbelasting van 1.000 kg/m² afgewerkt met een gietvloer
- elektrische overheaddeur van 3,30 x 3,70m en twee loopdeuren
- toilet op de begane grond
- trapopgang
- LED verlichting
- brandslanghaspel
- verwarming middels radiatoren
- beveiligingsinstallatie
- inbouwkasten
- tussenwand (wij hebben voor de duidelijkheid ook een foto toegevoegd van de oorspronkelijke staat van de begane grond,
zonder tussenwand)
Verdieping:
- vloerbelasting van 500 kg/m²
- afgewerkt wanden
- laminaat vloer
- industriële lampen
- toilet
- pantry voorzien van koelkast en vriezer
- verwarming middels radiatoren
- brandblusser
- HR CV-ketel.
Aanvangshuurprijs:
€ 32.400,- per jaar ( € 2.700,- per maand) te vermeerderen met BTW en servicekosten.
Servicekosten:
Nader overeen te komen.
Huurder zal de contracten/meters voor gas, water en elektra op haar naam laten overschrijven.
Huurprijsindexatie:
Jaarlijks op basis van de consumentenprijsindex, reeks alle huishoudens (2015 = 100) zoals gepubliceerd door het Centraal Bureau voor de Statistiek.
Huurtermijn:
5 jaar met een verlenging van nog eens 5 jaar, doch kortere termijnen bespreekbaar, opzegtermijn 12 maanden.
Huurbetaling:
Per maand vooruit.
Bankgarantie/ Borg:
Ter grootte van minimaal 3 maanden huur, te vermeerderen met servicekosten en de wettelijke verschuldigde BTW.
Huurcontract:
Gebaseerd op het standaardmodel ROZ.
Aanvaarding:
Per direct.
De vermelde informatie is van algemene aard.
Aan deze informatie kunnen geen rechten worden ontleend.
Kenmerken
Overdracht
- Huurprijs
- € 32.400 per jaar
- Aangeboden sinds
-
- Status
- Beschikbaar
- Aanvaarding
- Per direct beschikbaar
Bouw
- Hoofdfunctie
- Bedrijfshal
- Soort bouw
- Bestaande bouw
- Bouwjaar
- 2018
Oppervlakten
- Oppervlakte
- 162 m²
- Bedrijfshal oppervlak
- 81 m²
- Kantoor oppervlak
- 81 m²
- Vrije hoogte
- 3,8 m
- Draagvermogen
- 1.000 kg/m²
Indeling
- Aantal bouwlagen
- 2 bouwlagen
- Voorzieningen
- Overheaddeuren, betonvloer, toilet en pantry
Energie
- Energielabel
- Niet verplicht
Omgeving
- Ligging
- Bedrijventerrein
- Bereikbaarheid
- Bushalte op minder dan 500 m en snelwegafrit op 500 m tot 1000 m
Parkeergelegenheid
- Parkeerplaatsen
- 5 niet-overdekte parkeerplaatsen
NVM makelaar
Foto's