Zusterstraat 17 4331 KG Middelburg
€ 445.000 k.k.

Omschrijving
Op strategische zicht-locatie op de hoek van een aantrekkelijke winkelstraat, op steenworp afstand van de Markt, bevindt zich dit in 1942 opgetrokken winkelpand met zelfstandige bovenwoning (Gravenstraat 16).
Deze bedrijfsruimte in L-vorm is momenteel nog in gebruik als winkel en beschikt over onder meer een kelder, toilet, pantry en bergruimte. De oppervlakte van de bedrijfsruimte op de begane grond bedraagt circa bedraagt 98m2 BVO. Tevens is er een kelder van circa 13m2.
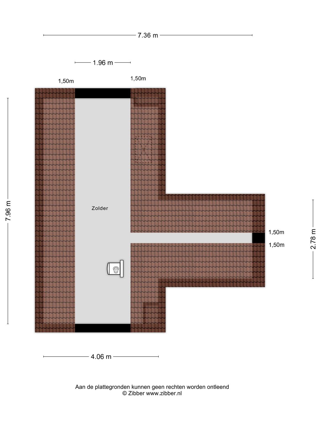
De bovenwoning is circa 75m2 GVO en heeft daarnaast een grote zolderetage.
Zowel de woning als de winkelruimte worden vrij van huur opgeleverd.
Nadere omschrijving winkel Zusterstraat 17:
L-vormige winkelruimte in L-vorm, met veel lichtinval, markiezen, toonbank, hal, toilet, kastruimte en ruime magazijn-/bergruimte. Toegang naar kelder van circa 4.00 x 3.18.
Verwarming geschiedt middels een eigen cv-ketel van het merk Nefit. Ook zijn er eigen energiemeters .
Nadere omschrijving bovenwoning Gravenstraat 17:
Entree via portaal met trapopgang en meterkast (eigen energiemeters van winkel en woning).
1e Verdieping: overloop/gang, toilet, woonkamer met laminaatvloer en vaste kast, nette keuken met deur naar balkon. Slaapkamer/eetkamer met vaste kast, ruime 2e slaapkamer met vaste kasten.
2e Verdieping: Vlizotrap naar ruime bergzolder met cv-opstelling (ketel: Atag Combi HR uit 2018).
Het pand is gebouwd omstreeks 1942 en is gelegen binnen het gebied dat is aangewezen als Beschermd Stadsgezicht van de gemeente Middelburg.
De winkel heeft energielabel B en de woning energielabel F.
Gezien het bouwjaar van het pand wordt er in de koopovereenkomst een ouderdomsclausule opgenomen.
Een ideaal pand voor gebruik als winkel/bedrijfspand en bovengelegen woonruimte, voor eigen gebruik en bewoning of bijvoorbeeld voor verhuur.
Oplevering: in overleg
Bezichtigingen: op afspraak
Deze bedrijfsruimte in L-vorm is momenteel nog in gebruik als winkel en beschikt over onder meer een kelder, toilet, pantry en bergruimte. De oppervlakte van de bedrijfsruimte op de begane grond bedraagt circa bedraagt 98m2 BVO. Tevens is er een kelder van circa 13m2.
De bovenwoning is circa 75m2 GVO en heeft daarnaast een grote zolderetage.
Zowel de woning als de winkelruimte worden vrij van huur opgeleverd.
Nadere omschrijving winkel Zusterstraat 17:
L-vormige winkelruimte in L-vorm, met veel lichtinval, markiezen, toonbank, hal, toilet, kastruimte en ruime magazijn-/bergruimte. Toegang naar kelder van circa 4.00 x 3.18.
Verwarming geschiedt middels een eigen cv-ketel van het merk Nefit. Ook zijn er eigen energiemeters .
Nadere omschrijving bovenwoning Gravenstraat 17:
Entree via portaal met trapopgang en meterkast (eigen energiemeters van winkel en woning).
1e Verdieping: overloop/gang, toilet, woonkamer met laminaatvloer en vaste kast, nette keuken met deur naar balkon. Slaapkamer/eetkamer met vaste kast, ruime 2e slaapkamer met vaste kasten.
2e Verdieping: Vlizotrap naar ruime bergzolder met cv-opstelling (ketel: Atag Combi HR uit 2018).
Het pand is gebouwd omstreeks 1942 en is gelegen binnen het gebied dat is aangewezen als Beschermd Stadsgezicht van de gemeente Middelburg.
De winkel heeft energielabel B en de woning energielabel F.
Gezien het bouwjaar van het pand wordt er in de koopovereenkomst een ouderdomsclausule opgenomen.
Een ideaal pand voor gebruik als winkel/bedrijfspand en bovengelegen woonruimte, voor eigen gebruik en bewoning of bijvoorbeeld voor verhuur.
Oplevering: in overleg
Bezichtigingen: op afspraak
Kenmerken
Overdracht
- Vraagprijs
- € 445.000 kosten koper
- Aangeboden sinds
-
- Status
- Beschikbaar
- Aanvaarding
- In overleg
Bouw
- Hoofdfunctie
- Bedrijfshal
- Mogelijke functie(s)
- Winkelruimte
- Soort bouw
- Bestaande bouw
- Bouwjaar
- 1942
Oppervlakten
- Oppervlakte
- 98 m²
- Bedrijfshal oppervlak
- 98 m²
- Perceel
- 105 m²
Indeling
- Voorzieningen
- Lichtstraten, toilet en pantry
- Woonruimte
- Aanwezig (inpandig, 75 m²)
Energie
- Energielabel
- B
Omgeving
- Ligging
- Stadscentrum/dorpskern
- Bereikbaarheid
- Bushalte op minder dan 500 m en NS Intercitystation op 1000 m tot 1500 m
Foto's











































Plattegrond
Begane Grond

Eerste verdieping

Zolder

Kelder
