Kalkovenweg 9 7711 GV Nieuwleusen
- Nieuw
Huurprijs op aanvraag

Omschrijving
Te huur – Bedrijfsruimte
Op een fraaie en goed bereikbare locatie, aan de rand van industrieterrein De Meele en op slechts enkele minuten afstand van het dorp, bieden wij deze bedrijfsruimte te huur aan. De locatie is bereikbaar via de Kalkovenweg.
De bedrijfsruimte is opgebouwd uit gemetselde halfsteensmuren met geïsoleerde voorzetwanden, een stalen spantconstructie en een betonvloer. Het dak is voorzien van abc-golfplaten (asbesthoudend) met dakisolatie. Daarnaast beschikt het pand over een eigen toilet.
Kenmerken:
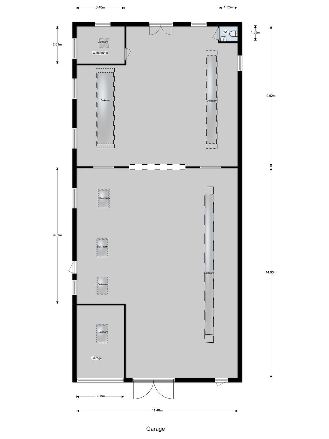
Oppervlakte: circa 286 m²
Eén handmatig bediende overheaddeur, geschikt voor vrachtverkeer
Voorzien van water- en krachtstroomaansluiting
Buitenterrein aan voor- en zijkant, geschikt voor parkeren
Aanvullende informatie:
Huurbepalingen zijn op aanvraag beschikbaar. Huurtermijn in overleg. Uitgebreide documentatie is eveneens verkrijgbaar.
Aanvaarding kan per direct.
Neem gerust contact met ons op om de mogelijkheden te bespreken.
Op een fraaie en goed bereikbare locatie, aan de rand van industrieterrein De Meele en op slechts enkele minuten afstand van het dorp, bieden wij deze bedrijfsruimte te huur aan. De locatie is bereikbaar via de Kalkovenweg.
De bedrijfsruimte is opgebouwd uit gemetselde halfsteensmuren met geïsoleerde voorzetwanden, een stalen spantconstructie en een betonvloer. Het dak is voorzien van abc-golfplaten (asbesthoudend) met dakisolatie. Daarnaast beschikt het pand over een eigen toilet.
Kenmerken:
Oppervlakte: circa 286 m²
Eén handmatig bediende overheaddeur, geschikt voor vrachtverkeer
Voorzien van water- en krachtstroomaansluiting
Buitenterrein aan voor- en zijkant, geschikt voor parkeren
Aanvullende informatie:
Huurbepalingen zijn op aanvraag beschikbaar. Huurtermijn in overleg. Uitgebreide documentatie is eveneens verkrijgbaar.
Aanvaarding kan per direct.
Neem gerust contact met ons op om de mogelijkheden te bespreken.
Kenmerken
Overdracht
- Huurprijs
- Huurprijs op aanvraag
- Aangeboden sinds
-
- Status
- Beschikbaar
- Aanvaarding
- Per direct beschikbaar
Bouw
- Hoofdfunctie
- Bedrijfshal
- Soort bouw
- Bestaande bouw
- Bouwjaar
- 1987
Oppervlakten
- Oppervlakte
- 286 m²
- Bedrijfshal oppervlak
- 286 m²
- Terrein oppervlak
- 490 m²
- Perceel
- 780 m²
Indeling
- Voorzieningen
- Overheaddeuren, krachtstroom, betonvloer en toilet
Energie
- Energielabel
- Niet beschikbaar
Omgeving
- Ligging
- Bedrijventerrein en landelijk gebied
NVM makelaar
Foto's















