Industrieweg 20-a 8071 CT Nunspeet
- Onder optie
€ 35.000 /jr
Omschrijving
Industrieweg 20a te Nunspeet
OBJECT
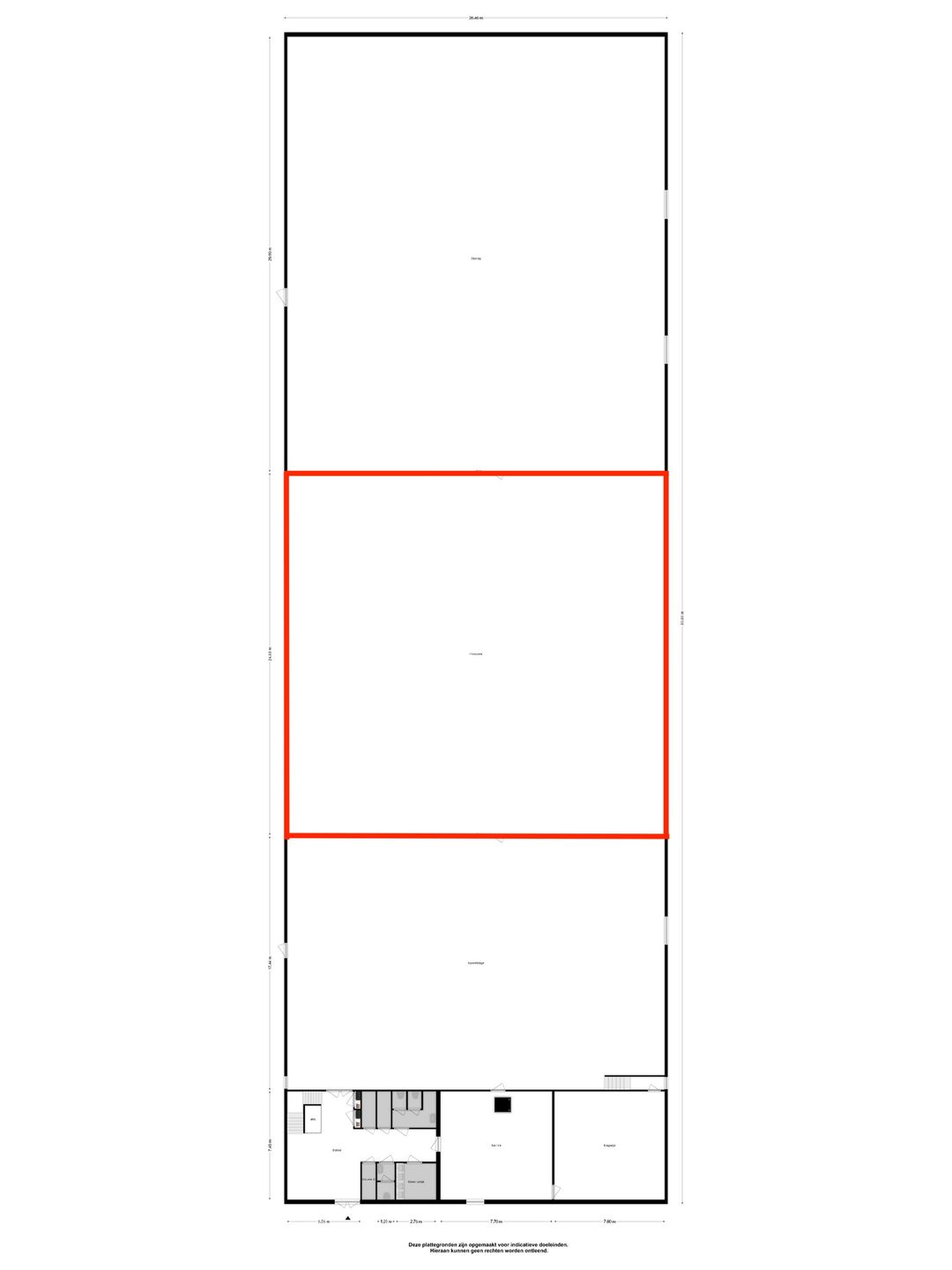
Industrieweg 20A betreft een ruime bedrijfsruimte van ca. 630 m². De ruimt beschikt over een ruime elektrische overheaddeur en over veel natuurlijk licht. De ruimte is uitgerust met een elektrische installatie en Led-verlichting.
De opwarming van de hal is middels een gasheater.
LIGGING
Het object is gelegen op het industrieterrein Feithenhof aan de Industrieweg, het object is gemakkelijk te bereiken met zowel de auto als het openbaar vervoer en bevindt zich op slechts enkele minuten autominuten van de Rijksweg A28 (Amersfoort-Zwolle) en op loopafstand van het NS-station.
BESTEMMINGSPLAN
Industrieweg 20A valt onder het bestemmingsplan "Nunspeet West" en heeft de enkelbestemming "Bedrijventerrein" met een aanduiding voor bedrijven tot en met milieucategorie 3.2.
PARKEREN
Parkeren op het buitenterrein
VERHUURBARE VLOEROPPERVLAKTE
Ca. 630 m² bedrijfsruimte gelegen op de begane grond
VRIJE HOOGTE
begane grond ca. 4,60 m. (aan te passen naar ca. 6,45 m)
VOORZIENINGEN
- 1x elektrische overheaddeur (b 4,00 m x 4,20 m met loopdeur);
- ledverlichting;
- 1x gasheater;
- 1x plafond ventilator;
- krachtstroom;
- waterpunt.
LEVERING EN DIENSTEN
- gasverbruik, inclusief vastrecht, alsmede ten behoeve van de installaties van de algemene ruimten;
- elektraverbruik, inclusief vastrecht, alsmede ten behoeve van de installaties en verlichting van de algemene ruimten;
- gladheidbestrijding/ijsvrij maken buitenterrein;
- OZB gebruikersdeel en overige heffingen en lasten in verband met het gebruik (indien dit niet door gemeente direct aan
huurder wordt doorbelast maar aan verhuurder.
PROJECTWEBSITE
industrieweg20a.nl
HUURPRIJS
€ 35.000,-- per jaar te vermeerderen met omzetbelasting.
HUURTERMIJN
In overleg
VOORTZETTINGSTERMIJN
In overleg
OPZEGTERMIJN
In overleg
AANVAARDING
Per direct
INDEXERING
Jaarlijks conform CPI-Alle Huishoudens (2015=100), voor het eerst één jaar na de ingangsdatum van de huurovereenkomst.
CONTRACT
ROZ-huurcontract voor kantoorruimte, versie 2015 met bijbehorende algemene bepalingen, alsmede enkele aanvullende bepalingen.
WAARBORGSOM/BANKGARANTIE/CONCERNGARANTIE
Ter grootte van een kwartaalhuur te vermeerderen met omzetbelasting.
OMZETBELASTING
Er wordt geopteerd voor belaste verhuur, c.q. de huurprijs wordt verhoogd met omzetbelasting. Indien er niet wordt geopteerd voor belaste verhuur, wordt de huurprijs verhoogd met een nader door de accountant van verhuurder vast te stellen percentage.
PRIVACY
Brandt Bedrijfsmakelaars respecteert uw recht op privacy en garandeert dat uw persoons- en bedrijfsgegevens op een vertrouwelijke en verantwoordelijke wijze zullen worden behandeld, overeenkomstig de richtlijnen uit de Algemene Verordening Gegevensbescherming (AVG).
DISCLAIMER
Nadrukkelijk is vermeld dat deze informatieverstrekking niet als een aanbieding of offerte mag worden beschouwd. Aan deze gegevens kunnen geen rechten worden ontleend.
OBJECT
Industrieweg 20A betreft een ruime bedrijfsruimte van ca. 630 m². De ruimt beschikt over een ruime elektrische overheaddeur en over veel natuurlijk licht. De ruimte is uitgerust met een elektrische installatie en Led-verlichting.
De opwarming van de hal is middels een gasheater.
LIGGING
Het object is gelegen op het industrieterrein Feithenhof aan de Industrieweg, het object is gemakkelijk te bereiken met zowel de auto als het openbaar vervoer en bevindt zich op slechts enkele minuten autominuten van de Rijksweg A28 (Amersfoort-Zwolle) en op loopafstand van het NS-station.
BESTEMMINGSPLAN
Industrieweg 20A valt onder het bestemmingsplan "Nunspeet West" en heeft de enkelbestemming "Bedrijventerrein" met een aanduiding voor bedrijven tot en met milieucategorie 3.2.
PARKEREN
Parkeren op het buitenterrein
VERHUURBARE VLOEROPPERVLAKTE
Ca. 630 m² bedrijfsruimte gelegen op de begane grond
VRIJE HOOGTE
begane grond ca. 4,60 m. (aan te passen naar ca. 6,45 m)
VOORZIENINGEN
- 1x elektrische overheaddeur (b 4,00 m x 4,20 m met loopdeur);
- ledverlichting;
- 1x gasheater;
- 1x plafond ventilator;
- krachtstroom;
- waterpunt.
LEVERING EN DIENSTEN
- gasverbruik, inclusief vastrecht, alsmede ten behoeve van de installaties van de algemene ruimten;
- elektraverbruik, inclusief vastrecht, alsmede ten behoeve van de installaties en verlichting van de algemene ruimten;
- gladheidbestrijding/ijsvrij maken buitenterrein;
- OZB gebruikersdeel en overige heffingen en lasten in verband met het gebruik (indien dit niet door gemeente direct aan
huurder wordt doorbelast maar aan verhuurder.
PROJECTWEBSITE
industrieweg20a.nl
HUURPRIJS
€ 35.000,-- per jaar te vermeerderen met omzetbelasting.
HUURTERMIJN
In overleg
VOORTZETTINGSTERMIJN
In overleg
OPZEGTERMIJN
In overleg
AANVAARDING
Per direct
INDEXERING
Jaarlijks conform CPI-Alle Huishoudens (2015=100), voor het eerst één jaar na de ingangsdatum van de huurovereenkomst.
CONTRACT
ROZ-huurcontract voor kantoorruimte, versie 2015 met bijbehorende algemene bepalingen, alsmede enkele aanvullende bepalingen.
WAARBORGSOM/BANKGARANTIE/CONCERNGARANTIE
Ter grootte van een kwartaalhuur te vermeerderen met omzetbelasting.
OMZETBELASTING
Er wordt geopteerd voor belaste verhuur, c.q. de huurprijs wordt verhoogd met omzetbelasting. Indien er niet wordt geopteerd voor belaste verhuur, wordt de huurprijs verhoogd met een nader door de accountant van verhuurder vast te stellen percentage.
PRIVACY
Brandt Bedrijfsmakelaars respecteert uw recht op privacy en garandeert dat uw persoons- en bedrijfsgegevens op een vertrouwelijke en verantwoordelijke wijze zullen worden behandeld, overeenkomstig de richtlijnen uit de Algemene Verordening Gegevensbescherming (AVG).
DISCLAIMER
Nadrukkelijk is vermeld dat deze informatieverstrekking niet als een aanbieding of offerte mag worden beschouwd. Aan deze gegevens kunnen geen rechten worden ontleend.
Kenmerken
Overdracht
- Huurprijs
- € 35.000 per jaar
- Aangeboden sinds
-
- Status
- Onder optie
- Aanvaarding
- Per direct beschikbaar
Bouw
- Hoofdfunctie
- Bedrijfshal
- Soort bouw
- Bestaande bouw
- Bouwjaar
- 2009
Oppervlakten
- Oppervlakte
- 630 m²
- Bedrijfshal oppervlak
- 630 m²
- Vrije hoogte
- 4,9 m
Indeling
- Voorzieningen
- Lichtstraten, overheaddeuren, krachtstroom, betonvloer en heater
Energie
- Energielabel
- A 0,97
Omgeving
- Ligging
- Bedrijventerrein
- Bereikbaarheid
- Bushalte op 500 m tot 1000 m, NS Intercitystation op 500 m tot 1000 m en snelwegafrit op 2000 m tot 3000 m
NVM makelaar
Foto's
Plattegrond
Begane Grond