Edisonstraat 10-12 3261 LD Oud-Beijerland
- Nieuw
€ 285.000 v.o.n.

Omschrijving
Op de hoek van de Jan van der Heijdenstraat en de Edisonstraat worden momenteel de huidige opstallen gesloopt, wordt de grond bouwrijp gemaakt en zal worden gestart met de bouw van 30 energiezuinige, multifunctionele bedrijfsunits. De units worden verkocht als appartementsrecht, zodat het complex door de tussenkomst van een VvE en een VvE-beheerder ook in de toekomst netjes en goed onderhouden blijft.
Op de kop van het complex, aan de zijde van de Jan van der Heijdenstraat, worden 4 markante showroom/bedrijfsunits met betonnen verdiepingsvloer en veel glas gerealiseerd. Daar achter worden aan weerszijden in totaal 26 bedrijfsunits gerealiseerd, voorzien van betonnen verdiepingsvloeren, een elektrisch bedienbare overheaddeur en een glaspui op de verdieping, zodat deze gedeeltelijk tot kantoor kunnen worden afgebouwd. De 4 showroom/bedrijfsunits beschikken elk over 4 toegewezen parkeerplaatsen. De 26 bedrijfsunits beschikken per stuk over 2 eigen parkeerplaatsen.
De ontwikkelaar, Van der Wulp Vastgoed, heeft een team samengesteld van ervaren partijen voor de herontwikkeling, realisatie en verkoop van dit mooie nieuwbouwproject.
Locatie:
De nieuwbouw wordt gerealiseerd op de hoek van de Jan van der Heijdenstraat en de Edisonstraat, op bedrijventerrein De Bosschen, vlakbij het centrum van Oud-Beijerland. De provinciale weg N217 aan de westzijde zorgt voor een snelle ontsluiting richting de op- en afritten van rijksweg A29 (Rotterdam - Bergen op Zoom).
Bouwaard/algemeen:
- met betonnen prefab heipalen onderheide betonfundering;
- onderheide, geïsoleerde betonvloeren, monoliet afgewerkt, rc-waarde 3,7 m² K/W;
- opbouw staalconstructie;
- unitscheidende wanden gasbeton elementen;
- gevels geïsoleerde sandwichpanelen, rc-waarde 4,7 m² K/W;
- verdieping kanaalplaten met zandcement dekvloer;
- kunststof kozijnen, ramen en deuren met isolerende beglazing, te openen ramen en ventilatieroosters;
- geïsoleerd staaldak met pvc dakbedekking, rc-waarde 6,3 m² K/W;
- hemelwaterafvoeren en noodoverstorten;
- buitenterrein verhard met betonklinkers, voorzien van straatkolken aangesloten op de riolering, gemarkeerde parkeervakken, stoepen en trottoirbanden;
- erfafscheiding zuidzijde middels een hekwerk van ca. 2,00 meter hoog.
Voorzieningen/specificaties:
- casco oplevering;
- luifelrand met ledverlichting boven de entree;
- entreedeur met huisnummer, bel en brievenbus in de deur;
- maximale vloerbelasting begane grondvloer 1.000 kg/m²;
- maximale vloerbelasting verdiepingsvloer 400 kg/m²;
- meterkast met een elektra-aansluiting van 3 x 25 ampère, 2 aardlekschakelaars, 6 groepen en een dubbele wcd in de meterkast;
- de aansluitkosten voor de nutsvoorzieningen (elektra en water) zijn voor rekening van de koper en worden separaat in rekening gebracht;
- elektrisch bedienbare overheaddeur van ca. 3,00 meter breed en ca. 3,25 meter hoog;
- SKG** hang- en sluitwerk;
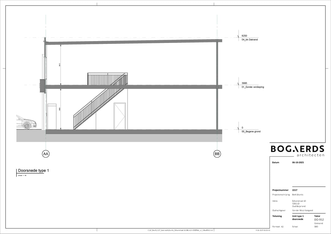
- 4 showroom/bedrijfsunits: vrije hoogte op de begane grond ca. 3,95 meter, vrije hoogte op de verdieping ca. 4,10 meter;
- 26 bedrijfsunits: vrije hoogte op de begane grond ca. 3,70 meter, vrije hoogte op de verdieping ca. 3,60 meter;
- vurenhouten trappen, unit 27 t/m 30 met tussenbordes;
- unit 1 t/m 26 worden voorzien van een betegelde toiletruimte met wandcloset met inbouwreservoir, fonteintje met koud water, systeemplafond met ledverlichting en een opdekdeur. Exclusief mechanische ventilatie;
- unit 27 t/m 30 worden voorzien van een dubbele betegelde toiletruimte met wandcloset met inbouwreservoir, fonteintje met koud water, systeemplafond met ledverlichting en opdekdeur. Exclusief mechanische ventilatie;
- het dak is geschikt voor eventueel door koper te plaatsen zonnepanelen, draagvermogen 20 kg/m² (exclusief zonnepanelen);
- sparing in de verdiepingsvloer voor de eventuele doorvoer van een waterafvoer voor een pantry (exclusief pantry);
- twee dakdoorvoeren voor eventueel door koper te plaatsen zonnepanelen en/of airco;
- reclame kan worden gevoerd op de posities die zijn aangegeven op de geveltekeningen;
- indien mogelijk worden de units aangesloten op glasvezel; de aansluitkosten zijn voor rekening van de koper.
Afmetingen en prijzen:
Zie prijslijst.
Levering:
- de bedrijfsunits worden geleverd als appartementsrecht, waarbij de kopers van rechtswege lid worden van de VvE;
- bij notariele overdracht van het appartementsrecht betalen de kopers 40% van de totale koopsom, de overige 60% wordt betaald in bouwtermijnen.
Energielabel:
In verband met een cascolevering wordt door verkoper geen energielabel verstrekt. Koper is zelf verantwoordelijk voor een eventueel verplicht energielabel.
Oplevering:
De oplevering van de aannemer aan de koper vindt plaats conform de planning van de aannemer. Alle ruimtes worden bezemschoon opgeleverd. Uiterlijk 2 weken voor de oplevering ontvangt de koper een uitnodiging met definitieve datum en tijdstip van de oplevering. Bij de oplevering mogen maximaal 2 personen vanuit de koper aanwezig zijn.
Verwachte start bouw:
Vierde kwartaal 2025.
Verwachte oplevering:
Einde derde kwartaal 2026.
Architect:
Bogaerds Architecten, Numansdorp.
Aannemer:
Van der Spek Bouw, Oud-Beijerland.
Projectnotaris:
Van der Straaten Notarissen, Mijnsheerenland.
Financieringsadviseur:
Financieringsgilde, Gijs Vreeburg,
06-53393821.
Makelaar:
Van Vliet Bedrijfsmakelaars, Ridderkerk.
Contactpersonen verkoop:
Jacob Herrewijnen, 06-12551256.
Jan Scheurwater, 06-55810375.
Deze informatie is door ons met de nodige zorgvuldigheid samengesteld. Onzerzijds wordt echter geen enkele aansprakelijkheid aanvaard voor enige onvolledigheid, onjuistheid of anderszins, dan wel de gevolgen daarvan. Alle opgegeven maten en oppervlakten zijn indicatief.
Op de kop van het complex, aan de zijde van de Jan van der Heijdenstraat, worden 4 markante showroom/bedrijfsunits met betonnen verdiepingsvloer en veel glas gerealiseerd. Daar achter worden aan weerszijden in totaal 26 bedrijfsunits gerealiseerd, voorzien van betonnen verdiepingsvloeren, een elektrisch bedienbare overheaddeur en een glaspui op de verdieping, zodat deze gedeeltelijk tot kantoor kunnen worden afgebouwd. De 4 showroom/bedrijfsunits beschikken elk over 4 toegewezen parkeerplaatsen. De 26 bedrijfsunits beschikken per stuk over 2 eigen parkeerplaatsen.
De ontwikkelaar, Van der Wulp Vastgoed, heeft een team samengesteld van ervaren partijen voor de herontwikkeling, realisatie en verkoop van dit mooie nieuwbouwproject.
Locatie:
De nieuwbouw wordt gerealiseerd op de hoek van de Jan van der Heijdenstraat en de Edisonstraat, op bedrijventerrein De Bosschen, vlakbij het centrum van Oud-Beijerland. De provinciale weg N217 aan de westzijde zorgt voor een snelle ontsluiting richting de op- en afritten van rijksweg A29 (Rotterdam - Bergen op Zoom).
Bouwaard/algemeen:
- met betonnen prefab heipalen onderheide betonfundering;
- onderheide, geïsoleerde betonvloeren, monoliet afgewerkt, rc-waarde 3,7 m² K/W;
- opbouw staalconstructie;
- unitscheidende wanden gasbeton elementen;
- gevels geïsoleerde sandwichpanelen, rc-waarde 4,7 m² K/W;
- verdieping kanaalplaten met zandcement dekvloer;
- kunststof kozijnen, ramen en deuren met isolerende beglazing, te openen ramen en ventilatieroosters;
- geïsoleerd staaldak met pvc dakbedekking, rc-waarde 6,3 m² K/W;
- hemelwaterafvoeren en noodoverstorten;
- buitenterrein verhard met betonklinkers, voorzien van straatkolken aangesloten op de riolering, gemarkeerde parkeervakken, stoepen en trottoirbanden;
- erfafscheiding zuidzijde middels een hekwerk van ca. 2,00 meter hoog.
Voorzieningen/specificaties:
- casco oplevering;
- luifelrand met ledverlichting boven de entree;
- entreedeur met huisnummer, bel en brievenbus in de deur;
- maximale vloerbelasting begane grondvloer 1.000 kg/m²;
- maximale vloerbelasting verdiepingsvloer 400 kg/m²;
- meterkast met een elektra-aansluiting van 3 x 25 ampère, 2 aardlekschakelaars, 6 groepen en een dubbele wcd in de meterkast;
- de aansluitkosten voor de nutsvoorzieningen (elektra en water) zijn voor rekening van de koper en worden separaat in rekening gebracht;
- elektrisch bedienbare overheaddeur van ca. 3,00 meter breed en ca. 3,25 meter hoog;
- SKG** hang- en sluitwerk;
- 4 showroom/bedrijfsunits: vrije hoogte op de begane grond ca. 3,95 meter, vrije hoogte op de verdieping ca. 4,10 meter;
- 26 bedrijfsunits: vrije hoogte op de begane grond ca. 3,70 meter, vrije hoogte op de verdieping ca. 3,60 meter;
- vurenhouten trappen, unit 27 t/m 30 met tussenbordes;
- unit 1 t/m 26 worden voorzien van een betegelde toiletruimte met wandcloset met inbouwreservoir, fonteintje met koud water, systeemplafond met ledverlichting en een opdekdeur. Exclusief mechanische ventilatie;
- unit 27 t/m 30 worden voorzien van een dubbele betegelde toiletruimte met wandcloset met inbouwreservoir, fonteintje met koud water, systeemplafond met ledverlichting en opdekdeur. Exclusief mechanische ventilatie;
- het dak is geschikt voor eventueel door koper te plaatsen zonnepanelen, draagvermogen 20 kg/m² (exclusief zonnepanelen);
- sparing in de verdiepingsvloer voor de eventuele doorvoer van een waterafvoer voor een pantry (exclusief pantry);
- twee dakdoorvoeren voor eventueel door koper te plaatsen zonnepanelen en/of airco;
- reclame kan worden gevoerd op de posities die zijn aangegeven op de geveltekeningen;
- indien mogelijk worden de units aangesloten op glasvezel; de aansluitkosten zijn voor rekening van de koper.
Afmetingen en prijzen:
Zie prijslijst.
Levering:
- de bedrijfsunits worden geleverd als appartementsrecht, waarbij de kopers van rechtswege lid worden van de VvE;
- bij notariele overdracht van het appartementsrecht betalen de kopers 40% van de totale koopsom, de overige 60% wordt betaald in bouwtermijnen.
Energielabel:
In verband met een cascolevering wordt door verkoper geen energielabel verstrekt. Koper is zelf verantwoordelijk voor een eventueel verplicht energielabel.
Oplevering:
De oplevering van de aannemer aan de koper vindt plaats conform de planning van de aannemer. Alle ruimtes worden bezemschoon opgeleverd. Uiterlijk 2 weken voor de oplevering ontvangt de koper een uitnodiging met definitieve datum en tijdstip van de oplevering. Bij de oplevering mogen maximaal 2 personen vanuit de koper aanwezig zijn.
Verwachte start bouw:
Vierde kwartaal 2025.
Verwachte oplevering:
Einde derde kwartaal 2026.
Architect:
Bogaerds Architecten, Numansdorp.
Aannemer:
Van der Spek Bouw, Oud-Beijerland.
Projectnotaris:
Van der Straaten Notarissen, Mijnsheerenland.
Financieringsadviseur:
Financieringsgilde, Gijs Vreeburg,
06-53393821.
Makelaar:
Van Vliet Bedrijfsmakelaars, Ridderkerk.
Contactpersonen verkoop:
Jacob Herrewijnen, 06-12551256.
Jan Scheurwater, 06-55810375.
Deze informatie is door ons met de nodige zorgvuldigheid samengesteld. Onzerzijds wordt echter geen enkele aansprakelijkheid aanvaard voor enige onvolledigheid, onjuistheid of anderszins, dan wel de gevolgen daarvan. Alle opgegeven maten en oppervlakten zijn indicatief.
Kenmerken
Overdracht
- Vraagprijs
- € 285.000 vrij op naam
- Aangeboden sinds
-
- Status
- Beschikbaar
- Aanvaarding
- In overleg
Bouw
- Hoofdfunctie
- Bedrijfshal
- Soort bouw
- Nieuwbouw
- Bouwjaar
- Momenteel in aanbouw
Oppervlakten
- Oppervlakte
- 5.593 m² (in units vanaf 134 m²)
- Bedrijfshal oppervlak
- 5.593 m²
- Vrije hoogte
- 3,7 m
- Draagvermogen
- 1.000 kg/m²
Indeling
- Voorzieningen
- Overheaddeuren, betonvloer en toilet
Energie
- Energielabel
- Niet verplicht
Omgeving
- Ligging
- Bedrijventerrein
Parkeergelegenheid
- Parkeerplaatsen
- 2 niet-overdekte parkeerplaatsen
Foto's























