Nijverheidsstraat 18 2288 BB Rijswijk (ZH)
- Nieuw
€ 2.250 /mnd

Omschrijving
Algemeen: Project "Harbour Village", de transformatie van de Rijswijkse haven, doet de fantasie van menig ondernemer op hol slaan. Een uniek en inspirerend werkgebied met havensfeer en herkenbare havenarchitectuur.
"Harbour Village" is uitgegroeid tot één van de meest leuke en gewilde bedrijfslocaties van de Haagse regio. Het aansprekende ontwerp van dit bedrijvencomplex, de geweldige ligging aan het water en natuurlijk de komst van een grote groep enthousiaste en trotse ondernemers, hebben dit gebied in enkele jaren gemaakt tot "THE PLACE TO BE".
Bereikbaarheid:
Per auto
Het object is gelegen in de nabijheid van de Rijkswegen A4 (Den Haag - Amsterdam) en A13 (Den Haag - Rotterdam). Via het 'Prins Clausplein' is tevens de Rijksweg A12 (Den Haag - Utrecht) uitstekend bereikbaar.
Per openbaar vervoer
De bereikbaarheid met het openbaar vervoer is uitstekend. Diverse buslijnen hebben hun halteplaatsen in de directe nabijheid, evenals tramlijn 17, welke een directe verbinding onderhoudt tussen de stations 'Den Haag Centraal', 'Hollands Spoor' en het nieuwe openbaar vervoersknooppunt 'Station Rijswijk'.
Adres: Nijverheidsstraat 18, 2288 BB te Rijswijk.
Kadastrale gegevens:
Gemeente: Rijswijk
Sectie: G
Nummer: 3457 A20
Bouwjaar: Omstreeks 2016.
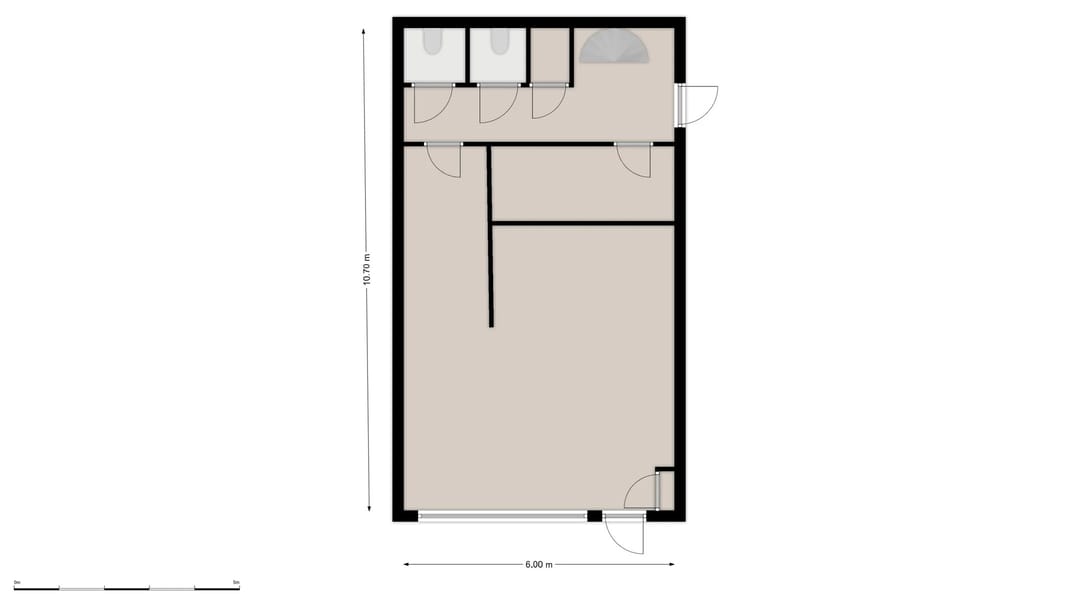
Metrage:
Circa 68 m² b.v.o. bedrijfsruimte begane grond;
Circa 68 m² b.v.o. kantoorruimte eerste verdieping.
Parkeren: 2 parkeerplaatsen direct voor het gehuurde. Tevens zijn er goede parkeermogelijkheden langs de openbare weg.
Bestemming: De voor 'Bedrijventerrein' aangewezen gronden zijn bestemd voor: a. bedrijfsactiviteiten die zijn genoemd in Bijlage 1 onder de categorieën 1 t/m 3.2 alsmede kantoren.
Energielabel: Label A+.
Oplevering: De hoek bedrijfsunit zal in huidige staat worden opgeleverd en is onder andere voorzien van:
* monoliet gestorte betonvloer met een draagvermogen van maximaal 1.500 kg/ m² (begane grond);
* verdieping betonnen systeemvloer met een draagvermogen van maximaal 500 kg/ m²;
* elektrisch bedienbare overheaddeur ca. 3 x 3 (B x H);
* vrije hoogte ca. 3,5 m;
* kunststof buitenkozijnen en ramen v.v. HR ++ beglazing;
* pantry v.v. bovenkastjes, spoelbak en vaatwasser op de verdieping;
* lichtkoepel;
* royaal daglicht door hoekligging;
* indeling in kamers d.m.v. systeemscheidingswand op de verdieping;
* alarminstallatie;
* airconditioning (split-units);
* mechanische ventilatie t.b.v. toiletten en pantry;
* 14 stuks zonnepanelen (440 wp);
* 1 stuks Huawei 5 kw 3 fase hybride omvormer met vlamboog-beveiliging;
* close-in bolier 10 liter t.b.v. pantry;
* dichte houten vuren trap;
* luxe dames- heren toiletgroep op de begane grond;
* krachtstroom (380V);
* LED- verlichting;
* voldoende stroom- en utp-punten;
* te openen ramen;
* deels tegelvloer, deels vloerbedekking;
* buitenverlichting;
* ingerichte meterkast.
HUURVOORWAARDEN
Huurprijs: € 2.250,- per maand te vermeerderen met de wettelijk verschuldigde omzetbelasting.
Huurtermijn: 5 jaar met de mogelijkheid de huurovereenkomst telkens met 5 jaar te verlengen. Kortere huurperioden zijn bespreekbaar.
Opzegtermijn: 12 maanden voor expiratie huurovereenkomst per aangetekend schrijven of bij deurwaardersexploot.
Oplevering: In overleg, op korte termijn mogelijk.
Huurbetaling: Per maand vooruit.
Huurprijsaanpassing: Jaarlijks, zal per huuringangsdatum, voor het eerst 12 maanden na huuringangsdatum, de huurprijs worden aangepast op basis van de wijziging van het maandprijsindexcijfer volgens de consumentenprijsindex (CPI) reeks alle huishoudens (2015 = 100), gepubliceerd door het Centraal Bureau voor de Statistiek (CBS).
Service- en energiekosten: Het gehuurde is geheel zelfstandig en er zijn geen bijkomende leveringen en diensten door of vanwege verhuurder van toepassing. Huurder dient zelf zorg te dragen het stuiten van leveringscontracten voor gas, water en elektra bij de desbetreffende nutsbedrijven.
Huurovereenkomst: Standaard huurovereenkomst kantoorruimte en andere bedrijfsruimte in de zin van artikel 7:230a BW, vastgesteld door de Raad van Onroerende Zaken (ROZ) in januari 2015. Van deze huurovereenkomst maken deel uit de algemene bepalingen kantoorruimte en andere bedrijfsruimte in de zin van artikel 7:230a BW, welke op 17 februari 2015 gedeponeerd zijn bij de griffie van de rechtbank Den Haag en aldaar zijn ingeschreven onder nummer 15/21.
Zekerheidsstelling: Bij ondertekening van de huurovereenkomst, zal huurder een bankgarantie stellen ter grootte van drie maanden huurverplichting te vermeerderen met de wettelijk verschuldigde omzetbelasting.
Voorbehoud:
- positief kredietinformatierapport ter beoordeling van verhuurder;
- goedkeuring directie verhuurder.
"Harbour Village" is uitgegroeid tot één van de meest leuke en gewilde bedrijfslocaties van de Haagse regio. Het aansprekende ontwerp van dit bedrijvencomplex, de geweldige ligging aan het water en natuurlijk de komst van een grote groep enthousiaste en trotse ondernemers, hebben dit gebied in enkele jaren gemaakt tot "THE PLACE TO BE".
Bereikbaarheid:
Per auto
Het object is gelegen in de nabijheid van de Rijkswegen A4 (Den Haag - Amsterdam) en A13 (Den Haag - Rotterdam). Via het 'Prins Clausplein' is tevens de Rijksweg A12 (Den Haag - Utrecht) uitstekend bereikbaar.
Per openbaar vervoer
De bereikbaarheid met het openbaar vervoer is uitstekend. Diverse buslijnen hebben hun halteplaatsen in de directe nabijheid, evenals tramlijn 17, welke een directe verbinding onderhoudt tussen de stations 'Den Haag Centraal', 'Hollands Spoor' en het nieuwe openbaar vervoersknooppunt 'Station Rijswijk'.
Adres: Nijverheidsstraat 18, 2288 BB te Rijswijk.
Kadastrale gegevens:
Gemeente: Rijswijk
Sectie: G
Nummer: 3457 A20
Bouwjaar: Omstreeks 2016.
Metrage:
Circa 68 m² b.v.o. bedrijfsruimte begane grond;
Circa 68 m² b.v.o. kantoorruimte eerste verdieping.
Parkeren: 2 parkeerplaatsen direct voor het gehuurde. Tevens zijn er goede parkeermogelijkheden langs de openbare weg.
Bestemming: De voor 'Bedrijventerrein' aangewezen gronden zijn bestemd voor: a. bedrijfsactiviteiten die zijn genoemd in Bijlage 1 onder de categorieën 1 t/m 3.2 alsmede kantoren.
Energielabel: Label A+.
Oplevering: De hoek bedrijfsunit zal in huidige staat worden opgeleverd en is onder andere voorzien van:
* monoliet gestorte betonvloer met een draagvermogen van maximaal 1.500 kg/ m² (begane grond);
* verdieping betonnen systeemvloer met een draagvermogen van maximaal 500 kg/ m²;
* elektrisch bedienbare overheaddeur ca. 3 x 3 (B x H);
* vrije hoogte ca. 3,5 m;
* kunststof buitenkozijnen en ramen v.v. HR ++ beglazing;
* pantry v.v. bovenkastjes, spoelbak en vaatwasser op de verdieping;
* lichtkoepel;
* royaal daglicht door hoekligging;
* indeling in kamers d.m.v. systeemscheidingswand op de verdieping;
* alarminstallatie;
* airconditioning (split-units);
* mechanische ventilatie t.b.v. toiletten en pantry;
* 14 stuks zonnepanelen (440 wp);
* 1 stuks Huawei 5 kw 3 fase hybride omvormer met vlamboog-beveiliging;
* close-in bolier 10 liter t.b.v. pantry;
* dichte houten vuren trap;
* luxe dames- heren toiletgroep op de begane grond;
* krachtstroom (380V);
* LED- verlichting;
* voldoende stroom- en utp-punten;
* te openen ramen;
* deels tegelvloer, deels vloerbedekking;
* buitenverlichting;
* ingerichte meterkast.
HUURVOORWAARDEN
Huurprijs: € 2.250,- per maand te vermeerderen met de wettelijk verschuldigde omzetbelasting.
Huurtermijn: 5 jaar met de mogelijkheid de huurovereenkomst telkens met 5 jaar te verlengen. Kortere huurperioden zijn bespreekbaar.
Opzegtermijn: 12 maanden voor expiratie huurovereenkomst per aangetekend schrijven of bij deurwaardersexploot.
Oplevering: In overleg, op korte termijn mogelijk.
Huurbetaling: Per maand vooruit.
Huurprijsaanpassing: Jaarlijks, zal per huuringangsdatum, voor het eerst 12 maanden na huuringangsdatum, de huurprijs worden aangepast op basis van de wijziging van het maandprijsindexcijfer volgens de consumentenprijsindex (CPI) reeks alle huishoudens (2015 = 100), gepubliceerd door het Centraal Bureau voor de Statistiek (CBS).
Service- en energiekosten: Het gehuurde is geheel zelfstandig en er zijn geen bijkomende leveringen en diensten door of vanwege verhuurder van toepassing. Huurder dient zelf zorg te dragen het stuiten van leveringscontracten voor gas, water en elektra bij de desbetreffende nutsbedrijven.
Huurovereenkomst: Standaard huurovereenkomst kantoorruimte en andere bedrijfsruimte in de zin van artikel 7:230a BW, vastgesteld door de Raad van Onroerende Zaken (ROZ) in januari 2015. Van deze huurovereenkomst maken deel uit de algemene bepalingen kantoorruimte en andere bedrijfsruimte in de zin van artikel 7:230a BW, welke op 17 februari 2015 gedeponeerd zijn bij de griffie van de rechtbank Den Haag en aldaar zijn ingeschreven onder nummer 15/21.
Zekerheidsstelling: Bij ondertekening van de huurovereenkomst, zal huurder een bankgarantie stellen ter grootte van drie maanden huurverplichting te vermeerderen met de wettelijk verschuldigde omzetbelasting.
Voorbehoud:
- positief kredietinformatierapport ter beoordeling van verhuurder;
- goedkeuring directie verhuurder.
Kenmerken
Overdracht
- Huurprijs
- € 2.250 per maand
- Aangeboden sinds
-
- Status
- Beschikbaar
- Aanvaarding
- In overleg
Bouw
- Hoofdfunctie
- Bedrijfshal
- Soort bouw
- Bestaande bouw
- Bouwjaar
- 2016
Oppervlakten
- Oppervlakte
- 136 m²
- Bedrijfshal oppervlak
- 68 m²
- Kantoor oppervlak
- 68 m²
- Vrije hoogte
- 3,5 m
- Draagvermogen
- 1.500 kg/m²
Indeling
- Aantal bouwlagen
- 1 bouwlaag
- Voorzieningen
- Airconditioning, overheaddeuren, krachtstroom, betonvloer, toilet, pantry, inbouwarmaturen en te openen ramen
Energie
- Energielabel
- A+
Omgeving
- Ligging
- Bedrijventerrein
- Bereikbaarheid
- Snelwegafrit op 500 m tot 1000 m en Tramhalte op minder dan 500 m
Parkeergelegenheid
- Parkeerplaatsen
- 2 niet-overdekte parkeerplaatsen
Foto's












