Duitslandweg 4389 PJ Ritthem
Huurprijs op aanvraag
Omschrijving
ALGEMEEN
De SMARTLOG Vlissingen-locatie, met een oppervlakte van ongeveer 11,3 ha, is gelegen in Vlissingen, dat deel uitmaakt van North Sea Port (NSP). NSP is een dynamische grensoverschrijdende havenregio die zich uitstrekt van Vlissingen in Nederland tot Gent in België, met directe toegang tot de Noordzee. Deze locatie is een belangrijke toegangspoort voor Europese en mondiale handel en biedt uitstekende connectiviteit met belangrijke weg-, spoor- en binnenwaternetwerken.
TOEGANKELIJKHEID
De locatie is goed verbonden via belangrijke snelwegen, waaronder de A58, die directe routes biedt naar belangrijke steden zoals Rotterdam, Antwerpen en verder. Dit zorgt voor snel en efficiënt wegvervoer door de hele Benelux en naar Duitsland. Bovendien bieden de nabijgelegen havens van Vlissingen en Terneuzen diepzeekades die grote zeeschepen kunnen ontvangen. Deze unieke eigenschap zorgt ervoor dat internationale zendingen direct kunnen worden afgehandeld, wat transittijden verkort en supply chain-operaties stroomlijnt. Met meerdere transportmogelijkheden voor de deur, waaronder de mogelijkheid om diepzeeschepen te ontvangen, is deze locatie perfect gepositioneerd om snelle, betrouwbare en kosteneffectieve logistieke oplossingen te ondersteunen.
TRANSPORTMODALITEITEN
SMARTLOG Vlissingen is uitzonderlijk goed verbonden via meerdere transportmodaliteiten, waardoor het een ideale hub is voor distributie. De locatie ligt nabij belangrijke snelwegen zoals de A58, wat zorgt voor snel wegvervoer door de Benelux en naar Duitsland. Daarnaast profiteert het van de nabijheid van het uitgebreide spoorwegnetwerk van North Sea Port, dat naadloze spoorverbindingen door heel Europa biedt. Dit spoorwegnetwerk bevindt zich bij de naastgelegen Verbrugge Terminal. Bovendien zijn de nabijgelegen havens van Vlissingen en Terneuzen uitgerust om diepzeeschepen te ontvangen, wat directe toegang biedt tot internationale zeeroutes. Binnenwateren vergroten verder de flexibiliteit van de locatie en ondersteunen efficiënte en duurzame transportopties over het hele continent.
LITHIUM-ION BATTERIJEN OPSLAG
SMARTLOG Vlissingen biedt een unieke kans voor bedrijven in de logistieke sector: het beschikt als een van de weinige locaties in Nederland over een permanente onherroepelijke vergunning voor de grootschalige opslag van lithium-ion batterijen. SMARTLOG Vlissingen is volledig gecertificeerd voor deze specialistische opslag. Dit maakt de vijf distributiecentra (units van 11.000 tot 16.000 m2) uitermate geschikt voor bedrijven die actief zijn in de opslag en distributie van elektrische mobiliteitsoplossingen, consumentenelektronica of andere toepassingen met energieopslag.
Het Smartlog complex heeft een vergunning voor de opslag van maximaal 40.000 ton aan batterijen met een State of Charge ? 60%. Dit betekent dat een gebruiker verzekerd is van een locatie die voldoet aan de strengste veiligheidsnormen.
FLEXIBELE OPSLAGMOGELIJKHEDEN
Het pand is ontwikkeld en vergund voor de veilige opslag van vier typen batterijen:
- MicroPower (gehoorapparaten, smartwatches)
- CompactPower (smartphones, tablets, laptops)
- MobilePower (e-scooters, elektrische fietsen)
- MaxPower (elektrische auto’s en vrachtwagens)
De layout en de buffers tussen de distributiecentra maken het mogelijk om koopmansgoederen te combineren met lichte energiedragers. Hierdoor is maximale flexibiliteit geborgd, afgestemd op uw specifieke logistieke wensen
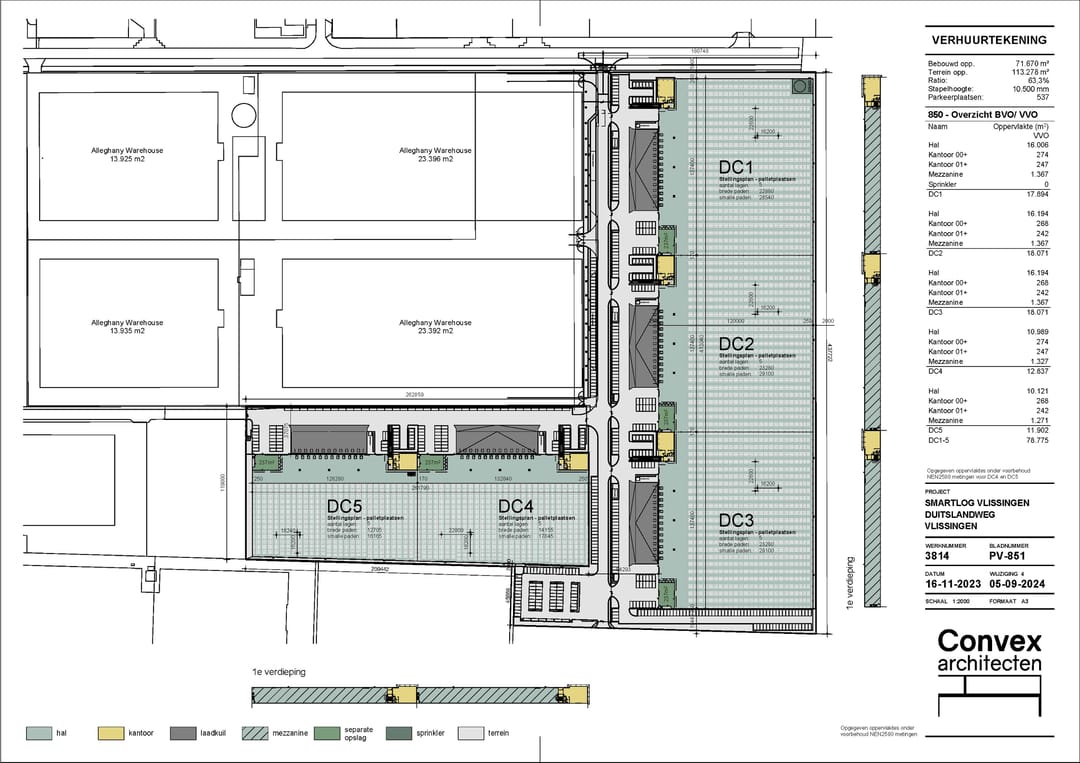
BESCHIKBAARHEID
DC 1 (batterij opslag) VERHUURD
Warehouse 16.006 m²
Kantoor 521 m²
Mezzanine 1.367 m²
Diepte hal 120 m
DC2 (koopmansgoederen)
Warehouse 16.194 m²
Kantoor 510 m²
Mezzanine 1.367 m²
Diepte hal 120 m
DC3 (batterij opslag) VERHUURD
Warehouse 16.194 m²
Kantoor 510 m²
Mezzanine 1.367 m²
Diepte hal 120 m
DC 4 (koopmansgoederen)
Warehouse 10.989 m²
Kantoor 521 m²
Mezzanine 1.327 m²
Diepte hal 85 m
DC 5 (batterij opslag) VERHUURD
Warehouse 10.121 m²
Kantoor 510 m²
Mezzanine 1.271 m²
Diepte hal 82 m
*genoemde m² onder voorbehoud van definitieve oplevering
HUURPRIJZEN
Warehouse | Huurprijs op aanvraag
Mezzanine | Huurprijs op aanvraag
Kantoor | Huurprijs op aanvraag
OPLEVERING
De oplevering staat, onder voorbehoud, gepland voor Q4 2025.
OPLEVERINGSNIVEAU
Opleveringsniveau Warehouse
- ESFR Sprinklerinstallatie met centrale bluswatervoorziening;
- Gladde betonnen vloer met vlakheidsklasse Zeile 4 conform DIN 18.202;
- Vloerbelasting 4.000 kg/m², expeditie ruimte 2.500 kg/m²;
- De puntbelasting onder de stelling bedraag 7.200 kg;
- Betonnen laadruimte;
- Vrije hoogte 10,50 meter;
- Minimaal 1 dock per 800 m²;
- Hydraulische dock levelers (8 ton), elektrisch bedienbaar;
- Elektrisch bedienbare overheaddeuren bij elk loading dock;
- Dock shelter met stootbumpers en wielgeleiding;
- Elektrisch bedienbare overheaddeuren op maaiveldniveau 4.000 mm x 4.500 mm;
- Brandslanghaspels, conform de hieraan door de brandweer gestelde eisen;
- Brandmeld- en ontruimingsinstallatie;
- Aansluitpunten acculaders;
- 230v en 400v aansluitingen;
- Lichtstraten in de expeditie zone;
- Opbouw LED verlichting gemiddeld 250 lux, 1 meter boven vloeroppervlak;
- Bewegingsdetector per gangzone;
- Vloerverwarming in de expeditie zone, opwekking d.m.v. een warmtepomp (min. Ruimtetemperatuur 5°C);
- Sanitaire voorzieningen.
Opleveringsniveau kantoorruimte
- Glad afgewerkte vloeren in de kantoren;
- VRF klimaatsysteem (21°C);
- Mechanisch ventilatiesysteem;
- Verlaagd plafond voorzien van geïntegreerde LED-verlichting (500lux);
- Kabelgoten t.b.v. data, telefoon en internet;
- Toiletfaciliteiten op beide verdiepingen;
- Bouwkundige wanden in stuc en sauswerk;
- Pantry op beide verdiepingen, voorzien van koelkast, vaatwasser en Quooker en combi-magnetron;
- Zonnepanelen op de kantoordaken.
Opleveringsniveau Buitenterrein
- Verharding middels klinkerbestrating;
- Terrein omheind met dubbelstaafmat hekwerk van 2 meter hoog ;
- Afsluitbare elektrische toegangspoorten;
- Afwatering;
- Buitenverlichting;
- Parkeerplaatsen voor personenauto’s;
- Laadstations t.b.v. elektrische auto’s.
ENERGIELABEL
Deze zal ten tijde van oplevering worden toegevoegd. Het pand zal minimaal gebouwd zijn volgens de BREEAM VERY GOOD norm.
SERVICEKOSTEN
Nader te bepalen.
HUURBETALING
Bij vooruitbetaling per maand.
HUURPRIJSAANPASSING
Jaarlijks, op basis van de wijziging van het maandprijs-indexcijfer volgens de consumentenprijsindex (CPI) reeks CPI-Alle Huishoudens (2015 = 100), gepubliceerd door het Centraal Bureau voor de Statistiek (CBS).
HUURTERMIJN
5 jaar met aansluitende verlengingsperioden van telkenmale 5 jaar.
ZEKERHEIDSSTELLING
Bankgarantie ter grootte van drie maanden huur, inclusief servicekosten en BTW.
OVER DHG
DHG is opgericht in 1997 en uitgegroeid tot dé specialist in het ontwikkelen en beleggen van logistiek vastgoed. Binnen de vastgoedportefeuille nemen havengebieden vanaf het begin een belangrijke plaats in. DHG is in deze niche een van de belangrijkste marktpartijen van Nederland en wordt door ondernemers, eigenaren en gemeenten regelmatig bij nieuwe ontwikkelingen betrokken. De onderneming laat zich kenmerken door drie sleutelwoorden: “passie, creativiteit en dynamiek”.
OVERIGE CONDITIES
Algemeen
Al het bovenstaande betreft informatie omtrent de verhuur van de "Smartlog Vlissingen ". De informatie is met zorg samengesteld, maar voor de juistheid ervan kan door Molenaar Bedrijfshuisvesting B.V. geen aansprakelijkheid worden aanvaard, noch aan de vermelde gegevens enig recht worden ontleend. Nadrukkelijk is vermeld dat deze informatieverstrekking niet als aanbieding of offerte mag worden beschouwd.
Voorbehoud
Mogelijke huurtransacties dienen ter goedkeuring voorgelegd te worden aan opdrachtgever c.q. eigenaresse van het complex. Tot het moment dat voornoemde goedkeuring verleend is, zijn alle uitgebrachte aanbiedingen geheel vrijblijvend.
Huurovereenkomst
Huurovereenkomst op basis van het standaardmodel van de Raad voor Onroerende Zaken (ROZ) voor kantoorruimte en overige bedrijfsruimte, versie februari 2015, welke is aangevuld met standaard bepalingen van verhuurder.
Omzetbelasting
Het uitgangspunt is dat huurder het gehuurde voor tenminste het bij Wet vastgestelde of nader vast te stellen minimumpercentage blijvend zal gebruiken voor prestaties die recht geven op aftrek van omzetbelasting, zodanig dat met de ondertekening van de huurovereenkomst zal worden geopteerd voor belaste (ver-)huur. Indien huurder na de huuringangsdatum niet of niet meer aan dit uitgangspunt kan voldoen, zal de huurprijs worden verhoogd, zodanig dat
verhuurder wordt gecompenseerd voor de gevolgen van het vervallen van de mogelijkheid van het verrekenen van omzetbelasting.
De SMARTLOG Vlissingen-locatie, met een oppervlakte van ongeveer 11,3 ha, is gelegen in Vlissingen, dat deel uitmaakt van North Sea Port (NSP). NSP is een dynamische grensoverschrijdende havenregio die zich uitstrekt van Vlissingen in Nederland tot Gent in België, met directe toegang tot de Noordzee. Deze locatie is een belangrijke toegangspoort voor Europese en mondiale handel en biedt uitstekende connectiviteit met belangrijke weg-, spoor- en binnenwaternetwerken.
TOEGANKELIJKHEID
De locatie is goed verbonden via belangrijke snelwegen, waaronder de A58, die directe routes biedt naar belangrijke steden zoals Rotterdam, Antwerpen en verder. Dit zorgt voor snel en efficiënt wegvervoer door de hele Benelux en naar Duitsland. Bovendien bieden de nabijgelegen havens van Vlissingen en Terneuzen diepzeekades die grote zeeschepen kunnen ontvangen. Deze unieke eigenschap zorgt ervoor dat internationale zendingen direct kunnen worden afgehandeld, wat transittijden verkort en supply chain-operaties stroomlijnt. Met meerdere transportmogelijkheden voor de deur, waaronder de mogelijkheid om diepzeeschepen te ontvangen, is deze locatie perfect gepositioneerd om snelle, betrouwbare en kosteneffectieve logistieke oplossingen te ondersteunen.
TRANSPORTMODALITEITEN
SMARTLOG Vlissingen is uitzonderlijk goed verbonden via meerdere transportmodaliteiten, waardoor het een ideale hub is voor distributie. De locatie ligt nabij belangrijke snelwegen zoals de A58, wat zorgt voor snel wegvervoer door de Benelux en naar Duitsland. Daarnaast profiteert het van de nabijheid van het uitgebreide spoorwegnetwerk van North Sea Port, dat naadloze spoorverbindingen door heel Europa biedt. Dit spoorwegnetwerk bevindt zich bij de naastgelegen Verbrugge Terminal. Bovendien zijn de nabijgelegen havens van Vlissingen en Terneuzen uitgerust om diepzeeschepen te ontvangen, wat directe toegang biedt tot internationale zeeroutes. Binnenwateren vergroten verder de flexibiliteit van de locatie en ondersteunen efficiënte en duurzame transportopties over het hele continent.
LITHIUM-ION BATTERIJEN OPSLAG
SMARTLOG Vlissingen biedt een unieke kans voor bedrijven in de logistieke sector: het beschikt als een van de weinige locaties in Nederland over een permanente onherroepelijke vergunning voor de grootschalige opslag van lithium-ion batterijen. SMARTLOG Vlissingen is volledig gecertificeerd voor deze specialistische opslag. Dit maakt de vijf distributiecentra (units van 11.000 tot 16.000 m2) uitermate geschikt voor bedrijven die actief zijn in de opslag en distributie van elektrische mobiliteitsoplossingen, consumentenelektronica of andere toepassingen met energieopslag.
Het Smartlog complex heeft een vergunning voor de opslag van maximaal 40.000 ton aan batterijen met een State of Charge ? 60%. Dit betekent dat een gebruiker verzekerd is van een locatie die voldoet aan de strengste veiligheidsnormen.
FLEXIBELE OPSLAGMOGELIJKHEDEN
Het pand is ontwikkeld en vergund voor de veilige opslag van vier typen batterijen:
- MicroPower (gehoorapparaten, smartwatches)
- CompactPower (smartphones, tablets, laptops)
- MobilePower (e-scooters, elektrische fietsen)
- MaxPower (elektrische auto’s en vrachtwagens)
De layout en de buffers tussen de distributiecentra maken het mogelijk om koopmansgoederen te combineren met lichte energiedragers. Hierdoor is maximale flexibiliteit geborgd, afgestemd op uw specifieke logistieke wensen
BESCHIKBAARHEID
DC 1 (batterij opslag) VERHUURD
Warehouse 16.006 m²
Kantoor 521 m²
Mezzanine 1.367 m²
Diepte hal 120 m
DC2 (koopmansgoederen)
Warehouse 16.194 m²
Kantoor 510 m²
Mezzanine 1.367 m²
Diepte hal 120 m
DC3 (batterij opslag) VERHUURD
Warehouse 16.194 m²
Kantoor 510 m²
Mezzanine 1.367 m²
Diepte hal 120 m
DC 4 (koopmansgoederen)
Warehouse 10.989 m²
Kantoor 521 m²
Mezzanine 1.327 m²
Diepte hal 85 m
DC 5 (batterij opslag) VERHUURD
Warehouse 10.121 m²
Kantoor 510 m²
Mezzanine 1.271 m²
Diepte hal 82 m
*genoemde m² onder voorbehoud van definitieve oplevering
HUURPRIJZEN
Warehouse | Huurprijs op aanvraag
Mezzanine | Huurprijs op aanvraag
Kantoor | Huurprijs op aanvraag
OPLEVERING
De oplevering staat, onder voorbehoud, gepland voor Q4 2025.
OPLEVERINGSNIVEAU
Opleveringsniveau Warehouse
- ESFR Sprinklerinstallatie met centrale bluswatervoorziening;
- Gladde betonnen vloer met vlakheidsklasse Zeile 4 conform DIN 18.202;
- Vloerbelasting 4.000 kg/m², expeditie ruimte 2.500 kg/m²;
- De puntbelasting onder de stelling bedraag 7.200 kg;
- Betonnen laadruimte;
- Vrije hoogte 10,50 meter;
- Minimaal 1 dock per 800 m²;
- Hydraulische dock levelers (8 ton), elektrisch bedienbaar;
- Elektrisch bedienbare overheaddeuren bij elk loading dock;
- Dock shelter met stootbumpers en wielgeleiding;
- Elektrisch bedienbare overheaddeuren op maaiveldniveau 4.000 mm x 4.500 mm;
- Brandslanghaspels, conform de hieraan door de brandweer gestelde eisen;
- Brandmeld- en ontruimingsinstallatie;
- Aansluitpunten acculaders;
- 230v en 400v aansluitingen;
- Lichtstraten in de expeditie zone;
- Opbouw LED verlichting gemiddeld 250 lux, 1 meter boven vloeroppervlak;
- Bewegingsdetector per gangzone;
- Vloerverwarming in de expeditie zone, opwekking d.m.v. een warmtepomp (min. Ruimtetemperatuur 5°C);
- Sanitaire voorzieningen.
Opleveringsniveau kantoorruimte
- Glad afgewerkte vloeren in de kantoren;
- VRF klimaatsysteem (21°C);
- Mechanisch ventilatiesysteem;
- Verlaagd plafond voorzien van geïntegreerde LED-verlichting (500lux);
- Kabelgoten t.b.v. data, telefoon en internet;
- Toiletfaciliteiten op beide verdiepingen;
- Bouwkundige wanden in stuc en sauswerk;
- Pantry op beide verdiepingen, voorzien van koelkast, vaatwasser en Quooker en combi-magnetron;
- Zonnepanelen op de kantoordaken.
Opleveringsniveau Buitenterrein
- Verharding middels klinkerbestrating;
- Terrein omheind met dubbelstaafmat hekwerk van 2 meter hoog ;
- Afsluitbare elektrische toegangspoorten;
- Afwatering;
- Buitenverlichting;
- Parkeerplaatsen voor personenauto’s;
- Laadstations t.b.v. elektrische auto’s.
ENERGIELABEL
Deze zal ten tijde van oplevering worden toegevoegd. Het pand zal minimaal gebouwd zijn volgens de BREEAM VERY GOOD norm.
SERVICEKOSTEN
Nader te bepalen.
HUURBETALING
Bij vooruitbetaling per maand.
HUURPRIJSAANPASSING
Jaarlijks, op basis van de wijziging van het maandprijs-indexcijfer volgens de consumentenprijsindex (CPI) reeks CPI-Alle Huishoudens (2015 = 100), gepubliceerd door het Centraal Bureau voor de Statistiek (CBS).
HUURTERMIJN
5 jaar met aansluitende verlengingsperioden van telkenmale 5 jaar.
ZEKERHEIDSSTELLING
Bankgarantie ter grootte van drie maanden huur, inclusief servicekosten en BTW.
OVER DHG
DHG is opgericht in 1997 en uitgegroeid tot dé specialist in het ontwikkelen en beleggen van logistiek vastgoed. Binnen de vastgoedportefeuille nemen havengebieden vanaf het begin een belangrijke plaats in. DHG is in deze niche een van de belangrijkste marktpartijen van Nederland en wordt door ondernemers, eigenaren en gemeenten regelmatig bij nieuwe ontwikkelingen betrokken. De onderneming laat zich kenmerken door drie sleutelwoorden: “passie, creativiteit en dynamiek”.
OVERIGE CONDITIES
Algemeen
Al het bovenstaande betreft informatie omtrent de verhuur van de "Smartlog Vlissingen ". De informatie is met zorg samengesteld, maar voor de juistheid ervan kan door Molenaar Bedrijfshuisvesting B.V. geen aansprakelijkheid worden aanvaard, noch aan de vermelde gegevens enig recht worden ontleend. Nadrukkelijk is vermeld dat deze informatieverstrekking niet als aanbieding of offerte mag worden beschouwd.
Voorbehoud
Mogelijke huurtransacties dienen ter goedkeuring voorgelegd te worden aan opdrachtgever c.q. eigenaresse van het complex. Tot het moment dat voornoemde goedkeuring verleend is, zijn alle uitgebrachte aanbiedingen geheel vrijblijvend.
Huurovereenkomst
Huurovereenkomst op basis van het standaardmodel van de Raad voor Onroerende Zaken (ROZ) voor kantoorruimte en overige bedrijfsruimte, versie februari 2015, welke is aangevuld met standaard bepalingen van verhuurder.
Omzetbelasting
Het uitgangspunt is dat huurder het gehuurde voor tenminste het bij Wet vastgestelde of nader vast te stellen minimumpercentage blijvend zal gebruiken voor prestaties die recht geven op aftrek van omzetbelasting, zodanig dat met de ondertekening van de huurovereenkomst zal worden geopteerd voor belaste (ver-)huur. Indien huurder na de huuringangsdatum niet of niet meer aan dit uitgangspunt kan voldoen, zal de huurprijs worden verhoogd, zodanig dat
verhuurder wordt gecompenseerd voor de gevolgen van het vervallen van de mogelijkheid van het verrekenen van omzetbelasting.
Kenmerken
Overdracht
- Huurprijs
- Huurprijs op aanvraag
- Aangeboden sinds
-
- Status
- Beschikbaar
- Aanvaarding
- In overleg
Bouw
- Hoofdfunctie
- Bedrijfshal
- Soort bouw
- Nieuwbouw
- Bouwjaar
- Momenteel in aanbouw
Oppervlakten
- Oppervlakte
- 78.775 m² (in units vanaf 11.392 m²)
- Bedrijfshal oppervlak
- 76.203 m²
- Kantoor oppervlak
- 2.572 m²
- Vrije hoogte
- 10,5 m
- Draagvermogen
- 4.000 kg/m²
Indeling
- Aantal bouwlagen
- 2 bouwlagen
- Voorzieningen
- Lichtstraten, loading docks, overheaddeuren, krachtstroom, betonvloer, sprinkler, heater, toilet, airconditioning, mechanische ventilatie en inbouwarmaturen
Energie
- Energielabel
- Niet verplicht
Omgeving
- Ligging
- Bedrijventerrein
NVM makelaar
Foto's