de Langeloop 12-X 1742 PB Schagen
€ 187.000 k.k.

Omschrijving
Dit unieke bedrijfsunit met kantoorruimte is gelegen aan de Langeloop 12X in Schagen op bedrijventerrein "De Lagedijk”. De riante bedrijfsunit maakt onderdeel uit van het in 2010 ontwikkelde "Businesspark Langedijk” dat bekend staat om haar diversiteit van aanwezige bedrijven.
Met name voor ondernemers actief in het midden- en kleinbedrijf die opzoek zijn naar een grote(re) bedrijfsruimte met een ruime bovenverdieping is deze bedrijfsunit uitermate geschikt.
De bereikbaarheid is prima dankzij de ontsluiting via het bedrijventerrein richting Schagen en naar de N245 Westerweg die enerzijds leidt naar Alkmaar en anderzijds richting strand (Callantsoog/Sint Maartenszee) en naar Den Helder.
De gehele bedrijfsunit heeft een totaal gebruiksoppervlak van 125m² en daarmee heeft het vele mogelijkheden.
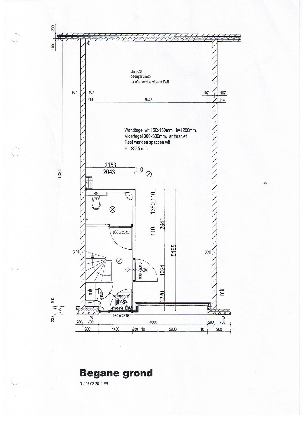
Op de begane grond ( totaal 62,5 m2) , een afgesloten ruime betegelde entree, met nette ruime toiletruimte met hangtoilet en fontein, meterkast en houtentrap naar de boven verdieping en toegangsdeur naar de opslagruimte .
De opslagruimte is ook direct van buiten toegankelijk middels een overheaddeur met een vrije hoogte van 3,0 m., spoelbak en binnen doorgang .Deze beneden verdieping is ook voorzien van cv-verwarming middel twee radiatoren. Twee parkeerplaatsen voor de unit en verder is er voldoende parkeergelegenheid op het mandelige parkeerterrein.
De tweede verdieping ( totaal 62,5 m2) bereikt u via de royale trap waar U uit komt in een open werkruimte/kantoorruimte met aan de voor en achterzijde (zuiden) over de volle breedte van de verdieping raampartijen met openslaande ramen Dit geeft deze verdieping een open en lichte ambiance en een prettige plek om te werken. De boven verdieping is voorzien van een houten parketvloer. Verder bevind zich hier een pantry
Unit 12X is voorzien van een CV installatie met radiatoren op zowel de boven verdieping als op de beneden verdieping wat het mogelijk maak zaken geconditioneerd op te slaan.
Uitgangspunten met betrekking tot verkoop:
1. Perceel
De Langeloop 12X , 1742 PB , Schagen
2. Verkoop prijs
€ 187.000 KK
Bestemmingsplan
Volgens het actuele bestemmingsplan is bedrijvigheid toegestaan. Detailhandel is, behoudens vrijstellingen, niet toegestaan.
Als gebruiker bent u zelf verantwoordelijk om navraag te doen naar het actuele bestemmingsplan bij de gemeente.
Aansprakelijkheid
Alle gegevens zijn met zorg samengesteld. Ten aanzien van de juistheid ervan kunnen geen rechten aan worden ontleend.
Heeft U interesse in het pand /wilt U meer informatie / of wilt U het pand bekijken neem dan contact met ons op.
Goedkeuring
Bovenstaande is onder finaal voorbehoud de eigenaar.
Disclaimer: Ondanks dat deze publicatie met de grootst mogelijke zorgvuldigheid is samengesteld is de Online Bedrijfsmakelaar BV niet aansprakelijk te stellen voor onjuiste of onvolledige informatie die in deze publicatie vermeld staan. Aan deze gegevens kunnen geen rechten worden ontleend.
====================
Alle beschikbare informatie ontvangen?
Benieuwd naar alle beschikbare informatie over het pand? Vraag dan nu, onder de grote contactbutton, de gratis objectbrochure van De Langeloop 12X in Schagen aan en ontvang de objectbrochure binnen 5 minuten in uw mailbox. Uiteraard kunt u ook direct een geheel vrijblijvende bezichtiging met de beheerder van het pand inplannen.
Met name voor ondernemers actief in het midden- en kleinbedrijf die opzoek zijn naar een grote(re) bedrijfsruimte met een ruime bovenverdieping is deze bedrijfsunit uitermate geschikt.
De bereikbaarheid is prima dankzij de ontsluiting via het bedrijventerrein richting Schagen en naar de N245 Westerweg die enerzijds leidt naar Alkmaar en anderzijds richting strand (Callantsoog/Sint Maartenszee) en naar Den Helder.
De gehele bedrijfsunit heeft een totaal gebruiksoppervlak van 125m² en daarmee heeft het vele mogelijkheden.
Op de begane grond ( totaal 62,5 m2) , een afgesloten ruime betegelde entree, met nette ruime toiletruimte met hangtoilet en fontein, meterkast en houtentrap naar de boven verdieping en toegangsdeur naar de opslagruimte .
De opslagruimte is ook direct van buiten toegankelijk middels een overheaddeur met een vrije hoogte van 3,0 m., spoelbak en binnen doorgang .Deze beneden verdieping is ook voorzien van cv-verwarming middel twee radiatoren. Twee parkeerplaatsen voor de unit en verder is er voldoende parkeergelegenheid op het mandelige parkeerterrein.
De tweede verdieping ( totaal 62,5 m2) bereikt u via de royale trap waar U uit komt in een open werkruimte/kantoorruimte met aan de voor en achterzijde (zuiden) over de volle breedte van de verdieping raampartijen met openslaande ramen Dit geeft deze verdieping een open en lichte ambiance en een prettige plek om te werken. De boven verdieping is voorzien van een houten parketvloer. Verder bevind zich hier een pantry
Unit 12X is voorzien van een CV installatie met radiatoren op zowel de boven verdieping als op de beneden verdieping wat het mogelijk maak zaken geconditioneerd op te slaan.
Uitgangspunten met betrekking tot verkoop:
1. Perceel
De Langeloop 12X , 1742 PB , Schagen
2. Verkoop prijs
€ 187.000 KK
Bestemmingsplan
Volgens het actuele bestemmingsplan is bedrijvigheid toegestaan. Detailhandel is, behoudens vrijstellingen, niet toegestaan.
Als gebruiker bent u zelf verantwoordelijk om navraag te doen naar het actuele bestemmingsplan bij de gemeente.
Aansprakelijkheid
Alle gegevens zijn met zorg samengesteld. Ten aanzien van de juistheid ervan kunnen geen rechten aan worden ontleend.
Heeft U interesse in het pand /wilt U meer informatie / of wilt U het pand bekijken neem dan contact met ons op.
Goedkeuring
Bovenstaande is onder finaal voorbehoud de eigenaar.
Disclaimer: Ondanks dat deze publicatie met de grootst mogelijke zorgvuldigheid is samengesteld is de Online Bedrijfsmakelaar BV niet aansprakelijk te stellen voor onjuiste of onvolledige informatie die in deze publicatie vermeld staan. Aan deze gegevens kunnen geen rechten worden ontleend.
====================
Alle beschikbare informatie ontvangen?
Benieuwd naar alle beschikbare informatie over het pand? Vraag dan nu, onder de grote contactbutton, de gratis objectbrochure van De Langeloop 12X in Schagen aan en ontvang de objectbrochure binnen 5 minuten in uw mailbox. Uiteraard kunt u ook direct een geheel vrijblijvende bezichtiging met de beheerder van het pand inplannen.
Kenmerken
Overdracht
- Vraagprijs
- € 187.000 kosten koper
- Oorspronkelijke vraagprijs
- € 205.000 kosten koper
- Aangeboden sinds
-
- Status
- Beschikbaar
- Aanvaarding
- Per direct beschikbaar
Bouw
- Hoofdfunctie
- Bedrijfshal
- Soort bouw
- Bestaande bouw
- Bouwjaar
- 2010
Oppervlakten
- Oppervlakte
- 125 m²
- Bedrijfshal oppervlak
- 63 m²
- Kantoor oppervlak
- 62 m²
- Vrije hoogte
- 3 m
- Vrije overspanning
- 5 m
- Draagvermogen
- 500 kg/m²
Indeling
- Aantal bouwlagen
- 1 bouwlaag
- Voorzieningen
- Overheaddeuren, krachtstroom, betonvloer, heater, toilet, pantry en te openen ramen
Energie
- Energielabel
- Niet beschikbaar
Omgeving
- Ligging
- Bedrijventerrein
Parkeergelegenheid
- Parkeerplaatsen
- 2 niet-overdekte parkeerplaatsen
Foto's


















