Overvliet 10 3545 NH Utrecht
€ 1.433 /mnd

Omschrijving
ALGEMEEN
Deze bedrijfs-/kantoorruimte maakt deel uit van het laatste nieuwe deel op bedrijventerrein Strijkviertel in Utrecht (voorheen De Meern). Dit bedrijventerrein is een dynamische bedrijfsomgeving en huisvest een gevarieerd aanbod aan bedrijven van groot tot klein. Denk onder andere aan Van Tol, diverse aannemings- en onderhoudsbedrijven, schadeherstel bedrijven, IT, horeca en automotive. De unit is reeds in gebruik geweest en de verdieping is fraai afgewerkt.
Hier kun je dus in Leidsche Rijn onder de rook van de stad Utrecht een mooie duurzame ruimte huren die op de toekomst is voorbereidt. Is dit de nieuwe locatie voor je bedrijf?
BEREIKBAARHEID
Ligging ten noorden van de Strijkviertelplas en ten westen van de nieuwe woonwijk Rijnvliet in Utrecht. Vanaf de A2, afrit 8-Utrecht-Papendorp rijdt u binnen 6 minuten het bedrijvenpark Strijkviertel op. Vanaf de A12, afrit 15-De Meern zijn de bedrijfsruimtes ook binnen 6 minuten bereikbaar. Ook met het openbaar vervoer (bus) is Strijkviertel uitstekend te bereiken.
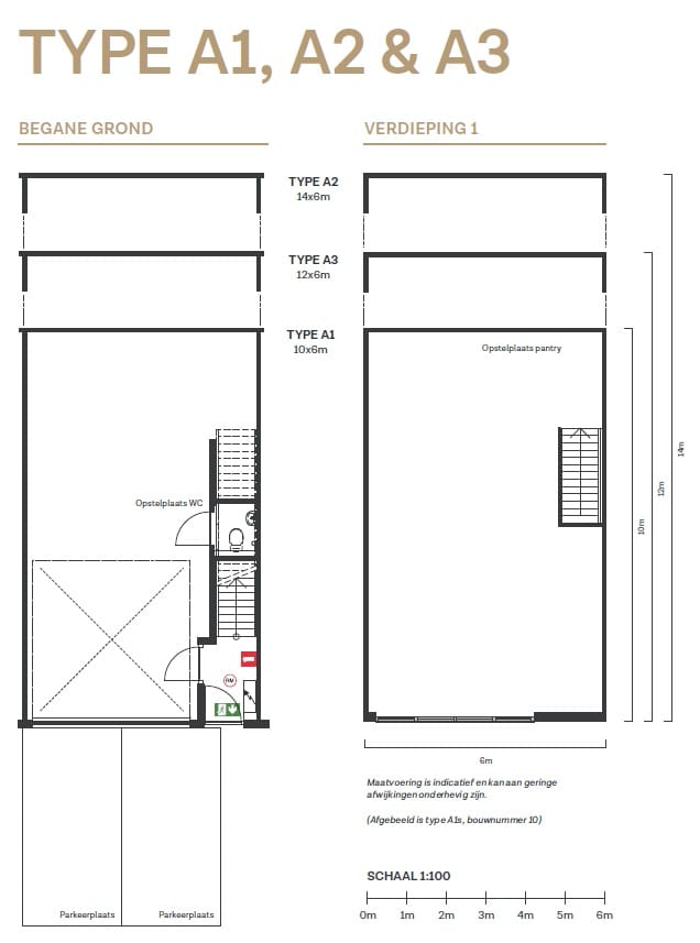
VLOEROPPERVLAKTE
Totaal 120 m² bestaande uit:
- Begane grond: 60 m² bedrijfsruimte
- Verdieping: 60 m² bedrijfsruimte-/kantoorruimte
Op basis van bruto vloeroppervlak bepaald.
OPLEVERINGSNIVEAU
De objecten wordt in nieuw staat aangeboden met o.a. de volgende voorzieningen:
- Meterkast met eigen meters (water en elektra 3 x 25 A)
- Elektrisch bedienbare overheaddeur met afmeting 4 x 4 meter
- Vloerbelasting begane grond maximaal 1.000 kg/m²
- Vrije hoogte begane grond circa 4,5 meter
- Toilet
- Pantry
- Luchtverwarming en koeling op de verdieping
- Basis elektra
- Te openen ramen op verdieping
- Uitstekende isolatie van wanden en daken;
PARKEREN
2 parkeerplaatsen gelegen voor het gebouw.
BESTEMMING
De voor 'Gemengd' aangewezen gronden zijn bestemd voor:
- sport, met uitzondering van buitensportactiviteiten;
- webwinkels;
- leisure;
- maatschappelijke voorzieningen;
- ter plaatse van de aanduiding: 'bedrijf tot en met categorie 2', bedrijven tot en met categorie 2, zoals vermeld in de bij deze regels behorende Lijst van Bedrijfsactiviteiten;
- ter plaatse van de aanduiding: 'bedrijf tot en met categorie 3.1', bedrijven tot en met categorie 3.1 zoals vermeld in de bij deze regels behorende Lijst van Bedrijfsactiviteiten;
- detailhandel als nevenactiviteit en gerelateerd of ondersteunend aan de hoofdactiviteit in het betreffende bedrijf, als bedoeld onder 1, 3, 7 en 8 op voorwaarde dat:
- de verkoopvloeroppervlakte in het betreffende bedrijf, als bedoeld onder 1, 7 en 8 niet meer dan 250 m2 bedraagt;
- de verkoopvloeroppervlakte in het betreffende bedrijf, als bedoeld onder 3 niet meer dan 50 m2 bedraagt;
- de detailhandel niet betreft voedings- en genotmiddelen, huishoudelijke artikelen, kleding en schoenen en daarbij behorende accessoires, behoudens werkkleding en -schoenen;
- detailhandel in volumineuze goederen, al dan niet als nevenactiviteit, op voorwaarde dat de detailhandel past binnen de volgende branches:
- detailhandel in keukens, badkamers, sanitair en tegels;
- detailhandel in volumineuze artikelen zoals zonwering, tuinhuisjes, buitenspeeltoestellen, zwembaden, tuinbeelden, haarden, grafzerken, paardentrailers, aanhangwagens, etc.;
- grove bouwmaterialen, landbouwwerktuigen;
aan de bedrijfsactiviteiten, zoals bedoeld onder 7 en 8, ondergeschikte en daarmee samenhangende kantoorruimte;
met de sport, leisure of maatschappelijke voorzieningen, zoals bedoeld onder 1, 3 en 4, samenhangende additionele horeca;
bij sport, zoals bedoeld onder 1, zijn buurtactiviteiten toegestaan;
- Autobedrijven zijn helaas niet welkom.
VVE
De huurder dient zich te confirmeren aan het huishoudelijk regelement die de VVe afgeeft.
HUURPIJS GEBOUW
€ 1.433,66 per maand exclusief BTW.
SERVICEKOSTEN
€ 175,- per maand als voorschot voor de energie en water en bijdrage voor onderhoud buitenterrein, overheaddeur etc.
HUURPERIODE
3-5 jaar.
OPZEGTERMIJN
6 maanden.
BETALINGEN
Per maand voorruit.
ZEKERHEIDSSTELLING
Bankgarantie of waarborgsom ter grootte van drie maanden huur, servicekosten en BTW.
BTW
Huurder verklaart het gehuurde voor tenminste 90% te zullen gebruiken voor prestaties die recht geven op aftrek van omzetbelasting. Indien huurder op enig moment niet meer aan het criterium voldoet, zal ervan rechtswege sprake zijn van omzetbelasting vrijgestelde verhuur. Alsdan wordt de overeengekomen kale huurprijs, exclusief omzetbelasting, zodanig verhoogd dat het voor verhuurder ontstane financiële nadeel wordt gecompenseerd.
BIJZONDERHEDEN
Huurovereenkomst kantoorruimte en andere bedrijfsruimte ex art. 7:230a BW volgens het model van de Raad voor Onroerende Zaken versie februari 2015.
HUURPRIJSAANPASSING
Jaarlijks, op basis van de wijziging van het maandprijs-indexcijfer volgens de consumentenprijsindex (CPI) reeks CPI-totale bestedingen (2015=100), gepubliceerd door het Centraal Bureau voor de Statistiek.
VOORBEHOUD
De vermelde informatie is van algemene aard en is niet meer dan een uitnodiging om in onderhandeling te treden. Aan de inhoud van deze informatie kunnen geen rechten worden ontleend. Onder voorbehoud gunning verhuurder.
BESCHIKBAARHEID
In overleg, kan snel.
MEER INFOMATIE OF BEZICHTIGING:
Uppelschoten Real Estate
Papendorpseweg 100
3528 BJ UTRECHT
T: 085 - 06 05 055
Wij werken voor ú
Deze bedrijfs-/kantoorruimte maakt deel uit van het laatste nieuwe deel op bedrijventerrein Strijkviertel in Utrecht (voorheen De Meern). Dit bedrijventerrein is een dynamische bedrijfsomgeving en huisvest een gevarieerd aanbod aan bedrijven van groot tot klein. Denk onder andere aan Van Tol, diverse aannemings- en onderhoudsbedrijven, schadeherstel bedrijven, IT, horeca en automotive. De unit is reeds in gebruik geweest en de verdieping is fraai afgewerkt.
Hier kun je dus in Leidsche Rijn onder de rook van de stad Utrecht een mooie duurzame ruimte huren die op de toekomst is voorbereidt. Is dit de nieuwe locatie voor je bedrijf?
BEREIKBAARHEID
Ligging ten noorden van de Strijkviertelplas en ten westen van de nieuwe woonwijk Rijnvliet in Utrecht. Vanaf de A2, afrit 8-Utrecht-Papendorp rijdt u binnen 6 minuten het bedrijvenpark Strijkviertel op. Vanaf de A12, afrit 15-De Meern zijn de bedrijfsruimtes ook binnen 6 minuten bereikbaar. Ook met het openbaar vervoer (bus) is Strijkviertel uitstekend te bereiken.
VLOEROPPERVLAKTE
Totaal 120 m² bestaande uit:
- Begane grond: 60 m² bedrijfsruimte
- Verdieping: 60 m² bedrijfsruimte-/kantoorruimte
Op basis van bruto vloeroppervlak bepaald.
OPLEVERINGSNIVEAU
De objecten wordt in nieuw staat aangeboden met o.a. de volgende voorzieningen:
- Meterkast met eigen meters (water en elektra 3 x 25 A)
- Elektrisch bedienbare overheaddeur met afmeting 4 x 4 meter
- Vloerbelasting begane grond maximaal 1.000 kg/m²
- Vrije hoogte begane grond circa 4,5 meter
- Toilet
- Pantry
- Luchtverwarming en koeling op de verdieping
- Basis elektra
- Te openen ramen op verdieping
- Uitstekende isolatie van wanden en daken;
PARKEREN
2 parkeerplaatsen gelegen voor het gebouw.
BESTEMMING
De voor 'Gemengd' aangewezen gronden zijn bestemd voor:
- sport, met uitzondering van buitensportactiviteiten;
- webwinkels;
- leisure;
- maatschappelijke voorzieningen;
- ter plaatse van de aanduiding: 'bedrijf tot en met categorie 2', bedrijven tot en met categorie 2, zoals vermeld in de bij deze regels behorende Lijst van Bedrijfsactiviteiten;
- ter plaatse van de aanduiding: 'bedrijf tot en met categorie 3.1', bedrijven tot en met categorie 3.1 zoals vermeld in de bij deze regels behorende Lijst van Bedrijfsactiviteiten;
- detailhandel als nevenactiviteit en gerelateerd of ondersteunend aan de hoofdactiviteit in het betreffende bedrijf, als bedoeld onder 1, 3, 7 en 8 op voorwaarde dat:
- de verkoopvloeroppervlakte in het betreffende bedrijf, als bedoeld onder 1, 7 en 8 niet meer dan 250 m2 bedraagt;
- de verkoopvloeroppervlakte in het betreffende bedrijf, als bedoeld onder 3 niet meer dan 50 m2 bedraagt;
- de detailhandel niet betreft voedings- en genotmiddelen, huishoudelijke artikelen, kleding en schoenen en daarbij behorende accessoires, behoudens werkkleding en -schoenen;
- detailhandel in volumineuze goederen, al dan niet als nevenactiviteit, op voorwaarde dat de detailhandel past binnen de volgende branches:
- detailhandel in keukens, badkamers, sanitair en tegels;
- detailhandel in volumineuze artikelen zoals zonwering, tuinhuisjes, buitenspeeltoestellen, zwembaden, tuinbeelden, haarden, grafzerken, paardentrailers, aanhangwagens, etc.;
- grove bouwmaterialen, landbouwwerktuigen;
aan de bedrijfsactiviteiten, zoals bedoeld onder 7 en 8, ondergeschikte en daarmee samenhangende kantoorruimte;
met de sport, leisure of maatschappelijke voorzieningen, zoals bedoeld onder 1, 3 en 4, samenhangende additionele horeca;
bij sport, zoals bedoeld onder 1, zijn buurtactiviteiten toegestaan;
- Autobedrijven zijn helaas niet welkom.
VVE
De huurder dient zich te confirmeren aan het huishoudelijk regelement die de VVe afgeeft.
HUURPIJS GEBOUW
€ 1.433,66 per maand exclusief BTW.
SERVICEKOSTEN
€ 175,- per maand als voorschot voor de energie en water en bijdrage voor onderhoud buitenterrein, overheaddeur etc.
HUURPERIODE
3-5 jaar.
OPZEGTERMIJN
6 maanden.
BETALINGEN
Per maand voorruit.
ZEKERHEIDSSTELLING
Bankgarantie of waarborgsom ter grootte van drie maanden huur, servicekosten en BTW.
BTW
Huurder verklaart het gehuurde voor tenminste 90% te zullen gebruiken voor prestaties die recht geven op aftrek van omzetbelasting. Indien huurder op enig moment niet meer aan het criterium voldoet, zal ervan rechtswege sprake zijn van omzetbelasting vrijgestelde verhuur. Alsdan wordt de overeengekomen kale huurprijs, exclusief omzetbelasting, zodanig verhoogd dat het voor verhuurder ontstane financiële nadeel wordt gecompenseerd.
BIJZONDERHEDEN
Huurovereenkomst kantoorruimte en andere bedrijfsruimte ex art. 7:230a BW volgens het model van de Raad voor Onroerende Zaken versie februari 2015.
HUURPRIJSAANPASSING
Jaarlijks, op basis van de wijziging van het maandprijs-indexcijfer volgens de consumentenprijsindex (CPI) reeks CPI-totale bestedingen (2015=100), gepubliceerd door het Centraal Bureau voor de Statistiek.
VOORBEHOUD
De vermelde informatie is van algemene aard en is niet meer dan een uitnodiging om in onderhandeling te treden. Aan de inhoud van deze informatie kunnen geen rechten worden ontleend. Onder voorbehoud gunning verhuurder.
BESCHIKBAARHEID
In overleg, kan snel.
MEER INFOMATIE OF BEZICHTIGING:
Uppelschoten Real Estate
Papendorpseweg 100
3528 BJ UTRECHT
T: 085 - 06 05 055
Wij werken voor ú
Kenmerken
Overdracht
- Huurprijs
- € 1.433 per maand
- Servicekosten
- € 175 per maand (21% BTW van toepassing)
- Aangeboden sinds
-
- Status
- Beschikbaar
- Aanvaarding
- In overleg
Bouw
- Hoofdfunctie
- Bedrijfshal
- Soort bouw
- Bestaande bouw
- Bouwjaar
- 2023
Oppervlakten
- Oppervlakte
- 120 m²
- Bedrijfshal oppervlak
- 60 m²
- Kantoor oppervlak
- 60 m²
- Vrije hoogte
- 4,3 m
- Vrije overspanning
- 5 m
- Draagvermogen
- 1.000 kg/m²
Indeling
- Aantal bouwlagen
- 1 bouwlaag
- Voorzieningen
- Krachtstroom, toilet, pantry, airconditioning en te openen ramen
Energie
- Energielabel
- A+ 0,60
Omgeving
- Ligging
- Bedrijventerrein
- Bereikbaarheid
- Bushalte op 1000 m tot 1500 m, busknooppunt op 1000 m tot 1500 m, metrohalte op 5000 m of meer, metroknooppunt op 5000 m of meer, NS Intercitystation op 2000 m tot 3000 m, snelwegafrit op 1500 m tot 2000 m, Tramhalte op 5000 m of meer en tramknooppunt op 5000 m of meer
- Lokale voorzieningen
- Bank op 1500 m tot 2000 m, ontspanning op 1000 m tot 1500 m, restaurant op 1000 m tot 1500 m en winkel op 1000 m tot 1500 m
Parkeergelegenheid
- Parkeerplaatsen
- 2 niet-overdekte parkeerplaatsen
Foto's















