Veensepolder 8 4264 KL Veen
€ 259.000 v.o.n.

Omschrijving
BEDRIJFSRUIMTE EN KANTOOR IN NIEUWSTAAT
Op het industrieterrein van Veen vind je deze loods met 76m² bedrijfsruimte op de begane grond en 75m² op de verdiepingsvloer voor kantoor en opslag. Het bedrijfsverzamelgebouw is opgeleverd in 2023, verkeerd hierdoor in nieuwstaat en is vrij op naam verkrijgbaar! Bij het object behoren 2 eigen parkeerplaatsen voor de bedrijfsruimte.
Indeling
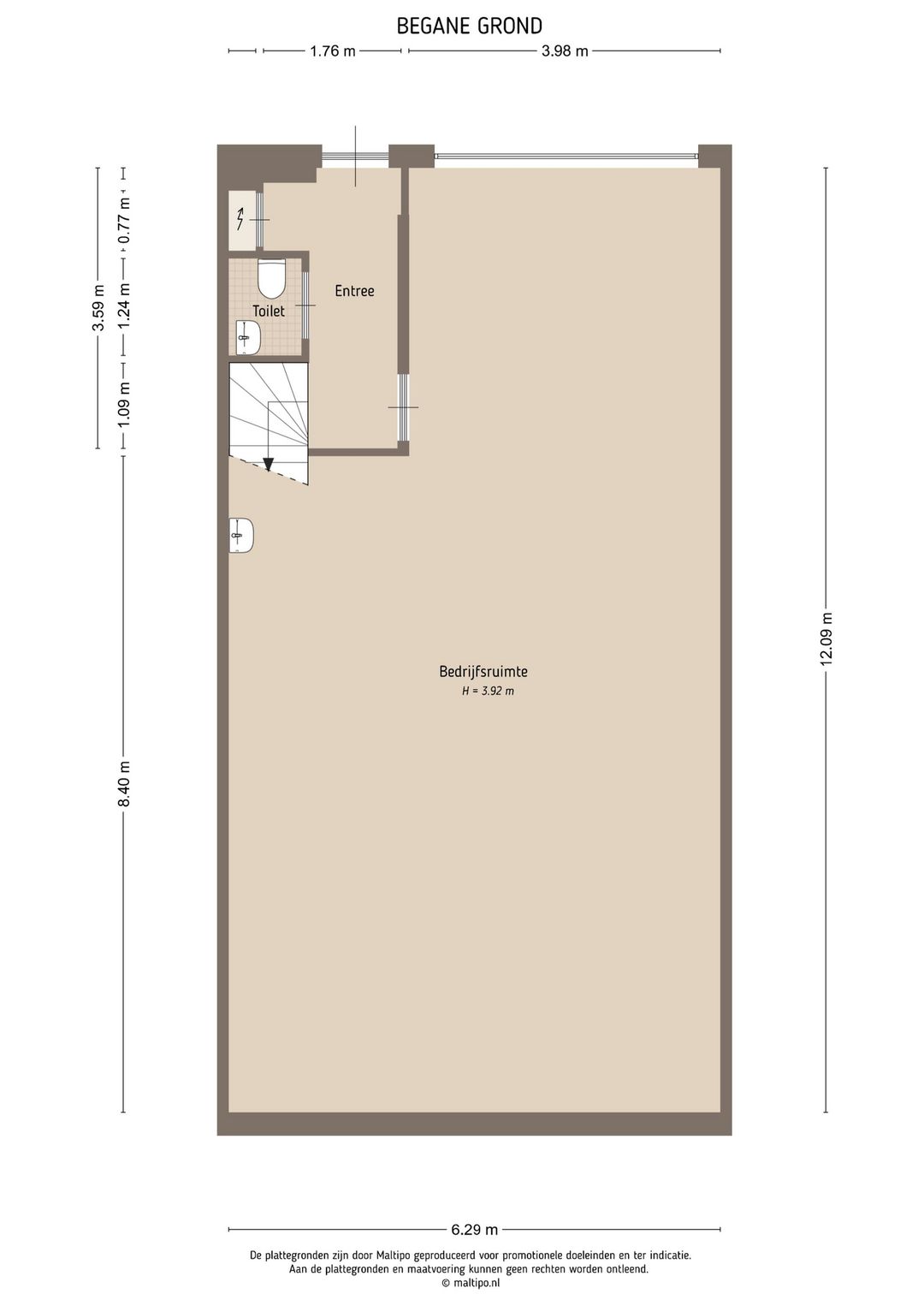
Begane grond met entree, meterkast, trapopgang, toilet met fontein en toegang tot de bedrijfsruimte. In de bedrijfsruimte een spoelbak onder de trap. Afgewerkt middels een betonvloer en elektrisch bedienbare overheaddeur (3,5m x 3,5m).
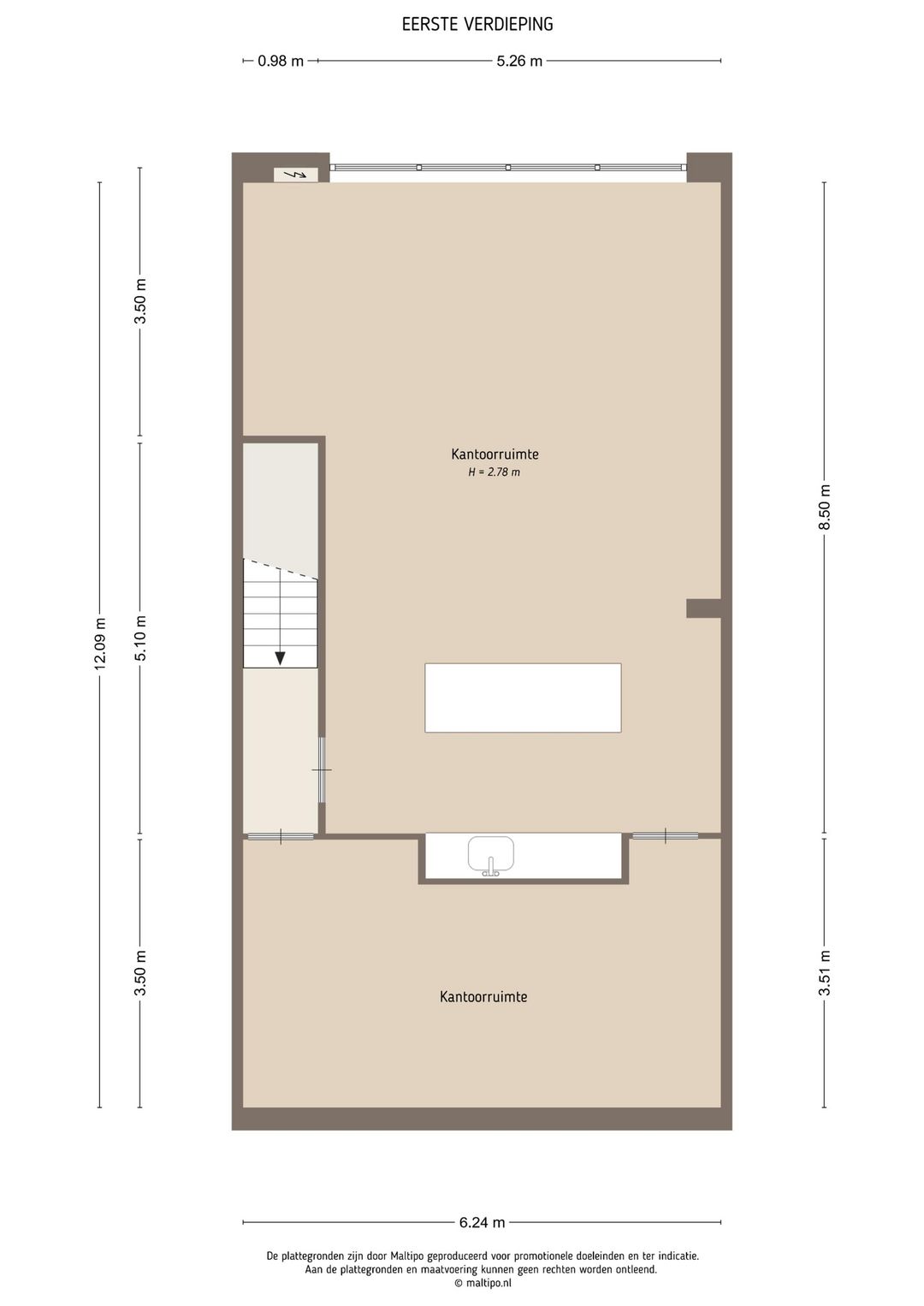
De eerste verdieping is hoogwaardig afgewerkt met een pvc tegelvloer en strakke betonnen wanden. De pantry is de blikvanger in deze ruimte en voorzien van 2 koelkasten, vaatwasser, combimagnetron, Quooker en een composiet werkblad. Het systeemplafond is volledig zwart met railsverlichting. Voorzien van airco installatie en glasvezelaansluiting voor het creëren van de ideale werkomstandigheden.
Door de tussenmeter is het mogelijk om de begane grond en eerste verdieping separaat te gebruiken en/of verhuren.
Bouwtechnische kenmerken
Gebouwd conform de laatste bouweisen en isolatievoorwaarden. Zo is begane vloer geïsoleerd en berekend op een maximale vloerbelasting van 1500 kg/m². De onderhoudsvrije kozijnen zijn voorzien van HR++ glas en het geïsoleerde dak is berekend op het plaatsen van eventuele zonnepanelen.
Bestemmingsplan
Bestemming betreft "bedrijf tot en met categorie 3.1".
Oplevering
In overleg, per direct.
VVE
Verplichte deelname aan de VvE (Bedrijfsverzamelgebouw VPVW) met een jaarlijkse bijdrage van ca. €1000. Diverse stukken van de VvE zijn beschikbaar en op verzoek inzichtelijk bij ViaJoop Makelaardij.
Locatie
Bedrijventerrein de Veensesteeg betreft een van de grotere bedrijventerreinen in Altena welke deels ook een subregionale functie vervult. Het pand is gesitueerd binnen de laatste uitbreiding van het bedrijventerrein, de omliggende panden betreffen allen hoogwaardige panden met moderne uitstraling.
Centraal tussen de A27 (10 autominuten) en de A59 (10 autominuten) in het midden van Nederland.
Op het industrieterrein van Veen vind je deze loods met 76m² bedrijfsruimte op de begane grond en 75m² op de verdiepingsvloer voor kantoor en opslag. Het bedrijfsverzamelgebouw is opgeleverd in 2023, verkeerd hierdoor in nieuwstaat en is vrij op naam verkrijgbaar! Bij het object behoren 2 eigen parkeerplaatsen voor de bedrijfsruimte.
Indeling
Begane grond met entree, meterkast, trapopgang, toilet met fontein en toegang tot de bedrijfsruimte. In de bedrijfsruimte een spoelbak onder de trap. Afgewerkt middels een betonvloer en elektrisch bedienbare overheaddeur (3,5m x 3,5m).
De eerste verdieping is hoogwaardig afgewerkt met een pvc tegelvloer en strakke betonnen wanden. De pantry is de blikvanger in deze ruimte en voorzien van 2 koelkasten, vaatwasser, combimagnetron, Quooker en een composiet werkblad. Het systeemplafond is volledig zwart met railsverlichting. Voorzien van airco installatie en glasvezelaansluiting voor het creëren van de ideale werkomstandigheden.
Door de tussenmeter is het mogelijk om de begane grond en eerste verdieping separaat te gebruiken en/of verhuren.
Bouwtechnische kenmerken
Gebouwd conform de laatste bouweisen en isolatievoorwaarden. Zo is begane vloer geïsoleerd en berekend op een maximale vloerbelasting van 1500 kg/m². De onderhoudsvrije kozijnen zijn voorzien van HR++ glas en het geïsoleerde dak is berekend op het plaatsen van eventuele zonnepanelen.
Bestemmingsplan
Bestemming betreft "bedrijf tot en met categorie 3.1".
Oplevering
In overleg, per direct.
VVE
Verplichte deelname aan de VvE (Bedrijfsverzamelgebouw VPVW) met een jaarlijkse bijdrage van ca. €1000. Diverse stukken van de VvE zijn beschikbaar en op verzoek inzichtelijk bij ViaJoop Makelaardij.
Locatie
Bedrijventerrein de Veensesteeg betreft een van de grotere bedrijventerreinen in Altena welke deels ook een subregionale functie vervult. Het pand is gesitueerd binnen de laatste uitbreiding van het bedrijventerrein, de omliggende panden betreffen allen hoogwaardige panden met moderne uitstraling.
Centraal tussen de A27 (10 autominuten) en de A59 (10 autominuten) in het midden van Nederland.
Kenmerken
Overdracht
- Vraagprijs
- € 259.000 vrij op naam
- Aangeboden sinds
-
- Status
- Beschikbaar
- Aanvaarding
- In overleg
Bouw
- Hoofdfunctie
- Bedrijfshal
- Soort bouw
- Bestaande bouw
- Bouwjaar
- 2023
Oppervlakten
- Oppervlakte
- 151 m²
- Bedrijfshal oppervlak
- 76 m²
- Kantoor oppervlak
- 75 m²
- Vrije hoogte
- 3,9 m
- Draagvermogen
- 1.500 kg/m²
Indeling
- Aantal bouwlagen
- 1 bouwlaag
- Voorzieningen
- Overheaddeuren, krachtstroom, betonvloer, toilet, pantry, airconditioning en te openen ramen
Energie
- Energielabel
- Niet verplicht
Omgeving
- Ligging
- Bedrijventerrein
Parkeergelegenheid
- Parkeerplaatsen
- 2 niet-overdekte parkeerplaatsen
NVM makelaar
Foto's
































Plattegrond
Begane grond

Eerste verdieping
