De Iepenwei 14-c 4191 PD Geldermalsen
- Verhuurd
€ 1.750 /mnd
Omschrijving
Te huur: Ruime moderne bedrijfsunit op toplocatie in Geldermalsen!
Op bedrijventerrein Hondsgemet bieden we deze multifunctionele bedrijfsunit aan, bestaande uit een representatieve bedrijfsruimte op de begane grond en een lichte kantoorruimte op de verdieping. De unit wordt momenteel gemoderniseerd door verhuurder, waardoor je als huurder straks profiteert van een frisse, instapklare werkplek. De kantoorruimte op de verdieping wordt voorzien van een hoogwaardige afwerking met o.a. aparte kantoor-/vergaderruimte met glazen scheidingswand en een moderne zwarte pantry.
Deze unit heeft een verhuurbaar vloeroppervlak van 198 m² en is verdeeld over 2 etages. De begane grond heeft een oppervlakte van ca. 100 m² en de verdieping heeft een oppervlakte van ca. 98 m².
HUURPRIJS:
€ 1.750,= per maand excl. BTW en servicekosten.
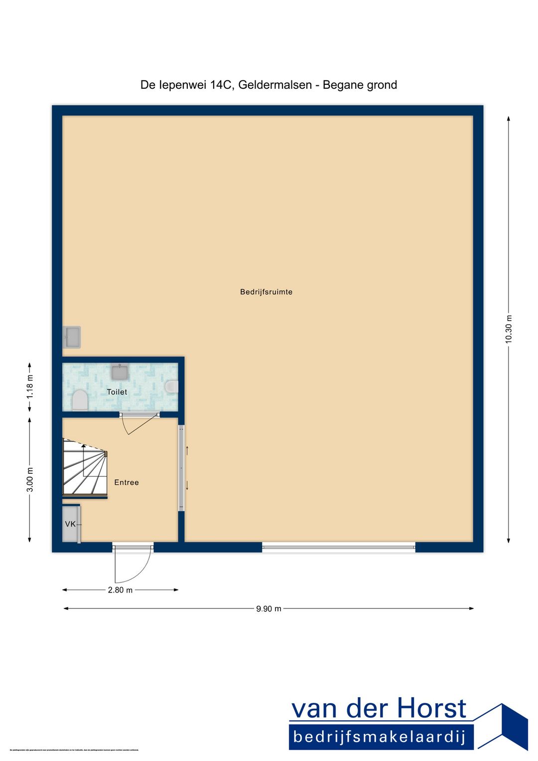
INDELING:
Begane grond: Entree via aparte loopdeur naar een afgescheiden hal met meterkast en toegang naar ruim toilet met extra urinoir, trapopgang naar verdieping en schuifdeuren naar de open bedrijfsruimte voorzien van uitstortgootsteen.
De elektrisch bedienbare overheaddeur heeft een afmeting van 3,32 meter breed en 2,92 meter hoog (doorrijhoogte).
Verdieping: Zeer verzorgd afgewerkte deels open kantoorruimte met mogelijkheid voor het creëren van werkplekken aan de raamzijde. Achterin wordt een extra kantoor gemaakt voorzien van glazen scheidingswand, ideaal om te gebruiken als vergaderkamer of als directiekantoor. Daarnaast komt er achterin een opbergruimte. De trapopgang wordt volledig afgewerkt met wanden en een glazen deur. De verdieping is afgewerkt met pvc vloer, systeemplafond met LED-verlichting, airco installatie en een moderne zwarte pantry welke is voorzien van koelkast en vaatwasser.
Op de verdieping bevindt zich ook de technische ruimte met Cv-installatie.
ERF/BUITENTERREIN:
Bij het pand horen 3 toegewezen parkeerplaatsen welke op het gemeenschappelijke buitenterrein zijn gelegen. Het terrein is volledig omheind en zeker voor een verzamelgebouw ruim opgezet.
OVERIGE:
* Het buitenterrein beschikt over 2 elektrisch bedienbare inrijpoorten.
* Oplevering in overleg.
* Het pand wordt verwarmd middels Cv-installatie en radiatoren. De begane grond is voorzien van een heater.
* De vrije hoogte op de begane grond bedraagt 3,11 meter.
* De vloerbelasting van de begane grond bedraagt 1.000 kg/m² en op de verdieping 400 kg/m².
* Glasvezelaansluiting is aanwezig tot in de meterkast. Glasvezel is mogelijk via de Coöperatieve Vereniging Hondsgemet.
* Het bedrijventerrein is beveiligd. ‘s Avonds na 21.00 uur is het terrein alleen bereikbaar na aanmelding bij de slagboom.
* De servicekosten bedragen € 30,= per maand excl. BTW en omvatten o.a. bijdrage parkmanagement Coöperatie Hondsgemet, onderhoud buitenterrein, hekwerk, blusmiddelen en het schoonhouden buitenzijde van het gebouw.
* De bedrijfsruimte maakt onderdeel uit van een mandeligheid. De huurder is gebonden aan het huishoudelijk reglement van de “Mandeligheid Iepenwei 14”
* De kosten voor het verbruik van gas, water en elektra zullen door de diverse nutsbedrijven rechtstreeks aan de huurder in rekening worden gebracht.
* Betaling: per maand vooruit.
* Het object wordt aangeboden onder voorbehoud van gunning door de eigenaar.
* Huurprijsaanpassing: jaarlijks op basis van het consumptie prijsindexcijfers voor alle huishoudens (CPI, als vastgesteld door het CBS).
* Bankgarantie: er wordt een bankgarantie gevraagd ter grootte van 3 maanden huur verhoogd met BTW en servicekosten.
* Huurovereenkomst: conform standaard huurovereenkomst NVM, vastgesteld door Raad van Onroerende zaken.
* Uitgangspunt is BTW-belaste verhuur. Derhalve dient bovengenoemd bedrag te worden vermeerderd met het van toepassing zijnde BTW- percentage. Indien huurder niet aan het 90% criterium voldoet, zal er van rechtswege sprake zijn van omzetbelasting vrijgestelde verhuur. Alsdan wordt de overeengekomen kale huurprijs, exclusief omzetbelasting, zodanig verhoogd dat het voor verhuurder ontstane nadeel volledig wordt gecompenseerd.
* Een huuraanbieding en/of huurovereenkomst wordt uitgebracht onder voorbehoud van goedkeuring van gunstige uitkomst van het Customer Due Diligence-onderzoek (financieel, juridisch en integriteit) van huurder. Huurder dient hiertoe aan verhuurder nader gevraagde stukken te overleggen zodat verhuurder haar vereiste onderzoek kan uitvoeren.
LOCATIE:
Bedrijventerrein Hondsgemet ligt in het hart van Nederland, op een zichtlocatie langs de A15 direct aan de op- en afritten. Het bedrijventerrein is centraal in het land gelegen, op korte afstand gelegen van knooppunt Deil waar A2 en A15 elkaar snijden. Het grondgebied wordt omsloten door de Randweg, Betuwelijn en de spoorlijn Geldermalsen-Tiel. Het bedrijventerrein is daardoor goed bereikbaar voor klanten, leveranciers, bezoekers en personeel.
Of u nu reist van oost naar west of van noord naar zuid, ongemerkt komt u praktisch altijd door de gemeente West Betuwe. Ook voor niet automobilisten ligt deze gemeente gunstig. Het NS-station Geldermalsen neemt in het spoorverbindingennet een centrale plaats in. Hoewel gelegen in de schaduw van de grote winkelcentra Utrecht en Den Bosch beschikt met name de kern Geldermalsen over prima winkelvoorzieningen.
ALGEMEEN:
Het object valt als onderdeel van de gebouwde omgeving onder het Omgevingsplan gemeente West Betuwe en het bestemmingsplan ‘Hondsgemet Zuid 2017’ en heeft als enkelbestemming ‘Bedrijventerrein’ en gebiedsaanduiding ‘wetgevingzone- afwijking categorie 4’. Bedrijven in de categorie 1,2 en 3 uit de Staat van Bedrijfsactiviteiten zijn toegestaan. Voor inzage van het bestemmingsplan van dit pand verwijzen wij u naar de website omgevingswet.overheid.nl/regels-op-de-kaart.
DISCLAIMER:
De door Van der Horst Bedrijfsmakelaardij en verhuurder verstrekte informatie dient uitsluitend gezien te worden als een uitnodiging tot nader overleg of voor het uitbrengen van een bod.
Hoewel de informatie met de grootst mogelijke zorg is samengesteld, wordt noch door de makelaar, noch door diens opdrachtgever ingestaan c.q. aansprakelijkheid aanvaard voor de juistheid dan wel volledigheid van de verstrekte, nog te verstrekken of vermelde gegevens. Aan afwijkingen in de tekst, maten en tekeningen kunnen dan ook geen rechten worden ontleend.
Op bedrijventerrein Hondsgemet bieden we deze multifunctionele bedrijfsunit aan, bestaande uit een representatieve bedrijfsruimte op de begane grond en een lichte kantoorruimte op de verdieping. De unit wordt momenteel gemoderniseerd door verhuurder, waardoor je als huurder straks profiteert van een frisse, instapklare werkplek. De kantoorruimte op de verdieping wordt voorzien van een hoogwaardige afwerking met o.a. aparte kantoor-/vergaderruimte met glazen scheidingswand en een moderne zwarte pantry.
Deze unit heeft een verhuurbaar vloeroppervlak van 198 m² en is verdeeld over 2 etages. De begane grond heeft een oppervlakte van ca. 100 m² en de verdieping heeft een oppervlakte van ca. 98 m².
HUURPRIJS:
€ 1.750,= per maand excl. BTW en servicekosten.
INDELING:
Begane grond: Entree via aparte loopdeur naar een afgescheiden hal met meterkast en toegang naar ruim toilet met extra urinoir, trapopgang naar verdieping en schuifdeuren naar de open bedrijfsruimte voorzien van uitstortgootsteen.
De elektrisch bedienbare overheaddeur heeft een afmeting van 3,32 meter breed en 2,92 meter hoog (doorrijhoogte).
Verdieping: Zeer verzorgd afgewerkte deels open kantoorruimte met mogelijkheid voor het creëren van werkplekken aan de raamzijde. Achterin wordt een extra kantoor gemaakt voorzien van glazen scheidingswand, ideaal om te gebruiken als vergaderkamer of als directiekantoor. Daarnaast komt er achterin een opbergruimte. De trapopgang wordt volledig afgewerkt met wanden en een glazen deur. De verdieping is afgewerkt met pvc vloer, systeemplafond met LED-verlichting, airco installatie en een moderne zwarte pantry welke is voorzien van koelkast en vaatwasser.
Op de verdieping bevindt zich ook de technische ruimte met Cv-installatie.
ERF/BUITENTERREIN:
Bij het pand horen 3 toegewezen parkeerplaatsen welke op het gemeenschappelijke buitenterrein zijn gelegen. Het terrein is volledig omheind en zeker voor een verzamelgebouw ruim opgezet.
OVERIGE:
* Het buitenterrein beschikt over 2 elektrisch bedienbare inrijpoorten.
* Oplevering in overleg.
* Het pand wordt verwarmd middels Cv-installatie en radiatoren. De begane grond is voorzien van een heater.
* De vrije hoogte op de begane grond bedraagt 3,11 meter.
* De vloerbelasting van de begane grond bedraagt 1.000 kg/m² en op de verdieping 400 kg/m².
* Glasvezelaansluiting is aanwezig tot in de meterkast. Glasvezel is mogelijk via de Coöperatieve Vereniging Hondsgemet.
* Het bedrijventerrein is beveiligd. ‘s Avonds na 21.00 uur is het terrein alleen bereikbaar na aanmelding bij de slagboom.
* De servicekosten bedragen € 30,= per maand excl. BTW en omvatten o.a. bijdrage parkmanagement Coöperatie Hondsgemet, onderhoud buitenterrein, hekwerk, blusmiddelen en het schoonhouden buitenzijde van het gebouw.
* De bedrijfsruimte maakt onderdeel uit van een mandeligheid. De huurder is gebonden aan het huishoudelijk reglement van de “Mandeligheid Iepenwei 14”
* De kosten voor het verbruik van gas, water en elektra zullen door de diverse nutsbedrijven rechtstreeks aan de huurder in rekening worden gebracht.
* Betaling: per maand vooruit.
* Het object wordt aangeboden onder voorbehoud van gunning door de eigenaar.
* Huurprijsaanpassing: jaarlijks op basis van het consumptie prijsindexcijfers voor alle huishoudens (CPI, als vastgesteld door het CBS).
* Bankgarantie: er wordt een bankgarantie gevraagd ter grootte van 3 maanden huur verhoogd met BTW en servicekosten.
* Huurovereenkomst: conform standaard huurovereenkomst NVM, vastgesteld door Raad van Onroerende zaken.
* Uitgangspunt is BTW-belaste verhuur. Derhalve dient bovengenoemd bedrag te worden vermeerderd met het van toepassing zijnde BTW- percentage. Indien huurder niet aan het 90% criterium voldoet, zal er van rechtswege sprake zijn van omzetbelasting vrijgestelde verhuur. Alsdan wordt de overeengekomen kale huurprijs, exclusief omzetbelasting, zodanig verhoogd dat het voor verhuurder ontstane nadeel volledig wordt gecompenseerd.
* Een huuraanbieding en/of huurovereenkomst wordt uitgebracht onder voorbehoud van goedkeuring van gunstige uitkomst van het Customer Due Diligence-onderzoek (financieel, juridisch en integriteit) van huurder. Huurder dient hiertoe aan verhuurder nader gevraagde stukken te overleggen zodat verhuurder haar vereiste onderzoek kan uitvoeren.
LOCATIE:
Bedrijventerrein Hondsgemet ligt in het hart van Nederland, op een zichtlocatie langs de A15 direct aan de op- en afritten. Het bedrijventerrein is centraal in het land gelegen, op korte afstand gelegen van knooppunt Deil waar A2 en A15 elkaar snijden. Het grondgebied wordt omsloten door de Randweg, Betuwelijn en de spoorlijn Geldermalsen-Tiel. Het bedrijventerrein is daardoor goed bereikbaar voor klanten, leveranciers, bezoekers en personeel.
Of u nu reist van oost naar west of van noord naar zuid, ongemerkt komt u praktisch altijd door de gemeente West Betuwe. Ook voor niet automobilisten ligt deze gemeente gunstig. Het NS-station Geldermalsen neemt in het spoorverbindingennet een centrale plaats in. Hoewel gelegen in de schaduw van de grote winkelcentra Utrecht en Den Bosch beschikt met name de kern Geldermalsen over prima winkelvoorzieningen.
ALGEMEEN:
Het object valt als onderdeel van de gebouwde omgeving onder het Omgevingsplan gemeente West Betuwe en het bestemmingsplan ‘Hondsgemet Zuid 2017’ en heeft als enkelbestemming ‘Bedrijventerrein’ en gebiedsaanduiding ‘wetgevingzone- afwijking categorie 4’. Bedrijven in de categorie 1,2 en 3 uit de Staat van Bedrijfsactiviteiten zijn toegestaan. Voor inzage van het bestemmingsplan van dit pand verwijzen wij u naar de website omgevingswet.overheid.nl/regels-op-de-kaart.
DISCLAIMER:
De door Van der Horst Bedrijfsmakelaardij en verhuurder verstrekte informatie dient uitsluitend gezien te worden als een uitnodiging tot nader overleg of voor het uitbrengen van een bod.
Hoewel de informatie met de grootst mogelijke zorg is samengesteld, wordt noch door de makelaar, noch door diens opdrachtgever ingestaan c.q. aansprakelijkheid aanvaard voor de juistheid dan wel volledigheid van de verstrekte, nog te verstrekken of vermelde gegevens. Aan afwijkingen in de tekst, maten en tekeningen kunnen dan ook geen rechten worden ontleend.
Kenmerken
Overdracht
- Laatste huurprijs
- € 1.750 per maand
- Servicekosten
- € 30 per maand (21% BTW van toepassing)
- Aangeboden sinds
-
- Status
- Verhuurd
Bouw
- Hoofdfunctie
- Bedrijfshal
- Soort bouw
- Bestaande bouw
- Bouwjaar
- 2009
Oppervlakten
- Oppervlakte
- 198 m²
- Bedrijfshal oppervlak
- 100 m²
- Kantoor oppervlak
- 98 m²
- Vrije hoogte
- 3,1 m
- Draagvermogen
- 1.000 kg/m²
Indeling
- Aantal bouwlagen
- 1 bouwlaag
- Voorzieningen
- Overheaddeuren, krachtstroom, betonvloer, heater, toilet, pantry, airconditioning, inbouwarmaturen en te openen ramen
Energie
- Energielabel
- A
Omgeving
- Ligging
- Bedrijventerrein
- Bereikbaarheid
- NS Intercitystation op 1000 m tot 1500 m en snelwegafrit op minder dan 500 m
Foto's