Goudsmid 122 2461 LZ Ter Aar
- Verhuurd
€ 895 /mnd
Omschrijving
TE HUUR: Deze moderne en representatieve bedrijfsunit van ca. 72 m2!
Dit bedrijfspand, gebouwd in 2022, maakt deel uit van het nieuwbouwproject "The Box" in Ter Aar en is geschikt voor diverse bedrijfs- en kantoordoeleinden.
De ruimte bevat een functionele en moderne bedrijfsruimte op de begane grond, een kantoorruimte op de eerste verdieping én twee eigen parkeerplaatsen voor de deur!
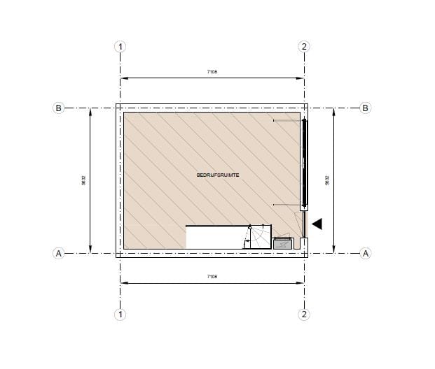
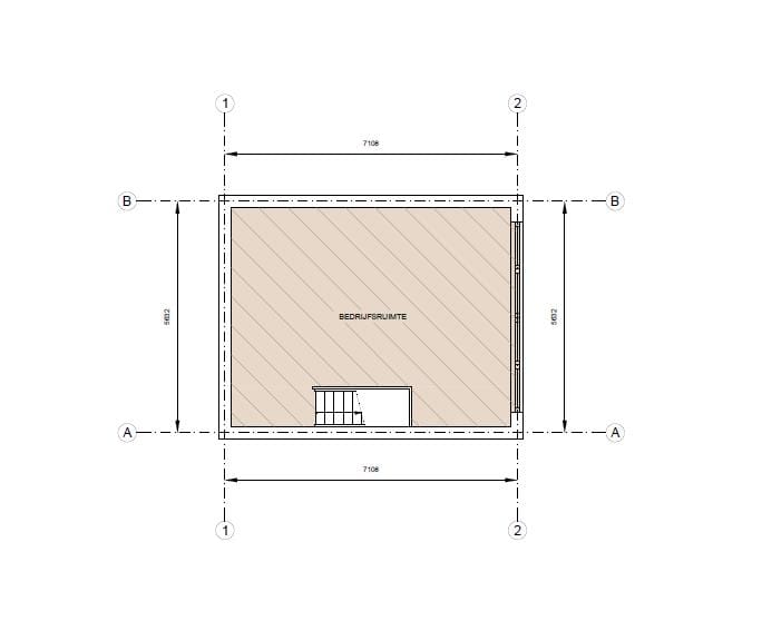
De unit heeft een oppervlakte van ca. 72 m2, verdeeld over de verdiepingsvloer en begane grond met een oppervlakte van ca. 36 m2. De unit is ca. 7,1 m bij ca. 5,6 m.
De begane grond is voorzien van een betonnen vloer met een maximale belasting van 1.000 kg/m2. Verder bevindt zich hier ook het toilet, welke is voorzien van een prachtige visgraatvloer en een was fonteintje.
De ruimte is toegankelijk via zowel de voordeur als de elektrische overheaddeur. De inwendige hoogte op de begane grond is ca. 3,7 m.
Via de interne trap komt u op de bovenverdieping welke tevens is voorzien van de prachtige visgraatvloer én hoge plinten. Hier is tevens een keukenblok aanwezig, voorzien van een kleine kookplaat, een kraan met spoelbak en een aantal keukenkastjes voor het opbergen van spullen. De aanwezige raampartijen zorgen voor voldoende lichtinval. Deze ruimte kan goed gebruikt worden als kantoorruimte.
Ligging
Het pand is zeer goed bereikbaar van en naar omliggende plaatsen.
Alphen aan den Rijn, Ter Aar en Nieuwkoop liggen “om de hoek”. Verder zijn Schiphol, Aalsmeer en Amsterdam, net als Woerden en Utrecht, snel en goed aan te rijden.
Het bedrijventerrein is voorzien van cameratoezicht en afsluitbare hekken.
Goed om te weten:
- De huurprijs bedraagt 895,-- per maand, excl. BTW en excl. kosten voor GWE.
- De borg bestaat uit 3 maanden huur.
- De huurperiode bedraagt minimaal 2 jaar.
-----------------------------------------------------------------------------------------------------
FOR RENT: This modern and representative business unit of approx. 72 m2!
This business building, built in 2022, is part of the new construction project “The Box” in Ter Aar and is suitable for various business and office purposes.
The space includes a functional and modern business space on the first floor, an office space on the second floor and two private parking spaces in front of the door!
The unit has an area of approx. 72 m2, divided over the first floor and first floor with an area of approx. 36 m2. The unit is about 7.1 m by about 5.6 m.
The first floor has a concrete floor with a maximum load of 1,000 kg/m2. Also located here is the toilet, which is equipped with a beautiful herringbone floor and a wash basin.
The space is accessible through both the front door and the electric overhead door. The internal height on the first floor is approximately 3.7 m.
The internal staircase leads to the upper floor which is also equipped with the beautiful herringbone floor and high baseboards. Here is also a kitchen unit present, equipped with a small stove, a tap with sink and some kitchen cabinets for storing things. The present windows provide plenty of light. This space can be well used as office space.
Location
The building is very well accessible from and to surrounding places.
Alphen aan den Rijn, Ter Aar and Nieuwkoop are “around the corner”. Furthermore, Schiphol, Aalsmeer and Amsterdam, as well as Woerden and Utrecht, are quickly and easily accessible.
The business park is equipped with camera surveillance and lockable gates.
Good to know:
- The rent is 895,-- per month, excluding VAT and excluding costs for GWE.
- The deposit consists of 3 months rent.
- The minimum rental period is 2 years.
Dit bedrijfspand, gebouwd in 2022, maakt deel uit van het nieuwbouwproject "The Box" in Ter Aar en is geschikt voor diverse bedrijfs- en kantoordoeleinden.
De ruimte bevat een functionele en moderne bedrijfsruimte op de begane grond, een kantoorruimte op de eerste verdieping én twee eigen parkeerplaatsen voor de deur!
De unit heeft een oppervlakte van ca. 72 m2, verdeeld over de verdiepingsvloer en begane grond met een oppervlakte van ca. 36 m2. De unit is ca. 7,1 m bij ca. 5,6 m.
De begane grond is voorzien van een betonnen vloer met een maximale belasting van 1.000 kg/m2. Verder bevindt zich hier ook het toilet, welke is voorzien van een prachtige visgraatvloer en een was fonteintje.
De ruimte is toegankelijk via zowel de voordeur als de elektrische overheaddeur. De inwendige hoogte op de begane grond is ca. 3,7 m.
Via de interne trap komt u op de bovenverdieping welke tevens is voorzien van de prachtige visgraatvloer én hoge plinten. Hier is tevens een keukenblok aanwezig, voorzien van een kleine kookplaat, een kraan met spoelbak en een aantal keukenkastjes voor het opbergen van spullen. De aanwezige raampartijen zorgen voor voldoende lichtinval. Deze ruimte kan goed gebruikt worden als kantoorruimte.
Ligging
Het pand is zeer goed bereikbaar van en naar omliggende plaatsen.
Alphen aan den Rijn, Ter Aar en Nieuwkoop liggen “om de hoek”. Verder zijn Schiphol, Aalsmeer en Amsterdam, net als Woerden en Utrecht, snel en goed aan te rijden.
Het bedrijventerrein is voorzien van cameratoezicht en afsluitbare hekken.
Goed om te weten:
- De huurprijs bedraagt 895,-- per maand, excl. BTW en excl. kosten voor GWE.
- De borg bestaat uit 3 maanden huur.
- De huurperiode bedraagt minimaal 2 jaar.
-----------------------------------------------------------------------------------------------------
FOR RENT: This modern and representative business unit of approx. 72 m2!
This business building, built in 2022, is part of the new construction project “The Box” in Ter Aar and is suitable for various business and office purposes.
The space includes a functional and modern business space on the first floor, an office space on the second floor and two private parking spaces in front of the door!
The unit has an area of approx. 72 m2, divided over the first floor and first floor with an area of approx. 36 m2. The unit is about 7.1 m by about 5.6 m.
The first floor has a concrete floor with a maximum load of 1,000 kg/m2. Also located here is the toilet, which is equipped with a beautiful herringbone floor and a wash basin.
The space is accessible through both the front door and the electric overhead door. The internal height on the first floor is approximately 3.7 m.
The internal staircase leads to the upper floor which is also equipped with the beautiful herringbone floor and high baseboards. Here is also a kitchen unit present, equipped with a small stove, a tap with sink and some kitchen cabinets for storing things. The present windows provide plenty of light. This space can be well used as office space.
Location
The building is very well accessible from and to surrounding places.
Alphen aan den Rijn, Ter Aar and Nieuwkoop are “around the corner”. Furthermore, Schiphol, Aalsmeer and Amsterdam, as well as Woerden and Utrecht, are quickly and easily accessible.
The business park is equipped with camera surveillance and lockable gates.
Good to know:
- The rent is 895,-- per month, excluding VAT and excluding costs for GWE.
- The deposit consists of 3 months rent.
- The minimum rental period is 2 years.
Kenmerken
Overdracht
- Laatste huurprijs
- € 895 per maand
- Oorspronkelijke huurprijs
- € 995 per maand
- Aangeboden sinds
-
- Status
- Verhuurd
Bouw
- Hoofdfunctie
- Bedrijfshal
- Soort bouw
- Bestaande bouw
- Bouwjaar
- 2022
Oppervlakten
- Oppervlakte
- 72 m²
- Bedrijfshal oppervlak
- 36 m²
- Kantoor oppervlak
- 36 m²
- Vrije hoogte
- 3,7 m
- Draagvermogen
- 1.000 kg/m²
Indeling
- Aantal bouwlagen
- 1 bouwlaag
- Voorzieningen
- Overheaddeuren, betonvloer, toilet, pantry en te openen ramen
Energie
- Energielabel
- Niet verplicht
Omgeving
- Ligging
- Bedrijventerrein
Foto's