Ferdinand Bolstraat 41 5914 XN Venlo
- Verhuurd
€ 600 /mnd

Omschrijving
Aan de Ferdinand Bolstraat ligt deze multifunctionele en kleinschalige bedrijfsruimte op een centrale en goed bereikbare locatie. De instapklare ruimte heeft een eigen toiletvoorziening en pantry.
Rondom liggen voldoende (gratis) openbare parkeerplaatsen.
Indeling:
De bedrijfsruimte is aan de voorzijde toegankelijk middels een geïsoleerde rolpoort met daarin een extra loopdeur.
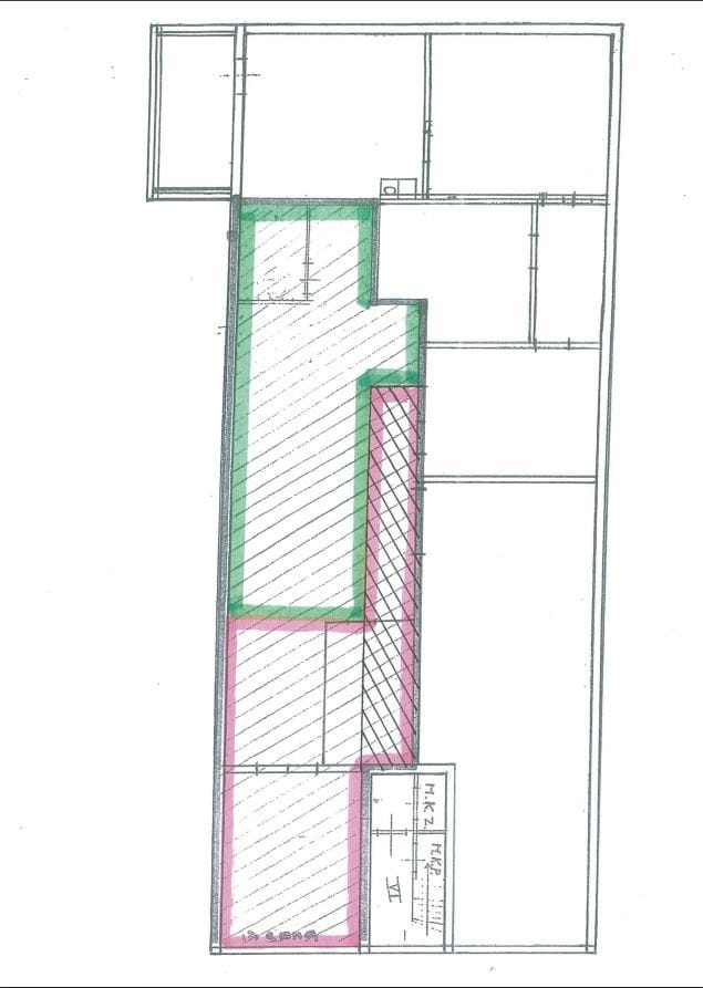
Aan de voorzijde bevindt zich een separate berging/garage van de eigenaar en direct daarachter ligt de aangeboden ruimte van in totaal ca. 60 m².
Een eigen toiletruimte en pantry zijn aanwezig.
Naast de eigenaar is er nog een 2de huurder die gebruik maakt van andere ruimten in hetzelfde pand.
Oppervlakte:
Totale oppervlakte begane grond: BVO - ca. 60 m² (groen gearceerde gedeelte op de plattegrond).
Opleverniveau:
De bedrijfsruimte wordt in de huidige staat aangeboden, waaronder inbegrepen:
- Bestaande Elektrische installatie + krachtstroom;
- Toilet en pantry;
- Verlichting;
- Eigen elektrameter (gasloos);
- De huidige indeling is eenvoudig en met beperkte middelen naar wens aan te passen;
- Airco.
Eventuele wijzigingen (in overleg met verhuurder) voor rekening van huurder.
Bestemming:
De bestemming is bedrijf. Waarbij de ruimten bestemd zijn voor bedrijven in de milieucategorie 1 en 2. Daarnaast zijn maatschappelijke voorzieningen toegestaan.
Overig:
- Aanvaarding: in overleg (op korte termijn mogelijk);
- Voorbehoud: gunning verhuurder;
- Huurprijs: € 600,- excl. btw per maand.
- Voorschot elektra en water: € 80,- per maand.
Heeft u vragen, wilt u meer informatie of een bezichtiging van het pand, neem dan gerust contact op met ons kantoor.
Rondom liggen voldoende (gratis) openbare parkeerplaatsen.
Indeling:
De bedrijfsruimte is aan de voorzijde toegankelijk middels een geïsoleerde rolpoort met daarin een extra loopdeur.
Aan de voorzijde bevindt zich een separate berging/garage van de eigenaar en direct daarachter ligt de aangeboden ruimte van in totaal ca. 60 m².
Een eigen toiletruimte en pantry zijn aanwezig.
Naast de eigenaar is er nog een 2de huurder die gebruik maakt van andere ruimten in hetzelfde pand.
Oppervlakte:
Totale oppervlakte begane grond: BVO - ca. 60 m² (groen gearceerde gedeelte op de plattegrond).
Opleverniveau:
De bedrijfsruimte wordt in de huidige staat aangeboden, waaronder inbegrepen:
- Bestaande Elektrische installatie + krachtstroom;
- Toilet en pantry;
- Verlichting;
- Eigen elektrameter (gasloos);
- De huidige indeling is eenvoudig en met beperkte middelen naar wens aan te passen;
- Airco.
Eventuele wijzigingen (in overleg met verhuurder) voor rekening van huurder.
Bestemming:
De bestemming is bedrijf. Waarbij de ruimten bestemd zijn voor bedrijven in de milieucategorie 1 en 2. Daarnaast zijn maatschappelijke voorzieningen toegestaan.
Overig:
- Aanvaarding: in overleg (op korte termijn mogelijk);
- Voorbehoud: gunning verhuurder;
- Huurprijs: € 600,- excl. btw per maand.
- Voorschot elektra en water: € 80,- per maand.
Heeft u vragen, wilt u meer informatie of een bezichtiging van het pand, neem dan gerust contact op met ons kantoor.
Kenmerken
Overdracht
- Laatste huurprijs
- € 600 per maand
- Servicekosten
- € 50 per vierkante meter per jaar (21% BTW van toepassing)
- Aangeboden sinds
-
- Status
- Verhuurd
Bouw
- Hoofdfunctie
- Bedrijfshal
- Soort bouw
- Bestaande bouw
- Bouwjaar
- 1971
Oppervlakten
- Oppervlakte
- 60 m²
- Bedrijfshal oppervlak
- 60 m²
Indeling
- Voorzieningen
- Overheaddeuren, krachtstroom, betonvloer, toilet en pantry
Energie
- Energielabel
- Niet beschikbaar
Omgeving
- Ligging
- In woonwijk
- Bereikbaarheid
- Bushalte op minder dan 500 m, NS Intercitystation op 1500 m tot 2000 m en snelwegafrit op 1500 m tot 2000 m
NVM makelaar
Foto's








