Bedrijvenstraat 7-a 7641 AM Wierden
- Nieuw
€ 45.000 /jr

Omschrijving
Gelegen op een uitstekende locatie in Wierden bieden wij dit multifunctionele bedrijfspand aan voor de verhuur.
Het bedrijfspand is gelegen op bedrijventerrein 'Violenhoek' en beschikt over eigen grond. Het object is gelegen op een perceel van 585 m².
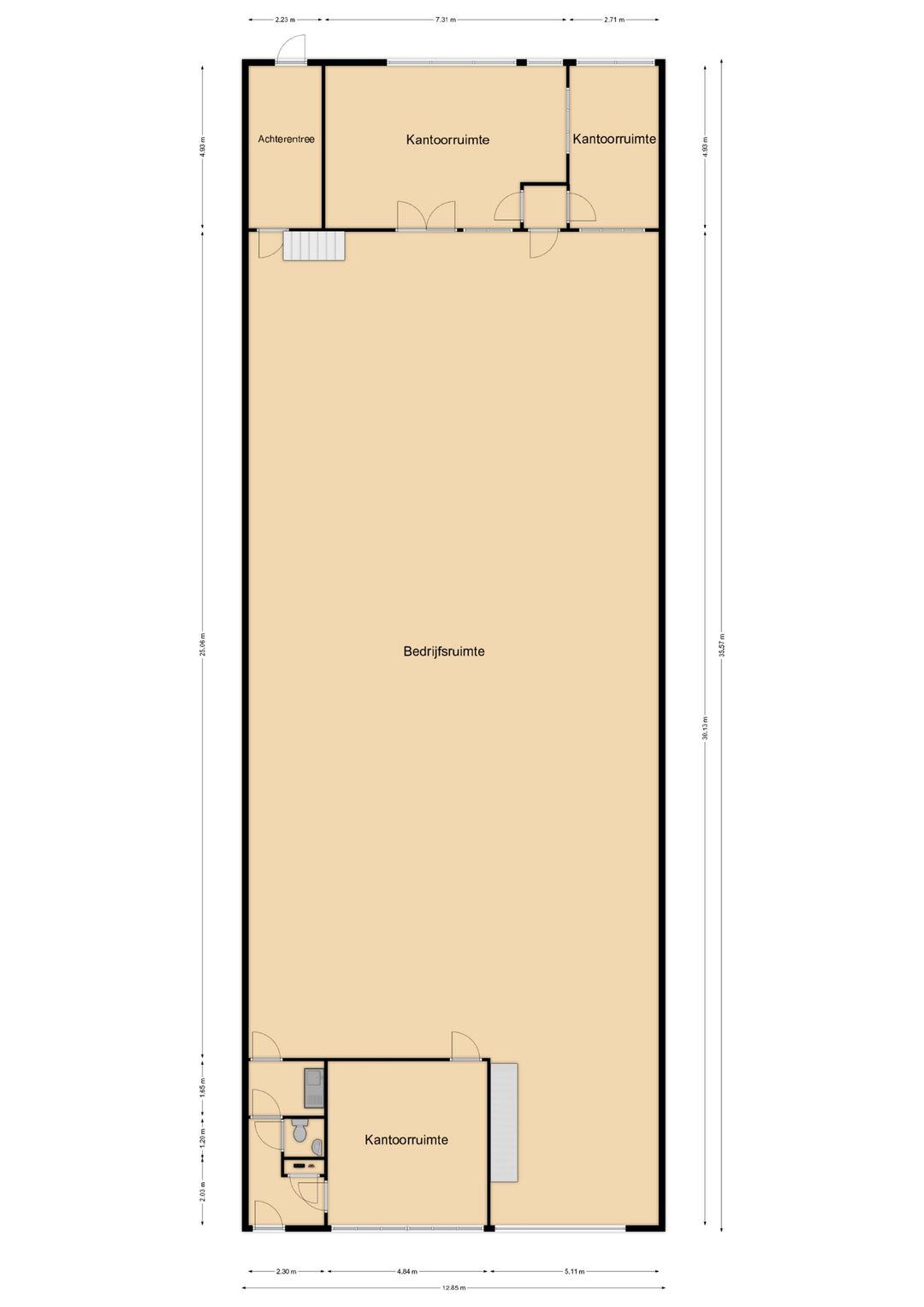
Het totaal aantal verhuurbare vierkante meters is circa 754 m², waarvan:
Bedrijfshal: ca. 331 m²
Kantoorruimte begane grond: ca. 99 m²
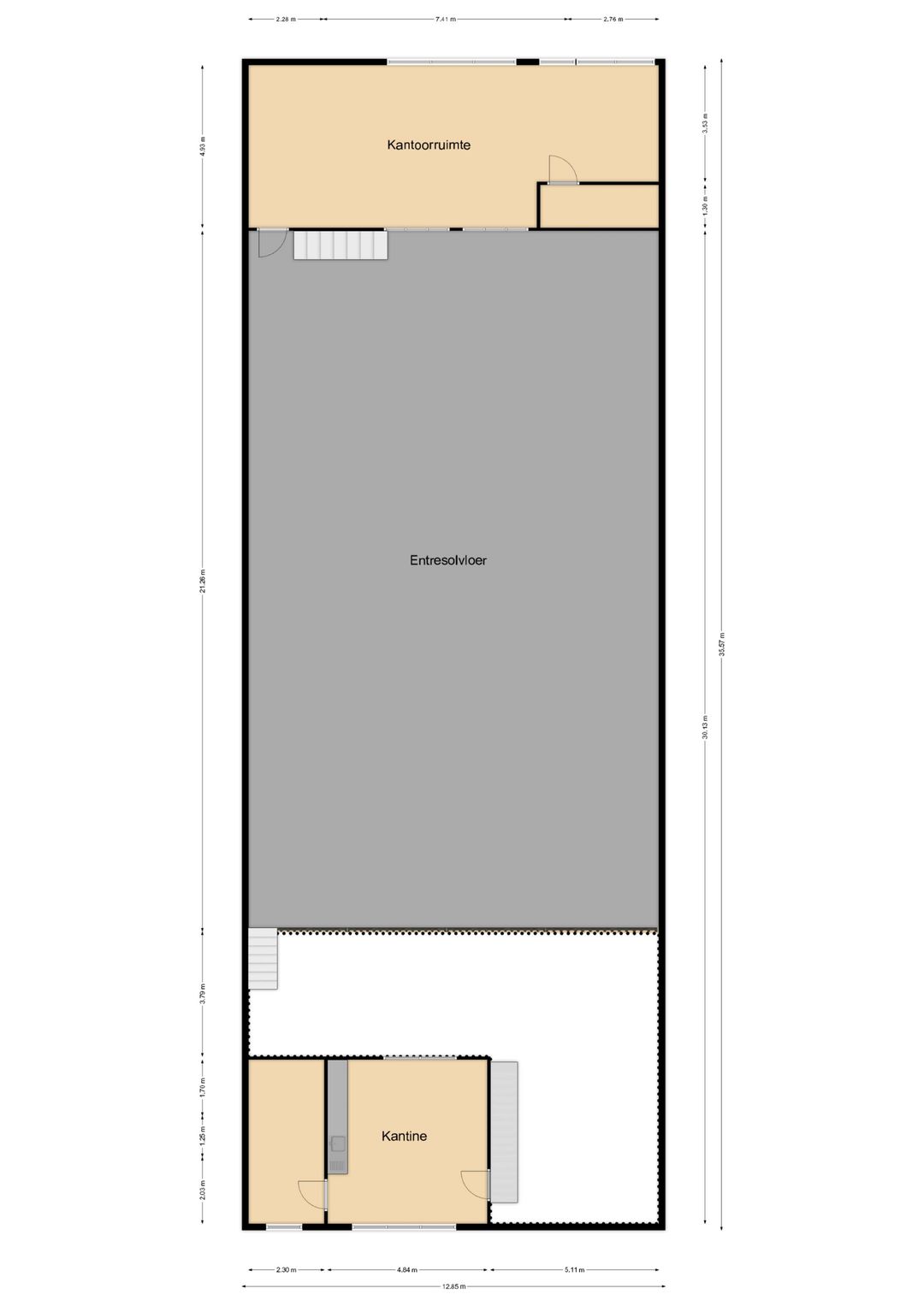
Kantoorruimte verdieping: ca. 99 m²
Entresolvloer: ca. 225 m²
Indeling:
Overdekte entree met hal, toilet, pantry, meterkast, kantoorruimte, bedrijfshal met toegang tot kantine op de verdieping, bedrijfshal v.v. entresolvloer. Aan de achterzijde is het object ingericht met een wasruimte, kantoorruimtes en archiefruimte.
Voorzieningen:
- Entresolvloer betreft een staalconstructie met stevige betonvloer.
- Diverse kantoorruimtes, grotendeels v.v. vloerverwarming en airco.
- V.v. toiletruimtes, wasruimte en kantine
- Verwarming middels cv-installatie (kantoren) en gasheater (bedrijfshal)
- Deels v.v. ledverlichting
- V.v. alarmsysteem
- Eigen grond met ruim voldoende parkeermogelijkheden
- Bedrijfshal v.v. elektrische overheaddeur
Bereikbaarheid:
Het bedrijfspand is goed bereikbaar. Wierden is gelegen aan de A35, N35 en N36. Daarnaast is het centraal station van Wierden op loopafstand te bereiken.
Huurprijs:
Het pand wordt te huur aangeboden voor € 45.000,- per jaar excl. BTW.
Voorwaarden:
Bij verhuur van het pand is het uitgangspunt dat er een huurtermijn van 5+5 jaar wordt afgesproken. Tevens dient de huurder een waarborgsom te storten aan verhuurder van 2 maandhuren.
Bestemmingsplan:
Voor dit object geldt het bestemmingsplan "Wierden Dorp" met enkelbestemming "Bedrijventerrein" en als functieaanduiding "bedrijf tot en met categorie 3.2". Voor meer informatie omtrent het bestemmingsplan kunt u contact opnemen met ons kantoor.
Aanvaarding:
Per direct beschikbaar.
Het bedrijfspand is gelegen op bedrijventerrein 'Violenhoek' en beschikt over eigen grond. Het object is gelegen op een perceel van 585 m².
Het totaal aantal verhuurbare vierkante meters is circa 754 m², waarvan:
Bedrijfshal: ca. 331 m²
Kantoorruimte begane grond: ca. 99 m²
Kantoorruimte verdieping: ca. 99 m²
Entresolvloer: ca. 225 m²
Indeling:
Overdekte entree met hal, toilet, pantry, meterkast, kantoorruimte, bedrijfshal met toegang tot kantine op de verdieping, bedrijfshal v.v. entresolvloer. Aan de achterzijde is het object ingericht met een wasruimte, kantoorruimtes en archiefruimte.
Voorzieningen:
- Entresolvloer betreft een staalconstructie met stevige betonvloer.
- Diverse kantoorruimtes, grotendeels v.v. vloerverwarming en airco.
- V.v. toiletruimtes, wasruimte en kantine
- Verwarming middels cv-installatie (kantoren) en gasheater (bedrijfshal)
- Deels v.v. ledverlichting
- V.v. alarmsysteem
- Eigen grond met ruim voldoende parkeermogelijkheden
- Bedrijfshal v.v. elektrische overheaddeur
Bereikbaarheid:
Het bedrijfspand is goed bereikbaar. Wierden is gelegen aan de A35, N35 en N36. Daarnaast is het centraal station van Wierden op loopafstand te bereiken.
Huurprijs:
Het pand wordt te huur aangeboden voor € 45.000,- per jaar excl. BTW.
Voorwaarden:
Bij verhuur van het pand is het uitgangspunt dat er een huurtermijn van 5+5 jaar wordt afgesproken. Tevens dient de huurder een waarborgsom te storten aan verhuurder van 2 maandhuren.
Bestemmingsplan:
Voor dit object geldt het bestemmingsplan "Wierden Dorp" met enkelbestemming "Bedrijventerrein" en als functieaanduiding "bedrijf tot en met categorie 3.2". Voor meer informatie omtrent het bestemmingsplan kunt u contact opnemen met ons kantoor.
Aanvaarding:
Per direct beschikbaar.
Kenmerken
Overdracht
- Huurprijs
- € 45.000 per jaar
- Aangeboden sinds
-
- Status
- Beschikbaar
- Aanvaarding
- Per direct beschikbaar
Bouw
- Hoofdfunctie
- Bedrijfshal
- Soort bouw
- Bestaande bouw
- Bouwjaar
- 1999
Oppervlakten
- Oppervlakte
- 765 m²
- Bedrijfshal oppervlak
- 765 m²
- Perceel
- 585 m²
Indeling
- Voorzieningen
- Airconditioning, overheaddeuren, krachtstroom, betonvloer, toilet en pantry
Energie
- Energielabel
- Niet beschikbaar
Omgeving
- Ligging
- Bedrijventerrein
- Bereikbaarheid
- Bushalte op 1000 m tot 1500 m, NS Intercitystation op 500 m tot 1000 m en snelwegafrit op 2000 m tot 3000 m
VastgoedPRO makelaar
Foto's


























