Gaffel 3 3891 KC Zeewolde
€ 4.175 /mnd
Omschrijving
Te huur: Woon-bedrijfspand.
Op een prominente locatie in de bebouwde kom van Zeewolde, op het Schepenveld, staat dit fraaie woon-bedrijfspand. Het bedrijfspand beschikt over een riante bedrijfshal, een showroom en kantoren (BVO van 440 m²) en op de 1e etage een bijzonder ruime bedrijfswoning van maar liefst 200 m² met dakterras. Dit is een uitstekende locatie om wonen en werken te combineren. Aan de voorkant bevinden zich parkeerplaatsen, en de bedrijfshal is toegankelijk via een overheaddeur. Zowel de showroom, de kantoren en de woning hebben elk een eigen ingang.
Indeling:
Dit is echt een ideaal pand. Je zit parallel aan de Sportlaan waardoor je hier maximale exposure hebt. Als jij hier je bedrijf vestigt weet binnen no-time half Zeewolde dat jij hier zit!
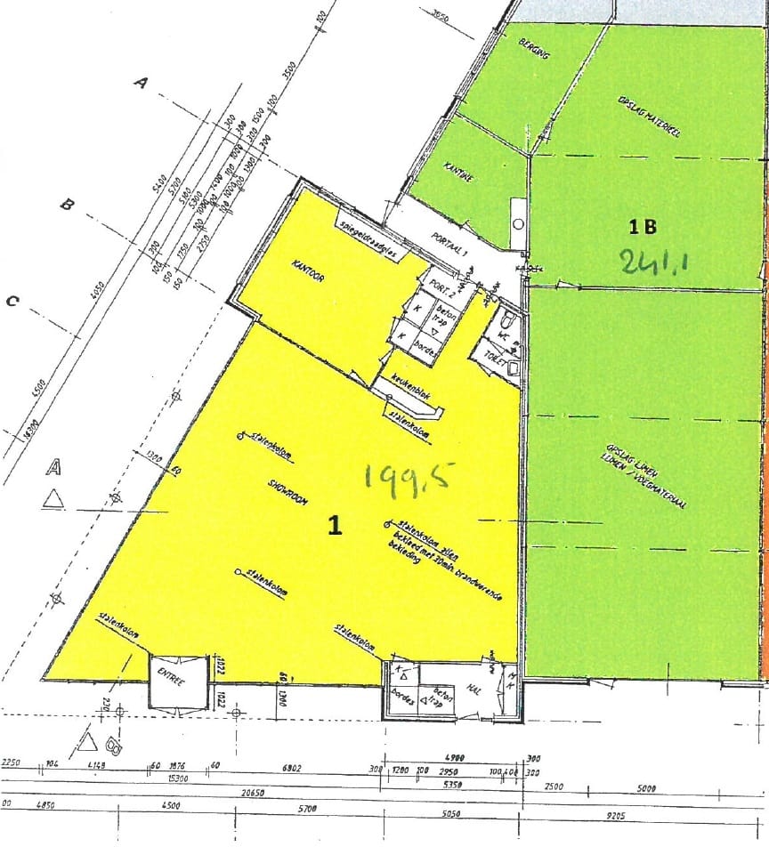
Op de begane grond bevindt zich een nette entree met toegang tot de showroom, met daarachter een kantoorruimte en toiletgroep (ca. 199 m²).
De bedrijfshal beschikt over een overheaddeur, een mooie hoogte en is voorzien van verwarming en verlichting etc. Aan de achterzijde zijn daarnaast nog eens twee kantoorruimten aanwezig (241 m²).
1e Verdieping:
Op de etage bevindt zich een riante woning van (ca. 200 m²), bestaande uit de volgende ruimten:
- 6 Slaapkamers
- Woonkamer
- Groot dakterras (29 m²)
- Keuken
- Bijkeuken
- Toilet
- provisiekast
- Badkamer
- Berging
- waskamer
Het is een ruime woning met veel natuurlijk licht en een fraai uitzicht over de omgeving, vooral vanaf het dakterras.
Kenmerken:
- Bouwjaar bedrijfspand: 1998
- Perceeloppervlakte: 500 m²
- VVO ca.: 640 m²
- Inhoud ca.: 2.060 m³
- Energielabel klasse: B
- Het is mogelijk om ca. 8 auto's voor het pand te parkeren. Op de naastgelegen openbare weg kan gratis worden geparkeerd.
- De huurprijs is € 4.175,- excl. BTW per maand.
- Borgsom € 8.350,-
- Huurperiode minimaal 3 jaar
- Onder gunning van de eigenaar
Op een prominente locatie in de bebouwde kom van Zeewolde, op het Schepenveld, staat dit fraaie woon-bedrijfspand. Het bedrijfspand beschikt over een riante bedrijfshal, een showroom en kantoren (BVO van 440 m²) en op de 1e etage een bijzonder ruime bedrijfswoning van maar liefst 200 m² met dakterras. Dit is een uitstekende locatie om wonen en werken te combineren. Aan de voorkant bevinden zich parkeerplaatsen, en de bedrijfshal is toegankelijk via een overheaddeur. Zowel de showroom, de kantoren en de woning hebben elk een eigen ingang.
Indeling:
Dit is echt een ideaal pand. Je zit parallel aan de Sportlaan waardoor je hier maximale exposure hebt. Als jij hier je bedrijf vestigt weet binnen no-time half Zeewolde dat jij hier zit!
Op de begane grond bevindt zich een nette entree met toegang tot de showroom, met daarachter een kantoorruimte en toiletgroep (ca. 199 m²).
De bedrijfshal beschikt over een overheaddeur, een mooie hoogte en is voorzien van verwarming en verlichting etc. Aan de achterzijde zijn daarnaast nog eens twee kantoorruimten aanwezig (241 m²).
1e Verdieping:
Op de etage bevindt zich een riante woning van (ca. 200 m²), bestaande uit de volgende ruimten:
- 6 Slaapkamers
- Woonkamer
- Groot dakterras (29 m²)
- Keuken
- Bijkeuken
- Toilet
- provisiekast
- Badkamer
- Berging
- waskamer
Het is een ruime woning met veel natuurlijk licht en een fraai uitzicht over de omgeving, vooral vanaf het dakterras.
Kenmerken:
- Bouwjaar bedrijfspand: 1998
- Perceeloppervlakte: 500 m²
- VVO ca.: 640 m²
- Inhoud ca.: 2.060 m³
- Energielabel klasse: B
- Het is mogelijk om ca. 8 auto's voor het pand te parkeren. Op de naastgelegen openbare weg kan gratis worden geparkeerd.
- De huurprijs is € 4.175,- excl. BTW per maand.
- Borgsom € 8.350,-
- Huurperiode minimaal 3 jaar
- Onder gunning van de eigenaar
Kenmerken
Overdracht
- Huurprijs
- € 4.175 per maand
- Aangeboden sinds
-
- Status
- Beschikbaar
- Aanvaarding
- Beschikbaar per 1-6-2026
Bouw
- Hoofdfunctie
- Bedrijfshal
- Soort bouw
- Bestaande bouw
- Bouwjaar
- 1998
Oppervlakten
- Oppervlakte
- 440 m² (in units vanaf 241 m²)
- Bedrijfshal oppervlak
- 241 m²
- Kantoor oppervlak
- 199 m²
- Vrije hoogte
- 5 m
- Vrije overspanning
- 6 m
- Draagvermogen
- 1.500 kg/m²
- Perceel
- 500 m²
Indeling
- Aantal bouwlagen
- 1 bouwlaag
- Voorzieningen
- Mechanische ventilatie, lichtstraten, overheaddeuren, krachtstroom, betonvloer, heater, toilet, pantry, airconditioning, inbouwarmaturen en te openen ramen
- Woonruimte
- Aanwezig (inpandig, 200 m²)
Energie
- Energielabel
- B
Omgeving
- Bereikbaarheid
- Bushalte op 500 m tot 1000 m
- Lokale voorzieningen
- Bank op 1500 m tot 2000 m, ontspanning op 1500 m tot 2000 m, restaurant op 1500 m tot 2000 m en winkel op minder dan 500 m
Parkeergelegenheid
- Parkeerplaatsen
- 8 parkeerplaatsen (2 overdekt, 6 niet-overdekt)
Foto's