Industrieweg 16-b 7921 JP Zuidwolde (DR)
- Nieuw
€ 80 /m²/jaar
Omschrijving
Flexibele bedrijfsruimte (334 m²) te huur – in overleg op te delen in units van 83 - 125 - 128 m², vrije hoogte 4,7 m
Op een goed bereikbare locatie in Zuidwolde bieden wij deze nieuw te realiseren bedrijfsruimte aan met een totale verhuurbare oppervlakte van ca. 334 m². De bedrijfsruimte is praktisch van opzet en kan worden opgedeeld in meerdere zelfstandige units, maar is op dit moment ook in zijn geheel te huur. Dit maakt het object interessant voor zowel ondernemers die ruimte zoeken voor eigen gebruik als voor partijen die juist een kleinere unit wensen.
Met een vrije hoogte van ca. 4,7 meter is de ruimte bovendien zeer geschikt voor opslag, stellingen of andere bedrijfsactiviteiten waarbij extra hoogte gewenst is.
In 2026 wordt de bedrijfsruimte rondom vernieuwd, waarbij onder andere wordt voorzien in:
- Nieuwe geïsoleerde vloeren
- Nieuwe buitengevels met isolatie
- Nieuwe geïsoleerde dakelementen
Dit zorgt voor een modern en duurzaam geheel met een prettiger werkklimaat en lagere energielasten.
Indeling & mogelijkheden
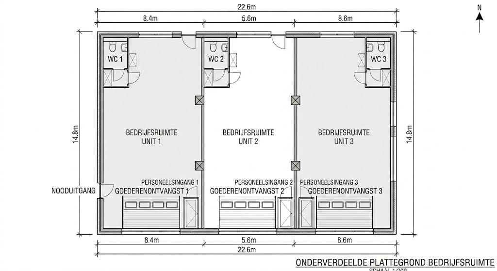
De ruimte kan worden verdeeld in drie units:
Unit 1: ca. 124 m²
Unit 2: ca. 83 m²
Unit 3: ca. 127 m²
Bij opsplitsing wordt iedere unit voorzien van:
- Een eigen overheaddeur (geschikt voor laden en lossen)
- Een separate loopdeur
- Toiletvoorziening (wc)
- Meterkast
- Krachtstroomaansluiting
Daarnaast behoort het aanbrengen van een gedeeltelijke verdiepingsvloer tot de mogelijkheden (in overleg), waarmee extra opslag- of kantoorruimte kan worden gecreëerd.
Dankzij de rechthoekige vorm en de vrije overspanning is de ruimte efficiënt en flexibel te gebruiken.
Huurprijs
De huurprijs bedraagt € 80,- per m² per jaar, exclusief BTW
Huurvoorwaarden
- Huurtermijn in overleg
* Verhuur van zowel afzonderlijke units als het geheel mogelijk
- Gunning voorbehouden aan verhuurder
?? Sterke punten
- Totale oppervlakte ca. 334 m²
- Vrije hoogte ca. 4,7 meter
- Flexibel: zowel in zijn geheel als in units te huur
- Mogelijkheid tot realiseren van een verdiepingsvloer (in overleg)
- Bedrijfsruimte wordt in 2026 volledig vernieuwd en geïsoleerd
- Voorzien van wc, meterkast en krachtstroom per unit
- Ruime parkeergelegenheid
- Praktische en efficiënte indeling
- Geschikt voor o.a. opslag, werkplaats of lichte bedrijfsactiviteiten
?? Ligging
Gelegen in Zuidwolde, een actief en ondernemend dorp met een compleet voorzieningenaanbod. De bereikbaarheid is goed, met vlotte verbindingen richting Hoogeveen, Meppel en de A28.
?? Aanvaarding
Aanvaarding kan plaatsvinden in 2026.
?? Interesse?
Ben je op zoek naar een representatieve en toekomstbestendige bedrijfsruimte met flexibiliteit in grootte en gebruik?
Neem gerust contact met ons op voor meer informatie of om de mogelijkheden te bespreken.
Op een goed bereikbare locatie in Zuidwolde bieden wij deze nieuw te realiseren bedrijfsruimte aan met een totale verhuurbare oppervlakte van ca. 334 m². De bedrijfsruimte is praktisch van opzet en kan worden opgedeeld in meerdere zelfstandige units, maar is op dit moment ook in zijn geheel te huur. Dit maakt het object interessant voor zowel ondernemers die ruimte zoeken voor eigen gebruik als voor partijen die juist een kleinere unit wensen.
Met een vrije hoogte van ca. 4,7 meter is de ruimte bovendien zeer geschikt voor opslag, stellingen of andere bedrijfsactiviteiten waarbij extra hoogte gewenst is.
In 2026 wordt de bedrijfsruimte rondom vernieuwd, waarbij onder andere wordt voorzien in:
- Nieuwe geïsoleerde vloeren
- Nieuwe buitengevels met isolatie
- Nieuwe geïsoleerde dakelementen
Dit zorgt voor een modern en duurzaam geheel met een prettiger werkklimaat en lagere energielasten.
Indeling & mogelijkheden
De ruimte kan worden verdeeld in drie units:
Unit 1: ca. 124 m²
Unit 2: ca. 83 m²
Unit 3: ca. 127 m²
Bij opsplitsing wordt iedere unit voorzien van:
- Een eigen overheaddeur (geschikt voor laden en lossen)
- Een separate loopdeur
- Toiletvoorziening (wc)
- Meterkast
- Krachtstroomaansluiting
Daarnaast behoort het aanbrengen van een gedeeltelijke verdiepingsvloer tot de mogelijkheden (in overleg), waarmee extra opslag- of kantoorruimte kan worden gecreëerd.
Dankzij de rechthoekige vorm en de vrije overspanning is de ruimte efficiënt en flexibel te gebruiken.
Huurprijs
De huurprijs bedraagt € 80,- per m² per jaar, exclusief BTW
Huurvoorwaarden
- Huurtermijn in overleg
* Verhuur van zowel afzonderlijke units als het geheel mogelijk
- Gunning voorbehouden aan verhuurder
?? Sterke punten
- Totale oppervlakte ca. 334 m²
- Vrije hoogte ca. 4,7 meter
- Flexibel: zowel in zijn geheel als in units te huur
- Mogelijkheid tot realiseren van een verdiepingsvloer (in overleg)
- Bedrijfsruimte wordt in 2026 volledig vernieuwd en geïsoleerd
- Voorzien van wc, meterkast en krachtstroom per unit
- Ruime parkeergelegenheid
- Praktische en efficiënte indeling
- Geschikt voor o.a. opslag, werkplaats of lichte bedrijfsactiviteiten
?? Ligging
Gelegen in Zuidwolde, een actief en ondernemend dorp met een compleet voorzieningenaanbod. De bereikbaarheid is goed, met vlotte verbindingen richting Hoogeveen, Meppel en de A28.
?? Aanvaarding
Aanvaarding kan plaatsvinden in 2026.
?? Interesse?
Ben je op zoek naar een representatieve en toekomstbestendige bedrijfsruimte met flexibiliteit in grootte en gebruik?
Neem gerust contact met ons op voor meer informatie of om de mogelijkheden te bespreken.
Kenmerken
Overdracht
- Huurprijs
- € 80 per vierkante meter per jaar
- Aangeboden sinds
-
- Status
- Beschikbaar
- Aanvaarding
- In overleg
Bouw
- Hoofdfunctie
- Bedrijfshal
- Soort bouw
- Bestaande bouw
- Bouwjaar
- Momenteel in aanbouw
Oppervlakten
- Oppervlakte
- 334 m² (in units vanaf 83 m²)
- Bedrijfshal oppervlak
- 334 m²
- Vrije hoogte
- 4,7 m
Indeling
- Voorzieningen
- Overheaddeuren, krachtstroom, betonvloer en toilet
Energie
- Energielabel
- Niet verplicht
Omgeving
- Ligging
- Bedrijventerrein
NVM makelaar
Foto's