Oudezijds Voorburgwal 141-2 1012 ES Amsterdam
€ 890.000 k.k.

Omschrijving
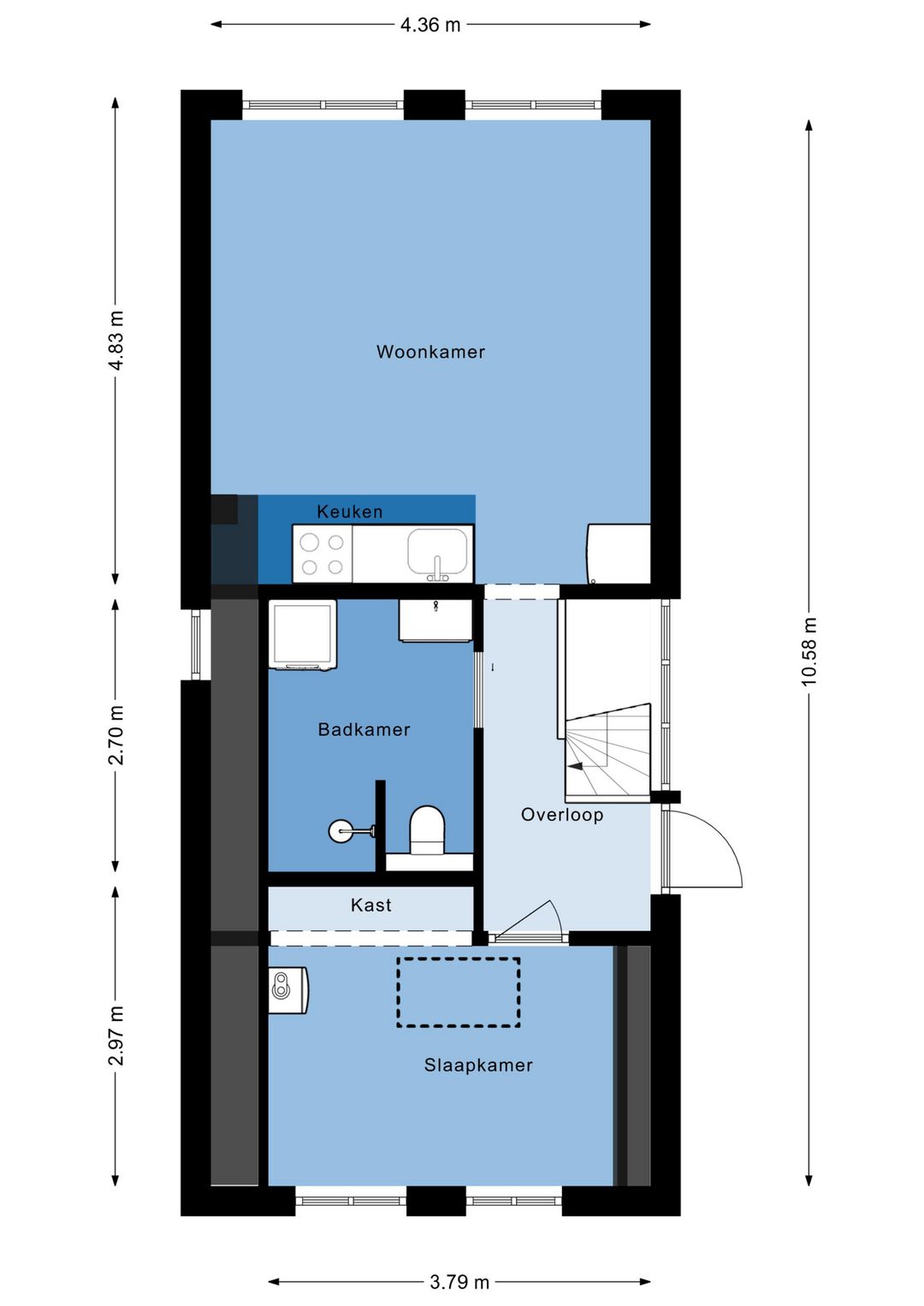
Eigen bewoning combineren met belegging! Te koop aangeboden een bovenstuk bestaande uit drie woningen waarvan de woning op de tweede etage leeg wordt opgeleverd. Het pand ligt op eigen grond en gelegen in het historische centrum. Het bovenstuk is ongesplitst en bestaat uit 3 zelfstandige (boven)woningen. De totale woonoppervlakte bedraagt circa 157 m² waarvan ca. 54m2 leeg wordt opgeleverd. Vraag de makelaar naar de bijzonderheden.
Oudezijds Voorburgwal 141-I
Bovenwoning van circa 54 m². Thans verhuurd voor € 21.090,96 per jaar.
WOZ-waarde € 397.000 (peildatum 1 januari 2024).
Oudezijds Voorburgwal 141-II
Bovenwoning van circa 54 m². Leeg.
WOZ-waarde € 454.000 (peildatum 1 januari 2024).
Oudezijds Voorburgwal 141-III
Bovenwoning van circa 49 m². Thans verhuurd voor € 12.471,60 per jaar.
WOZ-waarde € 337.000 (peildatum 1 januari 2024).
DE LIGGING
Het pand is gelegen op een van de oudste en meest centrale locaties van Amsterdam. Het is een levendige buurt met vele terrassen, horecagelegenheden én langsvarende boten. Een plek waar de hechte gemeenschap van bewoners en ondernemers nog steeds voelbaar is. Naast diverse supermarkten op loopafstand, kent de buurt ook ambachtelijke bakkers, slagers, groenteboeren en vishandels en is er op de Nieuwmarkt elke week op zaterdag een biologische markt met een ruim aanbod aan producten. Binnen een straal van 1 kilometer bevinden zich verschillende highlights zoals de Bijenkorf, W Hotel, Soho House, the Dutches, Grand Hotel Krasnapolsky, Hotel V, het Paleis op de Dam en Gassan Diamonds. Op nog geen 5 minuten fietsen, vind je de bekende 9 straatjes vol hippe winkels en boetieks.
BIJZONDERHEDEN
- Appartementsrecht bestaande uit 3 zelfstandige bovenwoningen;
- Huur met leegstand 2e etage € 33.562,56 per jaar;
- Totale gebruiksoppervlakte van circa 157 m²;
- Er is sprake is van eigen grond;
- Gelegen in het historische hart van de stad;
- Projectnotaris Legal Loyalty;
- Ouderdomsclausule, asbestclausule, "as is where is" en verklaring niet-eigen bewoning zijn van toepassing.
Oudezijds Voorburgwal 141-I
Bovenwoning van circa 54 m². Thans verhuurd voor € 21.090,96 per jaar.
WOZ-waarde € 397.000 (peildatum 1 januari 2024).
Oudezijds Voorburgwal 141-II
Bovenwoning van circa 54 m². Leeg.
WOZ-waarde € 454.000 (peildatum 1 januari 2024).
Oudezijds Voorburgwal 141-III
Bovenwoning van circa 49 m². Thans verhuurd voor € 12.471,60 per jaar.
WOZ-waarde € 337.000 (peildatum 1 januari 2024).
DE LIGGING
Het pand is gelegen op een van de oudste en meest centrale locaties van Amsterdam. Het is een levendige buurt met vele terrassen, horecagelegenheden én langsvarende boten. Een plek waar de hechte gemeenschap van bewoners en ondernemers nog steeds voelbaar is. Naast diverse supermarkten op loopafstand, kent de buurt ook ambachtelijke bakkers, slagers, groenteboeren en vishandels en is er op de Nieuwmarkt elke week op zaterdag een biologische markt met een ruim aanbod aan producten. Binnen een straal van 1 kilometer bevinden zich verschillende highlights zoals de Bijenkorf, W Hotel, Soho House, the Dutches, Grand Hotel Krasnapolsky, Hotel V, het Paleis op de Dam en Gassan Diamonds. Op nog geen 5 minuten fietsen, vind je de bekende 9 straatjes vol hippe winkels en boetieks.
BIJZONDERHEDEN
- Appartementsrecht bestaande uit 3 zelfstandige bovenwoningen;
- Huur met leegstand 2e etage € 33.562,56 per jaar;
- Totale gebruiksoppervlakte van circa 157 m²;
- Er is sprake is van eigen grond;
- Gelegen in het historische hart van de stad;
- Projectnotaris Legal Loyalty;
- Ouderdomsclausule, asbestclausule, "as is where is" en verklaring niet-eigen bewoning zijn van toepassing.
Kenmerken
Overdracht
- Vraagprijs
- € 890.000 kosten koper
- Aangeboden sinds
-
- Status
- Beschikbaar
- Aanvaarding
- In overleg
Bouw
- Hoofdfunctie
- Belegging
- Soort bouw
- Bestaande bouw
- Bouwjaar
- Voor 1906
Oppervlakten
- Oppervlakte
- 157 m²
- Perceel
- 78 m²
Energie
- Energielabel
- Niet beschikbaar
Omgeving
- Ligging
- Stadscentrum/dorpskern
Beleggingsobject
- Bruto huuropbrengst
- € 33.562 per jaar
- Huurders
- 3 huurders
NVM makelaar
Foto's








