Sint Jacobsstraat 18 8911 HV Leeuwarden
- Nieuw
€ 445.000 k.k.

Omschrijving
Gelegen in het centrum van Leeuwarden bevindt zich dit karakteristieke pand welke in gebruik is als restaurant met onzelfstandige bovenwoning. Het pand is thans in haar geheel verhuurd aan restaurant Yucatan welke hier al sinds 1986 gevestigd is.
Locatie
De Sint Jacobsstraat ligt tegen het kernwinkelgebied van Leeuwarden aan en is op zichzelf een fraaie straat waarin veel zelfstandige ondernemers hun speciaalzaak of horeca gelegenheid runnen. De ondernemers in deze straat weten mede hierdoor hun specifieke consumentendoelgroep goed aan te spreken.
Parkeren
In de directe omgeving zijn diverse mogelijkheden om te parkeren. Betaald parkeren is van toepassing in de meeste straten rondom het centrum, waaronder de Sint Jacobstraat zelf. Voor bezoekers zijn er ook meerdere parkeergarages in de buurt, zoals de Oldehovegarage, Hoeksterendgarage en de Zaailandgarage, waar je veilig en overdekt kunt parkeren
Oppervlakte
De totale vloeroppervlakte bedraagt: circa 279 m² bvo en circa 210 m² vvo, verdeeld over:
- Begane grond: circa 103 m² bvo en circa 82 m² vvo.
- Eerste verdieping: circa 86,5 m² bvo en circa 65,3 m2 vvo.
- Tweede verdieping: circa 75,7 m² bvo en circa 54,4 m² vvo.
- Kelder: circa 13,6 m² bvo en 8,50 m² vvo.
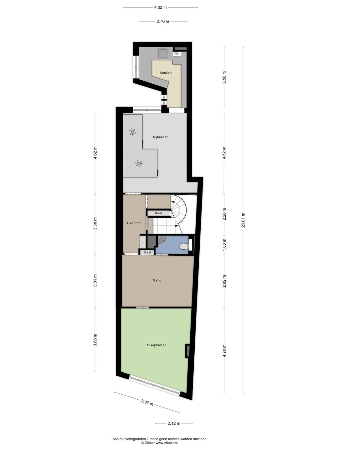
Indeling onder meer
- Begane grond: entree, keuken, bedrijfsruimte, opslag, toiletten, trap naar;
- Eerste verdieping: overloop, toilet, 2 vertrekken, bergruimte/opslag, bijkeuken, keuken;
- Tweede verdieping: overloop, badkamer, keuken, 2 vertrekken, bergruimte/opslag, terras.
- Kelderruimte
Huurgegevens
Huurder: restaurant Yucatan (gevestigd sinds 1986)
Huurprijs: € 42.567,= per jaar, te vermeerderen met BTW
Huuringangsdatum: 1 oktober 2011
Huurtermijn: 5+5 jaren
Opzegtermijn: 12 maanden
Bestemmingsplan:
Binnenstad – gemeente Leeuwarden, vastgesteld op 17 december 2017.
Bestemming: Enkelbestemming Centrum 3, Dubbelbestemming: Waarde Archeologie 3 en Beschermd Stadsgezicht.
Energielabel
Het pand betreft een gemeentelijk monument, hierdoor is het niet energielabel plichtig.
VERKOOPVOORWAARDEN
Vraagprijs
€ 445.000,- kosten koper.
Aanvaarding
In overleg.
Bijzonderheden
Levering onder de conditie "as is, where is".
Waarborgsom/bankgarantie
Bij het tot stand komen van een koopovereenkomst dient koper 10% borgsom te storten c.q. een bankgarantie ter grootte van 10% van de koopsom af te geven bij de notaris.
Meer informatie over dit object?
Voor meer informatie en/of het maken van een afspraak kunt u contact opnemen met Tjibbe-Jan Boringa, Jeroen van Reenen, Levi Huijser of Linda van Es, telefoon 0513 - 644 355 of 058 - 204 0000 of stuur een e-mail naar info @ rbmt .nl
DISCLAIMER
Deze informatie (inclusief bijlagen) van "RBMT Bedrijfsmakelaars & Taxateurs Noord-Nederland B.V. " is met grote zorgvuldigheid samengesteld. Voor mogelijke onjuistheid en/of onvolledigheid van de verstrekte informatie kan "RBMT Bedrijfsmakelaars & Taxateurs Noord-Nederland B.V. " geen aansprakelijkheid aanvaarden, evenmin kunnen aan de inhoud van deze informatie (inclusief bijlagen) rechten worden ontleend. Deze informatie is geheel vrijblijvend en niet meer dan een uitnodiging tot het doen van een voorstel.
Locatie
De Sint Jacobsstraat ligt tegen het kernwinkelgebied van Leeuwarden aan en is op zichzelf een fraaie straat waarin veel zelfstandige ondernemers hun speciaalzaak of horeca gelegenheid runnen. De ondernemers in deze straat weten mede hierdoor hun specifieke consumentendoelgroep goed aan te spreken.
Parkeren
In de directe omgeving zijn diverse mogelijkheden om te parkeren. Betaald parkeren is van toepassing in de meeste straten rondom het centrum, waaronder de Sint Jacobstraat zelf. Voor bezoekers zijn er ook meerdere parkeergarages in de buurt, zoals de Oldehovegarage, Hoeksterendgarage en de Zaailandgarage, waar je veilig en overdekt kunt parkeren
Oppervlakte
De totale vloeroppervlakte bedraagt: circa 279 m² bvo en circa 210 m² vvo, verdeeld over:
- Begane grond: circa 103 m² bvo en circa 82 m² vvo.
- Eerste verdieping: circa 86,5 m² bvo en circa 65,3 m2 vvo.
- Tweede verdieping: circa 75,7 m² bvo en circa 54,4 m² vvo.
- Kelder: circa 13,6 m² bvo en 8,50 m² vvo.
Indeling onder meer
- Begane grond: entree, keuken, bedrijfsruimte, opslag, toiletten, trap naar;
- Eerste verdieping: overloop, toilet, 2 vertrekken, bergruimte/opslag, bijkeuken, keuken;
- Tweede verdieping: overloop, badkamer, keuken, 2 vertrekken, bergruimte/opslag, terras.
- Kelderruimte
Huurgegevens
Huurder: restaurant Yucatan (gevestigd sinds 1986)
Huurprijs: € 42.567,= per jaar, te vermeerderen met BTW
Huuringangsdatum: 1 oktober 2011
Huurtermijn: 5+5 jaren
Opzegtermijn: 12 maanden
Bestemmingsplan:
Binnenstad – gemeente Leeuwarden, vastgesteld op 17 december 2017.
Bestemming: Enkelbestemming Centrum 3, Dubbelbestemming: Waarde Archeologie 3 en Beschermd Stadsgezicht.
Energielabel
Het pand betreft een gemeentelijk monument, hierdoor is het niet energielabel plichtig.
VERKOOPVOORWAARDEN
Vraagprijs
€ 445.000,- kosten koper.
Aanvaarding
In overleg.
Bijzonderheden
Levering onder de conditie "as is, where is".
Waarborgsom/bankgarantie
Bij het tot stand komen van een koopovereenkomst dient koper 10% borgsom te storten c.q. een bankgarantie ter grootte van 10% van de koopsom af te geven bij de notaris.
Meer informatie over dit object?
Voor meer informatie en/of het maken van een afspraak kunt u contact opnemen met Tjibbe-Jan Boringa, Jeroen van Reenen, Levi Huijser of Linda van Es, telefoon 0513 - 644 355 of 058 - 204 0000 of stuur een e-mail naar info @ rbmt .nl
DISCLAIMER
Deze informatie (inclusief bijlagen) van "RBMT Bedrijfsmakelaars & Taxateurs Noord-Nederland B.V. " is met grote zorgvuldigheid samengesteld. Voor mogelijke onjuistheid en/of onvolledigheid van de verstrekte informatie kan "RBMT Bedrijfsmakelaars & Taxateurs Noord-Nederland B.V. " geen aansprakelijkheid aanvaarden, evenmin kunnen aan de inhoud van deze informatie (inclusief bijlagen) rechten worden ontleend. Deze informatie is geheel vrijblijvend en niet meer dan een uitnodiging tot het doen van een voorstel.
Kenmerken
Overdracht
- Vraagprijs
- € 445.000 kosten koper
- Aangeboden sinds
-
- Status
- Beschikbaar
- Aanvaarding
- In overleg
Bouw
- Hoofdfunctie
- Belegging
- Soort bouw
- Bestaande bouw
- Bouwjaar
- 1900
Oppervlakten
- Oppervlakte
- 279 m²
- Perceel
- 108 m²
Energie
- Energielabel
- Niet beschikbaar
Omgeving
- Ligging
- Stadscentrum/dorpskern
- Bereikbaarheid
- Bushalte op 500 m tot 1000 m, NS Intercitystation op 2000 m tot 3000 m en snelwegafrit op 3000 m tot 4000 m
Beleggingsobject
- Bruto huuropbrengst
- € 42.567 per jaar
- Huurders
- 1 huurder
- Verhuurd
- 279 m²
Foto's






























