Hartogsweg 8271 PE IJsselmuiden
Price on request

Description
ALGEMEEN
Ben je op zoek naar een ruime schuur met praktische indeling en functionele eigenschappen? Deze schuur, gelegen in de Koekoekspolder, biedt zowel een solide werkruimte als opslagmogelijkheden. Dankzij de royale afmetingen en de aanwezigheid van een verdiepingsvloer is het object breed inzetbaar voor uiteenlopende agrarische activiteiten.
LOCATIE/LIGGING
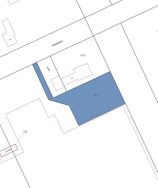
De schuur bevindt zich nabij de Hartogsweg 21 in de Koekoekspolder, een bekend agrarisch gebied op respectabele afstand van stedelijke voorzieningen. Deze ligging combineert de rust en ruimte van het buitengebied met een goede bereikbaarheid. Een praktische uitvalsbasis voor agrarische bedrijvigheid.
BEGANE GROND
De begane grond van de schuur heeft een oppervlakte van circa 12 x 9 meter en is voorzien van een betonvloer met betonvoet. De entree bestaat uit een deur met een hoogte van 2,30 meter, waarmee de ruimte toegankelijk is voor machines en materialen van standaardformaat. Het houten spant en de damwandconstructie zorgen voor een functionele opzet. Een deel van het perceel, circa 400 m², is verhard met beton en biedt daarmee extra gebruiksgemak voor opslag en manoeuvreerruimte.
VERDIEPING
De schuur beschikt over een houten verdiepingsvloer die extra ruimte biedt voor opslag of lichte werkzaamheden. Deze verdieping maakt het mogelijk om de beschikbare ruimte doelmatig te benutten en biedt flexibiliteit in het gebruik.
KENMERKEN OP EEN RIJ
• Afmetingen: 12 x 9 meter
• Vloer: Betonvloer met betonvoet
• Constructie: Houten spant met damwand
• Dak: Golfplaten, asbesthoudend
• Toegang: Deur met hoogte van 2,30 meter
• Perceel: 824 m², waarvan circa 400 m² verhard met beton
• Verdieping aanwezig
• Ligging: Koekoekspolder, agrarische bestemming
JOUW NIEUWE SCHUUR IN DE KOEKOEKSPOLDER
Zie jij de mogelijkheden van deze praktische schuur en het royale perceel in de Koekoekspolder? Wacht dan niet langer en ontdek de ruimte die dit object jou kan bieden. Neem vandaag nog contact met ons op voor meer informatie of een bezichtiging. Deze schuur staat klaar om jouw agrarische activiteiten te ondersteunen en uit te breiden.
Ben je op zoek naar een ruime schuur met praktische indeling en functionele eigenschappen? Deze schuur, gelegen in de Koekoekspolder, biedt zowel een solide werkruimte als opslagmogelijkheden. Dankzij de royale afmetingen en de aanwezigheid van een verdiepingsvloer is het object breed inzetbaar voor uiteenlopende agrarische activiteiten.
LOCATIE/LIGGING
De schuur bevindt zich nabij de Hartogsweg 21 in de Koekoekspolder, een bekend agrarisch gebied op respectabele afstand van stedelijke voorzieningen. Deze ligging combineert de rust en ruimte van het buitengebied met een goede bereikbaarheid. Een praktische uitvalsbasis voor agrarische bedrijvigheid.
BEGANE GROND
De begane grond van de schuur heeft een oppervlakte van circa 12 x 9 meter en is voorzien van een betonvloer met betonvoet. De entree bestaat uit een deur met een hoogte van 2,30 meter, waarmee de ruimte toegankelijk is voor machines en materialen van standaardformaat. Het houten spant en de damwandconstructie zorgen voor een functionele opzet. Een deel van het perceel, circa 400 m², is verhard met beton en biedt daarmee extra gebruiksgemak voor opslag en manoeuvreerruimte.
VERDIEPING
De schuur beschikt over een houten verdiepingsvloer die extra ruimte biedt voor opslag of lichte werkzaamheden. Deze verdieping maakt het mogelijk om de beschikbare ruimte doelmatig te benutten en biedt flexibiliteit in het gebruik.
KENMERKEN OP EEN RIJ
• Afmetingen: 12 x 9 meter
• Vloer: Betonvloer met betonvoet
• Constructie: Houten spant met damwand
• Dak: Golfplaten, asbesthoudend
• Toegang: Deur met hoogte van 2,30 meter
• Perceel: 824 m², waarvan circa 400 m² verhard met beton
• Verdieping aanwezig
• Ligging: Koekoekspolder, agrarische bestemming
JOUW NIEUWE SCHUUR IN DE KOEKOEKSPOLDER
Zie jij de mogelijkheden van deze praktische schuur en het royale perceel in de Koekoekspolder? Wacht dan niet langer en ontdek de ruimte die dit object jou kan bieden. Neem vandaag nog contact met ons op voor meer informatie of een bezichtiging. Deze schuur staat klaar om jouw agrarische activiteiten te ondersteunen en uit te breiden.
Features
Transfer of ownership
- Asking price
- Price on request
- Listed since
-
- Status
- Available
- Acceptance
- Available in consultation
Construction
- Main use
- Other
- Building type
- Resale property
Cadastral data
-
IJSSELMUIDEN I 2244
- Cadastral map
- Ownership situation
- 0 ha 8 a 24 ca (whole parcel)
Real estate agent
Photos









