De Koningstraat 70 5984 NJ Koningslust
Price on request

Description
In het buitengebied van Koningslust ligt deze champignonkwekerij met twee bedrijfswoningen. De kwekerij beschikt over 15 cellen à 972 m², totaal 14.580 m². Tot het bedrijf behoren tevens twee bedrijfswoningen. Het geheel heeft een oppervlakte van 2.47.56 ha.
De locatie is gelegen aan de Koningstraat en op korte afstand zijn de voorzieningen aanwezig in Maasbree, Panningen en Sevenum. Alle drie de dorpen zijn op een aantal autominuten gelegen. De snelweg A67 is tevens gemakkelijk en snel te bereiken. Het bedrijf is in zijn hoedanigheid geschikt voor agrarische doeleinden in combinatie met wonen. De woningen betreffen vrijstaande woningen. De kwekerij leent zich fysiek ook voor alternatieve mogelijkheden, zoals opslagruimte.
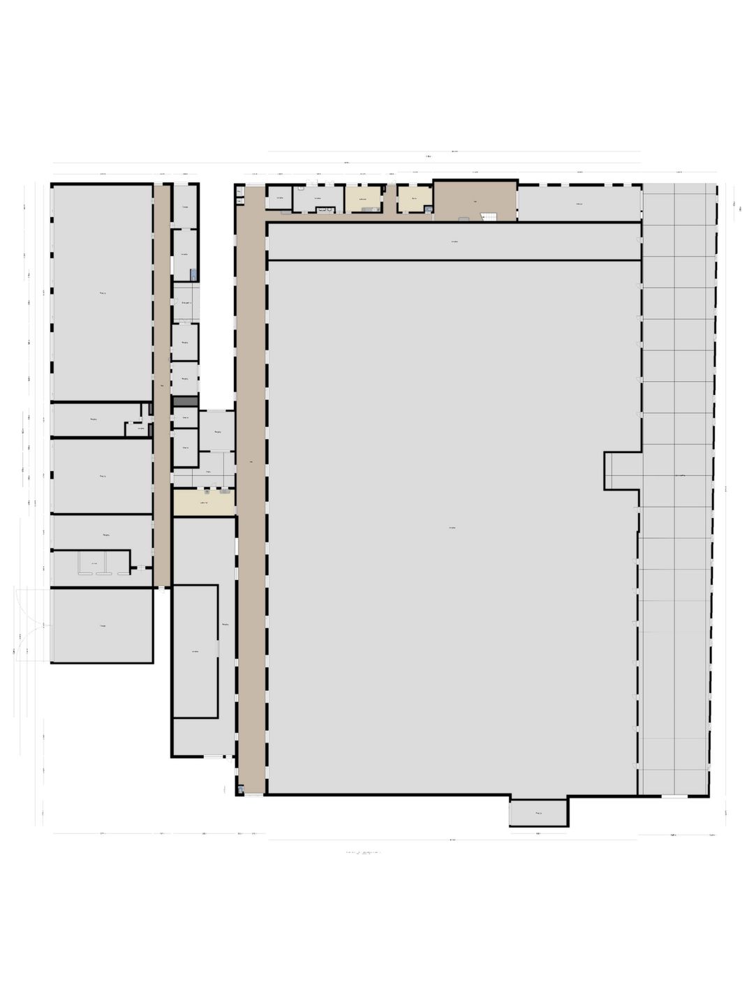
Champignonkwekerij
De kwekerij is gebouwd in 1985-2000 en is opgetrokken uit steen (spouw) met kalkzandsteen binnenwanden en sandwichpanelen tussenwanden. Het dak is met gedeeltelijk asbesthoudende en gedeeltelijk asbestvrije golfplaten gedekt. De dragende constructie bestaat uit stalen spanten. De vloer is uitgevoerd in gevlinderd beton. De kwekerij heeft een oppervlakte van ca. 7.519 m² en is voorzien van diverse roldeuren.
Indeling:
- werkgang;
- koelcel, oppervlakte 4,00 x 4,00 = 16 m²;
- ketelhuis;
- kantine met tegelvloer, keukenblok;
- kantoor met toiletten;
- watervoorraadruimte met grondpomp en eigen waterbron;
- koel- en opslagruimte;
- fustopslag;
- extra koelruimte (achterzijde, oppervlakte 9,25 x 4,20 = ca. 40 m²
- 15 celen, 2 x 6 etages, 972 m², teeltoppervlakte per cel, type snijbedrijf, vloeroppervlakte 60,00 x
6,00 = 360 m², stalen stellingen, schuifdeuren, champi-lamp (hoog frequent) tl-verlichting,
overdruksysteem, separaat watersysteem voor bespoeiing en schoonspuiten cellen en
werkgang.
Regelapparatuur:
koeling freon rondpompsysteem (2008), stoomketel Viessmanna met onharder (2000/2001), cv-ketel: Viessmann (2000/2001), klimaatcomputer Fancom (2000/2001), spoei-installatie Dofra (2000/2001), klimaatunit boven elke cel.
Opslagloods
De opslagloods is gebouwd in 1965 en is opgetrokken uit betonsteen (spouw) met binnenwanden van gasbeton. Het dak is voorzien van asbesthoudende golfplaten (voorzien van dakisolatie (glaswol)). De dragende constructie bestaat uit houten spanten. De vloer is uitgevoerd in beton. De loods heeft een oppervlakte van ca. 1.330 m² en is voorzien van schuifdeuren van geïsoleerd damwand.
De Koningstraat 72
Gebouwd in 1991 en recent nog verbouwd met een nieuwe keuken en opgetrokken uit steen (spouw) met een pannendak. De begane grondvloer en de eerste verdiepingsvloer zijn uitgevoerd in beton, de tweede verdiepingsvloer is uitgevoerd in hout. De woning beschikt over dubbel glas in kunststof kozijnen. Verwarming en warmwatervoorziening door middel van een HR-combiketel (bouwjaar 2010). Tevens is er een elektrische boiler aanwezig. Er is vloer-, muur- en dakisolatie toegepast. Op het dak zijn 16 zonnepanelen geplaatst.
U betreedt de woning via de hal waar zich de trapopgang naar de eerste verdieping, meterkast en separate toiletruimte bevinden. Vanuit de hal zijn de woonkamer met open keuken te bereiken. De woonkamer is erg licht vanwege de grote raampartijen. De keuken beschikt over een keukenblok in rechte wandopstelling met diverse inbouwapparatuur. De bijkeuken heeft een eigen toegangsdeur en hier bevinden zich de aansluitingen ten behoeve van de wasapparatuur. Tevens is er nog een werk-/speelkamer aanwezig op de begane grond.
De eerste verdieping beschikt over een overloop, badkamer en vier slaapkamers. De badkamer is ingericht met een douche, ligbad, toilet en vaste wastafel.
De tweede verdieping is via een vlizotrap bereikbaar en betreft een open bergzolder.
Achter de woning heeft u de beschikking over een groene achtertuin. Onder een overkapping is een gezellig zitgedeelte gecreëerd. Daarnaast is de tuin voorzien van een gazon en diverse vaste beplantingen.
De Koningstraat 70
Gebouwd in 1965 en opgetrokken uit steen (spouw) met een pannendak. De begane grondvloer is uitgevoerd in beton en de verdiepingsvloer is uitgevoerd in hout. De beschikt over enkele beglazing in houten kozijnen. Verwarming en warmwater geschiedt door middel van een HR-combiketel (bouwjaar 2008). Er is vloer-, muur- en dakisolatie toegepast. De woning is voorzien van rolluiken. Op het dak zijn 12 zonnepanelen geplaatst.
Diversen
- compostvloer ca. 12,00 m1 breed, geheel overdekt met asbestvrije golfplaten, lengte ca. 97,00 m1;
- erfverharding met beton, oppervlakte ca. 400 m²;
- drie bezinkbassins.
Overige bijzonderheden
Nutsvoorzieningen: het object is aangesloten op de voorzieningen aardgas, water, elektra, (druk)riolering en glasvezel.
Onderhoudstoestand: het object verkeerd in een goede staat van onderhoud.
BTW: het object is niet met BTW belast.
Beschikbaarheid: het object is in overleg beschikbaar.
Locatie
De locatie is gelegen aan de Koningstraat en op korte afstand zijn de voorzieningen aanwezig in Maasbree, Panningen en Sevenum. Alle drie de dorpen zijn op een aantal autominuten gelegen. De snelweg A67 is tevens gemakkelijk en snel te bereiken.
De locatie is gelegen aan de Koningstraat en op korte afstand zijn de voorzieningen aanwezig in Maasbree, Panningen en Sevenum. Alle drie de dorpen zijn op een aantal autominuten gelegen. De snelweg A67 is tevens gemakkelijk en snel te bereiken. Het bedrijf is in zijn hoedanigheid geschikt voor agrarische doeleinden in combinatie met wonen. De woningen betreffen vrijstaande woningen. De kwekerij leent zich fysiek ook voor alternatieve mogelijkheden, zoals opslagruimte.
Champignonkwekerij
De kwekerij is gebouwd in 1985-2000 en is opgetrokken uit steen (spouw) met kalkzandsteen binnenwanden en sandwichpanelen tussenwanden. Het dak is met gedeeltelijk asbesthoudende en gedeeltelijk asbestvrije golfplaten gedekt. De dragende constructie bestaat uit stalen spanten. De vloer is uitgevoerd in gevlinderd beton. De kwekerij heeft een oppervlakte van ca. 7.519 m² en is voorzien van diverse roldeuren.
Indeling:
- werkgang;
- koelcel, oppervlakte 4,00 x 4,00 = 16 m²;
- ketelhuis;
- kantine met tegelvloer, keukenblok;
- kantoor met toiletten;
- watervoorraadruimte met grondpomp en eigen waterbron;
- koel- en opslagruimte;
- fustopslag;
- extra koelruimte (achterzijde, oppervlakte 9,25 x 4,20 = ca. 40 m²
- 15 celen, 2 x 6 etages, 972 m², teeltoppervlakte per cel, type snijbedrijf, vloeroppervlakte 60,00 x
6,00 = 360 m², stalen stellingen, schuifdeuren, champi-lamp (hoog frequent) tl-verlichting,
overdruksysteem, separaat watersysteem voor bespoeiing en schoonspuiten cellen en
werkgang.
Regelapparatuur:
koeling freon rondpompsysteem (2008), stoomketel Viessmanna met onharder (2000/2001), cv-ketel: Viessmann (2000/2001), klimaatcomputer Fancom (2000/2001), spoei-installatie Dofra (2000/2001), klimaatunit boven elke cel.
Opslagloods
De opslagloods is gebouwd in 1965 en is opgetrokken uit betonsteen (spouw) met binnenwanden van gasbeton. Het dak is voorzien van asbesthoudende golfplaten (voorzien van dakisolatie (glaswol)). De dragende constructie bestaat uit houten spanten. De vloer is uitgevoerd in beton. De loods heeft een oppervlakte van ca. 1.330 m² en is voorzien van schuifdeuren van geïsoleerd damwand.
De Koningstraat 72
Gebouwd in 1991 en recent nog verbouwd met een nieuwe keuken en opgetrokken uit steen (spouw) met een pannendak. De begane grondvloer en de eerste verdiepingsvloer zijn uitgevoerd in beton, de tweede verdiepingsvloer is uitgevoerd in hout. De woning beschikt over dubbel glas in kunststof kozijnen. Verwarming en warmwatervoorziening door middel van een HR-combiketel (bouwjaar 2010). Tevens is er een elektrische boiler aanwezig. Er is vloer-, muur- en dakisolatie toegepast. Op het dak zijn 16 zonnepanelen geplaatst.
U betreedt de woning via de hal waar zich de trapopgang naar de eerste verdieping, meterkast en separate toiletruimte bevinden. Vanuit de hal zijn de woonkamer met open keuken te bereiken. De woonkamer is erg licht vanwege de grote raampartijen. De keuken beschikt over een keukenblok in rechte wandopstelling met diverse inbouwapparatuur. De bijkeuken heeft een eigen toegangsdeur en hier bevinden zich de aansluitingen ten behoeve van de wasapparatuur. Tevens is er nog een werk-/speelkamer aanwezig op de begane grond.
De eerste verdieping beschikt over een overloop, badkamer en vier slaapkamers. De badkamer is ingericht met een douche, ligbad, toilet en vaste wastafel.
De tweede verdieping is via een vlizotrap bereikbaar en betreft een open bergzolder.
Achter de woning heeft u de beschikking over een groene achtertuin. Onder een overkapping is een gezellig zitgedeelte gecreëerd. Daarnaast is de tuin voorzien van een gazon en diverse vaste beplantingen.
De Koningstraat 70
Gebouwd in 1965 en opgetrokken uit steen (spouw) met een pannendak. De begane grondvloer is uitgevoerd in beton en de verdiepingsvloer is uitgevoerd in hout. De beschikt over enkele beglazing in houten kozijnen. Verwarming en warmwater geschiedt door middel van een HR-combiketel (bouwjaar 2008). Er is vloer-, muur- en dakisolatie toegepast. De woning is voorzien van rolluiken. Op het dak zijn 12 zonnepanelen geplaatst.
Diversen
- compostvloer ca. 12,00 m1 breed, geheel overdekt met asbestvrije golfplaten, lengte ca. 97,00 m1;
- erfverharding met beton, oppervlakte ca. 400 m²;
- drie bezinkbassins.
Overige bijzonderheden
Nutsvoorzieningen: het object is aangesloten op de voorzieningen aardgas, water, elektra, (druk)riolering en glasvezel.
Onderhoudstoestand: het object verkeerd in een goede staat van onderhoud.
BTW: het object is niet met BTW belast.
Beschikbaarheid: het object is in overleg beschikbaar.
Locatie
De locatie is gelegen aan de Koningstraat en op korte afstand zijn de voorzieningen aanwezig in Maasbree, Panningen en Sevenum. Alle drie de dorpen zijn op een aantal autominuten gelegen. De snelweg A67 is tevens gemakkelijk en snel te bereiken.
Features
Transfer of ownership
- Asking price
- Price on request
- Listed since
-
- Status
- Available
- Acceptance
- Available in consultation
Construction
- Main use
- Other
- Building type
- Resale property
- Constructions
- 4 constructions (year of construction between 1965 and 1991)
Surface areas
- Total area
- 2 ha 47 a 56 ca
- House plots
- 2 ha 47 a 56 ca
Living space
- Company houses
- 2
-
Main residence
- Volume
- 694 m³
- Year of construction
- 1965
Cadastral data
-
HELDEN R 330
- Cadastral map
- Ownership situation
- 0 ha 11 a 40 ca (whole parcel)
-
HELDEN R 331
- Ownership situation
- 0 ha 43 a 98 ca (whole parcel)
-
HELDEN R 334
- Ownership situation
- 0 ha 64 a 17 ca (whole parcel)
-
HELDEN R 433
- Ownership situation
- 0 ha 88 a 50 ca (whole parcel)
-
HELDEN R 476
- Ownership situation
- 0 ha 29 a 82 ca (whole parcel)
-
HELDEN R 477
- Ownership situation
- 0 ha 9 a 65 ca (whole parcel)
-
HELDEN R 332
- Ownership situation
- 0 ha 0 a 4 ca (whole parcel)
NVM real estate agent
Photos












































