Description
Stijlvol werken op een toplocatie aan de Rivium Boulevard.
Dit hoogwaardige kantoor maakt onderdeel uit van het volledig vernieuwde kantoorgebouw The Botanic Rotterdam, gelegen op een prominente locatie aan de Rivium Boulevard in Capelle aan den IJssel. Het gebouw ondergaat momenteel een complete transformatie waarbij duurzaamheid, comfort en uitstraling centraal staan. De directe omgeving ontwikkelt zich in hoog tempo tot een moderne stadswijk en businesspark, waar de komende jaren ruim 5.000 nieuwe woningen worden gerealiseerd, aangevuld met diverse toekomstige voorzieningen en faciliteiten. Hierdoor ontstaat een levendige, gemengde omgeving met een sterk vestigingsklimaat.
De locatie is uitstekend bereikbaar per auto en openbaar vervoer en beschikt over een aantrekkelijk voorzieningenaanbod met onder meer horeca (zoals het Zalmhuis) en een hotel. Dit maakt The Botanic een ideale vestigingsplek voor bedrijven die zich strategisch willen positioneren nabij Rotterdam en de directe regio.
De kantoorruimtes zijn stijlvol, efficiënt en flexibel ingericht, met veel daglicht en een hoogwaardige afwerking. De units beschikken over moderne werkplekken, spreekkamers, focusruimtes, pantry’s en representatieve ontvangstruimtes. Daarnaast profiteren gebruikers van diverse gedeelde faciliteiten, waaronder een luxe receptie en een sfeervolle coffeelounge waar gewerkt en ontvangen kan worden in een informele setting.
Het voorzieningenaanbod is uitzonderlijk compleet: een volwaardig restaurant met verse broodjes en salades, drie exclusieve boardrooms op de 13e verdieping (skylounge/skyrooms), twee luxe meetingrooms op de begane grond én een volledig uitgeruste gym op de 9e verdieping met dakterras. Dankzij de flexibele indeling zijn de kantoorruimtes geschikt voor uiteenlopende teamgroottes en groeifasen.
The Botanic onderscheidt zich bovendien door zijn sterke focus op duurzaamheid. Met de ambitie om het gebouw Paris Proof te maken en een energielabel A+++, biedt dit pand een toekomstbestendige werkomgeving met een eigentijdse uitstraling.
Extra services zoals een elektrische deelauto en gedeelde fietsen zorgen voor optimaal comfort en gemak. Werken in The Botanic betekent kiezen voor kwaliteit, flexibiliteit en duurzaamheid in een dynamische en toekomstgerichte omgeving.
Beschikbare kantoorruimte
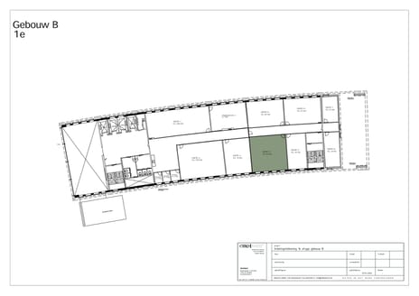
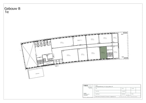
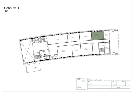
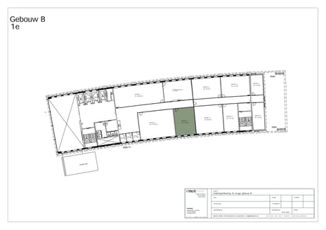
Unit A5.1 – ca. 612 m² v.v.o. vanaf € 175,- per m²*
Unit B3.1 – ca. 791 m² v.v.o. vanaf € 175,- per m²*
Tevens zijn er meerdere units beschikbaar vanaf 27 m².
Unit B1.1 – ca. 180 m² v.v.o. vanaf € 3.750,- per maand incl. servicekosten
Unit B1.3 – ca. 70 m² v.v.o. vanaf € 1.495,- per maand incl. servicekosten
Unit B1.4 – ca. 80 m² v.v.o. vanaf € 1.695,- per maand incl. servicekosten
Unit B1.5 – ca. 44 m² v.v.o. vanaf € 1.095,- per maand incl. servicekosten
Unit B1.6 – ca. 34 m² v.v.o. vanaf € 850,- per maand incl. servicekosten
Unit B1.7 – ca. 27 m² v.v.o. vanaf € 675,- per maand incl. servicekosten
Unit B1.8 – ca. 61 m² v.v.o. vanaf € 1.350,- per maand incl. servicekosten
Unit B1.9 – ca. 63 m² v.v.o. vanaf € 1.395,- per maand incl. servicekosten
Unit A8.2 – ca. 199 m² v.v.o. vanaf € 2.950,- per maand*.
Alle genoemde bedragen zijn exclusief servicekosten, parkeren en b.t.w.
*te vermeerderen met servicekosten op basis van een een voorschot van € 50,- per m².
Parkeren
Parkeerratio 1:50 per m² in overleg meer ruimte beschikbaar. Prijs in overleg.
Bereikbaarheid
Openbaar vervoer
Het gebouw is uitstekend bereikbaar met het openbaar vervoer. Direct onderaan het gebouw bevindt zich een bushalte Rivium in Capelle ad IJssel. Op slechts drie minuten loopafstand ligt de “People Mover”, die je binnen enkele minuten verbindt met Metro- en busstation Kralingse Zoom.
Eigen vervoer
The Botanic is uitstekend ontsloten via de N210 en de snelweg A16 richting Rotterdam, Dordrecht en Den Haag. De locatie beschikt over een afgesloten parkeergarage onder het gebouw, wat zorgt voor veilig en comfortabel parkeren voor medewerkers en bezoekers.
Elektrische deelauto
Voor onze huurders is er een leuke Fiat Topolino beschikbaar. Handig als je een boodschap wil doen of iemand op wil halen van het station.
Dit hoogwaardige kantoor maakt onderdeel uit van het volledig vernieuwde kantoorgebouw The Botanic Rotterdam, gelegen op een prominente locatie aan de Rivium Boulevard in Capelle aan den IJssel. Het gebouw ondergaat momenteel een complete transformatie waarbij duurzaamheid, comfort en uitstraling centraal staan. De directe omgeving ontwikkelt zich in hoog tempo tot een moderne stadswijk en businesspark, waar de komende jaren ruim 5.000 nieuwe woningen worden gerealiseerd, aangevuld met diverse toekomstige voorzieningen en faciliteiten. Hierdoor ontstaat een levendige, gemengde omgeving met een sterk vestigingsklimaat.
De locatie is uitstekend bereikbaar per auto en openbaar vervoer en beschikt over een aantrekkelijk voorzieningenaanbod met onder meer horeca (zoals het Zalmhuis) en een hotel. Dit maakt The Botanic een ideale vestigingsplek voor bedrijven die zich strategisch willen positioneren nabij Rotterdam en de directe regio.
De kantoorruimtes zijn stijlvol, efficiënt en flexibel ingericht, met veel daglicht en een hoogwaardige afwerking. De units beschikken over moderne werkplekken, spreekkamers, focusruimtes, pantry’s en representatieve ontvangstruimtes. Daarnaast profiteren gebruikers van diverse gedeelde faciliteiten, waaronder een luxe receptie en een sfeervolle coffeelounge waar gewerkt en ontvangen kan worden in een informele setting.
Het voorzieningenaanbod is uitzonderlijk compleet: een volwaardig restaurant met verse broodjes en salades, drie exclusieve boardrooms op de 13e verdieping (skylounge/skyrooms), twee luxe meetingrooms op de begane grond én een volledig uitgeruste gym op de 9e verdieping met dakterras. Dankzij de flexibele indeling zijn de kantoorruimtes geschikt voor uiteenlopende teamgroottes en groeifasen.
The Botanic onderscheidt zich bovendien door zijn sterke focus op duurzaamheid. Met de ambitie om het gebouw Paris Proof te maken en een energielabel A+++, biedt dit pand een toekomstbestendige werkomgeving met een eigentijdse uitstraling.
Extra services zoals een elektrische deelauto en gedeelde fietsen zorgen voor optimaal comfort en gemak. Werken in The Botanic betekent kiezen voor kwaliteit, flexibiliteit en duurzaamheid in een dynamische en toekomstgerichte omgeving.
Beschikbare kantoorruimte
Unit A5.1 – ca. 612 m² v.v.o. vanaf € 175,- per m²*
Unit B3.1 – ca. 791 m² v.v.o. vanaf € 175,- per m²*
Tevens zijn er meerdere units beschikbaar vanaf 27 m².
Unit B1.1 – ca. 180 m² v.v.o. vanaf € 3.750,- per maand incl. servicekosten
Unit B1.3 – ca. 70 m² v.v.o. vanaf € 1.495,- per maand incl. servicekosten
Unit B1.4 – ca. 80 m² v.v.o. vanaf € 1.695,- per maand incl. servicekosten
Unit B1.5 – ca. 44 m² v.v.o. vanaf € 1.095,- per maand incl. servicekosten
Unit B1.6 – ca. 34 m² v.v.o. vanaf € 850,- per maand incl. servicekosten
Unit B1.7 – ca. 27 m² v.v.o. vanaf € 675,- per maand incl. servicekosten
Unit B1.8 – ca. 61 m² v.v.o. vanaf € 1.350,- per maand incl. servicekosten
Unit B1.9 – ca. 63 m² v.v.o. vanaf € 1.395,- per maand incl. servicekosten
Unit A8.2 – ca. 199 m² v.v.o. vanaf € 2.950,- per maand*.
Alle genoemde bedragen zijn exclusief servicekosten, parkeren en b.t.w.
*te vermeerderen met servicekosten op basis van een een voorschot van € 50,- per m².
Parkeren
Parkeerratio 1:50 per m² in overleg meer ruimte beschikbaar. Prijs in overleg.
Bereikbaarheid
Openbaar vervoer
Het gebouw is uitstekend bereikbaar met het openbaar vervoer. Direct onderaan het gebouw bevindt zich een bushalte Rivium in Capelle ad IJssel. Op slechts drie minuten loopafstand ligt de “People Mover”, die je binnen enkele minuten verbindt met Metro- en busstation Kralingse Zoom.
Eigen vervoer
The Botanic is uitstekend ontsloten via de N210 en de snelweg A16 richting Rotterdam, Dordrecht en Den Haag. De locatie beschikt over een afgesloten parkeergarage onder het gebouw, wat zorgt voor veilig en comfortabel parkeren voor medewerkers en bezoekers.
Elektrische deelauto
Voor onze huurders is er een leuke Fiat Topolino beschikbaar. Handig als je een boodschap wil doen of iemand op wil halen van het station.
360° photos and video
Object
-
€ 2,950 p/mo. 199 m²
-
€ 175 /m²/year 612 m²
-
€ 175 /m²/year 791 m²
-
€ 3,750 p/mo. 180 m²
-
€ 1,495 p/mo. 70 m²
-
€ 1,095 p/mo. 44 m²
-
€ 850 p/mo. 34 m²
-
€ 675 p/mo. 27 m²
-
€ 1,695 p/mo. 80 m²
-
€ 1,350 p/mo. 61 m²
-
€ 1,395 p/mo. 63 m²
Map
Map is loading...
Cadastral boundaries
Buildings