Chromiumweg 147 3812 NM Amersfoort
€ 1,500 p/mo.
Description
TE HUUR
Chromiumweg 147 in Amersfoort
OBJECT
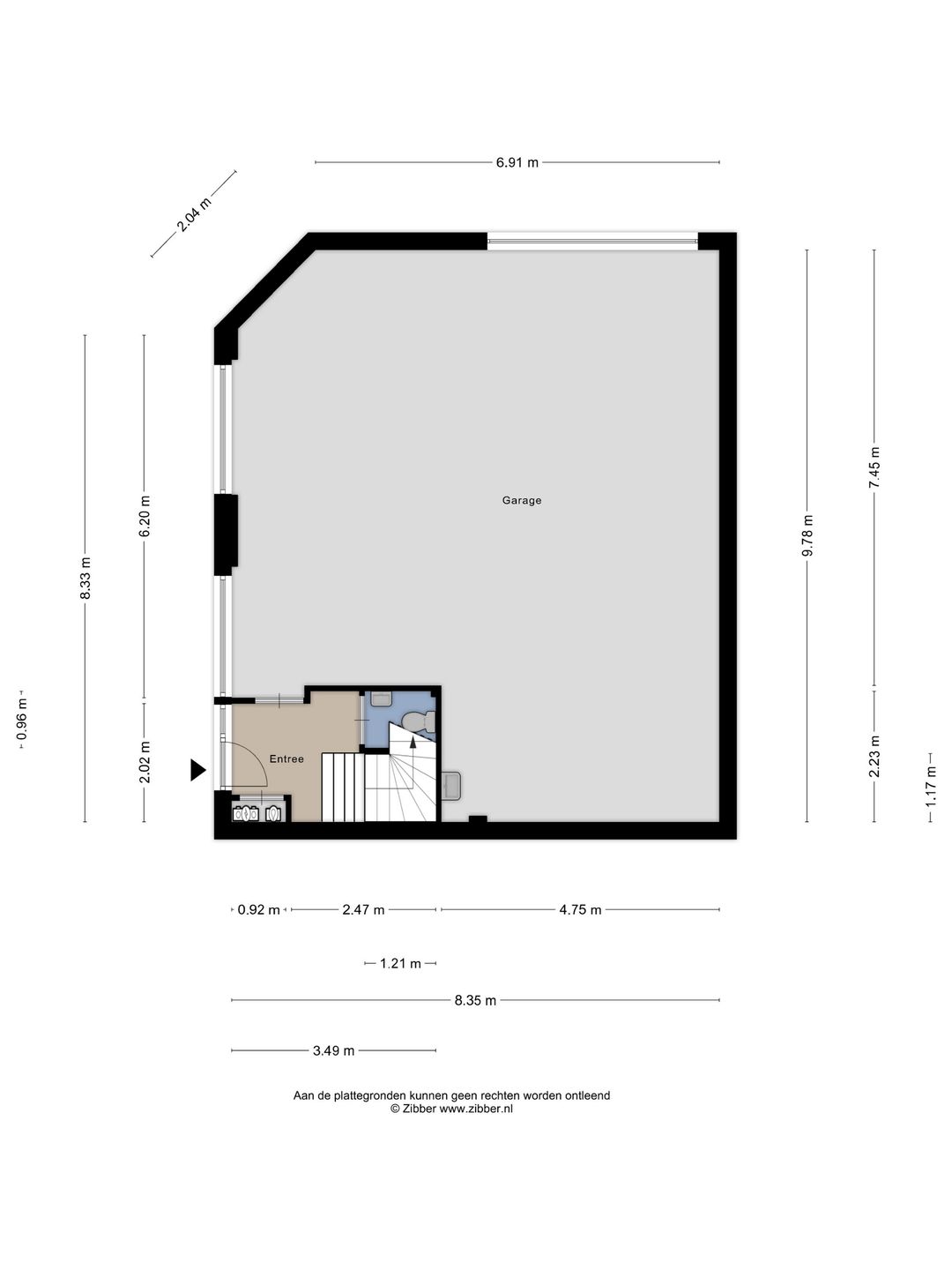
Het bedrijfspand bestaat uit een bedrijfsruimte verdeeld over twee verdiepingen van elk circa 85 m², in totaal circa 170 m² b.v.o. De begane grond is ingericht als bedrijfsruimte/opslagruimte en beschikt over een overheaddeur en toiletvoorziening.
De 1e verdieping is ingericht als kantoorruimte en is voorzien van een pantry en wordt verwarmd middels een centrale verwarmingsinstallatie (cv).
LOCATIE & LIGGING
Chromiumweg 147 is gelegen op bedrijventerrein De Isselt, een centraal gelegen en dynamisch bedrijventerrein binnen de gemeente Amersfoort. De ligging is strategisch door de directe aansluiting op de hoofdwegen A1 (Amsterdam–Apeldoorn) en A28 (Utrecht–Zwolle). Daarnaast is het object op korte afstand gelegen van het centrum van Amersfoort en diverse voorzieningen in de directe omgeving.
BESTEMMINGSPLAN
Het object valt onder het geldende bestemmingsplan van bedrijventerrein De Isselt.
Voor meer informatie verwijzen wij u naar het Omgevingsloket.
VLOEROPPERVLAKTE
Totaal circa 170 m² b.v.o., bestaande uit:
- ca. 85 m² bedrijfsruimte gelegen op de begane grond;
- ca. 85 m² kantoorruimte gelegen op de verdieping.
De ruimtes zijn geschikt voor zowel kantoor-, werk- als opslagdoeleinden.
PARKEREN
Drie (03) eigen parkeerplaatsen aanwezig.
VOORZIENINGEN BEDRIJFSRUIMTE
- overheaddeur;
- toilet begane grond;
- pantry op de verdieping;
- systeemplafond kantoor;
- centrale verwarmingsinstallatie (cv);
- meterkast met aansluitingen.
OPLEVERING
In overleg met verhuurder.
AANVAARDING
In overleg.
HUURPRIJS
€ 18.000,-- per jaar, te vermeerderen met omzetbelasting.
HUURTERMIJN
Vijf (05) jaren.
VOORTZETTINGSTERMIJN
Telkens vijf (05) jaren.
OPZEGTERMIJN
Twaalf (12) maanden.
PROJECTWEBSITE
chromiumweg147.nl
INDEXERING
Jaarlijks conform CPI – Alle Huishoudens (2015=100), voor het eerst één jaar na de ingangsdatum van de huurovereenkomst.
CONTRACT
ROZ-huurcontract voor kantoorruimte, meest recente versie, inclusief bijbehorende algemene bepalingen en eventuele aanvullende bepalingen.
BANKGARANTIE / WAARBORGSOM
Zekerheidsstelling ter grootte van drie (03) maanden huur, vermeerderd met servicekosten en omzetbelasting.
OMZETBELASTING
Er wordt geopteerd voor belaste verhuur, c.q. de huurprijs wordt verhoogd met omzetbelasting.
Indien huurder niet voldoet aan de wettelijke vereisten voor btw-belaste verhuur, mag geen btw in rekening worden gebracht.
PRIVACY
Brandt Bedrijfsmakelaars respecteert uw recht op privacy en garandeert dat uw persoons- en bedrijfsgegevens vertrouwelijk en volgens de AVG worden behandeld.
DISCLAIMER
Nadrukkelijk is vermeld dat deze informatieverstrekking niet als een aanbieding of offerte mag worden beschouwd. Aan deze gegevens kunnen geen rechten worden ontleend.
Chromiumweg 147 in Amersfoort
OBJECT
Het bedrijfspand bestaat uit een bedrijfsruimte verdeeld over twee verdiepingen van elk circa 85 m², in totaal circa 170 m² b.v.o. De begane grond is ingericht als bedrijfsruimte/opslagruimte en beschikt over een overheaddeur en toiletvoorziening.
De 1e verdieping is ingericht als kantoorruimte en is voorzien van een pantry en wordt verwarmd middels een centrale verwarmingsinstallatie (cv).
LOCATIE & LIGGING
Chromiumweg 147 is gelegen op bedrijventerrein De Isselt, een centraal gelegen en dynamisch bedrijventerrein binnen de gemeente Amersfoort. De ligging is strategisch door de directe aansluiting op de hoofdwegen A1 (Amsterdam–Apeldoorn) en A28 (Utrecht–Zwolle). Daarnaast is het object op korte afstand gelegen van het centrum van Amersfoort en diverse voorzieningen in de directe omgeving.
BESTEMMINGSPLAN
Het object valt onder het geldende bestemmingsplan van bedrijventerrein De Isselt.
Voor meer informatie verwijzen wij u naar het Omgevingsloket.
VLOEROPPERVLAKTE
Totaal circa 170 m² b.v.o., bestaande uit:
- ca. 85 m² bedrijfsruimte gelegen op de begane grond;
- ca. 85 m² kantoorruimte gelegen op de verdieping.
De ruimtes zijn geschikt voor zowel kantoor-, werk- als opslagdoeleinden.
PARKEREN
Drie (03) eigen parkeerplaatsen aanwezig.
VOORZIENINGEN BEDRIJFSRUIMTE
- overheaddeur;
- toilet begane grond;
- pantry op de verdieping;
- systeemplafond kantoor;
- centrale verwarmingsinstallatie (cv);
- meterkast met aansluitingen.
OPLEVERING
In overleg met verhuurder.
AANVAARDING
In overleg.
HUURPRIJS
€ 18.000,-- per jaar, te vermeerderen met omzetbelasting.
HUURTERMIJN
Vijf (05) jaren.
VOORTZETTINGSTERMIJN
Telkens vijf (05) jaren.
OPZEGTERMIJN
Twaalf (12) maanden.
PROJECTWEBSITE
chromiumweg147.nl
INDEXERING
Jaarlijks conform CPI – Alle Huishoudens (2015=100), voor het eerst één jaar na de ingangsdatum van de huurovereenkomst.
CONTRACT
ROZ-huurcontract voor kantoorruimte, meest recente versie, inclusief bijbehorende algemene bepalingen en eventuele aanvullende bepalingen.
BANKGARANTIE / WAARBORGSOM
Zekerheidsstelling ter grootte van drie (03) maanden huur, vermeerderd met servicekosten en omzetbelasting.
OMZETBELASTING
Er wordt geopteerd voor belaste verhuur, c.q. de huurprijs wordt verhoogd met omzetbelasting.
Indien huurder niet voldoet aan de wettelijke vereisten voor btw-belaste verhuur, mag geen btw in rekening worden gebracht.
PRIVACY
Brandt Bedrijfsmakelaars respecteert uw recht op privacy en garandeert dat uw persoons- en bedrijfsgegevens vertrouwelijk en volgens de AVG worden behandeld.
DISCLAIMER
Nadrukkelijk is vermeld dat deze informatieverstrekking niet als een aanbieding of offerte mag worden beschouwd. Aan deze gegevens kunnen geen rechten worden ontleend.
Features
Transfer of ownership
- Rental price
- € 1,500 per month
- First rental price
- € 20,000 per year
- Listed since
-
- Status
- Available
- Acceptance
- Available in consultation
Construction
- Main use
- Industrial unit
- Building type
- Resale property
- Year of construction
- 1998
Surface areas
- Area
- 170 m²
- Industrial unit area
- 85 m²
- Office area
- 85 m²
Layout
- Number of floors
- 1 floor
- Facilities
- Air conditioning, mechanical ventilation, overhead doors, concrete floor, heater, toilet, pantry and windows can be opened
Energy
- Energy label
- B 1.11
Surroundings
- Location
- Business park
- Accessibility
- Bus stop in 1500 m to 2000 m, bus junction in 1000 m to 1500 m, Dutch Railways Intercity station in 4000 m to 5000 m and motorway exit in 3000 m to 4000 m
Parking
- Parking spaces
- 3 uncovered parking spaces
NVM real estate agent
Photos
Floorplan
Begane Grond
Eerste Verdieping