Leemansweg 95 6827 BX Arnhem
€ 69,500 /yr

Description
Algemeen:
Bedrijfs-/productieruimte gelegen op bedrijventerrein Het Broek.
Verhuurder wenst niet aan auto gerelateerde bedrijven te verhuren.
Vloeroppervlakte:
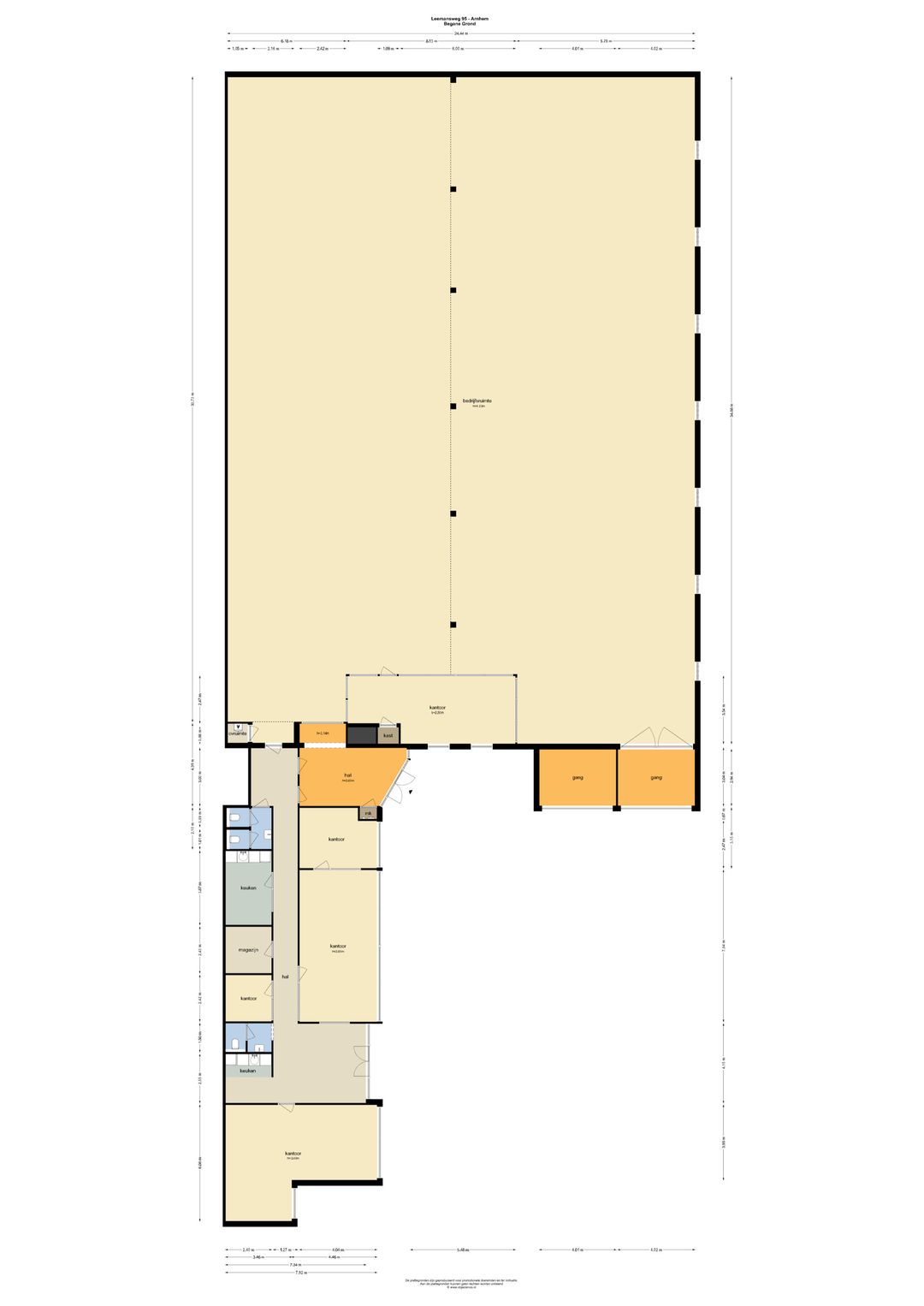
Het object heeft een totale oppervlakte van 1.061 m² VVO, verdeeld over:
Bedrijfsruimte: 847 m²
Kantoorruimte: 214 m²
Parkeren:
12 parkeerplaatsen op eigen -afsluitbare- terrein.
Opleveringsniveau:
Het object wordt opgeleverd in de huidige staat, voorzien van onder andere:
Kantoor
- Pantry;
- Toiletten;
- Led verlichting (oude armaturen);
- Elektra en data bekabeling;
- Cv-installatie met radiatoren.
Bedrijfsruimte
Elektrisch bedienbare overheaddeuren (2x);
Verlichtingsarmaturen;
Krachtstroompunten;
Brandblusmiddelen;
Perslucht leidingen.
Vrije hoogte:
Circa 4,2 meter in de bedrijfsruimte.
Huurprijs:
€ 69.500,– per jaar, te vermeerderen met BTW.
Servicekosten:
Huurder dient voor eigen rekening contracten met nutsbedrijven af te sluiten voor de levering en het verbruik van gas, water en elektra.
Locatie:
Gelegen op bedrijventerrein ‘Het Broek’, centraal gesitueerd aan de Westervoortsedijk tussen Arnhem Centrum en de Pleyweg met verbindingen naar de A325 (Nijmegen en de A15) en het Velperbroekcircuit (A12 en A348).
Bereikbaarheid:
Eigen vervoer
Het object is goed bereikbaar via de N325 wat de verbindende autoweg is tussen de A12 en de A325. Via deze snelwegen zijn de A50, A348 en A15 snel bereikbaar. Met de fiets is het object zeer goed bereikbaar door de diverse (snel)fietspaden in de omgeving.
Openbaar vervoer
De bushalte met verbindingen naar het centrum van Arnhem is op enkele minuten lopen.
Aanvaarding:
In overleg.
Informatie / bezichtiging:
DK Makelaars
Vossenstraat 6
6811 JL Arnhem
026 – 363 84 94
Bedrijfs-/productieruimte gelegen op bedrijventerrein Het Broek.
Verhuurder wenst niet aan auto gerelateerde bedrijven te verhuren.
Vloeroppervlakte:
Het object heeft een totale oppervlakte van 1.061 m² VVO, verdeeld over:
Bedrijfsruimte: 847 m²
Kantoorruimte: 214 m²
Parkeren:
12 parkeerplaatsen op eigen -afsluitbare- terrein.
Opleveringsniveau:
Het object wordt opgeleverd in de huidige staat, voorzien van onder andere:
Kantoor
- Pantry;
- Toiletten;
- Led verlichting (oude armaturen);
- Elektra en data bekabeling;
- Cv-installatie met radiatoren.
Bedrijfsruimte
Elektrisch bedienbare overheaddeuren (2x);
Verlichtingsarmaturen;
Krachtstroompunten;
Brandblusmiddelen;
Perslucht leidingen.
Vrije hoogte:
Circa 4,2 meter in de bedrijfsruimte.
Huurprijs:
€ 69.500,– per jaar, te vermeerderen met BTW.
Servicekosten:
Huurder dient voor eigen rekening contracten met nutsbedrijven af te sluiten voor de levering en het verbruik van gas, water en elektra.
Locatie:
Gelegen op bedrijventerrein ‘Het Broek’, centraal gesitueerd aan de Westervoortsedijk tussen Arnhem Centrum en de Pleyweg met verbindingen naar de A325 (Nijmegen en de A15) en het Velperbroekcircuit (A12 en A348).
Bereikbaarheid:
Eigen vervoer
Het object is goed bereikbaar via de N325 wat de verbindende autoweg is tussen de A12 en de A325. Via deze snelwegen zijn de A50, A348 en A15 snel bereikbaar. Met de fiets is het object zeer goed bereikbaar door de diverse (snel)fietspaden in de omgeving.
Openbaar vervoer
De bushalte met verbindingen naar het centrum van Arnhem is op enkele minuten lopen.
Aanvaarding:
In overleg.
Informatie / bezichtiging:
DK Makelaars
Vossenstraat 6
6811 JL Arnhem
026 – 363 84 94
Features
Transfer of ownership
- Rental price
- € 69,500 per year
- Listed since
-
- Status
- Available
- Acceptance
- Available in consultation
Construction
- Main use
- Industrial unit
- Building type
- Resale property
- Year of construction
- 1976
Surface areas
- Area
- 1,061 m² (units from 847 m²)
- Industrial unit area
- 847 m²
- Office area
- 214 m²
- Clearance
- 4.2 m
Layout
- Number of floors
- 1 floor
- Facilities
- Overhead doors, three-phase electric power, concrete floor, heater, toilet, pantry and windows can be opened
Energy
- Energy label
- Not available
Surroundings
- Location
- Business park
Parking
- Parking spaces
- 12 uncovered parking spaces
NVM real estate agent
Photos














