Bellstraat 21-A 3771 AH Barneveld
€ 4,000 p/mo.
Description
Algemeen:
Ondernemen op een goed bereikbare locatie in Barneveld?
Aan de Bellstraat 21, op bedrijventerrein De Valk, vind je deze functionele bedrijfsruimte van ca. 620 m² met een buitenterrein van ca. 250 m². Een uitstekende plek voor ondernemers die op zoek zijn naar ruimte, gemak én efficiëntie.
Wat deze bedrijfsruimte uniek maakt, is de royale hoeveelheid natuurlijke lichtinval. Dankzij de raampartijen en meerdere lichtstraten beschikt de hal over een opvallend licht en prettig werkklimaat.
De hal heeft een vrije hoogte van 5,5 meter, ideaal voor uiteenlopende bedrijfsactiviteiten zoals opslag, lichte productie of werkplaats. Met twee overheaddeuren is laden en lossen snel en efficiënt te regelen, ook voor grotere voertuigen.
Het buitenterrein van 250 m² is een groot pluspunt: hier is ruimte voor parkeren op eigen terrein, extra opslag of manoeuvreerruimte. Het buitenterrein is volledig af te sluiten.
Kortom: een representatieve, lichte en praktische bedrijfsruimte op een toplocatie in Barneveld.
Locatie:
Aan de Bellstraat 21 in Barneveld bieden wij een nette en functionele bedrijfsruimte van circa 620 m² te huur aan, inclusief ca. 250 m² buitenterrein.
De ruimte is gelegen op bedrijventerrein De Valk, op slechts 5 minuten rijden van het centrum van Barneveld en in de directe nabijheid van de A1 en A30.
Deze centrale ligging zorgt voor een uitstekende bereikbaarheid voor zowel personeel als klanten.
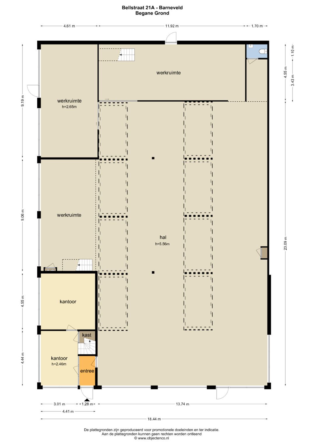
Oppervlaktes:
Kantoor begane grond : 38 m²
Bedrijfshal begane grond : 464 m²
Kantoor begane grond : 36 m²
Magazijn verdieping : 80 m²
Totaal : 620 m²
Voorzieningen:
- Verwarming met gasgestookte heater (bedrijfshal)
- Verwarming middels radiatoren (kantoor)
- Vrije hoogte bedrijfshal van ca. 5,5 meter
- Twee elektrisch bedienbare overheaddeuren van 4 x 4 meter
- Separate loopdeur
- Stroomvoorziening van 3 x 40 Ampère
- Elektra installatie volledig nagelopen in 2025
- Verlichting
- Kabelgoten
- Betonvloer op begane grond
- Lichtstraten voor natuurlijk lichtinval
- Mogelijkheid om buitenterrein af te sluiten
Parkeren:
Voldoende parkeermogelijkheden op eigen terrein.
Bestemming:
Enkelbestemming Bedrijventerrein. Bedrijven t/m categorie 2 zijn toegestaan.
(bron: Omgevingsloket)
Wij adviseren altijd vooraf het voorgenomen gebruik bij de gemeente te toetsen.
Huurprijs:
€ 4.000,- per maand excl. btw.
Voorschot servicekosten:
Huurder wordt zelf contractant bij de nutsbedrijven v.w.b. gas/water/elektra.
Huurbetaling:
Per maand vooruit.
Huurprijsaanpassing:
Jaarlijks, voor het eerst 1 jaar na huuringangsdatum op basis van het prijsindexcijfer volgens de consumentenprijsindex, reeks CPI-alle huishoudens (2015=100), gepubliceerd door het Centraal Bureau voor de Statistiek.
Huurgarantie:
Een waarborgsom ter grootte van een volledige bruto kwartaalverplichting.
Huur- en verlengingstermijnen:
5 jaar, verlenging voor telkens 5 jaar.
Afwijkende huurtermijnen kunnen in overweging genomen worden.
Huurcontract:
Op basis van het standaard model van de Raad voor Onroerende Zaken (ROZ).
Aanvaarding:
In overleg.
BTW:
het uitgangspunt is een btw belaste verhuur.
Bijzonderheden:
Deze informatie wordt u verstrekt onder voorbehoud van goedkeuring door verhuurder.
De vermelde informatie behelst geen aanbod doch globale informatie van algemene aard. De informatie is niet meer dan een uitnodiging om in onderhandeling te treden. ZAAK Bedrijfsmakelaars staat niet in voor de juistheid en volledigheid van de informatie. Aan de inhoud van deze informatie kunnen geen rechten worden ontleend.
Ondernemen op een goed bereikbare locatie in Barneveld?
Aan de Bellstraat 21, op bedrijventerrein De Valk, vind je deze functionele bedrijfsruimte van ca. 620 m² met een buitenterrein van ca. 250 m². Een uitstekende plek voor ondernemers die op zoek zijn naar ruimte, gemak én efficiëntie.
Wat deze bedrijfsruimte uniek maakt, is de royale hoeveelheid natuurlijke lichtinval. Dankzij de raampartijen en meerdere lichtstraten beschikt de hal over een opvallend licht en prettig werkklimaat.
De hal heeft een vrije hoogte van 5,5 meter, ideaal voor uiteenlopende bedrijfsactiviteiten zoals opslag, lichte productie of werkplaats. Met twee overheaddeuren is laden en lossen snel en efficiënt te regelen, ook voor grotere voertuigen.
Het buitenterrein van 250 m² is een groot pluspunt: hier is ruimte voor parkeren op eigen terrein, extra opslag of manoeuvreerruimte. Het buitenterrein is volledig af te sluiten.
Kortom: een representatieve, lichte en praktische bedrijfsruimte op een toplocatie in Barneveld.
Locatie:
Aan de Bellstraat 21 in Barneveld bieden wij een nette en functionele bedrijfsruimte van circa 620 m² te huur aan, inclusief ca. 250 m² buitenterrein.
De ruimte is gelegen op bedrijventerrein De Valk, op slechts 5 minuten rijden van het centrum van Barneveld en in de directe nabijheid van de A1 en A30.
Deze centrale ligging zorgt voor een uitstekende bereikbaarheid voor zowel personeel als klanten.
Oppervlaktes:
Kantoor begane grond : 38 m²
Bedrijfshal begane grond : 464 m²
Kantoor begane grond : 36 m²
Magazijn verdieping : 80 m²
Totaal : 620 m²
Voorzieningen:
- Verwarming met gasgestookte heater (bedrijfshal)
- Verwarming middels radiatoren (kantoor)
- Vrije hoogte bedrijfshal van ca. 5,5 meter
- Twee elektrisch bedienbare overheaddeuren van 4 x 4 meter
- Separate loopdeur
- Stroomvoorziening van 3 x 40 Ampère
- Elektra installatie volledig nagelopen in 2025
- Verlichting
- Kabelgoten
- Betonvloer op begane grond
- Lichtstraten voor natuurlijk lichtinval
- Mogelijkheid om buitenterrein af te sluiten
Parkeren:
Voldoende parkeermogelijkheden op eigen terrein.
Bestemming:
Enkelbestemming Bedrijventerrein. Bedrijven t/m categorie 2 zijn toegestaan.
(bron: Omgevingsloket)
Wij adviseren altijd vooraf het voorgenomen gebruik bij de gemeente te toetsen.
Huurprijs:
€ 4.000,- per maand excl. btw.
Voorschot servicekosten:
Huurder wordt zelf contractant bij de nutsbedrijven v.w.b. gas/water/elektra.
Huurbetaling:
Per maand vooruit.
Huurprijsaanpassing:
Jaarlijks, voor het eerst 1 jaar na huuringangsdatum op basis van het prijsindexcijfer volgens de consumentenprijsindex, reeks CPI-alle huishoudens (2015=100), gepubliceerd door het Centraal Bureau voor de Statistiek.
Huurgarantie:
Een waarborgsom ter grootte van een volledige bruto kwartaalverplichting.
Huur- en verlengingstermijnen:
5 jaar, verlenging voor telkens 5 jaar.
Afwijkende huurtermijnen kunnen in overweging genomen worden.
Huurcontract:
Op basis van het standaard model van de Raad voor Onroerende Zaken (ROZ).
Aanvaarding:
In overleg.
BTW:
het uitgangspunt is een btw belaste verhuur.
Bijzonderheden:
Deze informatie wordt u verstrekt onder voorbehoud van goedkeuring door verhuurder.
De vermelde informatie behelst geen aanbod doch globale informatie van algemene aard. De informatie is niet meer dan een uitnodiging om in onderhandeling te treden. ZAAK Bedrijfsmakelaars staat niet in voor de juistheid en volledigheid van de informatie. Aan de inhoud van deze informatie kunnen geen rechten worden ontleend.
Features
Transfer of ownership
- Rental price
- € 4,000 per month
- Listed since
-
- Status
- Available
- Acceptance
- Available in consultation
Construction
- Main use
- Industrial unit
- Building type
- Resale property
- Year of construction
- 1989
Surface areas
- Area
- 620 m²
- Industrial unit area
- 620 m²
Layout
- Facilities
- Rooflights, overhead doors, concrete floor, heater, toilet and pantry
Energy
- Energy label
- Not available
Real estate agent
Photos
Floorplan
BEGANE GROND
EERSTE VERDIEPING