Goeseelsstraat 36-C 4817 MV Breda
€ 25,265 /yr
Description
ALGEMEEN
Op een kleinschalig ontwikkeld bedrijvenpark te Breda is aan de Goeseelsstraat een zelfstandige bedrijfsruimte met kantoren beschikbaar. Het geheel is gelegen tussen de noordelijke rondweg van Breda en de Teteringsedijk, nabij het centrum van Breda. Door de ligging is de ruimte goed bereikbaar vanuit de belangrijkste in-, en uitvalswegen van Breda. Parkeerfaciliteiten aanwezig op eigen terrein.
OPPERVLAKTE
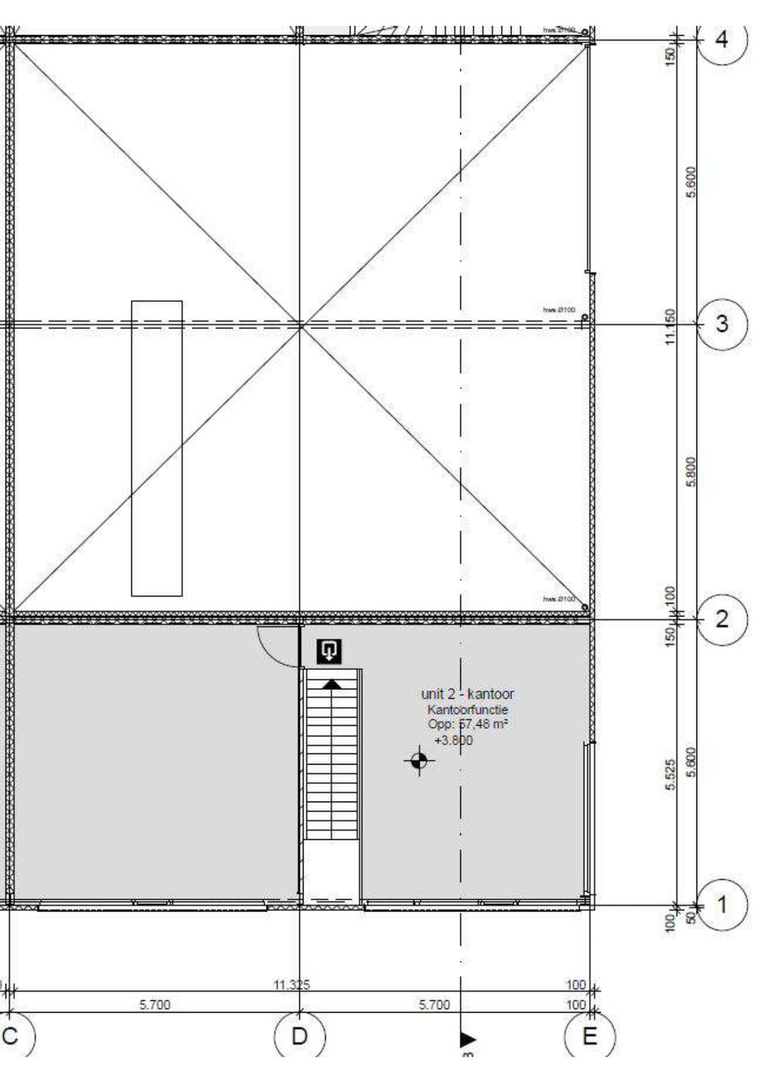
Bedrijfsruimte: circa 158 m² (11m x 11m + 6m x 6m)
Kantoorruimte op BG + 1e VERD: circa 89 m²
Totaal: 247 m²
De toegevoegde plattegronden zijn in spiegelbeeld.
OPLEVERINGSNIVEAU
Het geheel is onder andere voorzien van de navolgende zaken:
Bedrijfsruimte
• gladde betonvloer;
• elektrische overheaddeur (4.5m x 3.4m);
• heater;
• opbouwverlichting.
Kantoorruimte
• cement dekvloer met vloerafwerking;
• cv ketel met radiatoren;
• systeemplafond met inbouwarmaturen;
• kabelgoten.
• eigen nutsvoorzieningen ten behoeve van het registreren van het verbruik van gas, water en elektra.
Alarm en stellingen bedrijfsruimte behoren toe aan huurder en worden ter overname aangeboden.
HUURPRIJS
€ 25.265,-- per jaar exclusief BTW
SERVICEKOSTEN
Voorschotbedrag ter grootte van € 80,-- per maand exclusief BTW ten behoeve van:
• periodiek onderhoud heater;
• periodiek onderhoud cv ketel;
• periodiek onderhoud overheaddeur;
• periodiek onderhoud brandhaspel;
• periodiek onderhoud dak;
• onderhoud buitenterrein
HUURTERMIJN
5 jaar met telkenmale 5 jaar. Opzegtermijn 12 maanden. Korte huurperiode in overleg bespreekbaar.
BANKGARANTIE / WAARBORGSOM
Ter grootte van een kwartaalsverplichting inclusief BTW.
INDEXERING
Jaarlijks, voor het eerst één jaar na huuringangsdatum, op basis van de wijziging van het maandprijsindexcijfer volgens de consumentenprijsindex (CPI), reeks CPI-alle huishoudens (2015=100), gepubliceerd door het Centraal Bureau voor de Statistiek (CBS).
AANVAARDING
Beschikbaar vanaf 1 juli 2024
OMZETBELASTING
Alle in deze brochure vermelde bedragen zijn, tenzij uitdrukkelijk vermeld, exclusief omzetbelasting (BTW). Voorts is er in deze brochure uitgegaan dat de prestaties van de huurder voor meer dan 90% in de met BTW-belaste sfeer plaatsvinden.
Op een kleinschalig ontwikkeld bedrijvenpark te Breda is aan de Goeseelsstraat een zelfstandige bedrijfsruimte met kantoren beschikbaar. Het geheel is gelegen tussen de noordelijke rondweg van Breda en de Teteringsedijk, nabij het centrum van Breda. Door de ligging is de ruimte goed bereikbaar vanuit de belangrijkste in-, en uitvalswegen van Breda. Parkeerfaciliteiten aanwezig op eigen terrein.
OPPERVLAKTE
Bedrijfsruimte: circa 158 m² (11m x 11m + 6m x 6m)
Kantoorruimte op BG + 1e VERD: circa 89 m²
Totaal: 247 m²
De toegevoegde plattegronden zijn in spiegelbeeld.
OPLEVERINGSNIVEAU
Het geheel is onder andere voorzien van de navolgende zaken:
Bedrijfsruimte
• gladde betonvloer;
• elektrische overheaddeur (4.5m x 3.4m);
• heater;
• opbouwverlichting.
Kantoorruimte
• cement dekvloer met vloerafwerking;
• cv ketel met radiatoren;
• systeemplafond met inbouwarmaturen;
• kabelgoten.
• eigen nutsvoorzieningen ten behoeve van het registreren van het verbruik van gas, water en elektra.
Alarm en stellingen bedrijfsruimte behoren toe aan huurder en worden ter overname aangeboden.
HUURPRIJS
€ 25.265,-- per jaar exclusief BTW
SERVICEKOSTEN
Voorschotbedrag ter grootte van € 80,-- per maand exclusief BTW ten behoeve van:
• periodiek onderhoud heater;
• periodiek onderhoud cv ketel;
• periodiek onderhoud overheaddeur;
• periodiek onderhoud brandhaspel;
• periodiek onderhoud dak;
• onderhoud buitenterrein
HUURTERMIJN
5 jaar met telkenmale 5 jaar. Opzegtermijn 12 maanden. Korte huurperiode in overleg bespreekbaar.
BANKGARANTIE / WAARBORGSOM
Ter grootte van een kwartaalsverplichting inclusief BTW.
INDEXERING
Jaarlijks, voor het eerst één jaar na huuringangsdatum, op basis van de wijziging van het maandprijsindexcijfer volgens de consumentenprijsindex (CPI), reeks CPI-alle huishoudens (2015=100), gepubliceerd door het Centraal Bureau voor de Statistiek (CBS).
AANVAARDING
Beschikbaar vanaf 1 juli 2024
OMZETBELASTING
Alle in deze brochure vermelde bedragen zijn, tenzij uitdrukkelijk vermeld, exclusief omzetbelasting (BTW). Voorts is er in deze brochure uitgegaan dat de prestaties van de huurder voor meer dan 90% in de met BTW-belaste sfeer plaatsvinden.
Features
Transfer of ownership
- Rental price
- € 25,265 per year
- Service charges
- € 80 per month (21% VAT applies)
- Listed since
-
- Status
- Available
- Acceptance
- Available in consultation
Construction
- Main use
- Industrial unit
- Building type
- Resale property
- Year of construction
- 2016
Surface areas
- Area
- 247 m² (units from 158 m²)
- Industrial unit area
- 158 m²
- Office area
- 89 m²
- Clearance
- 6.5 m
- Clear span
- 11 m
- Maximum load
- 1,500 kg/m²
- Plot size
- 425 m²
Layout
- Number of floors
- 2 floors
- Facilities
- Rooflights, overhead doors, three-phase electric power, heater, toilet, pantry, mechanical ventilation, built-in fittings and windows can be opened
Energy
- Energy label
- A+
Surroundings
- Location
- Business park
Parking
- Parking spaces
- 3 uncovered parking spaces
NVM real estate agent
Photos