De Beverspijken 7 5221 EE Den Bosch
Price on request

Description
TE KOOP
17 duurzame bedrijfsunits vanaf € 632.500,00
Omschrijving van het project
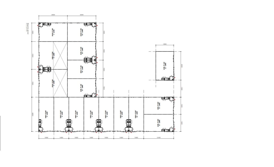
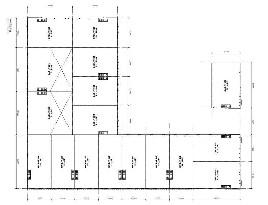
Dit project omvat in totaal 17 bedrijfsunits, met een vloeroppervlakte van circa 500 m², verdeeld over twee bouwlagen. De gebouwhoogte bedraagt circa 9,0 meter en alle units zijn standaard voorzien van een betonnen verdiepingsvloer over de gehele begane grond vloeroppervlak.
De projectlocatie ligt op bedrijventerrein De Vutter, waar diverse bedrijven actief zijn in (groot)handel, distributie en/of lichte assemblage. Het bedrijventerrein beschikt over een functionele infrastructuur en de meeste bedrijven hebben een lokale tot regionale functie.
Bereikbaarheid
Het project wordt gerealiseerd aan De Beverspijken 7 in 's-Hertogenbosch, gelegen op bedrijventerrein "De Vutter", nabij de op- en afrit (afslag Engelen) van en naar de A59. De bereikbaarheid per auto is uitstekend: vanaf de A59 is het object binnen slechts enkele seconden bereikbaar. Via de A59 zijn 's-Hertogenbosch , Breda en Oss goed bereikbaar. Bedrijventerrein “De Vutter” is een kleinschalig bedrijventerrein dat is gelegen tegen de Rijksweg A59 en het grootschalige bedrijventerrein “De Rietvelden”. De Vutter kenmerkt zich door een goede mix van grote en kleine bedrijven. Er zijn zowel handelsondernemingen als productiebedrijven en diverse transportbedrijven gevestigd.
Ontwikkeling
De ontwikkeling van dit project is in handen van Top-Boxx B.V. uit Velddriel. Top-Boxx B.V. heeft met succes al diverse bedrijfsverzamelgebouwen en garageparken gerealiseerd.
Verkoopbegeleiding
De verkoopbegeleiding is in handen van: Saris & Partners Makelaars in Bedrijfshuisvesting.
Appartementsrechten
De grond en daarop de te realiseren bebouwing wordt gesplitst in appartementsrechten. Elke koper wordt eigenaar van een appartementsrecht die het recht geeft op het uitsluitende gebruik. Elke unit is separaat met een hypotheek te belasten en/of te verkopen/verhuren.
Dit houdt onder meer in dat elke koper afzonderlijk wordt aangeslagen voor onroerende zaakbelasting, waterschapslasten, rioolrechten alsmede vastrecht voor diverse nutsvoorzieningen (water en elektriciteit).
Elke koper wordt tevens gerechtigd tot het gebruik van het gemeenschappelijke buitenterrein. Voor het beheer hiervan wordt een Vereniging van Eigenaars opgericht.
Pluspunten van de units
- Gevlinderde betonvloer op begane grond
- De vloerbelasting van de begane grondvloer bedraagt maximaal 1.000 kg/m²
- Vloerbelasting van de betonnen verdiepingsvloer bedraagt 350 kg/m²
- Alle overheaddeuren hebben een hoogte van 4,2 meter
- Alle units zijn standaard voorzien van een toilet met fontein
- Uitstekende vloer-, gevel- en dakisolatie
- Gebouwhoogte van circa 9,0 meter
- Uitstekende parkeergelegenheid
Vereniging van eigenaars
Voor het onderhoud en beheer van de gemeenschappelijke delen, waaronder het gemeenschappelijke buitenterrein, wordt een Vereniging van Eigenaars (kortweg VvE) opgericht waarvoor thans een beheerder is aangesteld.
De belangrijkste taken en bevoegdheden van deze VvE zijn:
- Het beheer van de gemeenschappelijke zaken, zoals het buitenterrein;
- Het opstellen van een huishoudelijk reglement met daarin regels voor het gebruik van de gemeenschappelijke gedeelten;
- Het beheer van de middelen die door de eigenaren aan de VvE ter beschikking zijn gesteld.
Bij de eigendomsoverdracht van het appartementsrecht is koper reeds een eerste bijdrage aan de vereniging verschuldigd. Deze is ter grootte van de jaarbijdrage (conform aanvangsbegroting) van het betreffende appartementsrecht. De daaropvolgende periodieke bijdrage zullen door de eigenaren (leden van de vereniging) worden vastgesteld. Deze bijdragen zijn bedoeld om onder andere de navolgende zaken collectief te regelen/betalen:
- De opstalverzekering;
- De aansprakelijkheidsverzekering;
- Reservering groot onderhoud, waaronder met name begrepen de daken en het buitenonderhoud.
Daarnaast kunnen onder andere de navolgende zaken, na goedkeuring door de vergadering van de VvE, collectief worden geregeld:
- Gevelreiniging;
- Onderhoud van eventuele gemeenschappelijke groenvoorziening;
- Gladheidbestrijding op het buitenterrein;
- Etc.
Financiering
Bij het sluiten van de koop wordt door de projectnotaris een koop- en aannemingsovereenkomst opgesteld en vervolgens door partijen getekend. In deze overeenkomst kan op verzoek van de koper een ontbindende voorwaarde voor financiering worden opgenomen. Binnen 7 dagen na ondertekening van de overeenkomst dient koper een waarborgsom, zijnde 10% van de koopsom, te storten op de rekening van de projectnotaris. In plaats van deze waarborgsom kan de koper een bankgarantie stellen. Deze waarborgsom of bankgarantie geldt als zekerheid voor het nakomen van de verplichtingen van de koper, voortvloeiend uit de getekende koop- en aannemingsovereenkomst.
Betaling
De kopers betalen bij de eigendomsoverdracht de grondtermijn en in een aantal termijnen de diverse stadia van de bouw. Betalingen en wijze van betaling zijn vermeld in de koop- en aannemingsovereenkomst.
Aanvang en oplevering
Zodra de omgevingsvergunning onherroepelijk is en er ten minste 70% van het aantal units verkocht is, zal met de bouw van dit project worden gestart. De bouwtijd bedraagt circa 10-11 maanden (200 werkbare werkdagen na het gereedkomen van de betonnen begane grondvloer).
Afwerking
Omdat geen enkele koper hetzelfde is, geeft de aannemer u de mogelijkheid om uw nieuwe huisvesting compleet naar eigen inzicht in te delen en in te richten. De units zijn degelijk gebouwd en afgewerkt met gebruikmaking van moderne, duurzame bouw- en isolatiematerialen, zie hiervoor ook de technische omschrijving. Verkoper stelt zich op het standpunt dat bij oplevering geen energielabel utiliteit hoeft te worden afgegeven in de zin van het bij oplevering van het casco geldende Besluit Energieprestatie Gebouwen (BEG). Afhankelijk van de gebouwfunctie die de eigenaar/gebruiker aan het gekochte toekent, kan er sprake zijn van de verplichting tot afmelden van een energielabel. Eigenaar/gebruiker neemt zelf de regie op zich voor het correct laten opstellen en tijdig laten afmelden van dit energielabel, hierbij de verlichting om te blijven voldoen aan het Bouwbesluit en dan met name de energieprestatie eisen van het Bouwbesluit.
Tekening en impressie
Indien de tekening afwijkt van de technische omschrijving is hetgeen in de technische omschrijving staat bepalend. De artist impressions zijn slechts indicatief en geven een beeld hoe de gebouwen er straks uit gaan zien. Hier kunnen geen rechten aan worden ontleend. Details en kleurstelling kunnen afwijken van de latere werkelijkheid.
Nadere bijzonderheden
De in deze verkoopdocumentatie en op de verkooptekeningen gebruikte nummering betreft bouwnummers. Deze worden tijdens de bouw door iedereen gebruikt, ook in de correspondentie met Top-Boxx, verkoop makelaar en de projectnotaris. De bouwnummers zijn niet de toekomstige huisnummers. De gemeente kent deze huisnummers toe.
Kopers zijn zelf verantwoordelijk voor de verkrijging van de voor hun bedrijfsuitvoering benodigde financiële middelen en vergunningen.
Het bedrijfsgebouw is volgens opgave van de gemeente 's-Hertogenbosch opgenomen in het bestemmingsplan ‘Bedrijventerrein De Rietvelden, De Vutter, Het Ertveld'. Dit werd vastgesteld bij Raadsbesluit d.d. 06 juni 2013. Het perceel heeft volgens dit bestemmingsplan de bestemming ‘Enkelbestemming’ met als functieaanduiding 'bedrijventerrein'. deze locatie bestemd voor bedrijvigheid en groothandel in de categorieën 1 tot en met 3.2 van de staat van bedrijfsactiviteiten ( zie voor een nadere toelichting). Volgens de Wet Milieubeheer en het Activiteitenbesluit kunt u verplicht zijn om bij de gemeente melding te maken van het oprichten en/of veranderen van een bedrijf. De snelste manier om deze melding te doen is via het E-loket van het Activiteitenbesluit, dat u vindt op netbeheerders leggen tegenwoordig alleen (hoofd)leidingwerk aan op particulier terrein indien daarvoor rechten zijn gevestigd. Deze rechten hebben, houden, onderhouden, vervangen of verwijderen van dit leidingnetwerk worden gevestigd via de splitsingsakte.
De koper mag op basis van de koop-/aannemingsovereenkomst gekochte appartementsrecht(en) pas verkopen na oplevering. Hiervoor worden in de overeenkomst omstandigheden omschreven ten gevolge waarvan deze toestemming niet geweigerd kan worden.
De standaard aangebrachte brandwerende en bouwkundige voorzieningen die worden voorgeschreven door diverse overheidsinstellingen gelden slechts in algemene situaties. Afhankelijk van de aard van hergebruik kunnen betreffende instellingen nadere voorzieningen voorschrijven, welke voor rekening van koper komen.
Voor de technische omschrijving download de brochure.
17 duurzame bedrijfsunits vanaf € 632.500,00
Omschrijving van het project
Dit project omvat in totaal 17 bedrijfsunits, met een vloeroppervlakte van circa 500 m², verdeeld over twee bouwlagen. De gebouwhoogte bedraagt circa 9,0 meter en alle units zijn standaard voorzien van een betonnen verdiepingsvloer over de gehele begane grond vloeroppervlak.
De projectlocatie ligt op bedrijventerrein De Vutter, waar diverse bedrijven actief zijn in (groot)handel, distributie en/of lichte assemblage. Het bedrijventerrein beschikt over een functionele infrastructuur en de meeste bedrijven hebben een lokale tot regionale functie.
Bereikbaarheid
Het project wordt gerealiseerd aan De Beverspijken 7 in 's-Hertogenbosch, gelegen op bedrijventerrein "De Vutter", nabij de op- en afrit (afslag Engelen) van en naar de A59. De bereikbaarheid per auto is uitstekend: vanaf de A59 is het object binnen slechts enkele seconden bereikbaar. Via de A59 zijn 's-Hertogenbosch , Breda en Oss goed bereikbaar. Bedrijventerrein “De Vutter” is een kleinschalig bedrijventerrein dat is gelegen tegen de Rijksweg A59 en het grootschalige bedrijventerrein “De Rietvelden”. De Vutter kenmerkt zich door een goede mix van grote en kleine bedrijven. Er zijn zowel handelsondernemingen als productiebedrijven en diverse transportbedrijven gevestigd.
Ontwikkeling
De ontwikkeling van dit project is in handen van Top-Boxx B.V. uit Velddriel. Top-Boxx B.V. heeft met succes al diverse bedrijfsverzamelgebouwen en garageparken gerealiseerd.
Verkoopbegeleiding
De verkoopbegeleiding is in handen van: Saris & Partners Makelaars in Bedrijfshuisvesting.
Appartementsrechten
De grond en daarop de te realiseren bebouwing wordt gesplitst in appartementsrechten. Elke koper wordt eigenaar van een appartementsrecht die het recht geeft op het uitsluitende gebruik. Elke unit is separaat met een hypotheek te belasten en/of te verkopen/verhuren.
Dit houdt onder meer in dat elke koper afzonderlijk wordt aangeslagen voor onroerende zaakbelasting, waterschapslasten, rioolrechten alsmede vastrecht voor diverse nutsvoorzieningen (water en elektriciteit).
Elke koper wordt tevens gerechtigd tot het gebruik van het gemeenschappelijke buitenterrein. Voor het beheer hiervan wordt een Vereniging van Eigenaars opgericht.
Pluspunten van de units
- Gevlinderde betonvloer op begane grond
- De vloerbelasting van de begane grondvloer bedraagt maximaal 1.000 kg/m²
- Vloerbelasting van de betonnen verdiepingsvloer bedraagt 350 kg/m²
- Alle overheaddeuren hebben een hoogte van 4,2 meter
- Alle units zijn standaard voorzien van een toilet met fontein
- Uitstekende vloer-, gevel- en dakisolatie
- Gebouwhoogte van circa 9,0 meter
- Uitstekende parkeergelegenheid
Vereniging van eigenaars
Voor het onderhoud en beheer van de gemeenschappelijke delen, waaronder het gemeenschappelijke buitenterrein, wordt een Vereniging van Eigenaars (kortweg VvE) opgericht waarvoor thans een beheerder is aangesteld.
De belangrijkste taken en bevoegdheden van deze VvE zijn:
- Het beheer van de gemeenschappelijke zaken, zoals het buitenterrein;
- Het opstellen van een huishoudelijk reglement met daarin regels voor het gebruik van de gemeenschappelijke gedeelten;
- Het beheer van de middelen die door de eigenaren aan de VvE ter beschikking zijn gesteld.
Bij de eigendomsoverdracht van het appartementsrecht is koper reeds een eerste bijdrage aan de vereniging verschuldigd. Deze is ter grootte van de jaarbijdrage (conform aanvangsbegroting) van het betreffende appartementsrecht. De daaropvolgende periodieke bijdrage zullen door de eigenaren (leden van de vereniging) worden vastgesteld. Deze bijdragen zijn bedoeld om onder andere de navolgende zaken collectief te regelen/betalen:
- De opstalverzekering;
- De aansprakelijkheidsverzekering;
- Reservering groot onderhoud, waaronder met name begrepen de daken en het buitenonderhoud.
Daarnaast kunnen onder andere de navolgende zaken, na goedkeuring door de vergadering van de VvE, collectief worden geregeld:
- Gevelreiniging;
- Onderhoud van eventuele gemeenschappelijke groenvoorziening;
- Gladheidbestrijding op het buitenterrein;
- Etc.
Financiering
Bij het sluiten van de koop wordt door de projectnotaris een koop- en aannemingsovereenkomst opgesteld en vervolgens door partijen getekend. In deze overeenkomst kan op verzoek van de koper een ontbindende voorwaarde voor financiering worden opgenomen. Binnen 7 dagen na ondertekening van de overeenkomst dient koper een waarborgsom, zijnde 10% van de koopsom, te storten op de rekening van de projectnotaris. In plaats van deze waarborgsom kan de koper een bankgarantie stellen. Deze waarborgsom of bankgarantie geldt als zekerheid voor het nakomen van de verplichtingen van de koper, voortvloeiend uit de getekende koop- en aannemingsovereenkomst.
Betaling
De kopers betalen bij de eigendomsoverdracht de grondtermijn en in een aantal termijnen de diverse stadia van de bouw. Betalingen en wijze van betaling zijn vermeld in de koop- en aannemingsovereenkomst.
Aanvang en oplevering
Zodra de omgevingsvergunning onherroepelijk is en er ten minste 70% van het aantal units verkocht is, zal met de bouw van dit project worden gestart. De bouwtijd bedraagt circa 10-11 maanden (200 werkbare werkdagen na het gereedkomen van de betonnen begane grondvloer).
Afwerking
Omdat geen enkele koper hetzelfde is, geeft de aannemer u de mogelijkheid om uw nieuwe huisvesting compleet naar eigen inzicht in te delen en in te richten. De units zijn degelijk gebouwd en afgewerkt met gebruikmaking van moderne, duurzame bouw- en isolatiematerialen, zie hiervoor ook de technische omschrijving. Verkoper stelt zich op het standpunt dat bij oplevering geen energielabel utiliteit hoeft te worden afgegeven in de zin van het bij oplevering van het casco geldende Besluit Energieprestatie Gebouwen (BEG). Afhankelijk van de gebouwfunctie die de eigenaar/gebruiker aan het gekochte toekent, kan er sprake zijn van de verplichting tot afmelden van een energielabel. Eigenaar/gebruiker neemt zelf de regie op zich voor het correct laten opstellen en tijdig laten afmelden van dit energielabel, hierbij de verlichting om te blijven voldoen aan het Bouwbesluit en dan met name de energieprestatie eisen van het Bouwbesluit.
Tekening en impressie
Indien de tekening afwijkt van de technische omschrijving is hetgeen in de technische omschrijving staat bepalend. De artist impressions zijn slechts indicatief en geven een beeld hoe de gebouwen er straks uit gaan zien. Hier kunnen geen rechten aan worden ontleend. Details en kleurstelling kunnen afwijken van de latere werkelijkheid.
Nadere bijzonderheden
De in deze verkoopdocumentatie en op de verkooptekeningen gebruikte nummering betreft bouwnummers. Deze worden tijdens de bouw door iedereen gebruikt, ook in de correspondentie met Top-Boxx, verkoop makelaar en de projectnotaris. De bouwnummers zijn niet de toekomstige huisnummers. De gemeente kent deze huisnummers toe.
Kopers zijn zelf verantwoordelijk voor de verkrijging van de voor hun bedrijfsuitvoering benodigde financiële middelen en vergunningen.
Het bedrijfsgebouw is volgens opgave van de gemeente 's-Hertogenbosch opgenomen in het bestemmingsplan ‘Bedrijventerrein De Rietvelden, De Vutter, Het Ertveld'. Dit werd vastgesteld bij Raadsbesluit d.d. 06 juni 2013. Het perceel heeft volgens dit bestemmingsplan de bestemming ‘Enkelbestemming’ met als functieaanduiding 'bedrijventerrein'. deze locatie bestemd voor bedrijvigheid en groothandel in de categorieën 1 tot en met 3.2 van de staat van bedrijfsactiviteiten ( zie voor een nadere toelichting). Volgens de Wet Milieubeheer en het Activiteitenbesluit kunt u verplicht zijn om bij de gemeente melding te maken van het oprichten en/of veranderen van een bedrijf. De snelste manier om deze melding te doen is via het E-loket van het Activiteitenbesluit, dat u vindt op netbeheerders leggen tegenwoordig alleen (hoofd)leidingwerk aan op particulier terrein indien daarvoor rechten zijn gevestigd. Deze rechten hebben, houden, onderhouden, vervangen of verwijderen van dit leidingnetwerk worden gevestigd via de splitsingsakte.
De koper mag op basis van de koop-/aannemingsovereenkomst gekochte appartementsrecht(en) pas verkopen na oplevering. Hiervoor worden in de overeenkomst omstandigheden omschreven ten gevolge waarvan deze toestemming niet geweigerd kan worden.
De standaard aangebrachte brandwerende en bouwkundige voorzieningen die worden voorgeschreven door diverse overheidsinstellingen gelden slechts in algemene situaties. Afhankelijk van de aard van hergebruik kunnen betreffende instellingen nadere voorzieningen voorschrijven, welke voor rekening van koper komen.
Voor de technische omschrijving download de brochure.
Features
Transfer of ownership
- Asking price
- Price on request
- Listed since
-
- Status
- Available
- Acceptance
- Available in consultation
Construction
- Main use
- Industrial unit
- Building type
- New property
- Year of construction
- 2025
Surface areas
- Area
- 506 m²
- Industrial unit area
- 506 m²
- Clearance
- 5 m
- Plot size
- 9,256 m²
Layout
- Facilities
- Overhead doors, concrete floor and toilet
Energy
- Energy label
- Not required
Surroundings
- Location
- Business park
- Accessibility
- Bus stop in less than 500 m, Dutch Railways Intercity station in 4000 m to 5000 m and motorway exit in less than 500 m
NVM real estate agent
Photos
















