Nijensteinseweg 9 4124 AT Hagestein
€ 80,000 /yr

Description
Te huur
Vrijstaand bedrijfsgebouw met kantoorruimte gelegen op een ruim perceel met voldoende parkeergelegenheid.
Aan de voorzijde zijn twee lagen kantoorruimte en een ruim parkeerterrein gesitueerd. Langszij is een buitenterrein met diverse overheaddeuren en een riante bedrijfshal aanwezig.
Ideaal voor opslag/productie in combinatie met kantoor.
Verhuurder zal de bedrijfsruimte van led verlichting voorzien en is bereid, één en ander afhankelijk van de overige huurcondities, in overleg met huurder andere verbeteringen uit te voeren.
Vloeroppervlak:
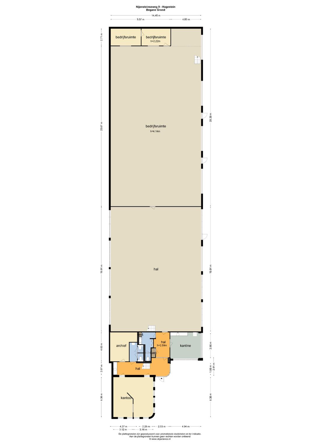
Totaal ca. 1.062 m² verhuurbaar vloeroppervlak, als volgt verdeeld:
ca. 735 m² bedrijfsruimte gelegen op de begane grond;
ca. 141 m² kantoorruimte gelegen op de begane grond;
ca. 78 m² bedrijfsruimte gelegen op de eerste verdieping;
ca. 59 m² kantoorruimte gelegen op de eerste verdieping;
ca. 49 m² bedrijfsruimte gelegen op de entresolvloer.
Parkeren:
Er is voldoende ruimte op eigen terrein.
Huurprijs:
€ 80.000,= per jaar te vermeerderen met BTW.
Indeling:
Via de hoofdentree komt men in het kantorendeel. Op de begane grond is een hal met toegang tot een kantoor aan de voorzijde, toiletten, archief, kantine en een doorgang naar de bedrijfsruimte. Tevens is er een trap naar de eerste verdieping.
Op de eerste verdieping is een kantoorruimte.
Voorzieningen:
Het bedrijfsgebouw wordt opgeleverd in de huidige staat, inclusief:
Algemeen:
- aansluitingen voor gas, water, elektra en internet;
- krachtstroom;
- tl-verlichting;
- handmatig afsluitbaar hek ten behoeve van een deel van het buitenterrein;
- 42 zonnepanelen.
Bedrijfsruimte:
- betonvloer, vloerbelasting vermoedelijk 1.500 kg/m²;
- 4 handbediende overheaddeuren van 4 x 4 meter;
- raampartijen aan beide zijdes;
- diverse loopdeuren;
- pantry voorzien van boiler en koelkast.
Kantoorruimte:
- houten kozijnen voorzien van dubbel glas;
- te openen ramen;
- mechanische afzuiging;
- airconditioning;
- elektra en data aansluitingen;
- pantry voorzien van boiler;
- toiletten;
- cv-installatie met vloerverwarming.
Energielabel:
A++.
Bestemming en gebruik:
Enkelbestemming bedrijf, functieaanduiding specifieke vorm van bedrijf - 5.
Een bestemming kan aan verandering onderhevig zijn. Raadpleeg derhalve voor de actuele gegevens de website omgevingswet.overheid.nl of neem contact op met ons kantoor.
Omzetbelasting:
Uitgangspunt is BTW belaste verhuur. Derhalve dient bovengenoemd bedrag te worden vermeerderd met het van toepassing zijnde BTW percentage. Indien huurder niet aan het 90 % criterium voldoet, zal er van rechtswege sprake zijn
van omzetbelasting vrijgestelde verhuur. Alsdan wordt de overeengekomen kale huurprijs, exclusief omzetbelasting, zodanig verhoogd dat het voor verhuurder ontstane nadeel volledig wordt gecompenseerd.
Kosten openbare nutsbedrijven:
Door huurder rechtstreeks aan de desbetreffende nutsbedrijven te voldoen.
Betalingen:
Huur inclusief BTW per maand vooruit te voldoen.
Huurtermijn:
5 jaar met een verlengingsperiode van 5 jaar.
Opzegtermijn:
Uiterlijk 12 maanden voor het aflopen van een huurtermijn.
Huurprijsaanpassing:
Jaarlijks, voor het eerst één jaar na huuringangsdatum, op basis van het consumptieprijsindexcijfer voor alle huishoudens (CPI, als vastgesteld door het CBS, met als basisjaar 2015).
Zekerheidsstelling:
Een bankgarantie of waarborgsom ter grootte van minimaal drie maanden huur te vermeerderen met BTW.
Overige condities:
Huurovereenkomst op basis van het standaard model van de Raad voor Onroerende Zaken (ROZ).
Aanvaarding:
In overleg.
Vrijstaand bedrijfsgebouw met kantoorruimte gelegen op een ruim perceel met voldoende parkeergelegenheid.
Aan de voorzijde zijn twee lagen kantoorruimte en een ruim parkeerterrein gesitueerd. Langszij is een buitenterrein met diverse overheaddeuren en een riante bedrijfshal aanwezig.
Ideaal voor opslag/productie in combinatie met kantoor.
Verhuurder zal de bedrijfsruimte van led verlichting voorzien en is bereid, één en ander afhankelijk van de overige huurcondities, in overleg met huurder andere verbeteringen uit te voeren.
Vloeroppervlak:
Totaal ca. 1.062 m² verhuurbaar vloeroppervlak, als volgt verdeeld:
ca. 735 m² bedrijfsruimte gelegen op de begane grond;
ca. 141 m² kantoorruimte gelegen op de begane grond;
ca. 78 m² bedrijfsruimte gelegen op de eerste verdieping;
ca. 59 m² kantoorruimte gelegen op de eerste verdieping;
ca. 49 m² bedrijfsruimte gelegen op de entresolvloer.
Parkeren:
Er is voldoende ruimte op eigen terrein.
Huurprijs:
€ 80.000,= per jaar te vermeerderen met BTW.
Indeling:
Via de hoofdentree komt men in het kantorendeel. Op de begane grond is een hal met toegang tot een kantoor aan de voorzijde, toiletten, archief, kantine en een doorgang naar de bedrijfsruimte. Tevens is er een trap naar de eerste verdieping.
Op de eerste verdieping is een kantoorruimte.
Voorzieningen:
Het bedrijfsgebouw wordt opgeleverd in de huidige staat, inclusief:
Algemeen:
- aansluitingen voor gas, water, elektra en internet;
- krachtstroom;
- tl-verlichting;
- handmatig afsluitbaar hek ten behoeve van een deel van het buitenterrein;
- 42 zonnepanelen.
Bedrijfsruimte:
- betonvloer, vloerbelasting vermoedelijk 1.500 kg/m²;
- 4 handbediende overheaddeuren van 4 x 4 meter;
- raampartijen aan beide zijdes;
- diverse loopdeuren;
- pantry voorzien van boiler en koelkast.
Kantoorruimte:
- houten kozijnen voorzien van dubbel glas;
- te openen ramen;
- mechanische afzuiging;
- airconditioning;
- elektra en data aansluitingen;
- pantry voorzien van boiler;
- toiletten;
- cv-installatie met vloerverwarming.
Energielabel:
A++.
Bestemming en gebruik:
Enkelbestemming bedrijf, functieaanduiding specifieke vorm van bedrijf - 5.
Een bestemming kan aan verandering onderhevig zijn. Raadpleeg derhalve voor de actuele gegevens de website omgevingswet.overheid.nl of neem contact op met ons kantoor.
Omzetbelasting:
Uitgangspunt is BTW belaste verhuur. Derhalve dient bovengenoemd bedrag te worden vermeerderd met het van toepassing zijnde BTW percentage. Indien huurder niet aan het 90 % criterium voldoet, zal er van rechtswege sprake zijn
van omzetbelasting vrijgestelde verhuur. Alsdan wordt de overeengekomen kale huurprijs, exclusief omzetbelasting, zodanig verhoogd dat het voor verhuurder ontstane nadeel volledig wordt gecompenseerd.
Kosten openbare nutsbedrijven:
Door huurder rechtstreeks aan de desbetreffende nutsbedrijven te voldoen.
Betalingen:
Huur inclusief BTW per maand vooruit te voldoen.
Huurtermijn:
5 jaar met een verlengingsperiode van 5 jaar.
Opzegtermijn:
Uiterlijk 12 maanden voor het aflopen van een huurtermijn.
Huurprijsaanpassing:
Jaarlijks, voor het eerst één jaar na huuringangsdatum, op basis van het consumptieprijsindexcijfer voor alle huishoudens (CPI, als vastgesteld door het CBS, met als basisjaar 2015).
Zekerheidsstelling:
Een bankgarantie of waarborgsom ter grootte van minimaal drie maanden huur te vermeerderen met BTW.
Overige condities:
Huurovereenkomst op basis van het standaard model van de Raad voor Onroerende Zaken (ROZ).
Aanvaarding:
In overleg.
Features
Transfer of ownership
- Rental price
- € 80,000 per year
- Listed since
-
- Status
- Available
- Acceptance
- Available in consultation
Construction
- Main use
- Industrial unit
- Building type
- Resale property
- Year of construction
- 1983
Surface areas
- Area
- 976 m²
- Industrial unit area
- 804 m²
- Office area
- 172 m²
- Maximum load
- 1,500 kg/m²
- Plot size
- 1,555 m²
Layout
- Number of floors
- 2 floors
- Facilities
- Rooflights, overhead doors, three-phase electric power, concrete floor, toilet, pantry, air conditioning, mechanical ventilation, built-in fittings and windows can be opened
Energy
- Energy label
- A++
Surroundings
- Location
- In residential district
- Accessibility
- Bus stop in less than 500 m and motorway exit in 2000 m to 3000 m
NVM real estate agent
Photos











































Floorplan
Begane Grond

Eerste Verdieping

Entresol

Perceel
